Катера своими руками. Чертежи катеров. Как сделать катер. Как сделать самому катер
Катера своими руками. Чертежи катеров. Как сделать катер :: SYL.ru
Одним из распространенных материалов для постройки катера своими руками стал стеклопластик. При помощи такого сырья можно самостоятельно сконструировать лодку довольно больших размеров: от 7,5 до 18 м в длину.
Общие сведения
Одной из наиболее распространенных моделей лодок из такого материала, как стеклопластик, стал катер WaveRunner-285. Он считается полноценным глиссирующим судном, которое вполне пригодно для прогулок по морю или туризма. Корабля, который характеризуется тем, что у него повышенный надводный борт, а также довольно большая ширина, удобен еще и тем, что в его носовой части можно разместить комфортный салон с прилегающим туалетом и камбузом. В кормовой части катера своими руками можно сделать двуспальную каюту, расположение которой будет находиться строго под кокпитом. Отдел управления агрегатом будет размещаться над моторным отсеком, а также он будет защищен от ветра и водных брызг наклонным стеклом.

Мощности катера
При оборудовании катера своими руками необходимо учитывать, какой двигатель будет установлен на него впоследствии. Конкретно эта модель рассчитана на установку либо одного, либо двух моторов. Однако здесь важно учитывать, что общая мощность для нормального функционирования объекта должна быть в пределах от 250 до 500 л. с. Также они должны иметь прямой реверс-редуктор, что позволит развивать скорость в 15-30 узлов, что в км/ч составляет от 28 до 56. Кроме этого, судно может также иметь движительные комплексы либо дополнительные подвесные моторы.
Стоит отметить, что строительство катера своими руками экономит от 50 до 75% материальных средств от той суммы, которая была бы потрачена, если бы агрегат приобретался на верфи, а не строился самостоятельно. Также стоит отметить, что приведенная технология строительства малого судна не является последним словом в судостроении. Это лишь проверенный практикой, устоявшийся метод, который позволит собственноручно сконструировать приемлемый катер из стеклопластика.

Начало работ
Начало строительства малого судна из стеклопластика ничем не отличается от строительства из любого другого материала. Первым шагом необходимо осуществить разбивку на фанерном щите или же на листе картона теоретических шпангоутов, а также обвода форштевня. Разбивка должна осуществляться в натуральную величину этих деталей.
Также важно отметить, что щит или плаз, на котором идет разбивка, должен иметь ширину, соответствующую ширине катера, плюс 300 мм. Высота этого объекта должна быть выше, чем предполагаемая высота корпуса на 400 мм. Специалисты рекомендуют сначала создавать чертежи катеров, на которых будут отмечены все необходимые детали с указанием размеров. Это делается для того, чтобы не ошибиться в процессе изготовления.
Еще одна важная деталь - верхние концы всех шпангоутов нужно продлить до той высоты, которая изображена, как горизонтальная линия, на плазе. Она является перпендикулярной линией ДП и называется она - шергель-линия.

Сборка лекал
Во время проведения работ по плазовой разметке лекал очень важно учесть такие факторы, как толщина реек и толщина листового металла, который будет использоваться в качестве обшивки внутренней поверхности матрицы. Другими словами, при составлении чертежа катера и последующей сборке необходимо от теоретической линии каждого из шпангоутов отложить внутрь то расстояние, которое будет соответствовать толщине реек и листового металла в сумме. Именно этот вариант разметки должен использовать при вырезании лекал и их дальнейшей сборке.
Отдельные части поперечных лекал, необходимо соединить при помощи таких материалов, как накладки и кницы, изготовленные из кусков фанеры толщиной от 8 до 10 мм. Подобный показатель подойдет для катера, длина которого будет находиться в районе 10 м. Накладки лучше всего клеить к лекалам, а после этого дополнительно прикручивать их шурупами или прибивать гвоздями.

Далее, прежде чем собирать имеющиеся лекала в матрицу, необходимо озаботиться созданием наружной обшивки конструкции. Для того чтобы создать наиболее комфортные условия при работе с наружной обшивкой катера, необходимо предусмотреть деталь, обеспечивающую наклон матрицы на оба борта корабля.
Если сделать все правильно, то появиться возможность работы, стоя на полу рядом с заготовками. Сама же по себе матрица, в любом случае, должна иметь очень прочную и жесткую конструкцию. Это необходимо для того, чтобы при постройке агрегата форма его корпуса не искажалась.
Как сделать катер с прочной матрицей? Крупные конструкции собираются из продольных балок, которые будут представлять собой горизонтальное основание катера. Внутри полученного каркаса, необходимо установить мостки, которые облегчат работу по выклейке корпуса. После того, как были установлены продольные брусья, являющиеся основанием матрицы, на них размечается будущее положение всех лекал, а также натягивается стальная проволока вдоль балок, которая будет являться струной, обозначающей ДП судна.

Установка лекал
Начать процесс монтажа заготовок рекомендуется с мидель-шпангоута. Прежде чем надежно закреплять этот элемент, очень важно убедиться в том, что лекало стоит строго вертикально и перпендикулярно по отношению к ДП. Крепится оно к брусьям, являющимися основанием. После того, как были смонтированы все остальные заготовки, была установлена стойка, находящаяся в ДП транца, и все элементы были раскреплены раскосами, чтобы избежать любого перемещения, можно приступить к такому этапу как обшивка внутренней поверхности матрицы при помощи продольных реек.
Для выполнения этой задачи чаще всего используется материал толщиной от 12 до 15 мм и шириной в 50 мм. Для оборудования днища катера лучше использовать рейки с той же толщиной, но большей шириной - до 100 мм.

Водный катер из алюминия
Невысокая стоимость исходных материалов, а также токарных станков привела к тому, что многие хозяева пришил к тому, что самостоятельно изготавливают те или иные детали и элементы из металла. Считается, что производство алюминиевого катера одна из сложнейших задач, которая практически невыполнима, а на заводе их создают без труда, так как имеют специальные инструменты для этого. Однако же это не так.
Наиболее сложным в изготовлении такого типа катера самостоятельно является производство его выкройки из металла. Под этим термином понимают разметку того, как именно необходимо вырезать нужные детали из алюминия.
При изготовлении такого агрегата из металла весь процесс сводится к сборке своеобразного конструктора. Это актуально в том случае, если заготовки не вырезаются самостоятельно, так как для этого все же понадобиться большой навык работы и высокоточное оборудование, а приобретается компьютеризированная модель катера. Да, стоимость такой модели будет также довольно высока, но если сравнивать с покупкой уже готового судна, то будет видна существенная экономия.
Скоростные малые суда
Еще один вариант судна, которое можно изготовить самостоятельно - это скоростной катер. Довольно важная часть в постройке именного этого типа агрегата - это выбор двигателя и его расположение. Размещать эту деталь можно в кокпите судна, а ту часть, которая будет выступать, можно закрыть капотом.
Такое определение места было выбрано не случайно. Оно позволит расширить круг устройств, подходящих под установку. Можно использовать двигатели с таких машин, как "Жигули" или "Волга". Кроме этих моделей, вполне реально установка дизельного движка с трактора. Однако это возможно лишь в том случае, если будет предусмотрен дополнительный отвод горячего воздуха. Для этого можно использовать фальшивую дымовую трубу.
Можно устанавливать также и двигатели с воздушным охлаждением. Так как скоростной катер должен иметь хорошую устойчивость при быстром передвижении по воде, то рекомендуется размещать эту деталь ближе к центру тяжести всего судна. Большой вес двигателя придаст большей устойчивости всей конструкции.
www.syl.ru
Как сделать самодельный катер из фанеры: проекты, чертежи и видео
Любое плавательное средство, будь то плоская лодка, катер или яхта, дает некоторое ощущение свободы, которое теперь доступно многим. Казалось бы, совсем недавно самодельные катера из фанеры только взошли на свой пик популярности, однако с тех пор уже появилось масса способов выполнения таких конструкций и методов обработки фанерных изделий.
Поскольку предполагаемая конструкция будет маломерной, постройка катера из фанеры не вызовет никаких затруднений. Достаточно лишь запастись материалами и инструментами, а также произвести соответствующие расчеты.

Модель «Джерси 40»
Описание необходимых материалов и инструментария
Преимущества такого материала, как фанера перечислять не стоит, поскольку многие уже наверняка столкнулись с достоинствами фанерных изделий.
Обратите внимание! Проекты катеров из фанеры выполняются из материала марки ФСФ. Толщина используемых листов варьируется в пределах 0,5-1,5 см в зависимости от назначения детали конструкции, которая из них будет выполняться.

Модель «Север 520»
Фанерные изделия марки ФСФ отличаются высоким уровнем устойчивости к воздействию влажности. Тем не менее, в процессе работы ваш каютный катер из фанеры будет дополнительно обрабатываться, и не единожды. Уделяйте особое внимание качеству материала при его закупке. Поверхность фанерных листов должна быть полностью лишена каких-либо дефектов, повреждений в виде трещинок и сколов, а также расслоений и всевозможных сучков, которые часто встречаются на древесине. Этот момент крайне важен, поскольку от качественного уровня материала зависит конечный результат вашей работы, а также надежность самой конструкции.
Специалисты, которым уже приходилось сталкиваться с такой задачей, как выполнение катера из фанеры, скажут, что работать с большим листом гораздо удобнее и комфортнее, а, следовательно, и быстрее. Поэтому отдавайте предпочтение крупноформатным фанерным изделиям.
Вспомогательные материалы:
- Обрезная оструганная древесина, которая понадобится для обустройства сидений, внутренних распоров и бортиков. Чтобы выполнить функциональный катер из фанеры, отдавайте предпочтение легким породам древесины.
- Хомут из пластика или тонкая проволока, которые будут использоваться в качестве шовного материала для соединения между собой различных деталей, принадлежащих к обшивке катера. Можно использовать леску из капрона, но в таком случае она должна иметь приличную толщину.
- Клеевой состав для герметизации швов, образующихся в местах стыков деталей. Лучше всего использовать смеси на основе полимерных смол.
Конечно, люди, знающие как построить катер из фанеры, могут дополнить этот список и другими материалами. Но в данном случае приведен пример минимального набора дополнительных материалов. Чаще всего в качестве дополнений используются всевозможные лакирующие составы, а также специализированные пропитки, которые предотвращают гниение и разбухание конструкции, которая долго контактирует с водой.
Кроме этого, для оклеивания швов между деталями, вам может понадобиться такой материал, как стеклоткань, которую можно заменить ее аналогом – стеклопластиком.

Стеклоткань для оклейки
И конечно же, не стоит забывать о внешней эстетике вашего изделия. Для этого подойдет и краска, которая позволит вам скрыть все швы и добиться необходимого цвета.
Набор инструмента стандартен практически в каждом из случаев:
- электрический или ручной лобзик;
- набор полотен различного размера, прилагаемых к лобзику;
- пила, предназначенная для работы с древесиной;
- шлифовальная машинка;
- пассатижи;
- кисти различного назначения: для нанесения лака, окрашивания, нанесения пропиток;
- молоток;
- стамеска.
Что касается размеров, которые может иметь катер из фанеры, чертежи конструкции могут быть самыми разнообразными, поэтому вряд ли можно посоветовать что-то конкретное.

Чертеж модели «Север 520» (с размерами)
Однако вы можете остановиться на стандартных размерах:
- общая длинная конструкции – 3,5 м;
- ширина катера – 1,35 м;
- высота бортов – 0,5 м.
Раскройка деталей и практические советы
Подобрав подходящий чертеж конструкции необходимо перенести все детали на фанеру, после чего выполняется распил листа согласно этой разметке. Для выполнения этой задачи вам необходим электрический лобзик, поскольку другие инструменты могут повредить материал, а линия среза получится неровной, со сколами.

Общий чертеж
Поскольку в нашем случае выполняется катер, то его транец обязательно следует оклеить дополнительным слоем стеклоткани и по возможности усилить его конструкцию. Для этого вы можете использовать доски, выполненные из древесины твердых пород. Кроме этого в усилении креплений вас помогут саморезы.
Обратите внимание! Если вы еще не до конца разобрались, как сделать катер из фанеры, последуйте совету профессионалов: этап проектирования и расчета грузоподъемности очень важен, ведь ошибившись с основными параметрами судна, результат вашей работы вряд ли можно будет назвать функциональным.
Что касается практических рекомендаций, то перед сборкой все элементы конструкции следует доработать при помощи рубанка. Предпочтительнее всего будет использовать электрический инструмент. После этого нужно выполнить соответствующие отверстия, которые будут использоваться впоследствии, когда вы будете сшивать воедино корпус катера.
Чтобы облегчить установку транца, вы можете использовать специальные козлы, которые нетрудно соорудить самостоятельно. После чего закрепляется днище, затем бортовые части катера.

Сборка каркасной части
Обратите внимание! Эти детали обязательно сводятся к носовой части. Не забывайте сверять расположение и симметрию.
Детали обшивки и сам обшивочный материал может быть закреплен двумя различными способами. В первом случае это может быть шовный материал, во втором случае можно использовать специальный клеевой состав. В процессе этого вам придется вручную выставлять встык края фанеры, добиваясь при этом определенного угла.
Необходимо постоянно отслеживать соответствие размеров, иначе в результате у вас может образоваться большой зазор между деталями, для устранения которого придется не только урезать шпангоуты, но и разбирать всю конструкцию.
Шпангоуты – реброобразные детали, за счет которых достигается необходимый уровень жесткости каркаса вашего катера. Эти детали выкраиваются из фанерных листов толщиной в 6 мм и устанавливаются с шагом в 0,8 м. В конечном итоге у вас должно получиться 4 шт.
Нельзя недооценивать важность такой детали, как привальный брус, располагаемый по линии бортов. Он может иметь внешнее или внутреннее размещение. Если вы запаслись струбцинами, то эти приспособления смогут оказать вам неоценимую помощь и значительно упростить работу. Если же вы не располагаете достаточным количеством струбцин, желательно в процессе прижатия привального бруса зафиксировать ими хотя бы контрольные точки. Не лишним будет применения биндеров, которые можно разместить между струбцинами.

Закрепление внутренних элементов
После выполнения вышеуказанных работ можно приступать к установке шпангоута. Если вы не боитесь рисковать и имеете в своем распоряжении фрагменты остатков фанеры, эту деталь можно сделать не цельной. Главное не забыть при этом, сформировать посредине шпангоута отверстие.
Если вы накроете эту зону палубой, то в результате сможете получить небольшую закрытую площадь, которую можно использовать в качестве хранилища для вещей. На изготовление палубы также можно пустить остатки фанеры.

Катер на завершающей стадии сборки
Если вы хотите более подробно узнать, как выполняется катер из фанеры, видео обзор, представленный ниже, поможет вам разобраться во всех тонкостях этого процесса.
Проведение внутренних и клеевых работ
Для проведения клеевых работ вам понадобится приготовить смесь, состоящую из эпоксидной смолы и аэросила, смешанных в равных пропорциях. Угловые зоны днища, транца и бортов следует усилить при помощи деревянных галтель или же уголков.
Проклейка лент стеклоткани осуществляется на зоны внутренних швов, с использованием приготовленной ранее смеси. Их же используют и при фиксации шпангоутов.

Катер на стадии окрашивания
В завершение клеевых работ монтируется настил днища, сиденья, уключины и другие детали, которые могут быть предусмотрены в вашем проекте судна.
После чего конструкция оставляется на просушку, а затем выполняются все внешние работы по зачистке и оклейке швов стекловолокном.
Чтобы качественно выполнить окраску следует:
- выполнить процедуру обезжиривания поверхности;
- покрыть материал специальным составом;
- нанести шпаклевку, чтобы устранить все погрешности, если таковые имеются;
- нанести слой грунтовки.
Красящий состав может быть абсолютно любым, но предпочтительнее всего использовать пигментный краситель, предназначенный для работы с древесиной. Использование кистей вместо краскопульта улучшит результат окрашивания.
Вконтакте
Google+
profanera.ru
Постройка каютного катера Пиран
Фомин Евгений
В этой статье я расскажу о процессе постройки каютного крейсера "Пиран", который был построен за 1 год (2008-2009 гг.)
Тактико-технические характеристики (ТТХ):
Длина: 5300 ммШирина: 2000 ммВысота борта: 800 ммВысота борта (общая): 1200 ммКилеватость: 15°Транец: 508 мм
В августе 2008 года я закончил свой первый катер, конец августа и начало сентября много катался, радовался, но быстро понял, что 3.3 метра - это очень мало Поэтому было принято решение о начале работ по постройке нового катера. Стал штудировать интернет в поисках подходящего проекта. Ну и как обычно я не нашел то, что мне бы понравилось и снова я решил делать все сам. В Carene сделал корпус лодки. Друзья разрешили попользоваться обычным железным гаражом (6х3 м) в гаражном кооперативе. И 20 сентября купил фанеру и работа началась.


Первым делом удлиннил листы фанеры - для этого использовал накладку и кучу саморезов. За день склеили все необходимые листы.

На следующий день разметка. Делаю координатную сетку 100х100 мм и отмечаю точки по проекту. Далее чтобы получить изогнутую линию использую длинную пластиковую планку или короб для проводов. Устанавливаю по точкам и привинчиваю саморезами, далее обвожу карандашем.

Планки днища и борта выпиливаются по вычерченным линиям, днищевые планки скрепляются по линии киля на проволоке. Проволоку использовал медную - покупал на рынке электрический провод и снимал оплетку. Проволоку желательно потолще, чтобы при закручивании не рвалась. А еще лучше стальную проволову использовать. По линии киля насверливаются дырки в планках днища друг напротив друга в 1.5-2 см от края. Где давление сильное дырки должны быть чаще, следите чтобы проволока не рвала фанеру - ничего страшного, но неприятно.
Далее вклеиваются днищевые стрингеры и устанавливаются шпангоуты на свои места. Накладки укрепляющие стык удлиннения листа фанеры прибавили проблем. В следующий раз буду удлиннять листы встык и проклеивать стеклотканью. Все шпангоуты я сделал за 1 день из 9 мм ФСФ хвойной фанеры и обложил рейкой 50х20. Транец - пирог из 20 мм фанеры, окладка доской 100х20 мм и закрыто снова 20 мм фанерой ФСФ. Получился мощный и очень тяжелый


Устанавливаем бортовые стрингеры и примеряем борта.

В шпангоутах вырезаются выемки под лаги пола трюма. В корме эти рейки врезаются в транец, тем самым укрепляя его и привязывая ко всему силовому набору корпуса. Изнутри все стыки проклеены 1 слоем стеклоткани. Под стеклоткань укладывалась галтель. К бортовым стрингерам приклееваются борта.


Обогреваем гараж газовой пушкой
Корпус собран
Корпус собрали быстро - наверно месяц. Вынесли все из гаража, приготовились к перевороту.



Перевернули корпус и положили его на шины.

Занесли корпус в гараж, все материалы и инструменты и другую шнягу занесли под корпус тем самым освободив место в гараже для работы.

Замазываем все дырки от саморезов эпоксидкой с аэросилом. Скулы и киль тоже промазываем, забивая щели.

Чистой смолой (без аэросила) кисточкой наносим на скулу под ленту стеклоткани. Стеклоткань нарезаем полосками. Первый слой лент стеклоткани шириной примерно 10 см, второй примерно 15-17 см, третий слой примерно 20-22 чтобы каждый следующий слой перекрывал предыдущий. Лента накладывается на чистую смолу и с помощью технического фена и резинового шпателя ткань пропитывается смолой. Там где смолы мало - надо добавить не пересушивая. Нагретая смола может впитываться в фанеру и ее может не хватать чтобы пропитать ткань - добавьте еще. Ткань должна очень хорошо пропитаться. Плохо пропитанная ткань отслаивается от фанеры!!!!

После первого слоя лент стеклоткани укладывается второй и третий слои.

После проклейки скул и киля необходимо оклеить весь корпус. Корпус промазывается чистой смолой и на него накладывается полотно стеклоткани. Таким образом стеклоткань не скользит по корпусу и не падает постоянно.

Феном и резиновым шпателем пропитываем стеклоткань. Товарищ разлил остатки чистой смолы, чтобы я ею допитывал ткань. Процесс достаточно нудный и липкий, но совсем не сложный. Всю операцию по оклейке корпуса стеклопластиком мы с товарищем сделали за 1 день с утра и почти до ночи.

Лишняя ткань на следующий день срезалась. Полотна клались таким образом, чтобы края полотна снова накрывали скулы и киль. В итоге на киле 7 слоев ткани, на скулах 6, днище оклеено 2 слоями и борта в 1 слой стеклоткани.


И тут мы вспомнили, что забыли про реданы. Реданы изготовил из рейки 50х20 мм, распилив ее вдоль под углом ручной циркулярной пилой. Несколько реек конечно было загублено перед тем как я понял как надо вести пилу по рейке, чтобы получалась ровная линия пила и близкий идеальному треугольник сечения. Конец рейки заострен. Чтобы рейка гнулась, а не ломалась в ней лобзиком делаются компенсирующие сжатие прорези. При креплении реданов к корпусу будьте осторожны, т.к. рейки стали очень хрупкими и саморез может разломить ее вдоль. Кончики реданов были вот таким нехитрым способом прижаты к корпусу на время засыхания смолы.
Потом саморезы выкручиваются, дырки замазываются смолой, корпус долго и упорно шпаклюется и шлифуется. И наконец-то наступает момент окраски.
Как и раньше, я использую систему покраски от Akzo Nobel - International. Данная система покраски предусматривает укладку трех слоев эпоксидного грунта International Interprotect. Решил укладывать краскопультом впервые. По этому случаю был приобретен компрессор 50л. В таре смешал компоненты грунта и добавил растворитель №10 на глазок. Дунулась полученная смесь замечательно. Сушка между слоями 1-2 суток, т.к. ударили сильные морозы и грунт долго не мог высохнуть. В итоге три слоя грунта уложены, шероховатость небольшая. За несколько дней весь грунт был пройден вручную шкуркой №180-№320. Далее также из краскопульта дунул в 3 слоя днищевую краску необростайку - International Trilux




Корпус снова перевернут и установлен на прицеп. Больше переворачивать корпус не будем. Укладываю пенопласт в блоки плавучести. Пенопласта уложено около 1м3. Такой объем пенопласта не позволит катеру утонуть. Пенопласт укладывался не только под пол трюма, но и в борта и в подволок каюты, вобщем куда только можно было его запихать.








Началась работа по возведению надстройки. Надстройка фигурная, сложная, многоступенчатая. Любая сложная задача выполнима, если ее поделить на много небольших решаемых задачек. Устанавливается первый ряд планок, потом второй, за ним третий и так до конца. Так как проекта надстройки не существовало на бумаге, а только в моей голове, дизайн придумывался по ходу работы.

Сначала крепилась планка 40х10 мм, смотрелось со стороны как это выглядит, включалась фантазия. Вобщем оценивался дизайн "выпуклым глазом" Далее к утвержденной высоте рейки прикладывалась фанера, очерчивалась, выпиливалась, подгонялась и приклеивалась.









Началась установка бимсов и карлингсов, установлен каркас переборки каюты.

Установлены карлингсы и сделана площадка под якорный роульс. Внутри каюты в якорном ящике - носовой отсек - будет устанавливаться электрическая лебедка от квадроцикла.


Примерка якороного роульса и якоря.


В каюте сделаны стенки и V-образный диван

Вид из каюты. Под полом кокпита разместился топливный бак из 4мм алюминия свареный на заказ по моим размерам на 162л.




Укладывается пенопласт в стенках каюты. Пенопласт нарезался под нужные размеры и приклеивался к стенке эпоксидкой. Видны перекладины пола кокпита. Пол кокпита поднят над полом трюма на 50 см. Перекладины пола кокпита сделаны сэндвичем из 9мм ФСФ фанеры, рейки 50х20 мм и снова 9мм ФСФ фанера. Этот пирог склеен. Всего установлено 7 перекладин. Длина каждой перекладины 1700 мм. Прочность перекладин была очень высокой - пол кокпита выдержал 8 человек и не хруснул. Гнутая фанера - это будущая сдвижная дверца в каюту. Делалась она так: 4мм фанера гнулась, фиксировалась, обмазывалась смолой и на нее приклеивалась еще 4мм фанера. После застывания смолы фанера держит форму.

Установлены стенки трюма из 4мм фанеры и трюм задут грунтовкой Interprotect.

Для придания красивого скругления заднему торцу борта было решено использовать монтажную пену. Пена задувалась в полость, после застывания она обрезалась и шкурилась. Далее рекомендую оклеить эту конструкцию в несколько слоев стеклотканью. Я этого не сделал и очень жалею. Я сделал так: эту зашкуренную пену я обмазал кистью смолой, потом зашпаклевал и зашкурил. Она конечно жесткая, но все равно хлипковат этот декоративный узел. Если кто-то с силой нажмет - то будет вмятина.



Занялся рецессом. Рецесс тоже сложный, весь закругленный, красивый. Полукруглый рецесс сделан из 4мм фанеры. Слева и справа от рецесса 2 платформы вровень с транцем. В боковых стенках рецесса сделаны лючки.




Сделал переборку каюты гнутую. Дверца будет сдвижной в каюту влево. Сделал диванчик в кокпите. Купил палубный люк. Палуба наклеена, в каюте проложены провода под освещение. Будут установлены 4 потолочных светильника. Купил 4 галогеновые лампочки на 12В и при включении всех через некоторое время в каюте становится очень жарко. Можно использовать как отопление в прохладные дни А лучше найти и поставить светодиодные лампочки.

Наклеены декоративные накладки на палубу и на верхний ряд надстройки. Такие вещи очень важны с точки зрения эстетического вида будущего катера. Большие и плоские элементы смотрятся хуже, чем красивая рельефная поверхность.




Весь корпус зашпаклеван, зашкурен и окрашивается грунтовкой в 3 слоя. Днище уже покрашено, поэтому его замаскировал.

Обрабатываю входную дверь в каюту.



Корпус покрыт 3 слоями грунтовки и 3 слоями подмалевка International.










Это вид изнутри на приборную панель. Панель склеена за несколько часов с помощью поксипола, т.к. возможности зафиксировать все мелкие элементы на сутки было невозможно. Пока поксипол застывал - 10 минут - элементы удерживались вместе руками. После застывания поксипола все стыки дополнительно кроклеивались эпоксидной смолой с аэросилом - укладывались галтели. Таким образом можно быстро собрать сложную конструкцию из мелких элементов.

Фотографий окраски корпуса краской International Perfection я почему-то не нашел. В итоге моих долгих мучений получился такой катер. Очень много раз я его перекрашивал и все равно результат мне не нравился, т.к. краска постоянно текла. Было очень много подтеков, а когда я снял маскировку, то оказалось, что синяя краска затекала за малярный скотч. Вобщем качество покраски было ужасным. Уже середина июля и очень хочется на воду. Отчаявшись, я вспомнил, что зимой на выставке MIBS-2009 я познакомился с представителем компании International. Позвонил ему, рассказал обо всем. Он приехал, оценил и пригласил меня в учебный центр компании Akzo Nobel в профессиональную покрасочную камеру.

Прибыли на место.

Обследуем... вот так плохо покрасил.

Сразу же за работу - сдирать все что я накрасил. Шлифуем.

Сошлифовали мою краску.

Закатили в камеру для покраски.

Уложили первый слой подмалевка.

Маляр Серега укладывает второй слой подмалевка.

Второй слой подмалевка уложен.

Положили три слоя подмалевка. Закрыли все что я накрасил.

Выкатили из камеры в зону подготовки, чтобы зашкурить подмалевок.


Лодка замаскирована для окраски бортов.


Началась окраска.

Результат обалденный. Борт - зеркало. Сверкает!!!


Краска International

Замаскировали для покраски белым цветом.

Вот так блестит!!!




Выкатили во двор, ждем мотор.

Привезли мотор Mercury 115 EFI. 4-тактный красавец, масса 185 кг.

Для погрузки организовали тельфер.

Повесили мотор, готовимся к отправлению. Завтра на воду!!!



И вот наконец-то на воде на Оке.






boatportal.ru
видео-инструкция как сделать самодельную лодку своими руками, постройка, проекты, чертежи и выкройки, фото и цена
Все фото из статьи
Очень многие хотели бы иметь в собственности плавательное средство, но, как известно, стоимость готовых вариантов очень высока и не по карману большинству покупателей. Если вы думаете, что сделать хороший каютный катер из фанеры своими руками без определенных навыков невозможно, то это далеко не так, и в данном обзоре мы расскажем, как можно реализовать подобный проект в домашних условиях.
На фото: если вы готовы потратить время и силы, то сможете получить роскошный катер, который обойдется в десятки раз дешевле готового варианта
Что понадобится для работы
На самом деле полный перечень очень велик, поэтому мы расскажем об основных комплектующих, чтобы у вас под рукой были все самые главные материалы, без которых процесс не возможен:
| Фанера | Чаще всего используется материал толщиной 4-5 мм, он весит немного, что упрощает работу и при этом обладает достаточно высокой надежностью. Также вам понадобится вариант толщиной 10 мм, из него будут изготавливаться шпангоуты. Количество фанеры зависит от выбранного вами проекта, поэтому расчет производится индивидуально в каждом отдельном случае |
| Деревянный брусок | Чаще всего используются бруски размером 50х20 мм, но могут применяться и другие типоразмеры пиломатериалов. Эти элементы применяются для создания каркаса, повышающего жесткость конструкции |
| Медная проволока | С ее помощью стягиваются элементы киля, лучше выбирать вариант толщиной 3-4 мм, чтобы проволока не рвалась при скручивании и обеспечивала высокую надежность фиксации |
| Эпоксидная смола | С ее помощью будет производиться склеивание элементов и обработка поверхности, количество состава также может варьироваться, так как его расход зависит от множества факторов. Важно выбирать хорошие варианты составов, чтобы обеспечить наилучшее качество проведения работ, не стоит экономить на эпоксидке |
| Стеклоткань | С ее помощью будет проводиться укрепление всех имеющихся стыков, а также армирование поверхности для увеличения прочности. Важно, чтобы материал был достаточной ширины для того, чтобы закрывать поверхности при оклеивании катера |
Совет! Также у вас в наличии должен быть необходимый измерительный инструмент – рулетка, угольник и карандаш, а также электрический лобзик для резки всех деревянных элементов. Точность измерений очень важна, как и высокое качество резки.

Стеклоткань позволяет делать самодельные катера из фанеры очень надежными и долговечными
Описание рабочего процесса
Отметим сразу – изготовление катера своими руками процесс довольно длительный, к тому же у вас должно быть помещение, в котором будут производиться работы, чаще всего используется гараж или другое строение достаточного размера.
Сооружение корпуса
Процесс производится в следующей последовательности:
- Можно сделать чертежи катера своими руками из фанеры, но гораздо проще найти готовый вариант с подходящими вам параметрами, так как есть множество важных нюансов, которые не знают те, кто не является специалистом в области постройки плавательных средств. Лучше всего проконсультироваться со знатоками, чаще всего они могут предложить проект или порекомендовать хороший вариант;

Лучше найти готовые чертежи и выкройки катера из фанеры – своими руками сделать их непросто, и вы сможете сэкономить очень много времени и исключить ошибки и просчеты
- Работа начинается с того, что листы сращиваются между собой, это можно сделать с помощью прикрепления накладки, которая закрепляется эпоксидкой и саморезами, важно, чтобы у вас в итоге получились элементы нужной длины. На следующий день можно продолжать рабочий процесс;
- Чтобы постройка катера из фанеры своими руками проходила максимально качественно и быстро, необходимо на все заготовки нанести координатную сетку размером 100 на 100 мм. Это упростит изготовление элементов, ведь они имеют неправильную форму и точно вырезать их, не имея ориентиров, очень и очень сложно;
Совет! Для того, чтобы выводить идеальные изогнутые линии, проще всего использовать пластиковые планки или короб для прокладки проводов, который прикрепляется саморезами и по которому производится резка. Лучше всего работать электролобзиком, он наиболее качественно режет изогнутые линии.

Изогнутые линии – самая ответственная часть работы при раскройке элементов
- После того, как все заготовки нарезаны, можно приступать к следующей стадии.
Сборка
Процесс состоит из данных работ:
- Все проекты катеров из фанеры состоят из одинаковых элементов, поэтому последовательность операций всегда аналогична. В первую очередь скрепляются элементы днища, для этого вдоль соединения на расстоянии 15-20 мм сверлятся отверстия под проволоку и части стягиваются. При этом не стоит прикладывать слишком большое усилие, чтобы не повредить материал;
- Далее устанавливаются поперечные элементы жесткости, которые называются шпангоутами, их проще всего вырезать из фанеры толщиной 9-10 мм. Они приклеиваются эпоксидной смолой и дополнительно прикручиваются саморезами. Также крепятся продольные рейки 50х20, которые называются стрингерами. В шпангоутах можно сразу же сделать вырезы под лаги, чтобы впоследствии не работать в стесненных условиях;
- Затем устанавливаются бортовые элементы, в них делаются вырезы под стрингеры и ставятся сами элементы жесткости, после этого можно приклеивать и прикручивать саморезами фанеру для бортов. Соединения изнутри для дополнительной прочности промазываются эпоксидной смолой и закрываются одним слоем стеклоткани;

Так выглядит процесс сборки
- После того, как все элементы скреплены между собой, необходимо перевернуть конструкцию. Для этого ее проще всего вынести и сделать это на улице, так как помещение такой площади, чтобы сделать это внутри, найти очень сложно. Для того чтобы не повредить конструкцию, ее проще всего уложить на старые автомобильные покрышки;
- Далее необходимо выкрутить все саморезы изнутри и заделать их эпоксидной смолой, после этого замазываются и все соединения, чтобы заполнить щели и сделать поверхность максимально ровной. После высыхания первого слоя производится наклеивание стеклоткани шириной 10 см, затем клеится полоса 17 см, а третий элемент должен иметь еще большую ширину, чтобы перекрывать два первых, это позволяет придать всем изгибам жесткость;

Чтобы фанерные катера были надежными, необходимо тщательно проклеивать все соединения
- Далее наружная часть оклеивается всплошную, лучше сделать это в 2-3 слоя. После высыхания производится шлифовка и шпаклевка поверхности для того, чтобы она стала ровной;
- Когда поверхность выровнена, можно перевернуть конструкцию для того, чтобы заполнить все полости пенопластом и обшить их листами фанеры изнутри. Сооружение каюты производится по заранее выбранному эскизу, следует помнить, что чем сложнее конфигурация, тем больше времени пойдет на сборку конструкции.
Каюта также оклеивается стеклотканью для усиления
Последний этап – грунтовка влагостойкими составами и окрашивание, важно использовать качественные композиции, их цена выше, но тут не стоит экономить. Если вам не нужен катер, и вы хотите узнать, как сделать лодку, то все производится так же за исключением того, что не требуется сооружение каюты.
Вывод
Конечно, чтобы сделать полноценную конструкцию придется потратить много времени и разобраться в конструктивных особенностях плавсредств. Зато конечный результат будет радовать вас на протяжении многих лет.
Видео в этой статье поможет лучше понять некоторые важные нюансы, а если у вас есть вопросы, то мы ответим на них в комментариях.
rubankom.com
Как построить катер своими руками / Я
Живу в Николаеве. Город наш славится корабелами. Сам я так же работаю в области судостроение и судоремонта. Строительство длилось долго, т.к. уделял время этому строительству, как для хобби. Выкладываю небольшую часть фотографий процесса строительства.
Стапель
Уже лобзиком вырезанные детали корпуса
изготовление транца
постепенное формирование скелета





Весь корпус оклеен стеклотканью
установка пойол.

подгонка палубных листов, — пока без установки.
двухкомпонентная грунтовка
палуба готова, — можно оклеивать красным деревом.

заливная горловина. в носу установлен бак на 70л. 












двухтактный старенький мотор на 25 л.с. со стартером

я со своими сыновьями готовимся к ходовым испытаниям.




ya-superpuper.com
видео-инструкция как построить своими руками, цена, фото
Прежде всего, давайте разберёмся, что называть моторной лодкой, а что – катером, ведь если двигатель будет съёмным, то это классифицируется, как лодка, а если его зафиксировать намертво, то такое плавсредство именуется катером. Как видите, отличия не принципиальные, поэтому речь пойдёт просто о фанерной плавающей конструкции, а вопросы о стационарности крепежа мотора вы уже решите самостоятельно.
К тому же, мы ещё посмотрим видео в этой статье на тему плавающих самоходных средств.

Фанерная лодка, из которой можно сделать катер
Что мы будем конструировать

Конструкция нашей лодки
Плоскодонные плавающие средства типа «джонбот» очень распространенны на водных магистралях Северной Америки, считаются очень удобными и практичными, но в наших регионах почему-то до сих пор не получили широкого признания. И вот, несмотря на то, что у них относительно низкая цена при отличной плавучести и практичности, их внешний вид почему-то отпугивает покупателей.
Тем не менее, давайте посмотрим, как построить лодку или катер такого типа из фанеры или орголита и досок.
Варианты корпуса лодки

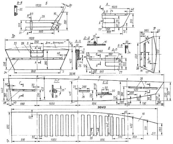
Наружные кили
- В качестве материала для обшивки будем использовать строительную фанеру ФК или ФСФ толщиной 6 мм, а также можно для этого использовать авиационную БС-1, БП-1, БПС-1. Также, для наружной обшивки можно использовать 3-х миллиметровый стеклотекстолит или орголит. (см. также статью Как построить каноэ из фанеры своими руками)

Обозначение деталей в таблице ниже
| Буква обозначения на схеме | Наименование детали | Количество штук | Параметры в мм | ||
| Длина | Ширина | Толщина | |||
| А | Борт | 2 | 1800 | 305 | 25 |
| Б | Корма | 1 | 864 | 205 | 25 |
| В | Распорка | 3 | 864 | 100 | 25 |
| Г | Сиденье | 2 | 864 | 254 | 25 |
| Д | Палуба | 1 | 914 | 305 | 6 |
| Е | Бруски для сиденья | 4 | 254 | 25 | 25 |
| Ж | Рейка решетки | 8 | 1200 | 50 | 20 |
| З | Брусок для палубы | 2 | 200 | 25 | 25 |
| И | Весло (заготовка) | 1 | 1200 | 140 | 35 |
| К | Ручка | 1 | 120 | — | 30 |
Размеры и численность нужных деталей
- Помимо фанеры для реализации проекта нам понадобится обрезная доска толщиной 25 мм, причём её минимальная ширина может быть 305 мм, чтобы соответствовать параметрам, указанным в таблице выше. Конечно, катера из фанеры своими руками не могут претендовать на причисление их к идеальным плавсредствам, но хорошее судно может получиться всегда, если следовать нужной инструкции. (см. также статью Какие бывают размеры листа фанеры )
- Все детали описываемого катера имеют достаточно простую форму и их легко вырезать, но, тем не менее, существует серьёзная опасность погрешности. Учтите, что даже один лишний или наоборот, недостающий миллиметр той или иной детали может вызвать перекос конструкции или нестыковку по швам. Поэтому, при распиловке тщательно придерживайтесь разметки, особенно, когда работаете дисковой пилой (электроциркуляркой), ведь здесь даже ваш поворот головы во время распиловки может по инерции потянуть за собой и линию реза.
Совеет. Сейчас нужно выбрать доски по виду древесины и для этого, как правило, используются хвойные породы, такие как кедр, лиственница, ель и сосна, но чаще всего доступны два последних.Здесь опять же возникает синдром «палки о двух концах», так как ель больше подходит для обшивки из-за более низкой водопоглощаемости, но структура дерева такова, что доска может растрескаться от обычного гвоздя, который в неё забивают.Поэтому вам придётся пожертвовать одним качеством на пользу другого и выбор останется за каждым из вас.

Ещё один проект джонбота
| Цифра обозначения на схеме | Наименование детали | Количество штук | Параметры в мм |
| 1 | Киль (крепится клеем и саморезами) | 2 | 20x25x2760 |
| 2 | Транец из фанеры | 1 | 1320x403x6 |
| 3 | Транцевая оковка (сплав алюминия) | 1 | 250x120x1,5 |
| 4 | Кормовая кница (крепится на гвоздях) | 2 | 150x150x5 |
| 5 | Сиденье кормовое (крепится на гвоздях и клее) | 1 | 1170x500x5 |
| 6 | Листовая обшивка борта | 2 | 3250x440x5 |
| 7 | Подушка подуключины | 2 | 150x70x16 |
| 8 | Подуключина | — | — |
| 9 | Приформовка лентой стеклоткани (1-2 слоя снаружи, 3-4 слоя изнутри | — | — |
| 10 | топтимберс. Крепить к детали 21 медными гвоздями и клеем) | — | 450x60x20 |
| 11 | Ьанка гребная (крепить к бортам саморезами через деталь 28) | 1 | 1150x250x20 |
| 12 | Приформовка полупереборок | — | — |
| 13 | Носовая полупереборка | 1 | 1020x15x5 |
| 14 | Сиденье носовое | 1 | 620x1000x5 |
| 15 | Кница посовая из фанеры | 1 | 150x180x5 |
| 16 | Форштевень (носовой транец) | 1 | 720x320x5 |
| 17 | Бимс (приклеить к детали 16) | 1 | 720x75x20 |
| 18 | Рым для фалиня (второй устанавливается на корме) | — | — |
| 19 | Лист для обшивки днища | 1 | 2780x950x5 |
| 20 | Рейка | 1 | 870x75x10 |
| 21 | Флор | 1 | 1000x60x20 |
| 22 | Пиллерс | 1 | 200x50x20 |
| 23 | Планширь склеен из двух реек | 1 | 3400x40x18 (каждая) |
| 24 | Рейка опорная для сиденья | 1 | 1000x20x20 |
| 25 | Доска подмоторная | 1 | 1320x190x20 |
| 26 | Накладка из фанеры | 1 | 250x135x8 |
| 27 | Кормовая полупереборка из фанеры | 1 | 1160x225x5 |
| 28 | Рейка опорная | 2 | 25×25 |
| 29 | Рейка | 1 | 1100x35x20 |
| 30 | Проволочная скрепка из меди | — | — |
Размеры и численность нужных деталей*
*Пояснение. В тех случаях, где толщина фанеры указана 5 мм, можно использовать также значение 6 мм для фанеры и 3 мм для орголита или стеклотекстолита.

Такое плавсредство вполне надёжно и рассчитано на 1-2 человек
- Катер такого типа, как на фото вверху, вряд ли вызовет особые затруднения при его сборке из готовых деталей, ведь они достаточно просты по форме и исполнению. Но полноценным плавающим средством монтируемое устройство сможет стать лишь в том случае, если все элементы будут точно вырезаны и также точно подогнаны друг к другу, что обеспечит пропорциональность и остойчивость судна, а также исключит образование щелей и зазоров.Чтобы на срезах досок и фанеры не возникало заусенцев, вам нужно пользоваться острыми инструментами, а также обрабатывать рез рашпилем или наждачной бумагой (шлифовка). (см. также статью Особенности шлифованной фанеры)
Покраска

Олифу нужно кипятить
- Для обработки собранной конструкции вам потребуется олифа, но покрывать нею древесину вам придётся не в обычном режиме. Для того чтобы жидкость прошла во все стыки и застыла там, образовав своеобразную влагоизоляционную плёнку, её нужно довести до кипения и только после этого наносить на поверхность лодки и в места стыковки деталей.
- Вам обязательно понадобится щётка, чтобы жидкость проникла в стыки – валика будет недостаточно, и соединения останутся нетронутыми. А вот искусственные или натуральные ворсинки способны занести олифу в зазоры менее миллиметра толщиной. Перед покраской олифа должна высохнуть и на это может понадобиться до 5 суток – не спешите наносить краску до этого времени.
- Для работы вам понадобятся масляные краски, которые тоже будут долго сохнуть, но такими средствами вы хорошо защищаете древесину от гниения. При оформлении можно разнообразить дизайн судна, например, до ватерлинии покрасить лодку в белый цвет, а выше – в зелёный.
Заключение
После сборки и покраски корпуса катера вам останется смонтировать на него двигатель, как того требует инструкция завода-изготовителя. Чаще всего на плавсредства таких размеров устанавливают подвесные моторы типа «Вихрь», «Ветерок» или «Нептун», так как их можно хранить отдельно от корпуса лодки, обеспечив тем самым сохранность технической части.
fanera-info.ru
Как сделать деревянную лодку своими руками, лодка из досок
До начала строительства лодки из дерева нужно заранее позаботиться о самых главных ее частях — бортах. Для этого отбираются длинные, широкие, не толстые, желательно без сучков доски сосны или ели. Они должны не менее одного года пролежать в сухом месте, на ровной поверхности с небольшим гнетом сверху во избежании их искривления.
Подготовленные доски еще раз осматриваем на предмет дефектов — трещин, выпадающих сучков и т.п. Затем отмеряем нужную длину (здесь, а также далее не будут приводиться конкретные размеры частей лодки, т.к. все это на ваше усмотрение) с небольшим запасом и опиливаем каждую из них под углом в 45гр — это будет носовая часть.

Далее их нужно прострогать, а с запиленных концов снять фаску таким образом, чтобы прижатые друг к другу доски в носовой части не имели зазора.Эти участки, а в дальнейшем и все остальные, которые будут недоступны к покраске после сборки конструкции, пропитываем защитным слоем антисептика.

После этого приступаем к изготовлению основы носа — треугольного бруска. Его длина должна превышать примерно в 1,5 раза ширину бортов лодки. Брусок также строгаем и покрываем защитным слоем.

Далее нам необходимо подобрать подходящий кусок достаточно широкой доски (пятидесятка). Из нее выпиливаем задний борт нашей лодки из дерева.
Не забудьте оставить сверху и снизу запас, потом после сборки все лишнее спилится.

Подготовив эти элементы приступаем непосредственно к сборке. Начинаем с носовой части, оба борта и треугольный брусок прочно соединяем саморезами или гвоздями.

Выступающие части сверху и снизу спиливаем заподлицо с бортами.

Далее готовимся к самому ответственному моменту — придание нужной формы лодке. Для этого подбираем, в зависимости от того какой ширины вы хотите видеть ее в будущем, распорку.
Она должна быть именно такой высоты, как представлено на фото, иначе во время гибки доски могут лопнуть. Угол распорки также не следует делать слишком большим.

Установив распорку, начинаем гнуть борта, тут понадобиться пара помощников или веревка. Изогнув до нужного расстояния, прикладываем «задник» и определяем где и сколько нужно снять фаску, чтобы борта примкнули к нему без зазоров.
Так, понемногу снимая, подгоняем его, пока не добьемся нужного результата.

Добившись его, приколачиваем борта и спиливаем выступающие части снизу, а сверху как вам хочется. Лучше делать в виде треугольника.

Затем приступаем к установке постоянных распорок и сидений. Их количество и расположение остается на ваше усмотрение. При закреплении их (да в общем-то и других местах) обязательно предварительно делайте маленьким сверлом отверстие, дабы избежать появления трещин.

Завершаем очень важный первоначальный этап снятием фаски с нижней части бортов, распорок и нанесением на них защитного покрытия.

После того как пропитка и столярный клей высохнут можно приступать к изготовлению ее дна. Для этого нам понадобится гладкий оцинкованный лист. Желательно, чтобы его длина соответствовала длине судна. Правда подобрать такой не просто, дело в том, что строительные магазины торгуют в основном небольшими листами (1,2х2м, 1.5х2), а от больших рулонов они отрезают очень не охотно. Если договориться не удастся, берите то, что есть. Дно можно сделать и из двух листов, просто получиться чуть по сложнее.
Из купленной оцинковки вырезаем ножницами по металлу соответствующий размерам дна кусок. Чтобы было легче определить длину и ширину, лодку ставим на лист и обводим маркером, с небольшим запасом в 1,2-2см, на всякий случай.

Далее нам необходимо подготовить нижние части бортов. Наносим с помощью пистолета санитарный силиконовый герметик небольшим слоем в виде непрерывной извилистой нити. За тем прямо на него укладываем в два ряда специальный шнур. Все это в дальнейшем надежно защитит дно лодки от протекания.
Если герметика нет, заменяем его обычной краской, если нет нити — кладем паклю.

Завершив это, осторожно накладываем вырезанный кусок жести на лодку, выравниваем и начинаем его крепить.
Для закрепления можно использовать оцинкованные саморезы с прессшайбой или гвозди. В данном случае крепим проверенным годами методом — т.е. гвоздями (1,8х32). Начинаем работу с середины и движемся к краям. Работа монотонная и нудная, но торопиться не следует — торчащие гвозди не добавят красоты.
Как часто нужно их колотить показано на фото.

Те места, в которых жесть выступает за края более чем на 5мм, обрезаем. Оставшееся простукиваем молотком, загибая на борт.

Нос лодки нуждается в защите, его покрываем все той же жестью. Измеряем и вырезаем нужный кусок в виде прямоугольника.
На ту часть бортов, которая закроется оцинковкой, предварительно пропитанной антисептиков (вообще, к этому времени лодку нужно хотя бы одним слоем покрыть пропиткой), наносим герметик с нитью. После этого прикладываем как показано на фото лист и приколачиваем его.
Края жести не должны выходить за пределы носа-треугольника, иначе гвозди выйдут наружу.

Сверху и снизу оцинковку укладываем друг на друга, обрезая лишнее и также крепим гвоздями. В результате получится отличный нос, только очень острый. Поэтому его кончик сминаем или обрезаем, чтобы потом не повредить об него болотники или рыболовные снасти.

Новая лодка на водоеме обязательно привлечет к себе внимание, чтобы как то обезопасить ее от посягательств или чтобы ее не унесло течением, делаем крепление для цепи в носовой части. Для это нам понадобиться длинный болт или шпилька. Сверлим отверстие в бортах ровно по диаметру шпильки, закрепив ее, отпиливаем лишне ножовкой по металлу.

Лодка практически готова. Покрываем ее дополнительно еще 2 слоями пропитки и оставляем на просушку в тени.
Если есть желание, можно сразу позаботиться о защите дна лодки, покрыв его краской. Оцинковка с наружной стороны, контактирующая с водой, со временем разрушается без дополнительного покрытия.

Чтобы по дну из жести было комфортно ходить и она не гремела, необходимо предусмотреть деревянный настил. Он может быть самой разнообразной конструкции. Например такой.

Вот теперь можно уверенно сказать, что лодка готова! Лодка с оцинкованным дном намного легче чем с деревянным, да и в процессе эксплуатации ее в дальнейшем будет легче готовить после зимовки к очередному сезону. По прочности она ни сколько не уступает другим. Например, у моей предыдущей старой лодки через 10лет использования сгнили борта, а дну хоть бы что.
Да, и еще — не жалейте антисептика, именно его, а не краски, он значительно лучше противостоит разрушению дерева.
Если в итоге у вас получится что-то подобное или даже лучше, можно вас поздравить с успешным делом.
Представляю несколько итоговых фото разных людей:



По материалам: grossoxota.ru
Видео уроки по изготовлению лодок своими руками
Лодка из фанеры
Лодка из листа железа
Загрузка...fishingday.org













