Как сделать котел отопления на дровах — пиролизный и обычный. Как сделать котел отопления своими руками на дровах видео
Котел отопления на дровах: самодельный для частного дома
Краткое содержание
Отопление частного дома при помощи твердотопливного котла — выгодное решение, потому что это достаточно экономичный агрегат с высоким КПД. Поэтому можете смело купить его в магазине и даже изготовить установку своими руками.
Разновидности современных отопительных приборов на дровах
Процесс отопления на дровах может происходить при помощи таких приборов:
- классические печки – закладка дров происходит в обычную камеру, где и происходит их горение;
- пиролизные печи – топочная камера следующих агрегатов состоит из двух отсеков. В первом происходит закладка и горения дров, а в другом – догорание газов. Это высокопродуктивный прибор, который требует наименьшего объема топлива.

Конструкция пиролизного котла
Преимущества и недостатки оборудования
Такие печки на дровах имеют ряд преимуществ относительно других приборов для отопления частного дома:
- высокий показатель КПД – от 80% до 93%;
- экономность этого вида отопления, поскольку стоимость дров намного ниже, чем газа или электрики;
- можно использовать не только дрова, а и отходы древесной промышленности – стружку, опилки;
- постепенный обогрев помещения;
- при монтаже агрегата не нужно дополнительно обустраивать фундамент;
- существует возможность подключить к водяной системе отопления частного дома;
- экологичность устройства;
- безопасность агрегата;
- не нуждается в профессиональном обслуживании.

Две схемы пиролизных котлов
Кроме существенных преимуществ, процесс отопления на дровах частного дома может вызвать некие трудности, особенно если нет возможности постоянно находиться около устройства. По мере сгорания дров нужно подкидывать новые полена. Данная система требует постоянной чистки, поскольку на стенках устройства и внутренней поверхности дымохода скапливается много сажи.
Также важно предусмотреть место для хранения большого объема дров, которые должны быть обязательно сухими.
Теплообменник для котла на дровах
Если твердотопливный отопительный прибор оборудовать теплообменником в виде водяной рубашки, горизонтального или вертикального трубопровода, КПД системы повышается на 10-15%. В качестве теплоносителя может выступать не только вода, а и другие жидкости с достаточной теплоемкостью.
Раздельный, пластинчатый теплообменник котла
Котел с водяной рубашкой представляет собой топку, которая размещается в бочке. Если используется горизонтальный трубопровод, труба с горячим теплоносителем или подача должна быть приподнята над холодной трубой или обраткой.
При вертикальном размещении теплообменник может находиться как строго вертикально, так и под небольшим уклоном. Лучше всего размещать трубопроводы в шахматном порядке, чтоб увеличить продуктивность отопительной системы дома.
Для изготовления современных регистров для теплообменника используют жаропрочную сталь, которая обладает высокой теплопроводностью.
Делаем котел из старого газового баллона
Котел на дровах своими руками можно сделать, используя старый ненужный газовый баллон.
Также для данного устройства вам понадобится:

Материалы для котла
- металлические уголки;
- небольшая решетка из металла;
- чугунная дверца;
- лист металла;
- трубы для дымохода.
Пошаговая инструкция устройства для отопления загородного дома:
- Из баллона необходимо удалить вентиль при помощи молотка.
- После этого вырежьте в верхней части цилиндрической емкости отверстие под дверцу.
- Из уголков сварите раму, на которую будут присоединяться дверцы. После этого прикрепите ее к баллону.
- В раме и дверце просверлите отверстие для крепежных элементов, после чего нужно соединить два элемента.
- Вырежьте отверстие в емкости под решетку. Оно должно находиться снизу будущего котла. После этого приварите к отверстию металлическую решетку.

Схема котла из газового баллона
- К вырезанному куску приварите четыре полосы металла, чтоб получить своеобразную коробку без крышки.
- Полученный элемент герметично присоедините к днищу котла при помощи сварочного аппарата. Этот ящик будет исполнять роль зольника.
- Приварите к нижней части котла ножки, чтоб он устойчиво стоял на основании.
- В верхней части агрегата сделайте отверстие под дымоотвод и присоедините дымоотводную трубу.
Данный самодельный отопительный прибор нужно устанавливать в отдельном помещении дома, что соответствует пожарным и строительным нормам.
Котел из листового материала
Самодельный котел, который можно использовать для отопления здания, можно сделать своими руками, используя при этом:
- лист металла толщиной 4-5 мм;
- лист металла толщиной 10-12 мм;
- металлические уголки и решетка;
- трубы для дымоотвода.

Схема простого твердотопливного котла
Как сделать печь длительного горения, бубафоня из газового баллона
Пошаговая инструкция для изготовления котла на дровах:
- Из листового материала вырежьте детали, которые будут исполнять роль стенок в котле. Из металла толщиной 10-12 мм сделайте две перегородки для печки.
- В элементе, который будет устанавливаться сверху агрегата, вырежьте отверстие диаметром 100 мм под дымоход.
- К днищу приварите боковые стенки. После этого на вертикальные элементы полосы металла шириной 3 см для установки колосниковой решетки. Также присоедините к боковым панелям своеобразные опоры из металлической полосы для перегородок.

Самодельный котел из листового металла
- Из металла вырежьте дверцы, которые при помощи крепежных элементов устанавливаются к котлу. При этом для топочной камеры и зольника сделайте отдельные заслонки.
- Приварите перегородки, которые будут создавать некий лабиринт на пути движения воздушных масс, что значительно повысит продуктивность печки.
- В листе металла для крышки сделайте отверстие для дымохода, куда приварите гильзу высотой 200 мм для установки дымоотводной трубы.
- Приварите крышку к корпусу котла и установите дымоход.
- Чтоб повысить эффективность отопительного прибора, обложите его шамотным кирпичом, который будет аккумулировать и постепенно отдавать тепловую энергию. При этом кладку выполняйте на расстоянии 15-20 см от корпуса печки. Воздушное пространство будет нагреваться, что создаст дополнительный источник тепловой энергии.
Также данный самодельный агрегат можно оснастить теплообменником, чтобы создать комплексную отопительную систему для всего здания.
Видео: Самодельный котёл отопления
kaminyn.ru
Самодельный котел длительного горения работающий на дровах
Обеспечить на зиму свое жилище теплом – очень важная задача. И если в городе ее выполнение берут на себя специальные службы, то за городом очень часто все приходится делать своими руками, в частности, делать и устанавливать агрегаты для отопления.
В данном материале мы расскажем о самодельных котлах длительного горения, которые работают на дровах.
Конечно же, котел отопления, работающий на различных видах топлива, можно приобрести в продаже. Однако, тот же газовый котел не везде сможет работать, а вот котел на дровах может отопить дом независимо от того, как далеко он расположен от газовой магистрали.
Помимо прочего, самодельные котлы длительного горения по сравнению с простыми печами отличаются более длительным периодом между загрузками дров, при этом эффективность обогрева помещения не снижается. Помимо всего, мы предлагаем вам посмотреть видео на тему сборки котлов длительного горения своими руками.
Принцип работы котла длительного горения
Длительность горения дровяного котла зависит от его конструкции и процессов, происходящих изнутри. Принцип работы котлов такой: топливо сжигается сверху вниз, а не наоборот, как в обычной печке на дровах. В топке обычного котла или печи сначала сгорает нижний слой, после чего горячие потоки поднимаются и втягивают в горение все слои, дрова при этом очень быстро сгорают и их нужно добавлять каждые несколько часов, иначе печь остынет.
В котлах же длительного горения сначала сгорает верхний слой, а потом огонь идет ниже и захватывает каждый последующий слой дров. Одна закладка топлива позволяет ему тлеть примерно в течение 30 часов, а после полного его сжигания золы и сажи остается минимум.
Режим регулировки позволяет дровам тлеть очень продолжительное время — более суток, а после их полного сжигания сажи и золы остается минимум.
Но стоит помнить, что котлы длительного горения, сделанные своими руками, в жилых помещениях лучше не ставить, поскольку они не могут гарантировать вашу безопасность при применении. Лучше всего ими оснащать такие помещения, как:
- технические;
- производственные;
- теплицы;
- строящиеся дома.
- жилые дома до момента обустройства основной отопительной системы.
Плюсы самодельного котла длительного горения
Несмотря на то, что котлы на дровах, сделанные своими руками, можно устанавливать не везде или применять в качестве временного решения в жилых помещениях, многие отдают им предпочтения, поскольку они просты в эксплуатации и отличаются высокой отдачей при отоплении.
Преимущества таких котлов:
-
несложная регулировка процесса активного тления; - длительное горение без нужды добавлять дрова;
- легко собрать конструкцию своими руками;
- высокий КПД;
- максимальность сжигания топлива.
Как своими руками собрать дровяной котел
В регионах страны, где нет природного газа, очень ценится твердое топливо, на основе которого работают котлы отопления. При этом практически в каждом таком регионе есть специальные предприятия, которые могут снабдить твердым топливом.
Котлы длительного горения могут работать не только на дровах, но и на таких видах твердого топлива, как:
- опилки;
- пеллеты;
- торф;
- уголь.
Материалы для изготовления котла своими руками
Чтобы собрать котел своими руками, нужен материал для корпуса. Для этого могут подойти:
- металлические трубы с большим диаметром;
- бочки;
- круглые баки;
- газовые баллоны и другие емкости.
Чаще всего емкости бывают стальными и чугунными, давайте рассмотрим, чем отличаются по характеристикам эти два материала:
-
чугун устойчив к коррозии, способен выдержать высокие температурные нагрузки, остывает медленнее, нежели сталь. При этом он хрупок, тяжелый и дорогой в плане себестоимости. Чугунные изделия отличаются своей долговечностью; - сталь более легка, она стоит дешевле и отличается большей прочностью. Помимо этого она быстрее прогревается и легче сваривается, поэтому стальные котлы ремонтировать проще. Но наряду с этим конденсат, который появляется вследствие сжигания топлива, со временем разрушает стенки топки. В промышленных конструкциях они защищены керамической футеровкой, но своими руками это сделать невозможно.
Стальные котлы более популярны среди пользователей. Если вы захотите собрать котел своими руками, помните, что нужно при этом обеспечить правильную подачу воздуха с возможностью регулировать процесс сжигания дров. Чтобы этого достичь, нужно сделать следующее:
- грамотно просчитать мощность конструкции;
- выбрать качественные материалы;
- предварительно подготовить чертеж конструкции;
- уметь качественно делать сварные швы;
- четко соблюдать технологию установки конструкции.
А теперь давайте рассмотрим наиболее простые конструкции котлов длительного горения, которые можно собрать своими руками:
- на основе железной трубы;
- на основе бочки;
- буржуйку;
- «Слобожанку».
Конструкция на основе железной трубы
Параметры конструкции должны быть такими:
- диаметр трубы – до 30 см;
- высота -86 см;
- наклон трубы должен составлять как минимум 0,1 % к горизонтальной плоскости;
- диаметр дымоходной трубы – 10 см;
- соединение – сварное.
Внизу конструкции должна располагаться дверца для добавления дров, а для поддува и очищения емкости от сажи нужно поставить колосниковые решетки.
Внутри конструкции нужно разместить трубу с меньшим диаметром, соединить с трубопроводом, который идет по помещению для естественного движения теплоносителя. Далее система наполняется водой, которую можно нагревать для бытовых нужд и применять для отопления. С наружной стороны устанавливаем заслонки, которые контролируют количество поступающей из бака воды.
Бочковая конструкция котла
Работа в данном случае выглядит так:
- обрезаем верхний обод бочки и выравниваем;
- на крышке, способной закрываться герметично, вырезаем отверстие диаметром в 150 мм для вывода угарного газа;
- дымоход должен быть размещен под небольшим углом к вертикальной поверхности;
- крышка должна быть прочной и огнеупорной. Сделайте в ней еще отверстие на 100 мм для доступа кислорода;
- трубу ставим так, чтобы газы могли вертикально выходить наружу;
- заслонка не должна быть размещена слишком низко, чтобы топливо не сгорало раньше, чем нужно.
Также можно замедлить процесс оседания дров при помощи груза. Вместе с подвижным распределителем воздуха такая конструкция обеспечит горение дров в течение 60 часов.
Буржуйка и ее особенности
Об этой конструкции известно практически всем. Они состоят из водяного контура, который может обеспечить теплом несколько радиаторов в помещении до 30 квадратных метров. Ее можно использовать в таких помещениях, как:
- парники;
- дачные участки;
- строящиеся дома;
- строительные площадки;
- подсобные помещения.
Как собрать своими руками котел «Слобожанка»
Принцип работы такой конструкции достаточно простой. Есть два кожуха: один внутренний, а второй внешний, между ними есть воздушная прослойка. Снизу идет холодный воздух, который прогревается за счет горячих стен внутреннего кожуха и поднимается вверх, затем выходит через отверстие на внешнем кожухе.
Чтобы собрать такой агрегат своими руками, приготовьте следующее:
- толстые трубы;
- листы из металла;
- арматуру;
- металлические уголки;
- газовые баллоны или отрезки трубы;
- аппарат для сварки;
- болгарку;
- дрель;
- молот;
- зубило;
- электроды.
Порядок работы будет таким:
- сделайте устройство для подачи воздуха. Для этого нам нужна труба с длиной, которая соответствует высоте топки. Приварите к ней внизу болт, затем вырежьте из металлического круга лист с диаметром как в трубы или немного больше. Просверлите в нем отверстие под болт, затем соедините с воздуховодной трубой гайкой;
- возьмите болгарку и диск по металлу, делаем прорезы вертикально шириной в сантиметр. Сквозь них будет попадать воздух в топку;
- вырезам плоский стальной лист с диаметром чуть меньше топки. Изнутри делает отверстие для воздуховодной трубы, вставляем ее поддувалом вниз, затем нужно приварить, отступив при этом от конца порядка 20 см;
- делаем корпусной цилиндр с герметичным дном. Если для этого берется газовый баллон, верхнюю часть срезаем, а если делаем из листа металла, то нужно приварить дно;
- чтобы сделать дымоход, в верхней боковой части корпуса сделайте отверстие для выхода газа и приварите трубу с диаметром порядка 10 см;
- установите воздухоподающую трубу, вырезав в центре днища топочной камеры отверстие размером с диаметром воздухоподающей трубы. Далее вставьте ее, чтобы поддувало свесилось вниз за пределы корпуса;
- сделайте теплорассеивающий диск из металлического листа толщиной в 10 мм. Нужно вырезать круг диаметром чуть меньше корпуса и приварить к нему ручку из стальной проволоки или арматуры;
- сделайте конвекционный кожух и прикрепите его. Цилиндр конструкции должен быть на пару сантиметров больше топки;
- напоследок сделайте крышку из оставшегося элемента газового баллона или бочковой крышки. Можно приварить к ней ручку.
Котлы длительного горения, работающие на твердом топливе, можно применять для разных бытовых нужд. Нет лучшего и экономного варианта для использования на дачном участке или на строительстве. Загружать топливо при этом вам не придется так часто, как в традиционных печах, также вы сэкономите на покупке котла.
Оцените статью: Поделитесь с друзьями!kotel.guru
Как сделать своими руками котел твердотопливный длительного горения: чертежи
ПОДЕЛИТЕСЬВ СОЦСЕТЯХ
Иногда целесообразно сделать своими руками котел твердотопливный длительного горения: чертежи и схемы есть в свободном доступе. Умение обращаться с инструментом и умелые руки оказывают хорошую услугу при строительстве собственного дома или дачи. Там всегда есть необходимость сооружения какой-либо конструкции самостоятельно. Ведь это значительно удешевляет любую затею. Не исключение и отопительные агрегаты. В старые времена люди нанимали печника для кладки кирпичных печей. Сегодня наиболее востребованными стали котлы на твердом топливе длительного горения.

Твердотопливный котел длительного горения вполне реально сделать самостоятельно
Принцип работы твердотопливных котлов и их устройство
Твердое органическое топливо является самым древним источником энергии для человечества. Отказаться от него полностью, даже в современном мире, невозможно. Тем более, что кроме дров и каменного угля сегодня появилось множество других видов горючих твердых веществ:
- брикеты из торфа – высушенный и спрессованный торф выделяет много тепла при сгорании;
- брикеты из отходов деревообрабатывающего производства – сжатые опилки, стружка и кора деревьев;
- березовый уголь – такой же, как для мангала;
- переработанный мусор со свалок;
- топливные отопительные гранулы – мелкое топливо, полученное прессованием опилок. Могут подаваться автоматически;
- обычные сухие опилки.
Различные варианты сырья для использования в твердотопливных котлах
Ясно, что все это топливо получено путем переработки различных отходов, что решает проблему утилизации на предприятиях и идет в русле «зеленой» экономики.
Полезный совет! Самым доступным топливом, из перечисленных выше, являются древесные опилки. Если вы намереваетесь использовать их для отопления – следите, чтобы они были с влажностью менее 20%. Большие показатели этого параметра не позволят вырабатываться пиролизному газу, так как большая часть энергии нагрева будет идти на просушку топлива.
В результате деятельности человека образуется колоссальное количество отходов, которые могут быть преобразованы в высокоэнергетическое топливо, что и обусловило появление на рынке котлов отопления на твердом топливе длительного горения. В отличии от обычных печей, эти агрегаты работают не на сгорании самого топлива, а на его расщеплении в результате нагревания. В рабочей камере таких котлов сгорают газообразные продукты распада твердого топлива. Такая схема работы является в несколько раз более эффективной, чем обычное сжигание органического топлива. Пиролизный газ, отдает большое количество энергии.

Принцип работы твердотопливного котла длительного горения
Устройство такой газогенераторной установки не очень сложное. Можно даже соорудить своими руками котел твердотопливный длительного горения. Чертеж простейшего варианта выглядит следующим образом:
- закрытый цилиндрический бак, который имеет люк для закладки топлива, поддувало и отверстие для установки дымохода;
- внутри бака расположен распределитель воздуха, который создает завихрение пиролизного газа. Он крепится к подвижной телескопической трубе. Вся эта конструкция, похожая на поршень, давит на топливо сверху. Сгорание газа происходит над поршнем, а топливо тлеет под ним;
- теплообменник встроен в верхней камере, где достигается максимальная температура.
Медленное тление твердого топлива происходит в нижней камере. Оно достигается регулировкой подачи воздуха в поддувало. Выделяемый газ интенсивно горит в верхней камере и нагревает теплоноситель.

Схема системы отопления частного дома с использованием твердотопливного котла
Полезный совет! Не стоит использовать простейшую конструкцию для изготовления котла, который будет обогревать жилой дом на постоянной основе. Для этого нужно, либо приобрести готовое изделие, либо сделать более сложный и надежный вариант.
Котлы на твердом топливе длительного горения могут быть незаменимы в частных домах, в хозяйственных сооружениях, гаражах и теплицах. Особенно они будут выгодны там, где имеется крупное деревоперерабатывающее производство, так как отходы на таких предприятиях отдают практически бесплатно. Необходимы эти агрегаты и в местностях, где бывают регулярные перебои с газоснабжением. У таких установок есть много преимуществ, но существует и один важный недостаток – очень высокая стоимость. Именно поэтому сегодня актуально изготовление своими руками котлов твердотопливных длительного горения. Чертежи для этого можно использовать разной степени сложности. Это зависит от уровня мастерства.
Статья по теме:
Как сделать своими руками котел твердотопливный длительного горения: чертежи и схемы
Перед тем, как начать изготовление котла, необходимо определиться с его конструкцией. Ее выбор зависит от назначения агрегата. Если он предназначен для отопления небольшого хозяйственного помещения, гаража или дачного домика, то делать в нем водяной контур не обязательно. Обогрев такого помещения будет происходить непосредственно от поверхности котла, путем конвекции воздушных масс в помещении, как от печи. Для большей эффективности можно устроить принудительное обдувание агрегата воздухом при помощи вентилятора. При наличии системы жидкостного отопления в помещении, необходимо предусмотреть устройство в котле контура в виде змеевика из трубы или другой аналогичной конструкции.

Схема подключения твердотопливного котла к системе отопления
Выбор варианта зависит и от типа твердого топлива, которое нужно будет использовать. Для отопления обычными дровами требуется увеличенный объем топки, а для применения мелких топливных гранул можно устроить специальную емкость, из которой гранулированное топливо подается в котел автоматически. Для изготовления котла твердотопливного длительного горения своими руками, чертеж можно взять и универсальный. Он подойдет для любого вида используемого твердого топлива.

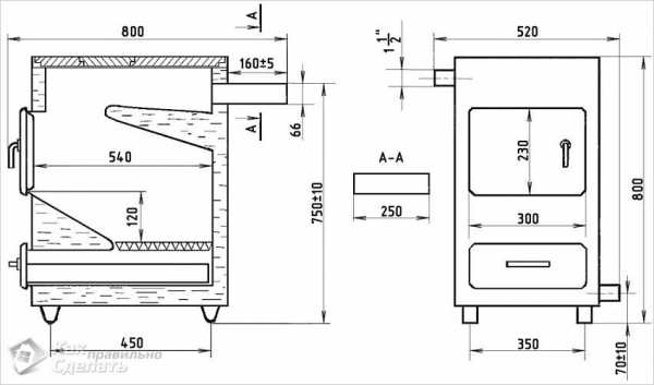
Чертеж твердотопливного котла длительного горения мощностью 25/30/40 кВт
Расскажем пошагово, каким образом и из каких деталей можно сделать котел отопления на твердом топливе длительного горения по предложенной схеме:
- подготовим место, где будет установлен будущий агрегат. Основание, на котором он будет стоять, должно быть ровным, прочным, жестким и огнеупорным. Лучше всего для этого подойдет бетонный фундамент или толстая чугунная либо стальная плита. Стены нужно обить тоже огнеупорным материалом, если они деревянные;
- собираем весь необходимый материал и инструменты: из которых нам понадобиться аппарат для электродуговой сварки, болгарка и рулетка. Из материалов: листовая 4-мм сталь; 300 – мм стальная труба со стенками 3 мм, а также другие трубы 60 и 100 мм диаметром;

Строение и принцип работы твердотопливного котла
- для того, чтобы изготовить котел на твердом топливе длительного горения, нужно из большой 300 – мм трубы вырезать кусок длиной 1 м. Можно и немного меньше, если в этом есть необходимость;
- из стального листа вырезаем дно по диаметру трубы и привариваем его, снабдив ножками из швеллера длиной до 10 см;
- распределитель воздуха выполняем в виде круга из листа стали с диаметром на 20 мм меньшим, чем труба. В нижнюю часть круга приваривается крыльчатка из уголка с размером полки 50 мм. Для этого можно использовать и швеллер аналогичного размера;
- сверху в середину распределителя привариваем 60 – мм трубу, которая должна быть выше котла. В середине диска распределителя прорезаем отверстие по трубе, так, чтобы был сквозной туннель. Он нужен для подачи воздуха. В верхней части трубы врезается заслонка, которая позволит осуществлять регулировку подачи воздуха;

Схематическое изображение устройства котла, работающего на твердом топливе
- в самой нижней части котла изготавливаем небольшую дверку, снабженную задвижкой и петлями, ведущую в зольник для удобства удаления золы. Сверху в котле прорезаем отверстие для дымохода и привариваем в это место 100 – мм трубу. Вначале она идет под небольшим углом вбок и вверх на 40 см, а потом строго вертикально вверх. Проход дымохода через перекрытие помещения должен быть защищен по правилам противопожарной безопасности;
- заканчиваем сооружение котла отопления на твердом топливе длительного горения изготовлением верхней крышки. В ее центре должно быть отверстие для трубы распределителя потока воздуха. Прилегание к стенкам котла должно быть очень плотным, исключающим попадание воздуха.

Чертеж с размерами для создания твердотопливного котла своими руками
Полезный совет! Чтобы разжечь, изготовленный своими руками, котел твердотопливный длительного горения, чертеж которого был представлен выше, необходимо: снять крышку и поднять регулятор, заполнить котел топливом доверху и облить его горючей жидкостью, все поставить на место и бросить горящую лучину в трубу регулятора. Когда топливо разгорится, снизить поток воздуха до минимума, чтобы оно начало только тлеть. После этого произойдет возгорание пиролизного газа и котел запустится.

Котел длительного горения — вид в разрезе
Как я сделал котел твердотопливный длительного горения: отзывы и рекомендации
«Работаю на лесопилке. Раньше возил домой сучки и срезку телегами. Узнал про котел твердотопливный длительного горения, отзывы почитал и решил сделать. Получилось. Теперь дров уходит в три раза меньше, а тепла столько же».
Александр Николаев, г. Сыктывкар
«Увидел у друга в гараже чудо-котел. Машину мы с ним с утра ремонтировали. Он, как дров в него положил, так больше до вечера и не прикасался. Я ничего понять не мог, пока он мне не объяснил всю схему. Вот, тоже загорелся идеей себе в гараж поставить. Друг сказал, даст чертежи».
Николай Платонов, г.Сургут

Различия в работе обычного и пиролизного котлов
«Если вы решили сделать, например, у себя на даче котел твердотопливный длительного горения, отзывы о котором нашли в сети, то делайте все четко по схеме с соблюдением всех правил безопасности. А то вот, сосед у меня спалил дачу, когда котел весь в дырах установил».
Андрей Ширшов, г.Тюмень
Описанное выше отопительное устройство будет служить вам верой и правдой, позволяя экономить на энергоносителях. Однако не забывайте делать все качественно, не отступая от схемы.
Твердотопливный котел длительного горения своими руками (видео)
ОЦЕНИТЕМАТЕРИАЛ Загрузка... ПОДЕЛИТЕСЬВ СОЦСЕТЯХСМОТРИТЕ ТАКЖЕ
REMOO В ВАШЕЙ ПОЧТЕremoo.ru
Котел отопления своими руками - как сделать, как сварить + Фото + Чертежи
Центром отопительной системы в частном доме является отопительный котел. Именно он выделяет энергию, которая в дальнейшем преобразуется, поступает в теплоноситель и нагревает отопительные радиаторы. В этой статье мы расскажем как сделать котел отопления своими руками, как сварить котел для отопления частного дома, а также предоставим чертежи и фото инструкции.
Виды отопительных котлов
Котлы, работающие на газу
Перед началом самостоятельного изготовления котла, необходимо определиться с его видом, который зависит от типа топлива, нагреваемого тепловой носитель. При желании можно соорудить котел, работающий от любого топлива. Найти необходимую информацию можно на ресурсах интернета. Однако прежде чем сделать выбор, стоит иметь представление о преимуществах и недостатках самых известных из них.
- Котлы для отопления, работающие на газу. Данный вид не стоит пытаться изготовить своими руками, так как к ним предъявляется очень много требований, которые вы вряд ли сможете удовлетворить. Ну и не менее важная причина – это высокая вероятность взрыва в ходе эксплуатации. Монтаж газового котла запрещен в подвальном помещении дома.
- Для изготовления электрического котла вам не потребуется профессиональных навыков и наличия множества материалов. Нельзя не отметить огромный недостаток – высокие цены на электрическую энергию. Это является идеальным вариантом для периодического обогрева домика на даче, но для постоянного использования электрический котел очень дорог.
- Котел с жидким топливом вполне подходит для изготовления своими руками, но стоимость топлива и особенности настройки форсунок могут вызвать немалые сложности в ходе работ.
- Среди всех перечисленных вариантов самым оптимальным можно назвать котел, работающий на твердом топливе, в качестве которого можно успешно использовать дрова.
Котел для системы водяного отопления
Всем известно, что дрова имеют высокую скорость сгорания, а соответственно не успевают обогреть помещение до нужной температуры при первоначальном КПД. Для того чтобы оптимизировать этот процесс, стоит рассмотреть два способа самостоятельного сооружения котлов на твердом топливе.
Пиролизный вариант котла
Котел такого вида адаптирован под сжигание дров, его дополнительное название – газогенераторный котел. Суть его работы состоит в том, что сгорание дров и выходящих из них летучих веществ осуществляется отдельно. Благодаря пиролизному процессу таким котлам удается сохранять оптимальный температурный режим теплового носителя длительностью от 6 до 12 часов, не подкладывая дрова.
Принцип работы пиролизного котла Работа пиролизного котла не может осуществляться без электрической энергии, которая обеспечивает работу вентилятора поддерживающего процесс горения принудительным способом.
Размеры таких конструкций составляют 1,5×0,75×1,7 м. Объем емкости для воды – 500 литров с обеспечиваемой мощностью 50 кВт. Габариты установки могут варьироваться исходя из индивидуальных потребностей.
Как правило, для самостоятельного изготовления конструкции вам потребуется стальной лист толщиной 4-6 мм, чугунный лист 1 см, труба из стали с толщиной стен 4 мм, электроды для сварки и сварочный аппарат. Также запаситесь центробежным вентилятором, колосниковой решеткой, совпадающей с размером камеры горения, автоматическое устройство для регулирования температурного режима, асбестовый лист и уплотнительный шнур.
По окончании процесса изготовления должна быть произведена обвязка котла отопления своими руками с соблюдением технологических требований.
Пеллетный тип котла
Принцип работы пеллетного котла
Этот вид котельной установки более автоматизирован и менее прихотлив в уходе в процессе эксплуатации. Пеллеты представляют собой гранулированную древесину, для изготовления которой используются опилки и стружка. Поскольку этот материал сыпучий, их подача в камеру для сгорания осуществляется автоматически с помощью шнека, или бункера.
Пеллеты У вас могут возникнуть трудности при изготовлении такого котла из-за отсутствия определенного электрического оборудования: электрического двигателя для обеспечения работы шнека, или бункерной заслонки.
Работа пеллетного котла выполняется таким способом, при котором отпадает необходимость в растопке или добавлении топлива. На это влияют габариты бункера. Благодаря принципу работы котельной установки можно контролировать количество выделяемого тепла, за счет количества подаваемых пеллет в топку.
Эти два вида котлов являются оптимальными для собственноручного изготовления. На каком из них останавливать свой выбор, решать вам. Это определяется многими факторами, главным из которых является необходимость в тепле и наличии определенного вида топлива, которое вы будете применять.
При любом варианте необходимо строго следовать технологии и соблюдать правила безопасности.
Видео
Посмотрите, как можно самостоятельно сделать котел длительного горения:
В этом видео демонстрируется твердотопливный котел шахтного типа с теплоаккумулятором:
Схемы и чертежи
Устройство печки медленного горения
Устройство пеллетного котла
Чертеж твердотопливного котла
Чертеж с размерами для создания твердотопливного котла
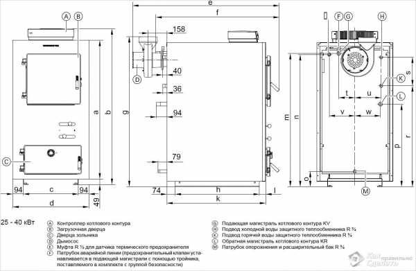
Чертеж пиролизного котла Viessmann на 25-40 кВт
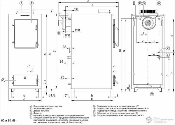
Viessmann на 65 и 80 кВт
Чертеж котла для самостоятельного изготовления
Печь медленного горения
Чертеж печи на отработке
Простой и безопасный банный котел
Фото
Сварочные работы при изготовлении котла
Изготовление котла в домашних условиях
Переделка сейфа в печку
Печь-камин с режимом тления до 8 часов
Печка медленного горения из газового баллона
Самодельная металлическая печь
Надёжный и экономичный твердотопливный котёл
Котел отопления на отработанном масле
Выполненный из бочки
Испытание самодельного котла длительного горения
Читайте также:
kakpravilnosdelat.ru
Самодельные котлы отопления на дровах длительного горения
Когда возникает проблема, связанная с организацией отопления загородного коттеджа большой площади или малогабаритного дачного домика, многие отдают предпочтение котлам, использующим в процессе работы твердое топливо. Преимущество его в том, что стоит оно сравнительно небольших денег. Например, столь популярные дрова вообще считаются самым дешевым вариантом топлива. Ориентируясь на этот факт, многие умельцы предпочитают собственными силами сделать котел, который бы работал на дровах, твердом топливе.
Основные преимущества твердотопливного котла считают:
- Полную автономность оборудования;
- Высокая эффективность обогрева при эксплуатационной простоте;
- Минимальные расходы на топливо;
- Экологическая чистота;
- Максимальный уровень безопасности.
Перед тем, как заняться самостоятельным конструированием котла, необходимо точно разобраться с требуемой моделью. Всего выделяют пару видов котлов
, в процессе работы нуждающихся в твердом топливе:- Пиролизное оборудование долгого горения;
- Классические котлы.
Различия устройств состоят в том, что процесс горения дровяного материала происходит по-разному. Классический котел подразумевает, что дрова закладываются в ту же камеру, где происходит процесс горения. Если возникает необходимость, то дрова добавляются в камеру.
Котел пиролизного типа обладает парой рабочих камер. В нижней камере нагреваются дрова, что приводит к выделению значительных количеств горючих газов. В верхней камере происходит сжигание этого газа, благодаря чему образуется много тепла. Такой подход приводит к тому, что КПД котлов пиролизного типа значительно выше, нежели у стандартных устройств.
К сожалению, пиролизные котлы очень привередливы к качеству используемого топлива, влажность которого не должна быть выше 20 процентов. Получается, что в доме постоянно должен иметься запас достаточно сухой древесины. Также имеются и требования к тому, какой должна быть температура теплоносителя, использующегося в котле.
Пиролизный котел способен значительно дольше стандартной модели поддерживать требуемый температурный режим. Если конструкция устройства соответствует эталону, то одной закладки хватит для полноценной работы в течение 24 часов. Процесс сжигания газа предполагает выделение ощутимо меньшего количества вредных веществ. Чистка оборудования от золы и сажи будет происходить ощутимо реже. Наконец, дровяные котлы позволяют хозяевам корректировать процесс горения, а, как результат, и температуру внутри комнат.
Делаем котел самостоятельно
Сделать котел своими руками можно, используя следующие материалы:
- Трубы из 4-миллиметровой стали;
- Стальные листы на 4 миллиметра;
- Профильные трубы;
- Пруты с сечением 2 сантиметра;
- Электроды;
- Вентилятор, создающий тягу;
- Шамотные кирпичи;
- Автоматические устройства, способные осуществлять регулировку температуры;
- Детали для крепления.
Процесс сборки необходимо вести в полном соответствии с чертежами. Считается, что наиболее удачная схема самодельного котла была создана инженером Беляевым. Именно эта схему стоит считать основой, внося в нее некоторые корректировки. К примеру, увеличить эффективность отопления можно, если сделать рубашку теплообменника более объемной.
Самодельный котел необходимо установить на заранее оборудованной площадке, после чего соединить с водяным контуром. Первое включение устройство должно носить тестовый характер. Если ошибок не допущено, то котел сможет быстро перейти в режим газогенератора. В течение 30 минут в помещении будет становиться ощутимо теплее.
Следует отметить, что в завершении вся конструкция может быть облицована строительным кирпичом, что позволит ей выглядеть более привлекательно. На технических характеристиках котла такое вмешательство в конструкцию никакого отражения не найдет.
dearhouse.ru













