Как сделать пиролизный котел своими руками – чертежи и схемы. Как сделать пиролизный котел своими руками видео чертежи
Пиролизный котел своими руками
В регионах, отдалённых от централизованного отопления, раньше каждый дом оборудовался твердотопливным котлом. Топили его углём и дровами. К сожалению, такая конструкция не была лишена недостатков. Основным являлось неудобство при использовании.
Внимание! Довольно часто люди устанавливают электрические отопительные приборы, но стоит признать, что отапливать с их помощью дом — довольно затратное предприятие.
К счастью, есть достойная альтернатива в виде пиролизного котла, который можно сделать своими руками. Основные схемы и чертежи будут представлены в этой статье. Устройства такого класса могут вырабатывать тепло за счёт сжигания дров или специальных брикетов. Мало того, можно использовать отходы с деревообрабатывающих фабрик.
Что собой представляет пиролизный котёл
Как работает

Со схем и чертежей пиролизной отопительной системы можно понять основные принципы её работы. Но чтобы создать это устройство своими руками, в нём необходимо разобраться более подробно.
Процесс, который происходит внутри пиролизного котла, сделанного своими руками по чертежам и схемам, представленным в статье, функционирует благодаря сухой перегонке. Когда температура достигает 500-600 градусов по Цельсию — начинается процесс разложения. Его результатом являются два вещества — газ и природный кокс.
Созданный внутри конструкции газ смешивается с атомами кислорода. Благодаря этому начинается горение. Конечно же, чтобы всё прошло по схеме — внутри камеры, сделанной своими руками по чертежам и схемам, должна быть соответствующая температура.
Пиролизный газ, создаваемый в котле, сделанном своими руками, вступает во взаимодействие с углеродом. Это, в свою очередь, запускает реакцию. Но чтобы это стало возможным устройство должно быть сделано чётко по чертежам и схемам.

Результатом пиролизного процесса, который происходит в котле длительного горения, сделанном своими руками по популярным чертежам и схемам, образуется дым, но он не содержит каких-либо вредных соединений. Поэтом вред, наносимый, окружающей среде минимален.
Важным достоинством пиролизного котла, сделанного своими руками по чертежам и схемам, является то, что он практически не вырабатывает отходов. При этом выделяется немалое количество тепловой энергии, благодаря которой можно отопить немалую площадь.
Пиролизный процесс относится к классу экзотермических. В общем, так называются все процессы, в результате которых происходит высвобождение тепла. Но не всё так просто. Дело в том, что это тепло необходимо для того, чтобы осуществить дополнительный прогрев и сушку топлива.
Преимущества и недостатки

К плюсам пиролизных котлов, сделанных своими руками, можно причислить:
- Поддержание заданной температуры теплоносителя на протяжении длительного периода.
- Большой объём загрузочной камеры.
- Высокий КПД.
- Возможность утилизации отходов деревообрабатывающей промышленности в пиролизном котле, сделанном по чертежам.
Тем не менее, чтобы пиролизный котёл, сделанный своими руками, работал как нужно необходимо, чтобы в топливе было не более 30 процентов дополнительных компонентов.
Любая конструкция имеет свои недостатки, в данном случае к ним можно причислить:
- большие габариты,
- зависимость от наличия сети,
- требовательность к топливу.
Также к недостаткам пиролизной системы можно причислить высокую стоимость покупки. Но её можно значительно снизить, если создать устройство своими руками по чертежам и схемам.
В пиролизный котёл, сделанный своими руками по схемам и чертежам нельзя класть непросушенную древесину. Дело в том, что при высокой влажности пиролизной реакции не происходит. Даже при малом проценте резко падает КПД. Это происходит потому, что тепловая энергия превращается в пар.
Необходимость подключения к сети объясняется тем, что устройство должно иметь вентилятор. Именно он позволяет обеспечить принудительную тягу пиролизному котлу, сделанному своими руками по чертежам и схемам.
Создаём пиролизный котёл
Разбор схем и чертежей

Чтобы создать пиролизный котёл своими руками, важно тщательно изучить схемы и чертежи. Именно по ним вы сможете подобрать конструкцию и максимально точно определить количество нужных для строительства материалов.

На схеме и чертеже пиролизного котла отображены основные элементы, без которых невозможно построить конструкцию своими руками:
- регуляторы,
- дымовые каналы,
- отверстия для воздуха,
- трубы для подачи воды,
- трубы для отвода воды,
- камера сгорания,
- вентилятор.
Очень важно при изготовлении пиролизного котла своими руками придерживаться чертежей и схем. Дело в том, что это сложное устройство, в котором будут происходить высокотемпературные процессы. Поэтому малейшая ошибка может обратиться аварийной ситуацией.

Для частного дома будет достаточно пиролизного котла, мощность которого составляет 40 кВт. Не стоит стремиться к большой мощности. Дело в том, что в таком случае конструкция становится значительно сложнее. Мало того, конечная стоимость также увеличивается.
Выбор мощности пиролизного котла, который вы собираетесь создать, влияет на размер ключевых деталей на чертеже или схеме. От правильного подбора размеров зависит нормальное функционирование устройства.
Совет! Если вы владелец маленького домика, то можно остановить свой выбор на котле с мощностью в 30 кВт. Этого будет более чем достаточно.
Инструменты, необходимые для изготовления котла своими руками

Чтобы своими руками сделать конструкцию, работающую на основе пиролизной реакции по чертежам и схемам, необходимо запастись некоторым инвентарём. Для воплощения задумки в жизнь, вам понадобятся следующие материалы и инструменты:
- болгарка,
- сварочный аппарат,
- шлифовальные круги,
- электрическая дрель,
- электроды,
- трубы различного диаметра,
- полосы стали,
- термодатчик,
- вентилятор,
- металлические листы.
Это базовый набор, который необходим, чтобы создать пиролизную систему своими руками по схемам и чертежам. Конечно же, в процессе работы может возникнуть необходимость в дополнительных инструментах и материалах.
Внимание! Толщина стали для корпуса должна быть 3 мм, а лучше 4.
Тонкости сборки

После того как вы выберите подходящую схему, можно будет приступить к сборке. При этом необходимо придерживаться следующих рекомендаций:
- Отверстие, через которое в топку будут попадать дрова и брикеты должно располагаться немного выше, чем у обычных твердотопливных конструкций.
- Не забудьте про ограничитель. Его главная задача — это контролировать количество воздуха. Для его создания нужна семидесятимиллиметровая труба в сечении. Её длина должна быть больше корпуса.
- К ограничителю приваривается диск. Элемент должен быть выполнен из стали. Место приваривания — низ конструкции. В результате у вас получится зазор в 40 мм. Чтобы установка ограничителя стала возможной необходимо сделать дырки в соответствующих местах крышки.
- Лучшей формой для отверстия, через которое будут загружаться дрова является прямоугольник. При этом важно не забыть о дверце. Она должна иметь специальную накладку для лучшей фиксации.
- Также в конструкции необходимо предусмотреть отверстие, через которое будет удаляться зола.
- Трубу для теплоносителя нужно сделать с изгибом. Это позволит повысить отдачу тепла.
Ещё одним важным элементом согласно любой схеме и чертежу является вентиль. С его помощью вы сможете контролировать количество теплоносителя, поступающего внутрь. Поэтому лучше всего расположить его в удобном и легкодоступном месте. Сам алгоритм создания пиролизного котла своими руками по чертежам вы можете увидеть на видео внизу.
После сборки огромное значение имеет первый запуск. Лишь после того, как вы убедитесь, что в продуктах горения нет угарного газа, можно будет утверждать, что всё сделано правильно. Для этого лучше использовать специальное оборудование.

Итоги
Создать котёл, работающий на основе принципа пиролиза можно своими руками. Но перед тем как начать работу необходимо написать проект. Основную роль в нём будет играть рисунок со схемой изделия и размерами.
bouw.ru
чертежи схемы; как сделать его из кирпича на естественной тяге, пошаговая инструкция
Прежде всего, чтобы сконструировать пиролизный котел своими руками, подбирается подходящая схема и чертеж.

Рассмотрим три основных способа изготовления из различных материалов:
- Из бочки или стального листа в виде цилиндра.
- Из прочной стали в кубической форме, используя схему Беляева,
- Из кирпича в виде печи. Прежде чем выбрать тот вид котла, который вы будете создавать, рассмотрите все чертежи и схемы, а также инструкции по сборке.
Каждый тип самодельного оборудования длительного горения обладает своими преимуществами и недостатками. Из бочки получится компактная конструкция для гаража, а кирпичная печь сможет обогреть весь дом, значительно экономя топливо.
Пиролизный котел из бочки
Нам потребуется 200 литровая металлическая бочка. Можно взять готовую, а можно изогнуть и сварить лист стали толщиной 3-4 мм. Срезаем у нее верхний торец и делаем из него крышку, приварив по окружности полоску металла. По центру высверливаем отверстие под воздуховодную трубу. Сбоку в верхней части бочки сверлим отверстие под дымоход и ввариваем в него дымоходный патрубок.
Следующим делаем поршень. Он представляет собой круг, по диаметру несколько меньший крышки бочки, чтобы он мог в нее поместиться. По центру сверлиться отверстие и к нему приваривается воздуховодная труба, по которой кислород будет поступать в топку.
Пиролизный котел из бочки
В верхней части делаем заслонку, которая будет регулировать количество поступающего внутрь воздуха. Для этого сверлим сквозное отверстие, вставляем в него плотный штырь и привариваем внутри к нему небольшую пластину. Вращая его, мы меняем площадь отверстия.
Снизу стальной лист необходимо утяжелить, чтобы при сгорании поршень под своей тяжестью опускался и измельчал сгоревшее топливо. Важно, чтобы все сварочные швы были герметичны. Если этого не будет, котел не сможет работать достаточно эффективно.
Пользоваться таким самодельным котлом просто. На дно засыпается топливо и поджигается. Когда оно достаточно разгорится, сверху устанавливается поршень и закрывается крышка. По мере горения, поршень постепенно будет опускаться.
Под ним будет происходить процесс тления, а сверху него будут сгорать выделяемые газы. Такая конструкция еще называется пиролизной головкой и может работать на дровах или смежных видах топлива из древесных отходов.
Котел по схеме Беляева
Нам понадобятся следующие материалы:
- Около 10 квадратных метров металлического листа толщиной 4-5 мм.
- 8 метров стальной трубы, диаметром 57 мм с толщиной стенки 3,5 мм.
- По одному метру трубы диаметром 159 мм и 32 мм.
- 15 штук шамотного кирпича.
- Вентилятор дутьевой.
Дутьевой вентилятор на пиролизном котле - Стальные полосы, шириной 20, 30 и 80 мм.
Из основных инструментов нужны будут болгарка, дрель и сварочный аппарат.
Пошаговая инструкция сборки пиролизника:
- Собирается две камеры сгорания. Топка, в которой будет сгорать древесина и газовая, где горят выделяемые газы.
- К ним приваривается задняя стенка и воздухоотводы из швеллера или профтрубы с просверленными отверстиями.
- В топке делается отверстие и вваривается патрубок, через который будет поступать внутрь кислород.
- Следующим изготовляется теплообменник. Для этого берем две пластины металла и просверливаем в них симметричные отверстия под трубу сечением 57 мм.
Труба режется на куски одинаковой длины, и они ввариваются в заготовки. Далее он приваривается к котлу.
- Перед тем, как сделать и приварить лицевую стенку на камеры сгорания, в ней производятся два отверстия. Они будут предназначены для труб входящего и выходящего воздуха.
Схема пиролизного котла - Приваривается боров и крышка перед заслонкой. Все сварочные швы важно зачистить болгаркой.
- Сверху всю конструкцию обшиваем листом шириной 4 мм с уголками. Верхнюю часть дополнительно утепляем. После этого проверяем короб на герметичность. Сделать это можно с помощью воды. Если герметичности не будет, КПД котла значительно уменьшится.
- Из чугунных пластин делаются дверцы для камер сгорания. Привариваются петли и они устанавливаются. Сверху ставятся защелки.
- Нижнюю камеру выкладываем кирпичами, предварительно порезав их по необходимым размерам. Так как их не будет видно, не обязательно покупать новые. Можно найти бесплатно возле любого разрушенного здания.
- Устанавливается нагнетающий вентилятор на выход воздуховодной трубы.
Также такую конструкцию можно сделать из КСТ котла, применив его в качестве корпуса.
Кирпичный пиролизный котел
В своем доме можно построить печь, которая будет работать по принципу пиролиза. Она монтируются в одну из стен. Дымоход выводится на крышу, продукты сгорания выводятся на естественной тяге. Камеры сгорания делаются стальными, колосник чугунный, корпус из кирпичной кладки. Во всем остальном устройство принципиально ничем не отличается.
Схема пиролизного котла из кирпича
По периметру конструкция выкладывается керамическим кирпичом, внутренние перестенки делаются из шамотного кирпича. Важно кладку производить очень качественно, так кА от этого будет зависеть производительность печи.
В заключение предлагаем посмотреть видео о том, как сделать пиролизный котел своими руками из газового баллона:
boilervdom.ru
Делаем сами пиролизный котел по чертежам и видео
С этого момента для организации качественного обогрева помещения не обязательно выкладывать кругленькую сумму на дорогостоящий твердотопливный аппарат. Мы научим вас, как сделать пиролизный котел своими руками. Достаточно уметь читать, понимать схемы и грамотно обращаться с инструментом, чтобы постигнуть такой одновременно сложный и легкий процесс.

Принцип действия
Топка пиролизного котла состоит из двух отсеков. Первый представляет собой камеру для перегорания дров при малой концентрации кислорода. Второй отсек – камера сгорания газов, выделяющихся с верхнего отсека. Такая структура способствует минимальному отводу тепла. Отсеки отделены друг от друга колосьями, на которые ложатся брикеты.

Заложенные дрова, сгорая при минимальном количестве кислорода, образуют газ, который смешивается со вторичным воздухом. Попадая в теплообменник, такая смесь отдает тепло рабочему телу. Поскольку камеры пиролизного котла отделаны огнеупорным материалом, в рабочих отделах температура повышается максимально.

Более подробно с принципом работы пиролизного котла можно ознакомиться на видео.
Материалы для создания газогенераторного котла своими руками
Перед началом сборки газогенераторного котла рекомендуем обналичить следующий список товаров:
- Стальной лист толщиной 4мм;
- Стальная труба такой же толщины;
- Профильная труба;
- Электроды;
- Автоматика терморегулирующая;
- Шнур асбестовый;
- Прут круглый 20мм;
- Кирпич штамповочный;
- Гайки и болты;
В некоторых случаях перечень может быть несколько изменен или дополнен, но база остается прежней.

Газогенераторный котел своими руками: чертежи и видео
Сборка пиролизного котла невозможна без точного чертежа. Любая ошибка в просчетах может значительно ухудшить конечный результат. Если же действовать согласно готовой схеме, готовый продукт получиться не хуже фирменного.
На грамотном чертеже должен быть обозначен теплообменник, отсек для топки и участок подачи воды. Неплохой вариант – применение схемы Беляева для отопительной системы на 40 кВт. Этот чертеж необходимо лишь немного изменить, переделав его на лазерную резку для меньшего количества деталей. При этом внутренняя коробка должна остаться прежней. Газогенераторная система не предусматривает промерзаний и утечек, поэтому трубы могут быть не полностью герметичны.

После сборки котла согласно чертежу можете приступать к установке. При условии выполнения всех элементов схемы аппарат выйдет на нормальный режим уже через 20-30 минут. В сравнении с остальными видами котлов, этот имеет высокий КПД и способность поддерживать высокий уровень температуры более длительное время. Благодаря полному сгоранию и дров и газа на стенках камер не скапливается зола.
house-dacha.ru
Пиролизный котел своими руками: принцип работы, видео-уроки
Главная » Отопление » Как сделать котел пиролизного горения — видео уроки
На значительной территории России дрова по-прежнему самый доступный вид топлива и многие отапливаются дровяными котлами. Все бы ничего, но в обычных твердотопливных котлах закладка прогорает за 2-3 часа, что совсем неудобно — дом надолго не оставишь. Есть котлы длительного горения. В них одна закладка дров может гореть до 8-10 часов, но стоят они солидных денег. Однако, как обычно, выход есть — сделать пиролизный котел своими руками. Не сказать, что это простая работа — навыки сварки должны быть на высоком уровне, да и материалы стоят немало. Тем не менее, самодельных пиролизников много.
Принцип работы пиролизного котла
Содержание статьи
Применительно к отопительным котлам пиролизом называется горение топлива при недостаточном количестве кислорода. При этом топливо выделяет большое количество газов, практически все из них горючие. Эти газы направляются в специальную камеру сгорания и дожига, куда подается вторичный воздух. Газовоздушная смесь вспыхивает, выделяя большое количество тепла. Тепловой энергии выделяется намного больше, чем можно извлечь при обычном горении дров или угля. Дело в том, что многие из образовавшихся при горении топлива летучих веществ, имеют очень высокую температуру сгорания. В результате, из того же количества топлива, пиролизные котлы извлекают больше тепла.
Из-за особенностей процесса горения (выделения большого количества газов) такие установки называют еще газогенераторными котлами.
Конструктивная особенность пиролизных котлов — топка, состоящая из двух камер. В одну закладывается топливо (часто это верхняя часть топки), в ней же происходит выделение газов, и потому эта часть называется камерой газогенарации. Через неширокую горловину газы попадают во вторую камеру — дожига. Тут перемешиваются с вторичным воздухом, вспыхивают и сгорают практически без остатка.

Пиролизный котел с нижней камерой дожига
В среднем КПД пиролизников — выше 85%. Есть модели, способные выдавать 92% и даже немного больше. Но данные показатели возможны только и исключительно при использовании сухого топлива. Его влажность должна быть 5-8%. При 40% содержании влаги горение может полностью затухнуть, а при 20% просто буде неэффективным. И это — один из главных недостатков этой технологии: дрова и уголь приходится предварительно сушить, например, сделав площадку возле дымовой трубы. Просто дрова, просушенные в дровнике не пойдут, как и уголь, взятый из кучи на улице.
В видео продемонстрирован котел, в котором камера дожига находится вверху. Хотя котлы такого типа имеют более простое строение (образовавшиеся газы сами поднимаются вверх), самодельщики предпочитают камеру с нижним располодением камеры дожига (как на фото выше).
На что обратить внимание при изготовлении
Если вы собираетесь делать пиролизный котел своими руками, вам надо четко представлять не только механизм и принцип его работы, но и учитывать все неприятные моменты, которыми данные агрегаты обладают. В первую очередь необходимо сказать о том, что практически все пиролизные газы ядовиты. То есть, агрегат должен быть полностью герметичным, сварные швы должны быть высшего качества.
Кроме того, для обеспечения безопасности необходима система контроля за процессом горения (датчики температуры, дыма, наличия тяги) и автоматика, которая в зависимости от показаний датчиков регулирует процессы горения. Если самодельный пиролизный котел собираетесь делать на естественной тяге, автоматика может быть простейшей — энергонезависимой. При наличии вентилятора наддува для подачи воздуха в току, нужны уже более серьезные (и дорогие) устройства, а они питаются от сети 220 В. Работа котла такого типа без автоматики опасна, потому необходим источник бесперебойного питания, который обеспечит работу вентилятора и автоматики на 10-12 часов — время прогорания закладки.

Примерная компоновка пиролизного котла
Второй момент. В некоторых моделях пиролизников температура в активной фазе достигает 1000°C и выше. Обычная конструкционная сталь при таких условиях быстро прогорит. Чтобы котел существовал долго, необходима жаростойкая сталь и внутренняя футеровка самых термонагруженных частей. Если пиролизный котел делают своими руками, футеровку чаще всего делают из шамотного кирпича. В рабочей фазе шамот разогревается до малинового свечения и становится очень хрупким. Если, вдруг, вам придется в это время орудовать в печи, будьте аккуратны — повредить футеровку в данный момент легко, а ремонтировать — долго и сложно.
Сколько будут стоить материалы и запчасти
Сколько точно будет стоить пиролизный котел, сделанный своими руками, зависит от требуемой мощности и выбранной конструкции. Однако, если покупать жаростойкую сталь, колосники, делать футеровку, ставить автоматику (пусть и недорогую), сумма набегает 850-1200$. Это затраты на материалы и компоненты, но с самостоятельной сваркой. Они озвучены теми, кто уже пиролизник сварил и использует. Если за сварку придется платить, то расходы надо удвоить.
Как видим, в случае владения сваркой, экономия есть, но далеко не самая большая. Можно найти готовые варианты твердотопливный пиролизных котлов за 1500$. Хотя, как известно, дешевый товар имеет низкую цену не просто так. На чем-то там сэкономили. И даже можно предположить на чем: на футеровке. Именно секреты предохранения стенок топки от перегорания берегут производители больше всего, и тратят на исследования в этой области большие деньги. Потому качественное оборудование и стоит больших денег.
Видео-проект пиролизного кола, процесс сборки
<
stroychik.ru
Пиролизный котел своими руками - особенности конструкции и ее изготовление (+схемы)
К сожалению, такое благо как природный газ, пока доступно не всем. Очень многие населенные пункты не газифицированы. В такой ситуации для отопления своих домов люди используют котлы на электричестве или твердом топливе. Первые дорогостоящие из-за высокой стоимости электричества. Недостатком вторых является очень низкий коэффициент полезного действия: почти половина тепла «уходит» в атмосферу. Увеличить полезное действие и сэкономить тепло поможет процесс пиролиза. Котлы, которые работают по этому принципу, так и называются пиролизными. Поскольку промышленные образцы стоят достаточно дорого, то люди, имеющие профессию сварщика, разбирающиеся в чертежах и умеющие работать с инструментами, предпочитают изготовить пиролизный котел своими руками.
Принцип работы

Пиролизный котел по своей сути – это твердотопливный отопительный прибор. Он может работать на дровах, угле, брикетах или пилетах. Для каждой разновидности топлива делают свои расчеты.
Общий принцип работы состоит в том, что все топливо сгорает при ограниченном доступе воздуха. Его подают ровно столько, сколько потребуется для минимального горения с выделением газа, в котором присутствуют летучие углеводороды и угарный газ. Полученный таким способом газ попадает в другую камеру, смешивается с воздухом и сгорает там, выделяя колоссальное количество тепла. За счет такого способа сжигания топлива практически нет золы и выбросов в атмосферу, а нагрев теплоносителя длится до двух суток на одной загрузке.
Составляющие конструкции

Устройство пиролизного котла состоит из:
- отделения для загрузки топлива – топки, с дверцей;
- камеры повторного сгорания – в ней горит выделяемый топливом газ;
- поддувала, в котором накапливается зола;
- нижней дверки, которая закрывает камеру горения газа и поддувало;
- форсунки, через которую газ попадает в камеру сгорания;
- дымохода для отвода продуктов горения с заслонкой для регулирования горения;
- вентилятора, который подает воздух в камеру повторного горения;
- колосников;
- заслонки для подачи воздуха в топку;
- отверстия для прочистки нагара в котле;
- слив воды из котла;
- труб выхода на подачу и обратку системы отопления;
- тепловой изоляции корпуса котла;
- аппаратуры безопасности, в которую входят датчики тяги, манометр, термодатчик.
Последовательность работ

Перед тем как приступить к работам по изготовлению котла следует продумать, как сделать все правильно. Начинают обычно с выполнения расчетов, без них невозможно составление схемы сборки. Надо сказать, что ошибки на этапе расчетов потом могут обернуться неправильной работой котла, так же неправильно сделанный агрегат может быть опасным. Если сделать расчеты и чертеж самому не получится, то можно заказать эту работу специалистам.
По чертежу изготавливаются металлические заготовки котла. Для этого понадобится металл толщиной 5 мм для внутренней конструкции и 3 мм для обшивки корпуса. Также нужны трубы, в которых будет циркулировать нагретый воздух, ведь за счет этого нагревается теплоноситель. Еще понадобится дымовая труба, заслонки, дверцы, уплотнители из стекловолокна, вентилятор. Все это можно купить в магазине.

Для термоизоляции камеры повторного сгорания следует приобрести шамотный кирпич. Изоляцию корпуса котла выполняют из материалов, которые хорошо держат тепло и фольгированной пленки.
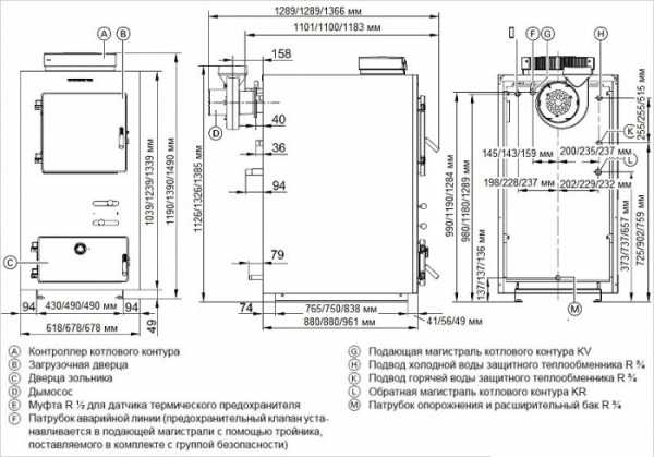
На примере рассмотрим изготовление котла на 25 кВт. Из металла вырезаем заготовки таких размеров:
- Наружные стенки корпуса котла: передняя и задняя размерами 1039×618 мм, боковые размером 1039×880 мм, верх и низ размерами 880×618 мм.
- В передней наружной стенке котла делаем прямоугольные отверстия для топочной и зольника, которые располагаются по центру. Размеры топочной дверцы 400×400 мм, само топочное отверстие 350×350 мм. Размеры дверцы делают больше, т. к. необходимо предусмотреть место для паза, в который будет заложен уплотнитель. Чтобы упростить себе жизнь, можно приобрести готовую дверь нужного размера. Располагают отверстие на расстоянии 108 мм от верха заготовки. Наружные размеры дверцы зольника 400×200 мм, размеры отверстия 350×150 мм. Располагают отверстие на расстоянии 88 мм от низа заготовки. Также на передней стенке котла предусмотрено прямоугольное отверстие для забора воздуха и овальные отверстия для ручек заслонок, регулирующих подачу воздуха в камеру дожига и топочную.
- В задней наружной стенке котла делают отверстие для дымохода, который располагают по центру. Его размер зависит от диаметра трубы дымохода. Перед началом работ по сборке котла ее приобретают уже готовой в сборе с заслонкой.
- На задней стенке по горизонтали на расстоянии 202 мм от центра и по вертикали, на расстоянии 373 мм делают отверстия для обратки теплоносителя в систему отопления. Его размеры зависят от диаметра существующей системы отопления.
- Предусматривают также выходы для поступления холодной воды в котел и для подвода горячей воды защитного теплообменника. Диаметр выходов этих труб 3/4 дюйма. Располагают их по горизонтали на расстоянии 200 мм от центра. По вертикали подвод горячей воды располагают на расстоянии 725 мм от чистого пола. Расстояние между подводом холодной и горячей воды 255 мм. Так же по горизонтали на расстоянии 145 мм от центра и по вертикали на расстоянии 990 мм вырезают отверстия для подачи, при этом предусматривают размещение патрубка для группы безопасности.
- По горизонтали на расстоянии 198 мм от центра и по вертикали на расстоянии 980 мм вырезают полдюймовое отверстие для муфты датчика термического предохранителя. Внизу заготовки на расстоянии 137 мм от чистого пола по центру делают отверстие для патрубка опорожнения и расширительного бачка диаметром ¾.
- В заготовке для верха котла делают отверстия для выхода контроллера котлового контура. Размеры стандартные, т. к. его приобретают в готовом виде до сборки котла. Общая высота котла от чистого пола до верха контроллера должна быть 1190 мм.
- Вырезают из металлического профиля П-образные ножки для котла длиной 765 мм.
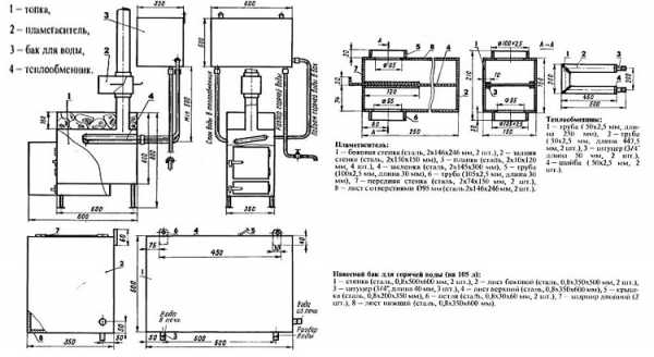
- Из металлического листа толщиной 5 мм вырезают внутренности котла размерами (ш×г×в): топочную 468×780×346 мм, камеру дожига 468×780×256 мм, зольник 468×780×250 мм. Верхнюю заготовку топочной делают длиннее для приваривания труб теплообменника. Соответственно предусматривают место для отверстий. То же предусматривают и в нижней заготовке зольника.
- В нижней заготовке топочного отделения вырезают прямоугольное отверстие для форсунки 130×200 мм.
- Трубы диаметром 50 мм для теплообменника нарезают длиной 730 мм, количеством 4 шт.
- Нарезают отрезки труб для подвода подачи, обратки, горячей и холодной воды. Диаметры труб подбираются в соответствии с п. 1, а длина указана на схеме.

Разрезанные по размерам детали при помощи дуговой сварки соединяют в единую конструкцию в соответствии со схемой.
Отверстия для труб вырезают лобзиком (котел ведь собирается в домашних условиях). Крепят дымоход с задвижкой. Его крайняя точка должна быть на 1289 мм удалена от края ручки дверцы топочной. От края воронки дымососа до той же ручки должно быть 1101 мм. Внутреннюю часть камеры сгорания газа обмуровывают кирпичом. Также изолируют и дверцу камеры.

Когда металлические части внутренней конструкции собраны на распорках приваривают внешний корпус. Распорки нужны для того, чтобы избежать деформации металла. К готовому котлу крепят дверцы, автоматику и все, что необходимо по схеме и в соответствии с размерами, указанными в ней. Ножки котла располагают на расстоянии 41 мм от переднего внешнего края котла. Расстояние между ними по ширине должно составлять 430 мм. Готовый котел оборачивают термоизоляцией и надевают декоративный корпус.
Некоторые нюансы

Если все правильно рассчитано и собрано, то дыма из трубы практически не будет. Есть еще некоторые нюансы:
- Размеры котла зависят от его мощности.
- Топку самодельного котла делают немного выше, чем у промышленных котлов.
- Конфигурацию топочного бункера лучше делать прямоугольной.
- Для контроля количества топлива и воздуха необходимо сделать ограничитель. Его изготавливают из трубы диаметром 76 мм и длиной чуть больше котла. К нижней части ограничителя приваривают диск, который имеет четырех сантиметровый зазор со стенками трубы, а в крышке котла для него делают отверстие.
- Труба с теплоносителем делается с изгибом для большей отдачи тепла.
- Количество теплоносителя, поступающего в котел, регулируют вентилем, установленным снаружи котла.

Итак, пиролизный котел готов. Может быть, у вас есть личный опыт в изготовлении такого устройства для обогрева дома. Что ж, будем благодарны вам за ценные указания, изложенные в комментариях к статье.
Может быть, вам будет интересно ознакомиться с сопутствующими материалами нашего сайта:
Видео
Как сделать пиролизный котел 15–25 кВт? Об этом вы можете узнать, просмотрев видео:
Схемы
Благодаря схемам, вы лучше сможете понять, как работает пиролизный котел и в чем его преимущества перед аналогами:





infoaqua.ru
Пиролизные котлы длительного горения своими руками: чертежи, видео
Владельцы домов предпочитают изготавливать пиролизные котлы своими руками, так как заводской вариант стоит довольно дорого. Котел длительного горения значительно превосходит по эффективности дровяные печи, и не вызывает температурных перепадов. Изготовить самостоятельно устройство не так просто, однако чертежи, видео и фото значительно упрощают задачу.
Пиролизный котел своими руками: принцип работы
Пиролизная печь – это сложное устройство, для работы которого в качестве топлива требуются дрова, брикеты или отходы кусковой древесины. Однако самым ценным веществом для эффективной работы котла является не горящие дрова, а пиролизный газ. В котле, изготовленном своими руками, идет скорее не горение, а медленное тление топлива, в результате образуется газ и древесный кокс. Учитывая принцип работы котла, часто используется другое название – газогенератор.
На фото пиролизная печь
Пиролиз – это сложный термический процесс разложения сухого топлива на составляющие. Этот процесс проходит в первой камере котла. Важный аспект для образования газа – это низкое содержание кислорода, иначе пиролиз не начнется. В традиционных печах пиролизный газ свободно выводится через дымоход. Во время пиролиза древесины, кроме газа, выделяется огромное количество горючих веществ, а именно:
- смола;
- ацетон;
- древесный уголь;
- метиловый спирт.
Как известно, все перечисленные вещества отлично горят и выделяют большое количество энергии при разрушении огнем. Это происходит в специальной камере, где газ смешивается с кислородом и при очень высокой температуре начинается процесс горения смеси.
Важная особенность пиролизного котла – наличие принудительной тяги. Это достигается при использовании дымососа или верхнего вентилятора. Направление тяги – сверху вниз. Проходя через множество дымовых каналов, горячий газ нагревает воду, которая используется для обогрева здания.
Как сделать пиролизный котел в домашних условиях, видео
Для изготовления пиролизного котла своими руками необходимы различные инструменты и расходные материалы, а именно:
- Электродуговая сварка.
- Дрель и болгарка.
- Отрезные и шлифовальные круги.
- Стандартный слесарный инструмент.
Из основных материалов необходимо купить листовой металл толщиной от 4 мм, металлические трубы диаметром 6 см, огнеупорный кирпич, вентилятор и датчик температуры. Размеры котла следует определить заранее и чем он больше, тем большее помещение можно отопить. Чтобы избежать ошибок при проектировании, опытные мастера используют проверенные, готовые чертежи.
Чертеж пиролизного котла для изготовления своими руками:



Видео об изготовлении пиролизного котла длительного горения:
Решили для экономии денег изготовить пиролизные котлы длительного горения своими руками? Это непростая задача, и справится с ней далеко не каждый человек. Чертежи и видео значительно упростят эту задачу. Стоит внимательно изучить устройство пиролизной печи и принцип ее работы, чтобы сделать все правильно. Только в этом случае процесс газогенерации будет протекать верно.
thewalls.ru
Пиролизные котлы длительного горения своими руками: чертежи, видео
Владельцы домов предпочитают изготавливать пиролизные котлы своими руками, так как заводской вариант стоит довольно дорого. Котел длительного горения значительно превосходит по эффективности дровяные печи, и не вызывает температурных перепадов. Изготовить самостоятельно устройство не так просто, однако чертежи, видео и фото значительно упрощают задачу.
Пиролизный котел своими руками: принцип работы
Пиролизная печь – это сложное устройство, для работы которого в качестве топлива требуются дрова, брикеты или отходы кусковой древесины. Однако самым ценным веществом для эффективной работы котла является не горящие дрова, а пиролизный газ. В котле, изготовленном своими руками, идет скорее не горение, а медленное тление топлива, в результате образуется газ и древесный кокс. Учитывая принцип работы котла, часто используется другое название – газогенератор.

На фото пиролизная печь
Пиролиз – это сложный термический процесс разложения сухого топлива на составляющие. Этот процесс проходит в первой камере котла. Важный аспект для образования газа – это низкое содержание кислорода, иначе пиролиз не начнется. В традиционных печах пиролизный газ свободно выводится через дымоход. Во время пиролиза древесины, кроме газа, выделяется огромное количество горючих веществ, а именно:
- смола;
- ацетон;
- древесный уголь;
- метиловый спирт.
Как известно, все перечисленные вещества отлично горят и выделяют большое количество энергии при разрушении огнем. Это происходит в специальной камере, где газ смешивается с кислородом и при очень высокой температуре начинается процесс горения смеси.
Важная особенность пиролизного котла – наличие принудительной тяги. Это достигается при использовании дымососа или верхнего вентилятора. Направление тяги – сверху вниз. Проходя через множество дымовых каналов, горячий газ нагревает воду, которая используется для обогрева здания.
Как сделать пиролизный котел в домашних условиях, видео
Для изготовления пиролизного котла своими руками необходимы различные инструменты и расходные материалы, а именно:
- Электродуговая сварка.
- Дрель и болгарка.
- Отрезные и шлифовальные круги.
- Стандартный слесарный инструмент.
Из основных материалов необходимо купить листовой металл толщиной от 4 мм, металлические трубы диаметром 6 см, огнеупорный кирпич, вентилятор и датчик температуры. Размеры котла следует определить заранее и чем он больше, тем большее помещение можно отопить. Чтобы избежать ошибок при проектировании, опытные мастера используют проверенные, готовые чертежи.
Чертеж пиролизного котла для изготовления своими руками:



Видео об изготовлении пиролизного котла длительного горения:
Решили для экономии денег изготовить пиролизные котлы длительного горения своими руками? Это непростая задача, и справится с ней далеко не каждый человек. Чертежи и видео значительно упростят эту задачу. Стоит внимательно изучить устройство пиролизной печи и принцип ее работы, чтобы сделать все правильно. Только в этом случае процесс газогенерации будет протекать верно.
remontick.ru













