Содержание
Как слить воду из системы водоснабжения на зиму
Автор Монтажник На чтение 9 мин Просмотров 18.1к.
Обновлено
Некоторые владельцы загородных домов и дач используют дома для жительства только в теплое время года, организуя соответствующее автономное водоснабжение из скважины или колодца. После окончания проживания с наступлением холодов перед многими домовладельцами встает вопрос — как слить воду из системы водоснабжения на зиму.
Освобождать от водных масс придется не только наружный и внутренний трубопровод, но и элементы автоматики электронасоса и насосное оборудование. Задача не столь проста из-за присутствия в доме большого количества сантехнических и бытовых электроприборов, работа которых связана с водопотреблением и остатки воды могут длительное время храниться в данных устройствах.
Рис. 1 Слив воды из дома в колодец – пример схемы как слить воду из системы водоснабжения на зиму
Содержание
- Когда и зачем необходимо сливать воду из водопроводной системы
- Как слить воду из системы водоснабжения на зиму — этапы работ
- Система водоснабжения летней дачи
- Центральный и автономный водопровод
- Консервация уличного водопровода
Когда и зачем необходимо сливать воду из водопроводной системы
Нахождение воды в водопроводных трубах может привести к неприятным последствиям в зимнее время при ее замерзании, связанном с общеизвестным физическим эффектом меньшей плотности льда и его расширении в сравнении с жидкостью на 10%.
Вторая причина, по которой следует сливать воду при длительном отсутствии хозяев — коррозия металлов, образующаяся при ее присутствии.
Угрозу повреждения, выхода из строя с финансовыми потерями, в случае нахождения в них воды зимой, представляют следующие объекты:
- В автономном водоснабжении водозабор в основном производится из скважинных и колодезных источников, при этом трубопровод обычно размещают под землей ниже глубины промерзания. Если труба находится выше глубины промерзания, то ее обязательно нужно обезвожить.
Рис. 2 Схема слива в кессоне для скважины - При водозаборе в напорном трубопроводе, погруженном в колодец или скважину, обычно всегда находится вода. Связано это с тем, что погружные насосы или всасывающий отрезок трубопровода поверхностной насосной станции часто оснащены обратным клапаном. У глубинного электронасоса он находится на выходе и часто встроен в конструкцию, у трубы станции — на конце ее всасывающего патрубка. Поэтому для освобождения отрезка напорного трубопровода от водных масс в конструкции используют различного вида инженерные решения или извлекают из источника всасывающий патрубок, электронасос.

- В покинутом зимой доме хозяева стараются поддерживать минимальный обогрев, иначе сильные морозы повредят внутреннюю отделку стен, потолков, напольного покрытия, мебель, бытовую технику, предметы обихода. Однако во избежание непредвиденных ситуаций воду из внутренней водопроводной системы на всякий случай сливают.
- Насосное оборудование и сам электронасос к зиме обычно демонтируют, при этом вода должна быть слита из всех узлов.
- В дачной бытовой (стиральная, посудомоечная машины) и водонагревательной технике при отсутствии эксплуатации находятся водные остатки, которые приводят от коррозии и могут вызвать повреждение агрегатов при замерзании.
- Также вода присутствует в гидрозатворах сантехнических приборов и ее желательно убрать.
Рис. 3 Вентильный слив в колодцах
Как слить воду из системы водоснабжения на зиму — этапы работ
Задачу, как правильно слить воду из системы водоснабжения на зиму, многие пользователи решают по-разному, если процедура не была ранее конструктивно предусмотрена, ее проведение усложняется.
Некоторые «интернет-специалисты» рекомендуют использовать продувку всей системы компрессором для откачки воды.
Данный совет вызывает большие сомнения в эффективности в связи с тем, что вода может находиться на дне труб и прочих узлов, а воздух проходить над ней не затрагивая поверхность, и мало кто понимает, откуда и в каком направлении продувать систему. К тому же далеко не у каждого хозяина есть в распоряжении свободный компрессор, а задача освобождения труб от водных остатков успешно решаема и без него.
Похожие «полезные» советы можно услышать и относительно бытовой техники по поводу переворачивания стиральных машин вверх ногами, разборки леек душевых кабин и прочее.
Рис. 4 Зимний вентиль в кессонах для скважин
Система водоснабжения летней дачи
Освобождение от воды наружной системы летней дачи, загородного дома состоит из следующих этапов:
- На зиму обычно извлекают погружной насос из труб скважины или колодца, также демонтируют поверхностную насосную станцию.
При этом погружной электронасос, наружный насос и гидроаккумулятор станции освобождают от водных остатков, просушивают и складируют в доме, подсобном помещении, сарае. - Если хозяин отсутствует зимой в доме короткий период времени и не демонтирует оборудование, для слива воды из наружного трубопровода используют следующие методы (при этом предполагается, что подземный водопровод проложен с уклоном в сторону источника):
- Применяют встроенный в напорный трубопровод поверхностный тройник с шаровым краном. Для слива воды кран поворачивают, и она вытекает в кессон или колодец, в первом случае нахождение водных масс в закрытой камере нежелательно, поэтому ее собирают в удобную емкость и выливают наружу. В глубоком колодце, если нет возможности в него спуститься, шаровый кран поворачивают с помощью длинной палки, рейки, веревки, привязанной за ручки.
Промышленностью выпускается подобная разновидность прибора со встроенной штангой для открывания запорного вентиля.
Рис. 5 Принцип работы клапана автоматического слива
- В продаже имеются ручные запорные клапаны, представляющие собой муфту с отверстием, одеваемые на напорный трубопровод, в боковой стенке которого предварительно сверлят отверстие. Слив закрыт заслонкой, к которой привязан прочный шнур, при его вытаскивании пластина поднимается, освобождает отверстие, и вода выливается сбоку напорного трубопровода.
Еще одна разновидность такой конструкции — обратный клапан в паре со сливным, устанавливаемый в разрез напорного трубопровода или после электронасоса, не имеющего внутреннего клапана.
- Конструкция автоматического запорного клапана представляет собой подпружиненный шар в седле, перекрывающий выходное отверстие при находящейся в рабочем состоянии системе с высоким давлением. Как только напор ослабевает при отключении автоматики управления насосным оборудованием, пружина отталкивает шар от выходного штуцера и вода вытекает через освободившееся отверстие.

Рис. 6 Автоклапаны зимнего слива Debe G15 и пример их размещения
- Можно использовать вместо обычного обратного электрический клапан для слива воды из водопровода на даче — его устанавливают на входе напорного трубопровода или выходе погружного электронасоса, подключают к электропитанию и открывают нажатием кнопки.
- Самый бюджетный метод слива — пробивка в стенке напорного трубопровода мелкого отверстия, его заматывают изолентой (из-за малых водопотерь это можно не делать), а при необходимости обезвоживания трубопровода освобождают от преграды.
Рис. 7 Ручной зимний вентиль для скважины с управляющей штангой – конструкция, расположение
Центральный и автономный водопровод
Внутренний водопровод дома проектируются с таким условием, чтобы уклоны в сторону его самой нижней точки были соблюдены, а для слива в канализацию использовались два крана отдельно для холодной и горячей воды.
Операции по освобождению от воды труб, электробытового и сантехнического оборудования проводят в следующей последовательности:
- Отключают всю автоматику от сети электропитания.
- Открывают все вентильные краны на смесителях в ванной, душевой, на кухне, устанавливая их в среднее положение — таким образом освобождают гидроаккумулятор (его положение должно быть строго вертикально) от скопившейся воды.
- Открывают при их наличии сливные краны под мойкой, если гидробак установлен на ножках, вентиль включают и под ним.
- Затем открывают общие краны слива холодной и горячей воды в канализацию.
- Сливают воду из водонагревателя, для этого используют обводной байпас, специальный предохранительный клапан от повышения давления (приподнимают его флажок), или различные запорные вентили.
Рис. 8 Зимний клапан с подвижной заслонкой Джилекс Фокус 32
youtube.com/embed/N8i-pf2YgQc?feature=oembed&wmode=opaque» frameborder=»0″ allow=»accelerometer; autoplay; clipboard-write; encrypted-media; gyroscope; picture-in-picture» allowfullscreen=»»>
- Для освобождения гидрозатвора унитаза от воды берут большую тряпку с хорошей впитывающей способностью, после ликвидации водных масс отверстие затыкают сухой материей. Для получения незамерзающего гидрозатвора можно использовать антифриз или раствор соленой воды, вылив их в сток.
- Душевую лейку опускают вниз кабины или ванной, освобождая ее от водных остатков.
- Откручивают колпаки фильтров грубой, тонкой очистки и вынимают картриджи, оставляя их в нетронутом состоянии или промывая при сильных загрязнениях.
- Освобождают от воды сифоны кухонной мойки, ванной или душевой кабины, откручивая внизу крышки для слива, если в помещении появились неприятные запахи, сливные отверстия закрывают пробками или тряпками в целлофановых пакетах. Как и в случае с унитазом, в сливы можно залить антифриз или по стакану воды с размешанной в ней двумя столовыми ложками соли.

- В стиральной машине откручивают внизу с фронтальной стороны пробку для слива воды и подставляют под нее емкость с низкими бортами для сбора жидкости, дверцы для лучшей просушки открывают.
- С посудомоечной машиной дело обстоит сложнее, может понадобиться откручивать подводку воды и слив в канализацию, укладывать их горизонтально на пол и впитывать вытекающую жидкость тряпкой.
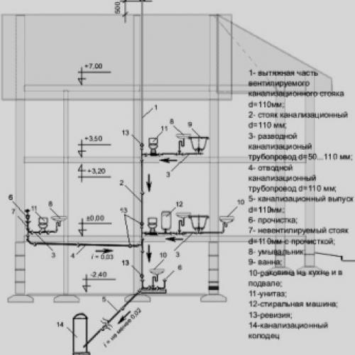
Рис. 9 Схема слива во внутреннем водопроводе
Консервация уличного водопровода
Уличный бытовой водопровод в подавляющем большинстве случаев прокладывают из длинных отрезков полиэтиленовых ПНД труб, технические характеристики которых регламентированы ГОСТ 18599-2001. Согласно приведенному документу, рабочей температурой труб из ПНД для хозяйственно-питьевого назначения является диапазон от 0 до +40 °С (стандартное значение + 20 °С), при этом они должны выдерживать номинальное давление не менее 25 Бар.
Температура хрупкости трубопровода из ПНД составляет -70 °С, в бытовых условиях они легко выдерживает температуру до -20 °С, а свои свойства начинает терять от -40 °С.
Учитывая, что обычно полиэтиленовый водопровод прокладывают под землей на глубине ниже промерзания, при отсутствии внутри воды ему не грозит разрушение оболочки ни при каких погодных условиях, следовательно, он не нуждается в консервации.
Теоретически возможно нахождение труб ПНД на поверхности зимой в открытых кессонных ямах и колодцах в условиях Крайнего Севера при очень низких температурах, в этом случае для их защиты от окружающей среды отлично подойдет любой трубчатый утеплитель из вспененного полиэтилена или каучука — Джермафлекс, Порилекс, Energoflex, Вилатерм.
Но при этом следует учитывать, что любой теплоизолятор лишь замедляет процессы замерзания, а не останавливает их. Поэтому при длительном отсутствии хозяев надежно защитить любой наружный трубопровод от мороза можно лишь с помощью электрического нагревательного (саморегулирующего) кабеля, работающего в автоматическом режиме.
Его привязывают к трубе или размещают внутри, используя модификации из пищевых полимеров.
Рис. 10 Примеры организации зимнего слива в канализацию внутри дома
Если в конструкции наружного и внутреннего водопровода при индивидуальном водоснабжении соблюдены все основные технические требования — нужные уклоны, краны для слива в канализацию внутри дома, специальные клапаны в скважинном трубопроводе, то подготовка системы к зиме не отнимет много времени и пройдет эффективно. При проведении работ главное — точное выполнение всех пунктов инструкции, которая состоит из большого числа мелких операций.
Слив воды из водопровода.
главная — Канализация
Андрей Дачник
19 сентября, 2016
Если ваш дом на даче рассчитан на промерзание в холодное время года, то вам необходимо каждый раз перед отъездом из дома сливать всю воду из водопровода и всех водосодержащих агрегатов.
Концепция промораживания дома зимой имеет свои плюсы и минусы.
| Скачать бесплатно брошюру (24 страницы) по устройству колодца и схемам водопровода в доме. (PDF) |
К минусам постоянного отопления дома сезонного проживания относятся энерго- и следовательно финансовые затраты, риск сбоев подачи электричества и замораживание не слитой воды в водопроводе, риск возгорания электронагревательных приборов. К минусам концепции промораживания дома относятся повышенный износ элементов конструкции дома и внутренней отделки при более частом переходе через ноль, необходимость трудозатарат по сливу воды каждый раз перед отъездом. К плюсам концепции промораживания относятся экономия средств, снижение риска аварий и пожаров.
В целом, оптимальный режим эксплуатации дома зависит от вашего образа жизни: если вы приезжаете на дачу зимой каждые выходные, то дом целесообразнее держать на подогреве: +5С при помощи электрических полов, например, как одного из самых экономичных и безопасных средств отопления.
Перед приездом на дачу или в суровые морозы можно заранее включить по SMS дополнительные конвекторы (при установке соответствующего контроллера), которые поднимут температуру в доме. Если же зимой вы на дачу не приезжаете или приезжаете пару раз за пол года, то никакого смысла держать дом на подогреве нет. А чтобы не замерзли трубы воду из водопровода нужно сливать.
Полезные ссылки по теме:
Установка электрического водонагревателя, Стиральная машина не сливает воду
Слив воды перед зимой
Для того чтобы минимизировать трудоемкость слива воды перед зимой из водопровода, нужно продумать несколько важных деталей перед проектированием водопровода и канализационной системы.
Что нужно предусмотреть для удобного регулярного слива воды:
1. Тройник и кран для слива перед обратным клапаном в трубе, подающей воду в дом (в колодце или в кессоне скважины.
2. На случай аварийного промораживания, зимней эксплуатации трубы должны быть из метериала не рвущегося при расширении — например из полиэтилена низкого давления, полипропилена и т.
п.
3. В каждой ветке разводки труб в доме установить в нижней точки кран для слива воды.
4. Если невозможно добраться к нижней точке водопровода (трубы зашиты в полу и нет подвала), предусмотреть тройники для подключения переходника на автомобильный компрессор для продувки каждой ветки трубопровода.
5. При подключении водонагревателя предусмотреть тройник и кран для слива воды с насадкой для шланга до обратного клапана на входящей в водонагреватель трубе. И такой же тройник с краном на отводящей трубе из водогрея для быстрой подачи воздуха при сливе воды.
6. При объеме водогрея свыше 50 литров предусмотреть канализационную ветку, не идущую в септик, чтобы не допустить гибели микрофлоры септика при сбросе большого количества кипятка. Либо сливать горячую воду через шланг на улицу, но не в септик.
7. Выбор смесителей. По возможности использовать традиционные керамические или с резиновым уплотнителем краны, а не однорычажные, которые чувствительные к замерзанию остаточной воды.
8. Расширительный мембранный бак. Объем остаточной воды в резиновой груше после слива воды не должен нанести повреждений при замерзании. Автор проверил это на своем баке — бак пережил 5 зим, но на 6-й резиновую грушу пришлось заменить.
9. Расположение стиральной машины. Не следует забывать сливать воду из стиральных, посудомоечных машин и т.п. устройств. К сожалению, простым сливом воды в этом случае не обойтись — понадобятся манипуляции в переворачиванием стиральной машины или продувкой компрессором. Поэтому при выборе места для нее обеспечьте свободный к ней доступ.
Ниже приводится иллюстрации как слить воду из простого временного водопровода, специально неподготовленного к сливу воды перед зимой.
Первый шаг: слив воды из подводящего трубопровода. Для этого у нас предусмотрен тройник и кран перед обратным клапаном в колодце (1). Длинной палкой (3) открываем кран (2). Слышим журчание и наблюдаем пузырьки воздуха, поднимающиеся из крана: вода сливается. | Второй шаг: слив водонагревателя. Хорошо предварительно охладить воду. При отсутствии специальных сливных кранов, откручиваем предохранительный клапан на подводящей трубе (справа) и подсоединяем шланг для слива воды. Потом отпускаем гайку на выходящей трубе — происходит подсос воздуха и вода из водонагревателя начинает сливаться в шланг. | |
| Если нет специальных кранов для слива воды из водопровода — отсоединяем стык трубы в нижней точке и сливаем воду изтрубопровода. | Если есть специальный кран для слива воды — используем его. | |
| Отсоединяем слив и подводящий шланг стиральной машины. Сливаем из них воду. | Переворачиваем стиральную машину вверх ногами. Это позволит избавиться от остатков воды в нижних точках сливной системы. В таком положении стиральную машину оставляем на зиму при длительном отъезде. (это не шутка!) | |
| Слив воды из стиральной машины. Остатки воды прячутся в гофрированной рубке идущей от бака к помпе: сжимаем трубку как грушу и выдуваем остатки воды — они выйдут через сливной шланг. | Отсоединяем подводящие трубки гибкой подводки душевой кабины. Сливаем из них остатки воды. | |
| Снимаем и продуваем лейку тропического душа — в ней всегда остается вода. Ставим лейку на место. | Слив воды из душевой кабины. Начинаем продувку кранов душевой кабины. Снимаем лейку душа, ставим трехходовой кран (1) в положение ручной душ. И попеременно открываем кран горячей и холодной воды (1) продувая трубы через душевой шланг (для продувки можно использовать компрессор, насос-лягушку, силу своих легких). Затем поочередно меняем положения крана 2, чтобы слить остатки воды в нем. | |
| Самая приятная часть работы — слив воды из унитаза: для этого можно использовать любой бытовой насос (велосипедный, опрыскиватель, клизму, шприц Жане). Вычерпываем все дочиста. Если ваша канализация склонна испускать приятные ароматы (мой септик не пахнет), то заливаем в унитаз антифриз. Весной его также нужно будет откачать, а не слить в септик. Кроме унитаза удалит воду нужно из сифонов раковин и трапов в полу. | Слив воды из фильтра: Снимаем корпус фильтра тонкой очистки (он откручивается по часовой стрелке) и корпус фильтра грубой очистки. Выливаем воду и выбрасываем использованный картридж. | |
Слив воды из насосной станции: Открываем главную заглушку на корпусе насоса насосной станции и сливаем воду в предварительно подготовленную емкость.![]() | Откручиваем заглушку на боку корпуса насоса и тщательно продуваем насос, избавляясь от остатков воды. Если вы используете погружной насос в колодце или скважине — то не беспокойтесь, вода там не замерзнет в условиях обычной зимы. |
Проекты домов
Ошибки планировки
Дом фахверк
Круглый дом
Дом для узкого участка
Как решить проблему отвода воды с соседних участков?
ИНФОРМАЦИЯ
Любое улучшение земли, сделанное частными лицами, повлияет на естественный сток воды.
Нарушение естественного стока дренажных вод может доставлять неудобства и/или причинять ущерб соседним землевладельцам.
Вред, причиняемый дренажем поверхностных вод, рассматривается по-разному в разных юрисдикциях США, но его можно обобщить с помощью трех (3) основных доктрин или правил:
«Правило общего врага»;
«Правило гражданского права» или правило против общего врага; и
«Правило разумного использования».
Правило общего врага, Гражданско-правовое правило и Правило разумного использования
Правило Общего врага по сути гласит, что поверхностные воды являются врагом, общим для всех землевладельцев. В соответствии с этим правилом каждому землевладельцу разрешается делать все, что он хочет, чтобы облегчить проблему, и ни один другой землевладелец не будет нести ответственность перед другим за проблемы, вызванные потоком воды.
Гражданско-правовая норма совершенно противоположна: в ней говорится, что собственник несет ответственность перед другим собственником, когда он изменяет естественный сток воды на своей земле, что наносит ущерб второму собственнику.
Оба этих правила со временем смягчились и стали включать в себя элементы разумности.
Правило разумного использования . Это правило гласит, что землевладельцам разрешается разумно использовать свою собственность, даже если это наносит ущерб другому землевладельцу. Землевладельцы будут нести ответственность за причиненный ими ущерб только в том случае, если причина, по которой они изменили сток поверхностных вод, была необоснованной. Однако при определенных обстоятельствах, даже если использование земли является разумным, «тяжесть вреда [для истца] может быть признана настолько значительной, что она требует компенсации независимо от полезности поведения истца». ответчик». Другими словами, даже если вы действуете разумно, бывают случаи, когда причиненный вами ущерб может быть настолько значительным, что вам потребуется возместить ущерб другому землевладельцу, чьему имуществу вы нанесли ущерб.
Хотя Правило разумного использования, принятое судами Северной Каролины, не создает четких правил для определения вины, оно кажется хорошо сбалансированным методом, позволяющим заинтересованным сторонам сотрудничать в решении вопросов водоотведения, поскольку наши сообщества привлекают больше людей и поощряют разработка.
ЧАСТО ЗАДАВАЕМЫЕ ВОПРОСЫ
Может ли мой сосед направить воду на мою землю?
Если вышестоящий землевладелец необоснованно отклоняет сток, увеличивает сток или загрязняет сток таким образом, что причиняет материальный ущерб нижестоящему землевладельцу, то нижестоящий землевладелец может подать иск о судебном запрете и возмещении ущерба. Согласно Общему праву землевладельцы считаются равными, независимо от того, являются ли они частными лицами, компаниями, дорожными властями, а также федеральными, государственными или местными органами власти. Вы можете получить совет от подрядчика по дренажу, инженера по дренажу, юриста, природоохранного органа, но помните, что решение проблемы не входит в их обязанности. Только суды могут принять окончательное решение в споре. Для получения решения суда гражданский иск должен быть инициирован потерпевшей стороной.
Что можно сделать с водой, когда она попадет в мою собственность?
С водой можно справиться любым способом, при условии, что не возникнет засорения, препятствия или препятствия, и вода будет сбрасываться в преобладающей нижней точке вашей собственности или рядом с ней; однако могут применяться другие правила штата и федеральные правила, такие как правила прибрежных буферов или правила водно-болотных угодий.
Где я могу получить совет по решению моей проблемы с дренажем?
Проблемы с канализацией относятся к частной собственности. Владельцу настоятельно рекомендуется нанять квалифицированного частного консультанта. Если проблема дренажа связана с общим сервитутом, убедитесь, что в решении участвуют оба владельца.
Существуют ли законы, касающиеся дренажа?
Общий закон Северной Каролины гласит, что лицо низшего сословия должно получать и передавать воду из высшего сословия. Кроме того, специальные законы запрещают блокирование ручьев, дренажных путей и сервитутов, которые отводят воду с возвышенностей. (дополнительную информацию см. в NCGS 77-13 и 77-14 ниже)
Кто поддерживает полосу отвода дорог?
Округ Хендерсон не обслуживает дороги и дренажные сервитуты. Дороги общего пользования обслуживаются NCDOT, ответственность за частные дороги несет владелец собственности.
Обеспечивает ли персонал округа Хендерсон соблюдение сервитутов по дренажу на индивидуальной собственности?
Нет, округ Хендерсон не имеет полномочий для принудительного применения дренажных сервитутов для отдельных владельцев собственности.
Как слить воду из дома?
С приходом сезона дождей большинство людей задумываются о том, как защитить свой дом от повреждений водой. Большинству из вас это может показаться расплывчатым, но урон от воды — это медленный яд, который может вызвать большие проблемы в ближайшем будущем. Вот почему важным аспектом ухода за домом является очистка канализации. Дождь не только портит наши планы на открытом воздухе, но и влияет на содержание дома. Что, если мы скажем, что вам больше не нужно об этом беспокоиться?
Вы можете сомневаться в нас, но здесь, в этом блоге, мы собираемся поставить всех наших уток в ряд, предложив способ борьбы со сливом дождевой воды.
Для лучшего понимания мы распределили произведение по разделам.
Как слить дождевую воду с крыши?
Теперь, какие немедленные действия мы должны предпринять, чтобы слить воду с крыши. Кровельные воронки для плоских или пологих крыш доступны в нескольких распространенных конфигурациях.
Наилучшая форма для применения определяется многими факторами, включая ширину и высоту крыши, идеальный внешний вид и объем ежедневного обслуживания, необходимого для дренажной трубы.
Количество стоков, необходимых для каждого процесса, определяется такими факторами, как площадь крыши, расположение дренажа, скорость притока и ожидаемая скорость дренажа, а также предполагаемый уровень осадков.
Самое первое, что вам нужно учитывать, это жесткость трубы и размер водостока с крыши. Для этого нужно рассчитать площадь поверхности крыши плюс среднее количество часов осадков. Далее, следующий шаг заключается в том, чтобы определить каждую крышу, которая будет представлена разными сливная труба , шпигат или водосточная труба, также известная как лидеры.
Затем крыша делится на площадь, необходимую для каждого лидера, чтобы рассчитать необходимое количество водостоков. Каждый лидер должен быть достаточно большим, чтобы вместить количество смываемой воды; чем больше возможности лидера, тем меньше требуется водостоков.
Кровельные водостоки в основном распределены равномерно и находятся в низких точках крыши или в любых местах, где скапливается вода.
Как слить дождевую воду с заднего двора?
Мокрые пятна во дворе — это и неудобство, и полный беспорядок. Если трава находится под водой в течение длительного периода времени, она погибнет. Мокрые поля невозможно косить, и все тащат грязь в дом. Если затопленная зона находится рядом с вашим домом, это может привести к протечке подземных сооружений или даже к худшему. Так как же лучше всего отвести воду с заднего двора?
- Создание сухого колодца . Сухой колодец представляет собой огромную яму, заполненную гравием или другим материалом, который собирает и удерживает лишнюю воду, пока она высыхает в землю. Выкапывая специальные резервуары для сухих колодцев, вы можете максимально использовать потенциал сухих колодцев.
- Установка французского дренажа — Французский дренаж — это надежная дренажная система, которую можно использовать для решения различных проблем с дренажем.
Вода распределяется на большую площадь с помощью погруженной в воду перфорированной трубки. Трубка должна быть заключена в систему, обеспечивающую сток воды в нее. - Постройте русло ручья . С сухим руслом ручья вы можете решить проблемы дренажа, при этом создавая привлекательный элемент ландшафта.
- Создание дождевого сада . Попробуйте создать дождевой сад, если у вас во дворе есть плохое место, которое собирает и удерживает воду. Дождевой сад — это участок вашего двора, предназначенный для сбора дождевой воды и засаженный влаголюбивыми растениями. Дождевой сад не решит дилемму сырого двора, но он будет выглядеть намного лучше, чем грязная яма. Дождевые сады также благотворно влияют на климат.
Как слить воду со стороны дома?
Застой воды вокруг основания вашего дома является источником беспокойства. Он впитывается в почву и просачивается в подвальные отверстия, вызывая повреждение водой и образование плесени.
Так что же конкретно делать, чтобы предотвратить это. Смыв воды с участка требует обустройства двора с уклоном и установки водосточных желобов для предотвращения стока с крыш. В некоторых ситуациях необходима установка заглубленной дренажной системы .
- Планировка двора – Для большинства дворов подходит уклон 2% от основания. Это соответствует падению с высоты 2 фута на 100-футовом пролете.
- Водосточный желоб – Дождевая вода стекает с крыши и будет скапливаться у основания, если водосточные желоба и водосточные трубы не установлены. Постройте желоба и водосточные трубы, а также удлинители водосточных труб, которые отводят воду на расстоянии не менее 5 футов от земли.
- Плитка для слива фундамента – В некоторых районах новые строительные нормы требуют установки плитки для слива фундамента. Дренажная плитка представляет собой перфорированный канал, который устанавливается на или над нижним колонтитулом прямо по окружности фундамента.

Как выбрать дренажную трубу?
В любом доме необходима надлежащая дренажная система. Это абсолютная легенда, которая предотвращает подмывание фундамента дома водой. Как добросовестный домовладелец, вы должны знать, что проблемы с дренажной системой вашей квартиры могут быть вызваны различными факторами, такими как скопление воды в подвале, сырость стен, образование плесени и клещей и так далее.
В связи с этим крайне важно выбрать подходящие и качественные дренажные трубы. Любой домовладелец должен использовать качественные подземные дренажные трубы и комплектующие. Для наружного использования лучше всего подойдет перфорированный вал. Кроме того, если вы зависите от опытных сантехников, вы должны ожидать, что они будут использовать лучшие сантехнические изделия, чтобы обеспечить точность и цену.
Дренажные системы когда-то делались из оцинкованного железа и меди. Однако в долгосрочной перспективе это было невозможно. Затем последовал век пластиковых дренажных трубок, которые сейчас широко используются по понятным причинам.

При этом погружной электронасос, наружный насос и гидроаккумулятор станции освобождают от водных остатков, просушивают и складируют в доме, подсобном помещении, сарае.

Слышим журчание и наблюдаем пузырьки воздуха, поднимающиеся из крана: вода сливается.
Это позволит избавиться от остатков воды в нижних точках сливной системы. В таком положении стиральную машину оставляем на зиму при длительном отъезде. (это не шутка!)
Затем поочередно меняем положения крана 2, чтобы слить остатки воды в нем.
Вода распределяется на большую площадь с помощью погруженной в воду перфорированной трубки. Трубка должна быть заключена в систему, обеспечивающую сток воды в нее.