Содержание
Как сделать септик из колец своими руками
Статьи
08.02.2020
Большинство считает, что в доме главное — фундамент. Но на самом деле важнее всего правильно спроектированная канализация, поскольку за городом нет возможности отводить сточные воды в центральную канализационную сеть. Поэтому мы расскажем, как правильно и недорого обустроить септики из колец.
Содержание
- Достоинства и недостатки септика из бетонных колец
- Как выбрать локацию для установки септика из колец?
- Септик из колец своими руками: этапы строительства
- Расчет размеров и количества колец
- Подготовка материалов
- Обустройство котлована
- Монтаж канализационных колодцев
- Установка переливов
- Какова стоимость септика из колец?
Такие конструкции востребованы среди владельцев загородных особняков, поскольку обладают следующими преимуществами:
- Устойчивы к воздействию фекалий и химических веществ. Прослужат как минимум 50 лет.

- Имеют высокую герметичность, что позволяет защитить систему от проникновения грунтовых вод, а также утечки содержимого.
- Бетонные кольца — доступный материал, поэтому цена такого устройства будет в разы ниже аналога, сделанного из кирпича, пластика, стеклопластика, камня или металла.
Однако септик для частного дома из колец имеет и ряд недостатков.
Во-первых, кольца из бетона достаточно тяжелые, и для их монтажа понадобится участие специальной техники, поскольку вручную их не смогут сложить даже несколько рабочих.
Во-вторых, существует риск появления трещин на бетоне или расхождения швов между кольцами, что повлечет за собой протекание содержимого устройства и, соответственно, бытовой химии в грунт.
Поэтому нужно учитывать плюсы и минусы, чтобы в будущем не пришлось заново все переделывать.
Как выбрать локацию для установки септика из колец?
Внимание! Место выбирается так, чтобы исключить даже минимальный риск просачивания фекалий и бытовой химии в почву или грунтовые воды.
Для этого нужно соблюдать государственные санитарно-строительные нормы.
При определении локации учитывают нормы, прописанные в следующих документах:
- «СНиП 2.04.03-85» — тут изложены условия сооружения локальной канализации;
- «СанПиН 2.2.1/2.1.1.1200-03» — здесь четко прописаны правила по расположению и обустройству зон, представляющих угрозу для экологии.
Правила и нормы размещения очистительного сооружения:
- Размещается ниже уровня дома. Это позволит избежать разрушения фундамента.
- Обустраивается на расстоянии не меньше 5 м от водоема с проточной водой.
- Дистанция между выгребной ямой и деревьями — 3 м и 1 м — до кустов.
- Расстояние между газовой трубой и отстойником — 5 м и больше.
- Располагается на расстоянии 5 м от автомобильной дороги.
- Площадь над ним запрещено использовать для строительства или обустройства стоянки для автомобиля.
Важно учесть и наличие свободного подъезда специальной техники к выбранному месту.
Септик из колец своими руками: этапы строительства
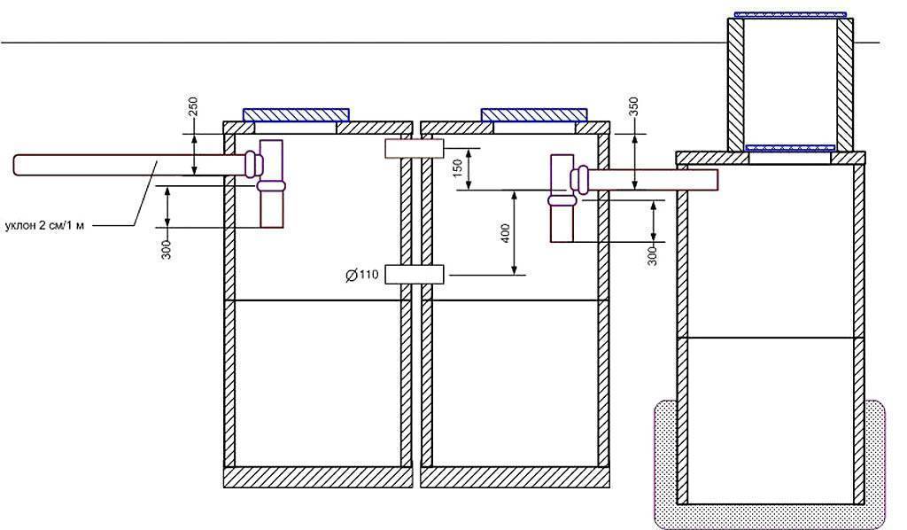
Самый простой — линейный вид септика из колец, схема которого указана на фото. Принцип сооружения заключается в расположении нескольких резервуаров, состоящих из бетонных колец, вдоль линии. В этом случае первые два колодца — это отсеки, а последний — фильтрующий резервуар.
Первый отсек нужен для первичной обработки сточных вод, при которой происходит разложение твердых отходов под воздействием анаэробных микроорганизмов. Затем сточные воды поступают во второй отсек, в котором осуществляется заключительная стадия их очистки путем фильтрации через гравий, керамзит, песок и прочие среды. Очищенные, они дренируются в фильтрующий резервуар, дно которого негерметично, поэтому его содержимое поступает в грунт.
Расчет размеров и количества колец
Важно! Размеры колец для септика выбирают с учетом того, что сточные воды обновляются в отсеках каждые 72 часа.
Сегодня практически каждый человек использует 200 л воды в сутки, а семья из 4 членов — 800 л, соответственно.
Учитывая, что резервуар отстойника вмещает трехдневный объем воды, умножим 800 на 3 и получим 2400 л. То есть объем каждого резервуара — 2,4 м³.
Одно бетонное кольцо стандартного размера имеет объем 620 л. Чтобы рассчитать, сколько колец для септика понадобится, нужно 2400 л/620 л = 3,87. Полученную цифру округляют в большую сторону, поскольку могут приходить гости и т.д., что повлечет за собой увеличение сточных вод.
Таким образом, для семьи из 4 человек один резервуар отстойника должен состоять из 4 колец.
Подготовка материалов
Для сооружения понадобятся следующие материалы:
- бетонные кольца, лучше с замками;
- пластиковые трубы для наружной канализации диаметром 110—120 мм;
- щебень;
- песок;
- цемент;
- пена монтажная;
- гидроизоляция;
- теплоизоляция в рулоне.
Обустройство котлована
Котлован лучше копать летом или после первых заморозков. Для экономии времени ее роют с помощью экскаватора, но можно и вручную.
Глубина рассчитывается так: высота бетонных колец, в нашем случае их 4 + 0,5 м на подушку и плиту. Причем дно котлована трехъярусное, то есть каждый колодец стоит на 0,5 м ниже предыдущего. Или можно выкопать отдельную яму для каждого отсека.
Также необходимо вырыть каналы для наружных труб канализации глубиной 1,2 м и шириной 0,5 м, затем засыпать их дно слоем песка толщиной 8—10 см. Дно канала немного уклоняется в сторону отстойника.
После дно ямы утрамбовывают и засыпают слоем щебня толщиной 15—20 см.
Монтаж канализационных колодцев
Установка устройства начинается с нижнего кольца, которое имеет дно. Первое кольцо стоит строго вертикально. Расстояние между резервуарами — не менее 50 см.
После устанавливают остальные кольца, тщательно промазывая стыки между ними цементным раствором с добавлением жидкого стекла. Для большей прочности можно использовать скобы из металла, которые фиксируются с внешней стороны колец.
Первое кольцо фильтрующего колодца не имеет дна и устанавливается непосредственно на почву.
Дно резервуара засыпают слоем песка толщиной 40 см, затем — слоем мелкого гравия такой же толщины. И третий слой дна отсека должен быть из более крупного щебня и толщиной 30 см.
Для гидроизоляции лучше использовать битумную мастику и грунтовку для бетона.
Для защиты от морозов верхнюю часть резервуара утепляют снаружи теплоизоляцией, например, «скорлупой» или пенополистиролом.
На всех колодцах устанавливают люки, а во второй резервуар нужно завести вентиляционную трубу так, чтобы она поднималась на 80 см над поверхностью земли.
После монтажа пространство между стенами ямы и кольцами необходимо засыпать землей и песком, хорошо их утрамбовав.
Установка переливов
На заметку! Самая высокая точка канализационной трубы располагается на глубине 120 см, то есть ниже точки промерзания грунта.
Также надо учесть, что точка перелива из одного резервуара в другой ниже точки входа на 20 см.
Отверстие в стенке резервуара делают перфоратором и фиксируют в ней трубу монтажной пеной, а вход и выход трубы покрывают герметиком.
Концы труб, которые подводят и отводят сточные воды, соединяют тройниками, чтобы в случае засорения их можно было легко прочистить. Все трубопроводы обеспечиваются теплоизоляцией.
Какова стоимость септика из колец?
Цена зависит от того, обратитесь ли вы к специалистам или попробуете справиться своими силами.
Решив строить отстойник самостоятельно, вы потратитесь только на материалы и аренду специальной техники. Одно бетонное кольцо стоит около 2 тыс. р.
Средние цены на установку септика под ключ в России:
- однокамерный септик — от 20 до 30 тыс. р.;
- двухкамерный — от 30 до 60 тыс. р.;
- трехкамерный — от 60 до 90 тыс. р.
Обратите внимание! Раз в год придется обращаться в фирму по очистке отстойников, услуги которой стоят около 1 тыс. р. за 1 м³.
Конечно, услуги специалистов нынче дорогие, но так гарантированно удастся сэкономить свое время и здоровье.
септик из колец
Поделиться в социальных сетях:
Вас может заинтересовать:
Статьи
06.
10.2022
Требования к канализации
Эффективная система отвода стоков – важная составляющая любого жилого дома. При обустройстве канализации, необходимо строго придерживаться существующих нормативов, которые подробно изложены в СП. Неправильно спроектированная инженерная сеть может оказать негативное влияние как на окружающую среду, так и подвергнуть серьезной опасности самого домовладельца и его близких. Согласно законодательству, за нарушение правил организации системы отвода стоков предусмотрены…
Подробнее
Статьи
26.09.2022
Как работает септик
Чтобы жизнь в загородном доме была комфортной, в нем необходимо предусмотреть систему водоснабжения, отопления и водоотведения. Когда домовладение находится вдали от магистральных коммунальных сетей, для утилизации хозяйственно-бытовых стоков используются автономные очистные установки – септики. Такое оборудование позволяет не только собрать нечистоты в одном месте, но и эффективно их переработать.
Из нашей статьи вы узнаете, что…
Подробнее
Оставьте свой комментарий
СЕПТИК ИЗ БЕТОННЫХ КОЛЕЦ СВОИМИ РУКАМИ.
Вопрос с канализацией за пределами города можно решить разными способами. Один из них – обустройство септика своими руками из бетонных колец. Это отличный вариант канализации – простой в исполнении, весьма дешевый, при этом долговечный. Основное преимущество бетонного септика – минимальные затраты на его монтаж, эксплуатацию и обслуживание. Разберемся, как надо делать самодельный септик из бетонных колец.
Этап № 1 — Выполнение необходимых расчетов
Вопреки распространенному мнению, строительство септика из бетонных колец начинается не с покупки ЖБИ, а с проведения расчетных работ. Важно правильно подобрать оптимальный объем цилиндра, на основе которого выбрать количество необходимых бетонных колец. Дальше формируется схема установки бетонного септика.
Этап № 2 — Расчет оптимального объема септика
Число и объем камер канализации из бетонных колец своими руками находятся в прямой зависимости от расхода воды в загородном доме. Чем больше сточных вод, тем больше должен быть цилиндр, и обойтись всего одной емкостью получается далеко не всегда. Общепринятые нормы утверждают, что на каждого человека, проживающего в загородном доме, приходится порядка 200 литров сточных вод в сутки. Если в доме минимум сантехники, теоретический показатель расхода можно несколько снизить – вплоть до 120-150 литров в сутки.
При общем расходе воды на всех жителей дома до 1 кубического метра в сутки вполне хватит одного цилиндра из бетонных колец. Если суммарный расход от 1 до 10 кубических метров, рекомендуется сооружать сразу две камеры. При наличии на участке бассейна, который может обеспечить расход стоков свыше 10 кубических метров, стоит задуматься о бетонном септике на три камеры. Расчетный объем септика должен превышать суточный объем сточных вод в 2-3 раза.
2 – квадрат внутреннего радиуса кольца, H – высота кольца. На основе данных об объеме одного ЖБ кольца и требуемого объема септика можно рассчитать нужное количество колец. Для этого надо разделить расчетный объем на объем одного цилиндра и округлить в большую сторону. При заказе колец стоит помнить, что для строительства двухкамерного септика придется заказать вдвое больше ЖБИ, а при обустройстве трехкамерного – втрое больше. В таком случае вы купите столько колец, сколько надо.
Этап № 4 — Правильный выбор места для монтажа
Перед тем, как реализовать на практике выбранную схему септика из бетонных колец своими руками, следует тщательно подумать над местом расположения будущей конструкции. При подборе надо опираться на правила:
• Нельзя размещать септик близко к дому. Этот запрет диктуется как строительными, так и санитарными нормами. Копка большого котлована рядом с фундаментом может негативно сказаться на прочности дома, а близкое расположение сточных вод негативно влияет на обитателей загородного дома.
Септик необходимо размещать как минимум в пяти метрах от ближайшего сооружения на загородном участке.
• Нельзя размещать септик близко к источникам питьевой воды. Минимальное допустимое расстояние находится в зависимости от уровня водопроницаемости грунта – обычно это от 30 до 50 метров.
• Не стоит ставить септик слишком далеко от дома. Чем дальше располагается бетонный колодец от дома, тем длиннее понадобится трубопровод. Это лишние траты и необходимость заглубления септика.
Канализация из бетонных колец своими руками должна быть доступна для подъезда ассенизаторской техники. Первые месяцы после монтажа колодца необходимости в обслуживании не будет, однако уже через год надо будет вызывать ассенизаторскую машину для откачки стоков. Свободный подъезд потребуется и на этапе строительства септика – монтаж бетонных колец требует использования спецтехники из-за большой массы.
Этап № 5 — Этапы возведения конструкции
Чтобы сделать выгребную яму из бетонных колец своими руками, потребуется провести следующие работы:
1.
Рытье котлована с использованием ручных инструментов либо специальной строительной техники.
2. Обустройство песчаной подушки на дне вырытого котлована, бетонирование площадки раствором.
3. Установка бетонных колец при помощи специальной техники.
4. Герметизация мест соприкосновения железобетонных колец с использованием цементного раствора.
5. Подключение к приемной камере подводящей трубы, к последующей (если есть) – переливной.
6. Укладка железобетонной крышки на верхнее кольцо, монтаж люка и засыпка котлована глиной.
Аналогичным образом обустраивается и туалет из бетонных колец своими руками, только сверху на колодец монтируется небольшое сооружение, в котором размещаются удобства. Указанный выше порядок работ применяется как при строительстве однокамерного, так и септиков на несколько камер. Если планируется построить не просто бетонный септик, а фильтрационное сооружение, заливать котлован раствором нельзя.
Приступайте к активным действиям!
Если вы хотите сделать септик из бетонных колец своими руками, видео и фотоматериалы помогут вам лучше понять, как должен выглядеть результат вашей работы. Несмотря на то, что бетонный септик можно построить самостоятельно, мы рекомендуем вам обратиться к профессионалам. Мастера нашей компании всего за один день установят септик из бетонных колец под ключ – фото готовых работ можно просмотреть на сайте!
Комплекты стояков и компоненты септика
Компания Aero-Stream® рекомендует, чтобы крышка септика была видна, легкодоступна и проверялась каждые 6 месяцев. Септическая система является одним из самых дорогих, но наименее контролируемых и понятных механических элементов собственности. Похороненный и спрятанный глубоко под землей, часто покрытый травой или спрятанный под горшком с цветами, он быстро забывается. Только когда начинают появляться предупреждающие признаки проблем с септической системой, мы вспоминаем, что она есть, и что ее нужно поддерживать и контролировать.
С такими аксессуарами, как наши стояки для септиков, это легко сделать.
Бетонные кольца стояка септика весят сотни фунтов, а крышка весит от 60 до 80 фунтов. Поскольку они такие тяжелые и громоздкие, многим людям не рекомендуется снимать крышку, и они не знают, что искать, когда они это сделают. Они также могут быть неприглядным украшением вашего ландшафта. С другой стороны, наши пластиковые стояки для септиков обычно весят менее 30 фунтов, а крышка менее 10 фунтов. Это значительно упрощает установку, регулярный осмотр и обслуживание вашей септической системы. Наши покрытия для септиков эстетичны и хорошо вписываются в ландшафт.
Комплекты стояка септика используются для поднятия отверстия резервуара до уровня земли для облегчения обслуживания. Наши прочные пластиковые комплекты стояков для септиков на 100% сделаны в США. Поднимите септическое покрытие на поверхность, чтобы облегчить обслуживание резервуара. Мы предлагаем полные комплекты или компоненты на заказ для домашних мастеров.
Цены на комплекты стояков и компонентов септика включают бесплатную доставку по США. Свяжитесь с нами для несмежных вариантов доставки в США и Канаду.
Узнайте о простых шагах установки нашего комплекта стояка для септика!
Часто задаваемые вопросы
Как правильно подобрать размер?
Ознакомьтесь с нашим Руководством по измерениям для комплекта стояка септика или свяжитесь с нами, чтобы обсудить вашу заявку. Вы можете отправить фотографии через форму обратной связи, чтобы мы рассмотрели их. Кроме того, каждая отдельная страница продукта будет содержать схему соответствующего продукта.
Можно ли укоротить или переделать стояк на месте?
Нет.
Наборы доступны только с шагом 3 дюйма, начиная с высоты 7 дюймов и заканчивая высотой 50 дюймов. Позвоните нам, чтобы заказать высоту более 50 дюймов.
Должен ли комплект располагаться выше, на уровне или ниже уровня грунта?
Высота зависит от предпочтений. Комплекты водонепроницаемы и могут быть установлены с крышкой выше, на уровне или ниже уровня земли.
Вы снимаете существующую крышку септика?
Как правило, большинство домовладельцев снимают существующее покрытие для облегчения доступа в будущем. Этот шаг может потребоваться в зависимости от размеров существующей крышки. Наши комплекты обеспечивают герметичность резервуара. Низкопрофильная крышка крепится несколькими винтами, а также имеется дополнительный защитный барьер, чтобы наши комплекты обеспечивали безопасный доступ к септиктенку.
Могу ли я управлять газонокосилкой и/или грузовым автомобилем через комплект?
Нет. Мы рекомендуем избегать каких-либо существенных нагрузок от механизмов непосредственно на комплект.
Крышка септика предназначена для мест с периодическим пешеходным движением. При использовании в зонах с интенсивным движением покрытие следует осматривать каждые 6 месяцев на предмет износа и заменять не реже одного раза в 3 года.
Мой проем квадратный, а не круглый, будет ли работать эта система?
Наши комплекты подходят для большинства стилей форм проемов (например, круглых, квадратных, прямоугольных и т. д.) при условии, что проем соответствует определенным параметрам. Базовый фланец подходит для круглого или квадратного отверстия диаметром до 24 дюймов.
У меня уже есть стояк, могу ли я расширить его с помощью вашего оборудования?
Ознакомьтесь с доступными опциями на нашей странице комплектов удлинителей стояков. Мы предлагаем комплекты высотой от 6 до 18 дюймов. Свяжитесь с нами для нестандартной высоты свыше 18″.
Самодельные стояки для септиков
Комплект бетонных стояков для септиков
Где купить стояки для септиков
Комплект стояков для септиков с квадратным отверстием
Комплект стояков для септиков amazon
стояки для дома
Лучший стояк для септика
Комплекты стояка для септика рядом со мной
Настоящая любовь: Настойчивый муж залезает в выгребную яму в поисках потерянных драгоценностей жены
Малыш смыл в унитаз «мамочкины прелести» — кольцо с бриллиантами, серьги с бриллиантами и многое другое
Автор статьи:
Новости Postmedia
Опубликовано 09 марта 2016 г.
• Чтение через 3 минуты
Присоединяйтесь к беседе Раздаточный материал
Статья content
Спустя три года после того, как самое ценное украшение Дани Якобсен было случайно смыто в унитаз, обыск в септике Salmon Arm вернул удивленной женщине из Нанаймо бриллиантовое обручальное кольцо и кулон.
Объявление 2
История продолжается ниже
Это объявление еще не загружено, но ваша статья продолжается ниже.
Содержание статьи
Драгоценности, в том числе обручальное кольцо Якобсена и пара бриллиантовых серег, были смыты, когда семья жила в центральной части Британской Колумбии. город после того, как ее сын Коэн, которому тогда было два года, нашел их на краю ванны.
Приносим свои извинения, но это видео не удалось загрузить.
Попробуйте обновить браузер или
нажмите здесь, чтобы посмотреть другие видео от нашей команды.
Настоящая любовь: Настойчивый муж залезает в выгребную яму в поисках потерянных драгоценностей жены Вернуться к видео
Когда его родители спросили его, знает ли он, где находятся драгоценности, Коэн ответил, что он «смыл мамочкины прелести».
NP Опубликовано
Подпишитесь на получение ежедневных главных новостей от National Post, подразделения Postmedia Network Inc. Inc. Вы можете отказаться от подписки в любое время, нажав на ссылку отказа от подписки в нижней части наших электронных писем или любого информационного бюллетеня. Постмедиа Сеть Inc. | 365 Bloor Street East, Торонто, Онтарио, M4W 3L4 | 416-383-2300
Содержание статьи
«Нам это надоело. Это заставило мой желудок сжаться», — сказал Якобсен.
Ее муж Дэвид сломал унитаз в поисках украшений, залез под дом, чтобы разобрать трубы под унитазом, и выкопал трубы, ведущие к септической системе, — все безрезультатно.
Следующим шагом было заняться заполненным отходами септиком размером 5×8 футов.
Джейкоб Старниски, совладелец компании Reliable Septic Services в Salmon Arm, был нанят для тщательной откачки отходов. Когда от шлама осталось всего несколько футов, Дэвид вошел в пятифутовый резервуар через двухфутовое отверстие.
Объявление 3
История продолжается ниже
Это объявление еще не загружено, но ваша статья продолжается ниже.
Содержание статьи
«Он оделся, вошел и попытался это сделать, благослови его Бог», — сказал Старниски, который стоял наверху резервуара и работал с модифицированным всасывающим шлангом с сеткой на конце.
Но через пару часов стало очевидно, что украшение не может быть найдено.
Раздаточный материал
Якобсен сказала, что она и ее муж небогаты, и драгоценности не могут быть легко заменены.
«С финансовой точки зрения это было ударом под дых, зная, что деньги, потраченные на украшения, были буквально выброшены в унитаз», — сказал Якобсен, который оценивает помолвочное кольцо и кулон примерно в 3000 долларов.
Она сказала, что даже несмотря на то, что семья переехала в Нанаймо и сдала в аренду свой дом Salmon Arm, они всегда подозревали, что драгоценности все еще могут быть там. Старниски тоже никогда не забывал.
Объявление 4
История продолжается ниже
Это объявление еще не загружено, но ваша статья продолжается ниже.
Содержание статьи
Когда недавно супруги решили продать этот дом Salmon Arm, им нужно было почистить септик, поэтому они повторно наняли Старниски.
Хотя его не просили искать драгоценности, он решил попробовать еще раз.
«Я думаю, что в первый раз (танк был обыскан) он застрял в очереди. Но со временем гравитация взяла верх, и он опустился на дно резервуара. Поскольку я знал эту историю, мы приняли меры предосторожности, и после того, как я прокачал ее до дна, я увидел, что она (драгоценность) просто сияет там».
Якобсен сказал, что со стороны Старныски было чрезвычайно великодушно продолжать поиски.
«Он потрясающий. Такой милый парень. Очень, очень хороший человек. Я был поражен тем, что он нашел время для медленного и методичного поиска», — сказал Якобсен.
Объявление 5
История продолжается ниже
Это объявление еще не загружено, но ваша статья продолжается ниже.
Содержание статьи
«Возвращение помолвочного кольца — это, конечно, нечто особенное, но кулон для меня — самое дорогое, что у меня есть. Имеет огромное сентиментальное значение. Мой муж сделал это для меня после выкидыша».
Хотя дом Salmon Arm уже продан, Якобсен надеется, что новые владельцы дадут им знать, если когда-нибудь обнаружатся пропавшие обручальное кольцо и бриллиантовые серьги.
«Если Джейк (Старныски) выйдет (почистить резервуар), я уверен, что он его найдет».
И в то время как пятилетний Коэн вышел из «этапа смывания», его брат Грейди, которому сейчас два года, находится в разгаре своего собственного: В первый день в их доме в Нанаймо Грейди смыл пробку ванны в туалет.
Поделитесь этой статьей в своей социальной сети
В тренде
Рекс Мерфи: Либералы Трюдо идут на ваши рабочие места
Борис Джонсон не мог выжить на зарплату премьер-министра в размере 270 тысяч долларов, поэтому ему помог богатый канадский двоюродный брат0206
Является ли внезапная отставка Джасинды Ардерн превью грядущих увлечений Трюдо?
Mejuri открывает магазины в Калгари, Монреаль
Канадский ювелирный бренд Mejuri расширяет свое присутствие, открывая два новых магазина с интервалом в одну неделю в Калгари и Монреале.


Для этого нужно соблюдать государственные санитарно-строительные нормы.