Содержание
как правильно рассчитать, особенности, проем в перекрытии
Проектирование любой конструкции начинается с определения параметров отверстия в межэтажном перекрытии — лестничном проеме. От правильности подбора зависит комфорт передвижения и безопасность всех жильцов дома.
Параметры лестничного проема зависят от его вида:
- Круглый или овальный — самый компактный и изящный. Его используют для винтовых конструкций. При строительстве следят, чтобы верхние ступени попадали в саму окружность.
-
Прямоугольный — вариант для классических лестничных конструкций. Он легко проектируется и устанавливается.
Особенности расчетов
Проектирование лестницы лучше начинать на этапе строительства дома, чтобы устраивала и внешняя составляющая, и удобство пользования. Для проема отдельно просчитываются его длина и ширина, параметры самой конструкции, крутизна ступеней, расстояние между перекрытиями, размеры ограждения, перил.
Если лестница ведет на мансарду или в жилую комнату, ширина выхода будет не более 60 — 70 см. В просторных помещениях данная величина должна составлять минимум 0,8 м.
Для расчета необходимо знать:
- Ширину марша;
-
Для одномаршевой конструкции полную ее высоту, многомаршевой — одного пролета; -
Итоговую длину готового изделия; -
Ширину отдельно взятой ступени.
Специалисты рекомендуют брать высоту ступенек 15 — 18 см. Допустимы величины как 12 так и 20 см. Чтобы рассчитать эту величину, необходимо получить частное от деления полной высоты лестницы на размер подступенка.
Один стандартный марш состоит из 3 — 16 ступенек. Если их больше, в конструкцию добавляют площадки. Зная все указанные величины, вычисляется предельно допустимая высота до верхнего уровня.
Общий алгоритм расчетов таков:
-
Замеряется расстояние между полом нижнего этажа и верхом перекрытия; -
К полученной величине прибавляется толщина самого перекрытия; -
От этой цифры отнимается высота одной ступени, пока итоговое значение не станет 2 метра.
«Отминусованные» ступеньки размещаются по высоте между перекрытиями, оставшиеся — должны войти в пространство лестничного проема.
Для готовых перекрытий
Добиться комфортности передвижения можно увеличением угла подъема или уменьшением размеров проступи (в модульных конструкциях эта величина может составлять 16 см).
Чтобы лестница оптимально вписалась в имеющийся проем, необходимо учесть:
- Расположение его отверстия. Оптимально размещать лестничную конструкцию параллельно несущим элементам. Следует помнить, что во время установки значительно уменьшится площадь пола.
-
Ширину лестницы. Для выхода в одну комнату достаточно проема 60 см. Если помещений больше, то и пространства для подхода к ним должно быть достаточно. -
Длину проема — необходимо минимум 2 метра.
Перед строительством лестницы полезно иметь в голове представление, как она впишется в обстановку.
Так проще подобрать материал и тип ограждений. Вы можете вдохновляться фото дизайнеров или обратиться в нашу компанию. Специалисты помогут сделать лестницу красивой и функциональной. Наш каталог деревянных лестниц тут.
обзор конструкций лестниц на второй этаж, пример расчёта параметров и пошаговые рекомендации по сборке
Частный дом в 2 этажа или загородная дача с мансардой подразумевают, что хозяин будет делать лестницу. Некоторое количество свободного времени и навыки плотника дают возможность сделать это своими руками.
Лестницы из дерева могут быть маршевыми, винтовыми или комбинированными, дополнительно содержать современные пластиковые материалы, стекло, элементы ковки.
Деревянные лестницы
Дерево – доступный и легкий в обработке материал. Наиболее распространенным сортом в России является сосна. Чтобы впоследствии лестницы деревянные не начинали темнеть, их мягкая текстура из сосны должна пройти необходимую подготовку.
Относительно дорогие сорта – лиственница, дуб, бук – дают возможность сделать сделать деревянную лестницу более долговечной, красивой и надежной.
Плотная структура этих пород обладает повышенной стойкостью к износу.
Технические требования к деревянной лестнице на второй этаж
Чтобы снизить риск передвижения по лестнице, необходимо при проектировании следовать строительным нормам:
- Ширина любого подъема может быть не менее 0,6 м – это вызвано тем, что линия хода по ломаным или криволинейным маршам расположена в среднем на 30 см от края.
- Для одного марша даже необычные лестницы должны иметь не более 16 и не менее 3 ступенек.
- Не допускается наличие ступеней с разной высотой.
- Лестничную площадку нельзя сделать меньше 1 м и уже, чем сам марш.
- Ограждение должны выдерживать нагрузку более 0,3 кН/м и быть выше 0,9 м.
- Первая и последняя ступени требуют хорошего освещения. Они являются наиболее травмоопасными из-за возможности соскальзывания ноги.
- Нужно учитывать, что винтовые лестницы затрудняют эвакуацию.
- Лестница в доме, имеющая большой уклон, занимает меньше места, но она и наименее удобна в эксплуатации.

- 1 м ширины и 25-35° угла наклона – наиболее комфортные параметры для маршевой лестницы.
- Ширина проступи и удвоенная высота подступенков вместе должны быть около 60-65 см – это принятая в строительстве длина шага человека.
Для каждого типа помещения нужно подобрать наиболее подходящую форму лестницы на второй этаж. Их разделяют на следующие виды деревянных лестниц:
- прямые;
- винтообразные;
- П-образные;
- модульные;
- Г-образные.
Простая лестница с прямыми маршами занимает наибольший объем, но лучше подходит пожилым людям и детям. Винтовые лестницы более компактны, но громоздкие вещи и мебель переносить по ним невозможно.
К тому же нужно правильно рассчитать градус для поворотных элементов, длину марша, размер и количество ступеней, толщину подступенков и их высоту, ширину лестницы.
Расчет основных параметров лестницы
Планировку помещения и его особенности учитывают в начале подготовки проекта.
Кроме общей площади комнаты, принимают во внимание:
- дверные проемы;
- расположение стен;
- место, где находится проход в потолке;
- расстояние от потолка до пола на 1 этаже.
Ширина
В двухэтажном загородном доме или коттедже ширину лестницы лучше брать более 0,8 м, а площадку делать не менее 90 см. Это предоставит возможность спокойно поднимать габаритные вещи и мебель на второй этаж.
Если позволяет площадь, то ширину красивой деревянной лестницы желательно сделать 1,20 м. Такая величина взята из рекомендаций профессиональных плотников и является наиболее комфортной и удобной в эксплуатации.
Чтобы конструкция выглядела фундаментально, минимальная для изготовление лестницы ширина должна быть 140-150 см, в этом случае без проблем одновременно могут двигаться 2 человека.
Если пространство, отведенное для проекта, небольшое, то можно использовать лестницу в доме из бруса, которая называется «гусиным шагом».
Подъем делают с углом наклона до 60°, а чтобы компенсировать большой угол, используют изготовленные из древесины ступени неодинаковой ширины.
Их изготавливают с одного края в 2 раза меньше чем с другого, с переходом, выполненным плавно по длине. Расчеты не должны предусматривать марш с «гусиным шагом» уже чем 0,9 м, т. к. это может привести к разрушению материалов, из которых изготавливается ступень.
Форму перил, балясин, концевых столбов, других элементов ограждения при подготовке лестницы своими руками закладывают в общую ширину конструкции.
Если ставят винтажную конструкцию, то полезная площадь для движения по ней сокращается из-за того, что неравномерно распределяется ширина проступи: к осевому соединению величина уменьшается. Передвигаться в этой части небезопасно и неудобно.
Порой применяют модели компактного вида, например раскладные: они имеют 60 см в ширину и тонкие складные поручни. В этом случае проем в потолке должен быть не менее 1 м².
Длина
Требования, которые нужно выполнить при проектировании и замерах, прежде чем приступить к строительству:
- готовое изделие не может примыкать к окнам, дверям и в некоторых случаях вплотную к стенам;
- проем на второй этаж должен проходить между балками перекрытия, если оно выполнено из дерева;
- для комфортного передвижения нужно подобрать подходящую конструкцию изделия.

Средний рост человека принимают за 185 см. Поэтому в каждом месте подъема высота до условного потолка необходима более 2 м. Соответственно, угол наклона и длина лестницы должны это учитывать.
Лестницу, которая выполняется с прямым маршем, рассчитывают 2 способами. Можно использовать графический метод:
- Замеряется или выясняется у строителей ширина межэтажного перекрытия и высота первого этажа.
- Делается проекция в вертикальной плоскости на плане помещения, где видно место потолочного проема.
- По информации об угле наклона и высоте чертится прямоугольный треугольник. На эскизе проекцию делаю так, чтобы учесть возможные ограничения (по расположению к дверям или недостаток общей площади).
Если крутизна марша превысит 40-45°, то нужно рассмотреть вариант монтажа деревянной лестницы с поворотной конструкцией.
Другим способом расчета является применение геометрических знаний. Стороны треугольника рассчитываются по тригонометрическим соотношениям.
Если математические формулы после школы со временем забыты, то можно воспользоваться онлайн-калькулятором.
Высота
Высота установки лестницы определяется расстоянием от пола до потолочного перекрытия. Она остается неизменной, несмотря на длину конструкции, угол наклона марша и тип изделия.
Расстояние в 1,95-2 м между ступенями и потолком можно сохранить, если расположить 2 последние ступеньки в межэтажном перекрытии. В этом случае высота немного увеличится.
Потолочный проем придется выполнить шире, если уменьшается высота этажа и лестницы. Если от этого отказаться, то человек будет вынужден сгибаться при подъеме.
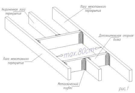
Параметры проема в перекрытии
На безопасность подъема и спуска, возможность перемещения мебели и крупногабаритных вещей влияет то, как сделан проем в потолке. Он должен быть выполнен без ошибок, влияющих на прочность перекрытия, и хорошо укреплен.
Виды проемов выбирают в зависимости от типа лестничной конструкции и решения дизайнера.
Форма выхода на этаж может быть:
- Прямоугольной. Это наиболее распространенный вариант. Спроектировать и правильно сделать прямоугольник легче всего. Для прямых маршей длина стороны будет наибольшей. Для винтовых и многомаршевых конструкций – меньше.
- Полукруглой или эллипсоидной. Подходит для поворотных лестниц – спиральных или винтовых. Бывает, что закругленный вход используется и для прямых маршей.
- Круглой. Если ступени винтовой лестницы гармонично вписывается в окружность, это придает конструкции аккуратный и изящный вид.
- В виде многогранников, трапеций, других нестандартных решений. Чаще всего такие проемы делаются по оригинальным дизайнерским задумкам. Функциональной нагрузки сложные формы не несут.
Предельные размеры для выхода на лестницу зависят от конструкции перекрытия наверху. Также на величину проема влияет то, в какую часть второго этажа или мансарды сделан вход.
Если это специальный холл, то размер можно увеличить, а если выход расположен в жилой комнате, его желательно сделать меньше.
Количество промежуточных площадок и использование забежных ступеней, тоже сокращают размеры проема.
Порядок проектирования зависит от того, что сделано первым. В том случае, когда проем уже есть, например, в железобетонной плите, выбирают характеристики лестницы так, чтобы не было необходимости пробивать дополнительные участки. Если лестница уже готова, подбирают параметры прохода и изменяют его (при необходимости).
Когда расчет производится на этапе строительства сооружения с разборным перекрытием, то, зная параметры ступени, угол наклона и высоту пролета, можно понять, на какой ступени лестницы человек упрется головой в потолок. Отступив назад от этой точки 20-30 см, нужно отсчитывать длину проема.
Уклон лестницы
Наклон в 30-40° считается наиболее безопасным и удобным. Уклон конструкции играет большую роль при применении прямых маршей. Увеличение угла может быть вызвано недостатком площади, но значения больше 40-50° используется редко, т.
к. подъем для пожилых людей и детей затруднен.
Рассчитывают угол исходя:
- из размера ступеней и их количества;
- из ширины (глубины) проступи;
- из длины проекции по горизонтали всего марша;
- из длины лестницы (ее тетив).
Проще всего воспользоваться онлайн-калькулятором, в который понадобится вставить нужные величины. Для более точных вычислений дополнительно нужно продумать величину выступа за край ступени, толщину тетивы, ширину всего марша.
Параметры ступени
Чтобы рассчитать количество ступеней, которые понадобятся для строительства любого типа лестниц, нужно:
- Замерить высоту от пола до потолка (до плиты перекрытия) – h.
- Разделить расстояние на 0,15-0,2 – наиболее удобную и безопасную высоту 1 ступени. Например, h:0,15=16,666. Округляем до 16 шт. Получаем количество ступенек, которые будут в лестнице.
- Уточняем без округления (h:16=0,156 м) высоту 1 ступени.
- Теперь нужно узнать, под каким углом расположить лестницу.
Воспользуемся онлайн-калькулятором, который может рассчитать углы треугольника по 2 сторонам и углу. - 25-30 см – ширина проступи, которую наиболее часто используют профессиональные строители. 90° – один из углов прямоугольного треугольника.
- Вводим стороны 0,156 и 0,25 м и угол 90° в программу и получаем 30,96° – наклон конструкции с прямым маршем.
Если под таким углом расположить лестницу не позволяет длина выделенного пространства, то нужно заменить прямой марш ломаным или винтовым.
Когда ширина перекрытия требует добавить еще одну ступеньку, увеличиваем общее число на 1.
Устройство деревянной лестницы своими руками
Если есть некоторые навыки работы руками, то изготовить лестницу из дерева нетрудно.
В случае когда опыт изготовления изделий небольшой, лучше выбрать прямую маршевую конструкцию, чтобы получилась прямая лестница на второй этаж.
Изготовление поворотных ступеней и винтовых лестниц – задача более сложная.
Материал для работы подбирают исходя из своих финансовых возможностей. Наиболее твердыми являются бук, дуб, лиственница. Более бюджетный вариант – это сосна. При хорошей обработке современными пропитками она простоит долго.
Выбор схемы лестницы
Если площадь помещения позволяет, то лучше сделать широкие маршевые лестницы (прямые или ломаные) – они обладают хорошей прочностью и устойчивостью, несложные в изготовлении. Пространство под простой одномаршевой конструкцией может быть использовано для хранения инструмента, других нужных в хозяйстве предметов.
Единственный недостаток – они занимают больше всего места. Положение 2 маршей может быть под углом 90 или 180°. За счет общей длины они помогают уменьшить наклон конструкции, получится не такая крутая лестница на второй этаж.
Винтовая лестница с таким же количеством ступенек позволит дополнительно сэкономить пространство.
К тому же она требует меньшего размера проема в потолке. В ширину последнего входит также величина балясин и перил.
Подготовка материалов, фурнитуры и крепежных элементов
Материал для деревянной лестницы:
- Бруски шириной минимум 50 мм и длиной, равной размеру всего марша,- для изготовления косоуров или тетив.
- Для проступей понадобятся доски шириной от 40 мм.
- В качестве подступов можно использовать дерево тоньше, например 3 см.
- Более привлекательной конструкция будет выглядеть, если купить готовые балясины и перила. Самостоятельное их изготовление без токарного станка представляет некоторую сложность.
Чтобы скрепить детали между собой, нужны саморезы, шурупы, болты анкерного типа.
Подготовка нужных инструментов
Также в хозяйстве должен иметься инструмент:
- рубанок;
- бумага наждачная;
- молоток;
- шуроповерт или дрель с различными приспособлениями;
- выбор отверток;
- временная лестница;
- электрический лобзик или ножовка.

Пригодятся нужные мелочи: строительная линейка, уголок, рулетка, карандаш.
Сборка каркаса
Несущие детали у лестницы – это тетива или косоур. Если ступени крепятся с внутренней стороны, то используется тетива. Если кладутся сверху на конструкцию, то косоур.
Чтобы сделать конструкцию более жесткой, применяют центральный косоур с двумя боковыми. Лестница с тетивами будет занимать больше места при одинаковой ширине ступеней. Она выглядит элегантнее и дороже. Порядок сборки:
- Для начала нужно изготовить трафарет из фанеры, на котором нанести ширину проступи и высоту подступенка, и вырезать его.
- С помощью шаблона легко нанести разметку на косоуры или тетивы.
- Электролобзиком выпиливаем требуемые элементы и прорези.
- Предварительно обрабатываем заготовки.
При креплении к косоуру нужно периодически проверять, чтобы горизонты совпадали. Для этого пользуются строительным уровнем. Ступени к косоуру крепят с помощью саморезов.
Монтаж составных частей
На лестничном марше (в начале и конце) устанавливаются концевые балясины. Опорами для них является пол 1 и 2 этажей. Дальше натягивают шнур и к ступеням лестничного марша крепят остальные промежуточное балясины.
Украшением готового изделия могут стать поручни. После окончательной отделки они будут выглядеть завершенно, с выделенной натуральной фактурой.
Прочная конструкция получится, если в поручнях сделать специальные пазы, куда можно будет вставить балясины. Чтобы вся конструкция выглядела цельной и гармоничной, углы лестничной системы нужно ровно подпилить.
Готовую поверхность следует очистить от грязи, которая скопилась на этапе строительства.
Финишная обработка
На окончательном этапе зазоры и трещины шпаклюются. После высыхания шпаклевки производят финишную отделку.
Для защиты от воздействия внешних факторов и чтобы подчеркнуть естественную фактуру материала, дерево обрабатывают морилкой, цвет которой сочетается по интерьеру с общим тоном, и покрывают лаком для паркета.
Чтобы сделать лакировку и полировку правильно, нужно знать некоторые нюансы:
- Собирать пыль лучше всего с помощью безворсовой ветоши.
- Промежуточные слои и сухое покрытие шлифуют предварительно шкуркой.
- Чтобы создать блеск изделия и придать ему матовый эффект, применяют известняковые порошки с добавлением пемзы.
- Защитить дерево от воды и навести глянец поможет восковая паста для отделки.
- Распределить равномерно и быстро по поверхности масла для пропитки можно с помощью поролоновых валиков.
- Лак на финишном этапе наносят с помощью хлопчатобумажных тампонов без швов.
Масла на минеральной основе – тунговое, ореховое, льняное – подходят для отделки деревянных поверхностей. Они используются для того, чтобы сделать внешнюю структуру лестницы в деревянном доме более четкой и являются экологически чистым материалом.
Кроме этого, можно использовать «датское масло». Это смесь из лака и масел с содержанием спирта и с добавлением специальных составов, называемых сиккативами, которые сокращают срок просушки изделия.
Хорошо характеризуются современные лаки на водной основе. Их коэффициент прозрачности превосходит минеральные вещества. Перед тем как наносить покрытие на лестницу, лучше потренироваться основам технологии на куске подходящей доски.
Читать еще
Советы по сочетанию новой и существующей твердой древесины
101
акции
Поделиться
Твит
Как вы можете сочетать существующие паркетные полы и новые паркетные полы?
Большинство домов в округе Вестчестер имеют полы из твердой древесины, по крайней мере, в некоторых частях дома. Паркетный пол на сегодняшний день является предпочтительным выбором напольного покрытия, особенно в домах среднего и высокого класса.
Тенденция заключалась в том, чтобы добавлять древесину в большинство помещений дома, и нам часто звонят клиенты, которые хотели бы добавить древесину в места, где ее не хватает, например, на кухне, в прихожей, гостиной или на втором этаже… все.
варьируется в зависимости от того, как был построен ваш дом.
Хорошей новостью является то, что обычно довольно легко подобрать гармонирующий вид с имеющейся у вас твердой древесиной.
Обратите внимание, что эта статья может содержать партнерские ссылки. Вы можете прочитать мое полное раскрытие внизу страницы.
Соответствие нового и существующего паркета – видеоролик
Вот факторы, которые необходимо учитывать при подборе существующего и нового паркета:
6 90. этаж)
Большинство домов в Вестчестере имеют полы из твердой древесины толщиной 3/4″. Гораздо проще подобрать, если у вас твердая древесина. Примечание: есть некоторые дома, которые сделаны из твердой древесины, и это может быть очень сложно, если не невозможно, подобрать, если вы не знаете производителя / предмет (а он все еще производится).
Но в большинстве домов здесь есть твердая древесина, что является хорошей новостью как для долговечности, гибкости цвета, так и для «сочетаемости».
Важно, чтобы новое помещение, где вы будете укладывать, имело основание из фанеры толщиной 3/4″. (Примечание: если у вас бетонный пол, укладка массивной древесины будет намного сложнее (и, вероятно, дороже). Подробнее об этом можно узнать здесь: Цельная древесина против инженерной лиственной.
проверьте, совпадает ли высота вашего черного пола с существующим черным полом для другого дерева. Если это так, ваша высота должна быть ровной. Если это не так, вы можете попробовать удалить еще один слой фанеры или добавить новый, в ожидании разница в росте
2. Порода/сорт лиственных пород
Следующим шагом является определение породы и сорта древесины. Большинство домов в Вестчестере и на Восточном побережье имеют дубовые полы. Но, конечно, не все так просто. Первый вопрос заключается в том, какой у вас пол из красного дуба или белого дуба.
Это 2 разных вида, и вам нужно подобрать правильный. Узнать больше о напольных покрытиях из красного и белого дуба можно здесь.
Обратите внимание, что существуют и другие распространенные породы дерева, такие как клен, дугласовая пихта и желтая сосна. Если ваш дом построен в 1920 лет или раньше, есть большая вероятность, что у вас есть один из этих видов. Подробнее о самых распространенных напольных покрытиях вы можете узнать здесь.
Следующим шагом является определение сорта древесины. У вас есть отборный сорт или № 1 или № 2. Существуют также другие виды древесины, такие как распиловка и распиловка на четверть. Более подробно о сортах паркетной доски вы можете узнать в этой статье.
Хотите посмотреть продукты для мытья полов, которые я рекомендую? Это мой первый выбор пылесос для паркетных полов , лучшая паровая швабра для кафельных полов и лучший очиститель паркетных полов.
Вы можете увидеть все мои реко на моей странице Amazon Influencer .
3. Ширина
Обычно это проще всего вычислить. Просто возьмите рулетку и измерьте текущую ширину вашего дерева. Большинство домов Вестчестера, особенно построенные до 2000 года, имеют стандартные полосы шириной 2 1/4 дюйма. Стандартные размеры полов из массива дуба: 2 1/4″, 3 1/4″, 4″ и 5″.
Теперь, если вы хотите сделать больший размер, чем тот, который у вас есть сейчас, это возможно. Решение об этом должно быть основано на предпочтениях и эстетике, и это может зависеть от площади и формы комнаты (комнат), которые делаются.
Большинство людей предпочитают более широкие доски, так как это более стильно и делает комнату больше. Но в некоторых случаях это может выглядеть неуместно, если остальная часть пола составляет 2 1/4 дюйма. Вот несколько случаев, когда имеет смысл увеличить ширину:
- Если вы добавляете древесину на другой уровень (например, если у вас есть 2 1/4″ на 1-м этаже, и вы добавляете древесину на 2-й этаж.

- Если вы добавляете древесину на кухню и пытаетесь выделить ее и/или идете по диагонали или в другом направлении для кухни. Это работает в некоторых макетах и не работает в других. Это приговор.
- Если вы добавляете древесину в главную спальню и пытаетесь обновить ее/отделить. Опять же, это работает в некоторых макетах, но не в других. Это также хорошо работает, когда это квадратная комната, и вы кладете дерево по диагонали.
ПОДОЖДИТЕ! Вы собираетесь шлифовать полы? Не знаете, как долго ждать, прежде чем использовать их? Избегайте этих распространенных ошибок, которые могут повлиять на долговечность вашего пола! СКАЧАТЬ ХРОНОГРАММУ ЭТАЖА ЗДЕСЬ!
4. Цвет
Как правило, если у вас пол из твердой древесины дуба, при условии, что вы соответствуете существующей породе и сорту, вы, как правило, можете отполировать древесину, чтобы она соответствовала морилке на существующей части.
(Это предполагает, что вы нанимаете профессиональную компанию по шлифовке твердых пород древесины).
Обратите внимание, что, поскольку твердая древесина со временем темнеет, это может быть не точное совпадение, но оно будет довольно близким. Также обратите внимание, что если у вас на полу есть нестандартная смесь пятен, подобрать ее может быть сложнее, а также если вы использовали воск для полового покрытия (примечание: некоторые чистящие средства содержат воск).
Важно отметить, что если вы добавляете одинаковую породу дерева на свои полы, у вас есть возможность перекрасить все полы и изменить все цвета, чтобы они были однородными. Часто вы можете сделать светлее или темнее, в зависимости от ваших предпочтений. См.: Можно ли изменить цвет паркетных полов?
Если вы хотите узнать о самых популярных цветах морилки для паркета, прочтите эту статью.
5. Направление дерева и необходимость переплетения В
древесину следует укладывать перпендикулярно балкам или по диагонали для обеспечения наилучшей устойчивости.
Однако иногда домовладельцы делают стратегический выбор, чтобы изменить направление дерева.
Одной из причин изменения может быть желание подчеркнуть большую длину комнаты (если она прямоугольная). Другой причиной этого может быть желание изменить ширину дерева в новой области. Или это может быть связано с тем, что цвет может быть другим (и / или он может немного отличаться от существующего, и изменение направления обманывает взгляд). И четвертая причина для изменения направления может заключаться в том, чтобы избежать переплетения в твердой древесине. Это приводит к следующему выбору…
Следует ли вплетать твердую древесину в существующую древесину? Это зависит от направления древесины, а также от бюджета и площади, которую необходимо выполнить. Не существует единого размера для всех. Если новая древесина параллельна существующей древесине, это не проблема, поскольку древесину не нужно вплетать; скорее, он будет просто уложен рядом с существующей древесиной.
Но, если древесина течет в одном направлении, вы можете подумать о том, чтобы вплести ее в существующую древесину, так как это сделает ваше пространство больше. Конечно, если вы сделаете это, вы ДОЛЖНЫ использовать ту же ширину, что и существующая твердая древесина.
(Примечание: очень сложно плести новую древесину, если у вас сосновые полы, так как древесина фрезеруется разной ширины по сравнению с более чем 100-летней давностью, поэтому части не будут выстраиваться).
Если вы вплетаете новую твердую древесину, вы должны отшлифовать и отполировать существующую комнату , в которой была вплетена новая необработанная древесина. Для многих это не проблема, поскольку многие могут захотеть изменить цвет и/или возможно, пришло время отремонтировать существующую область из-за нормального износа. Для других это создает эффект домино и увеличивает объем проекта.
Очевидно, ткать из дерева стоит дороже.
Требуется больше труда (и у вас должен быть кто-то опытный в этой области), и вам нужно больше дерева, чтобы выполнить эту работу. Кроме того, вам нужно отремонтировать большую площадь.
В качестве альтернативы можно рассмотреть возможность добавления заподлицо (или полного седла) для разделения новой и старой областей. Если переходная область является дверным проемом, это выглядит нормально (и может сэкономить вам деньги позже, если вам нужно отделать одну из областей, а не всю область).
Но, если это длинный переход (например, если это открытая планировка от кухни к гостиной или столовой), это может выглядеть немного странно. Это суждение как с точки зрения эстетики, так и бюджета. Но помните, это постоянное изменение. Как только вы сделаете выбор, вы не сможете легко отменить свое решение спустя годы. Так что планируйте на долгосрочную перспективу.
ПОДОЖДИТЕ!
Вы собираетесь шлифовать полы? Не знаете, как долго ждать, прежде чем использовать их? Избегайте этих распространенных ошибок, которые могут повлиять на долговечность вашего пола!
СКАЧАТЬ ВАШУ ЭТАЖНУЮ ГРАФИКУ ЗДЕСЬ!
6.
Переходы
В ожидании принятия вышеуказанных решений и областей, которые необходимо выполнить, вам могут понадобиться переходные полосы. Если дерево одинаковой высоты, вы можете сделать седло заподлицо. Или седло может работать лучше, если у вас есть седла в дверных проемах (в качестве альтернативы можно использовать Т-образный молдинг, поскольку он имеет гораздо более низкий порог высоты). Если высота в разных комнатах разная, можно использовать переходник или седло. Все они должны быть сделаны из подходящей древесины твердых пород, чтобы они выглядели так, как будто они принадлежат им.
Заключение по сопоставлению новой и существующей древесины лиственных пород
Если у вас есть твердая древесина лиственных пород, профессиональный подрядчик по укладке паркетных полов относительно просто подберет то, что у вас есть. Важно смотреть на высоту, тип, породу, сорт, ширину, цвет и направление древесины.
Дайте нам знать, что вы думаете об этой статье в комментариях, и если вы считаете, что она будет полезна вашим друзьям, поделитесь ею в социальных сетях.
Для получения дополнительной информации ознакомьтесь с моей электронной книгой – 6 часто задаваемых вопросов по ремонту лиственных пород.
Дополнительные продукты, которые продлят срок службы ваших деревянных полов
- Средство для чистки деревянных полов Bona
- Войлочные прокладки для защиты пола
- Коврик для офисного кресла
- Носки для собачки
Советы по сочетанию новых и существующих деревянных полов | Вестчестер Каунти, штат Нью-Йорк,
Сохранить
Установка деревянного пола на лестнице
При ремонте дома или помещения необходимо принять множество решений, особенно когда речь идет о напольном покрытии.
Паркетные полы — один из самых популярных вариантов, которые люди выбирают для своей гостиной, столовой, кухни и прихожей, но есть и другие комнаты или места в доме, где деревянные полы встречаются не так часто, например, лестницы.
Тем не менее, ради единообразия и многих преимуществ установки полов из твердой древесины вместо, скажем, ковра, вы можете выбрать напольное покрытие из твердой древесины на своей лестнице, и если вы рассматриваете это, то давайте посмотрим плюсы, минусы и как это можно сделать.
Каковы преимущества деревянных полов на лестницах
Эстетическая привлекательность деревянных полов, пожалуй, самая популярная причина, по которой люди выбирают их для укладки в своих домах. Он вечен, долговечен и отлично смотрится в любом интерьере.
Это также, вероятно, будет самой просматриваемой частью вашего дома в зависимости от его расположения, так как каждый раз, когда вы открываете входную дверь, ваша лестница будет видна всем, кто находится с другой стороны, и это будет одна из первых вещей. люди видят, когда входят в ваш дом, поэтому часто возникает необходимость произвести большое впечатление с помощью вашей лестницы.
Тем не менее, паркетные полы всегда будут иметь длительный эффект и выделяться больше, чем традиционный вариант ковра.
Более того, если в большей части вашего дома, особенно в прихожей/прихожей, паркетные полы, то их установка на лестнице поможет сохранить постоянство и текучесть в вашем доме.
Лестницы также являются наиболее опасной зоной в доме, когда дело доходит до загрязнения, поскольку гости часто бегают вверх и вниз, чтобы воспользоваться ванной и забывают снять грязную обувь.
К сожалению, лестницы, покрытые коврами, также труднее всего чистить (вы когда-нибудь пробовали чистить лестницу пылесосом — это утомительно!). В этом отношении паркет
намного проще в уходе. Вы можете стирать грязь, не опасаясь появления пятен или обесцвечивания, и никогда не останется следов от обуви.
Деревянные полы имеют гораздо больше преимуществ, которые мы более подробно рассмотрим в нашем блоге «Преимущества деревянных полов в вашем доме».
Чем опасны деревянные полы на лестницах
Самым большим аргументом против установки деревянных полов на лестницах является вопрос безопасности.
Лестницы представляют собой серьезную опасность: один человек в Великобритании падает с лестницы каждые 90 секунд, что делает эту область дома наиболее распространенной для получения травм.
В результате многие домовладельцы выбирают в этой области более мягкий и безопасный тип напольного покрытия, например, ковер, чтобы снизить вероятность серьезной или даже смертельной травмы в случае падения или спотыкания на лестнице.
Риск увеличивается для тех, кто более уязвим, таких как пожилые люди, дети и менее трудоспособные люди.
Следовательно, если в вашем доме живут или регулярно посещают людей, которые подвергаются повышенному риску несчастного случая на лестнице, вы можете переосмыслить установку паркетных полов или, по крайней мере, рассмотреть способы их защиты, если вы решили установить его.
Одним из вариантов может быть укладка паркета, а затем установка поверх него лестничного марша.
Лестничная дорожка — это кусок ковра, который не покрывает всю ширину лестницы, поэтому твердая древесина остается открытой с обеих сторон.
Это не только защищает людей от падения на твердой поверхности, но и выглядит потрясающе.
Единственным другим недостатком, который вы, вероятно, услышите, когда речь идет о деревянных полах на лестницах, является то, что их укладка занимает гораздо больше времени, и они не очень хорошо поглощают звук.
Хотя и то, и другое верно, должны ли они повлиять на ваше решение, зависит исключительно от ваших личных предпочтений и потребностей.
Установка деревянного пола на лестнице
Установка деревянного пола на лестнице относительно проста и должна начинаться с нижней части лестницы.
В зависимости от размера вашей лестницы установка новых деревянных полов займет всего один день, но это означает, что во время процесса эта площадь не будет использоваться.
Процесс установки заключается в простом измерении каждой ступеньки, соответствующей обрезке деревянной доски и использовании гибкого клея для приклеивания древесины к лестнице. Вам также нужно будет нанести накладки на ступеньки (молдинг, который покрывает край каждой ступени и соединяет пол вместе) с тем же клеем, чтобы убедиться, что все остается на месте.
Каждая ступенька должна быть ровной и находиться под углом 90 градусов, поэтому может потребоваться некоторая подготовка, если у вас есть лестница, местами неровная.
Даже если у вас есть опыт в укладке напольных покрытий, основная трудность заключается в том, насколько аккуратно вы должны быть аккуратны при резке досок из твердой древесины.
Вот почему мы советуем вам обратиться к профессиональному монтажнику, когда дело доходит до укладки вашего деревянного пола. Хотя этот процесс не так сложен, как может показаться, если вы хотите, чтобы работа была выполнена до высокий стандарт, то вы должны смотреть на передача услуг кому-то вроде нас .
Если вам нужна дополнительная информация о продлении чердака вашего деревянного пола или если вы заинтересованы в каком-либо из наших продуктов или услуг, позвоните нам сегодня по телефону 0121 684 4772 или напишите по электронной почте info@innerspaceflooring.

Плотная структура этих пород обладает повышенной стойкостью к износу.

Если математические формулы после школы со временем забыты, то можно воспользоваться онлайн-калькулятором.
Воспользуемся онлайн-калькулятором, который может рассчитать углы треугольника по 2 сторонам и углу.


