Содержание
Практичная планировка дома 6 на 6
Когда видишь перед собой огромный коттедж, невольно возникает вопрос: на сколько человек он рассчитан. Вопрос риторический, поскольку сегодня супружеские пары сразу после свадьбы стремятся свить свое «гнездышко» и редко остаются жить в родительском доме. А значит, в большом доме некоторые комнаты используются не часто, в основном для приема гостей. Такой подход к эксплуатации жилья не рационален, многие это понимают и решают построить на участке уютный домик размером 6 на 6 м. Особенно часто такие компактные домики строятся на скромных земельных наделах или для сезонного проживания на дачных участках.
Содержание
Во многом минусы и плюсы размеров дома зависят от численности семьи. Содержание большого дома может являться проблемой для меленькой семьи. Чтобы в пустых комнатах не появилась плесень и сырость, их нужно отапливать, а также проводить уборку и ремонт. Конечно, на скромной площади возникает больше проблем из-за дефицита пространства, но есть и преимущества, которые могут перевесить недостатки.
Плюсы дома 6X6:
- Легче обогреть зимой, экономно расходуются энергоресурсы;
- Экономия на строительных материалах;
- Сбережение средств и времени на обслуживании и ремонте дома;
- Остается больше земли для разбивки сада, огорода;
- Возможность сделать более просторный двор.
Из минусов можно выделить один: теснота. Конечно, в маленьком доме сложно разместить все, что хочется. Но при правильном подходе к планировке помещений, вполне реально создать уютную домашнюю обстановку, если семья состоит из 2, 3, и даже 4 человек.
Как увеличить площадь маленького дома
Дефицит полезной площади в маленьком доме заставляет идти на некоторые хитрости при его планировке. Существует несколько способов использовать пространство более рационально. Наиболее действенный метод, это формирование многофункциональных помещений. Кухня совмещается со столовой, кабинет со спальней или с гостиной, а гостиная с детской.
Резервы для лишних сантиметров в маленьком доме, 4 полезных совета:
- Закрытое крыльцо вместо прихожей;
- Минимум перегородок;
- Двери устанавливаются не распашные, для открывания которых нужно радиусное пространство, а раздвижные;
- Компактная мебель, по возможности встроенная, с большими зеркалами и стеклянными витражами.
Не нужно стремиться уместить на имеющейся площади помещения разного назначения. Учитывая, что в доме 6 на 6 будет проживать небольшая семья, рационально распланировать его по принципу квартиры-студии, в которой соединяются кухня, столовая, гостиная и прочие комнаты. Большое помещение зонируется стеллажами, ширмами, цветом или различной отделкой на стенах.
В случаях, когда необходимо создать изолированное пространство (например, для рабочего кабинета или спальни), для него выделяется небольшая комната в дальнем углу дома.
Совет. Не обязательно действовать стандартными шаблонами, можно найти свой путь и создать неординарный интерьер на скромной площади.
Видеообзор одноэтажного дома:
Что сделать, террасу или веранду
Пристройка в виде террасы или веранды позволяет существенно расширить площадь дома. Но следует знать, что между ними существует значительное различие. Терраса, это открытая площадка, часто не имеющая навеса. Пользуются ею исключительно в теплое время года.
Иногда терраса пристраивается со стороны, противоположной входу в дом. При таком планировании из комнаты на террасу следует сделать отдельный выход. Преимущество такой планировки в том, что из дома есть выход прямо в сад.
В отличие от террасы, веранда всегда находится под одной крышей с домом и бывает открытого типа и застекленная. Возводится она, как правило, одновременно с домом, и под нее устраивается ленточно-свайный фундамент. Утеплив веранду, ее можно использовать круглый год как жилое помещение.
С этой точки зрения веранда намного практичнее террасы. Кроме этого, она является тепловым буфером между жилыми комнатами и двором, поэтому в доме с верандой отпадает надобность в прихожей.
Важно. Веранда с остеклением во всю стену больше подходит для небольшого жилого дома, а терраса пристраивается к дачному домику или к большому загородному коттеджу. На ней можно устроить летнюю столовую, место отдыха.
Если изначально дом построен без веранды (или террасы), сделать ее можно сделать через несколько лет, во время эксплуатации дома. Пристройка делается в виде прямоугольника вдоль фасадной стены или в форме квадрата, смещенного к одному из углов. Входная дверь сначала ведет на веранду, а через нее во внутренние комнаты дома.
Какой дом построить, одно или двухэтажный
Общая площадь дома 6 на 6 составляет 36 м2. Из них следует выделить квадратные метры для санузла, кухни и небольшой прихожей. В результате полезной площади остается всего 25 м2, да и то с большой натяжкой.
Такой дом удовлетворит потребности своих владельцев только в трех ситуациях.
В каких случаях выгодно строить дом 6 на 6:
- Дачный домик, который посещается наездами в летнее время;
- Дополнительное жилье возле основного дома. В нем могут поселиться члены семьи, желающие вести самостоятельную жизнь, в планы которых не входит переезд, например, молодожены или пожилые родители;
- Летний дом на территории большой усадьбы, в котором планируется проводить летние месяцы.
Для постоянного проживания семьи более двух человек домик 6 на 6 очень тесен. В нем сложно принять гостей, организовать рабочее место, просто уединиться. Если площадь земельного участка невелика и вынуждает экономить место на строительстве, лучше выбрать проект двухэтажного дома 6 на 6. Его площадь ровно в два раза больше, чем в одноэтажном домике, поэтому дает простор для творческой фантазии при планировке комнат.
На первом этаже двухэтажного «мини-коттеджа» располагается гостиная, кухня и санузлы, а на втором две спальни или спальня и детская.
Также на втором этаже можно вместить небольшой санузел, а если семье нужно только одна спальня, то рядом с ней обустраивается бильярдная или другая комната по интересам.
Видеообзор двухэтажного дома:
Дом с мансардой
Мансарда, это не совсем полноценный второй этаж. Особенность состоит в том, что стены помещения частично образует скошенная крыша. Из-за этого не все пространство пригодно для жилья, а только его центральная часть.
В некоторых случаях на мансардном этаже возводятся стены высотой 1-1,5 м, и тогда помещение эксплуатируется в полном объеме.
Поскольку мансарда находится непосредственно под крышей, в использовании помещения возникают некоторые сложности. Летом кровля накаляется от солнца, а зимой промерзает, поэтому внутри комнат сложно поддерживать комфортную температуру. Для того чтобы мансарда использовалась круглогодично, при устройстве кровли необходимо принять некоторые меры.
Советы по устройству крыши мансардного этажа:
- Утепление крыши минеральными плитами или рулонным материалом;
- Обеспечение гидро- и пароизоляции кровли;
- Между утеплителем и материалом кровли оставляется вентиляционное пространство для циркуляции воздуха;
- В качестве покрытия крыши лучше выбрать мягкие кровельные материалы, поглощающие звуки (ондулин, гибкая черепица).
Они снизят шум во время дождя и ветра.
Кроме дополнительных квадратных метров, мансардный этаж вносит изюминку в экстерьер небольшого дома. Он выглядит более солидно, не кажется приземистым и невзрачным. Особый шик строению придают оконные проемы в крыше, сквозь которые в комнаты попадает больше света, чем через обычные окна.
Важно. Окна в чердачном помещении расположены под углом, и обычные занавески в такой ситуации не в состоянии выполнять свою функцию. Лучше использовать рулонные шторы с алюминиевыми направляющими, которые удерживают полотно под наклоном.
Особенности планировки
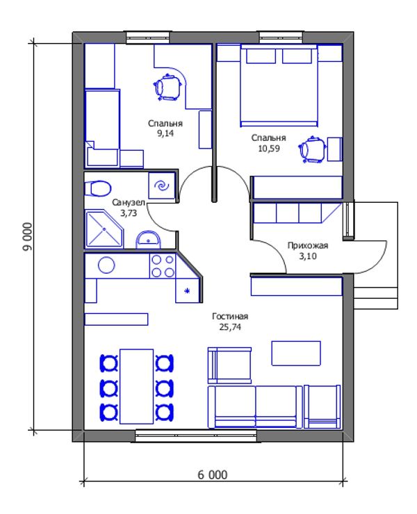
В одноэтажном доме размером 6 на 6 вариантов планировки не так много. На площади 36 м. кв. нужно разместить жилые и подсобные помещения, разделив их перегородками.
Планировка одноэтажного дома с террасой
В доме для супружеской пары без детей достаточно сделать просторную кухню (около 10 м2) и одну жилую комнату (16 м2).
В кухне оборудуется столовая, а комната используется как спальня и гостиная. При таком расположении остается место для устройства санузла и тамбура возле входной двери.
Если в семье растет ребенок, кухню и комнату придется уменьшить в пользу детской комнаты.
Но в этом случае лучшим вариантом является строительство дома в два этажа или с утепленной мансардой. В планировке двухэтажного дома детская комната и спальня для взрослых устраивается на втором этаже.
В малогабаритном доме не стоит сбрасывать со счетов подвальное помещение. Сделав высокий фундамент, можно устроить цокольный этаж и применить его под подсобные помещения или гараж. Этот вариант особенно актуален на маленьком земельном участке, где нужно экономить каждый клочок земли. Кроме гаража, в подвале устраивается мастерская, кладовая для хранения заготовок на зиму.
Ванная и туалет делаются совмещенными. Во-первых, малочисленность семьи не создаст неудобств во время пользования совместным санузлом, а во-вторых, даже короткий простенок занимает место.
Сделать ванную комнату лучше в веранде.
Одна ее часть полностью отгораживается перегородкой с дверью, и в получившемся помещении размещают всю сантехнику. Другой вариант местоположения санузла прихожая. Он устраивается между входной и кухонной дверью, или между кухней и гостиной.
Где сделать лестницу на второй этаж
На установку лестницы отводится 1,5 м2 на первом этаже и столько же на втором. Это пустяк, учитывая, что со вторым этажом полезная площадь увеличивается ровно в два раза. Мансардный этаж прибавит несколько меньше квадратуры (27 м2), но и этого достаточно, чтобы пожертвовать 3 м2 на устройство лестничного марша.
Устанавливается лестница внутри дома в гостиной или прихожей. Если ее сделать в прихожей, то помещение должно быть достаточно просторным, и при этом следует предусмотреть его обогрев в зимнее время.
Такая планировка дома с лестницей удобна, если в гостиной выделено спальное место для кого-то из членов семьи.
Когда гостиная не используется как спальня, вход на второй этаж лучше сделать из нее, и тогда, чтобы подняться в спальню, не нужно выходить из комнаты в прихожую. Также уместно сделать лестницу на веранде или террасе, сэкономив при этом площадь в жилых помещениях.
В дачных домах иногда устраивается наружная лестница, которая присоединяется к балкону. Но такое расположение создает некоторые неудобства пользования ею, особенно в ненастную погоду.
Важно. В целях безопасности лестничный марш и площадка обязательно оборудуется перилами с поручнями.
Лестница в доме 6 на 6 должна быть легкой и не занимать много места. Ее дизайн подчиняется внутреннему интерьеру, а материалом изготовления выбирается древесина.
Самой экономной в отношении места является винтовая лестница. Но следует учесть, что по ней сложно подниматься пожилым людям.
Проще всего сделать маршевую лестницу. Она удобна тем, что пространство под ступенями можно оборудовать под кладовку или шкаф-купе.
Вопрос обогрева
Способ отопления дома зависит от вида коммуникационных систем, используемых в данной местности. Самый удобный и надежный способ обогреть дом, это газ. Место для газового котла отводится в веранде или в одном из углов кухни.
Ну а если газовое отопление недоступно, придется построить угольную или дровяную печь с трубой.
Большой коттедж обогреть таким способом очень сложно, а компактный дом площадью 36 м2 вполне возможно. Печь сооружается на кухне возле стены, смежной с комнатой. Зимой на ней готовится пища, и одновременно обогревается помещение.
Когда для готовки используется электричество, печь сооружается в гостиной. Чтобы не нарушать интерьер, ее лучше сделать в виде камина. Тогда и в доме будет тепло, и дизайн соблюден.
Совет. Тепло будет держаться дольше, если провести водяное отопление. Вода в змеевике, монтированном в топке, нагревается и циркулирует по замкнутому кругу в трубах, протянутых по всему дому.
Создание такой отопительной системы требует затрат, но она достаточно эффективна.
Также очень энергоэффективен — теплый водяной пол
dizlandshafta
Как сделать планировку дома и комнат онлайн своими руками? Обзор разных домов разных планировок- Советы: Пошагово +Видео
Планирование является начальным этапом любого строительства. Именно при планировании решается вопрос об этажности и размерах дома, о материалах из которых он будет построен.
При составлении плана выбирается наиболее выгодный вариант.
От размера дома зависит налог на недвижимость.Чем больше площадь дома, тем больше налога Вам придется заплатить
[contents]
Содержание:
- 1 Планировки домов
- 1.1 Дом 5 на 5
- 1.1.1 Увеличение жилой площади за счет цоколя
- 1.1.2 Увеличение жилой площади за счет пристройки мансарды
- 1.1.3 Увеличение жилой площади за счет теплой террасы
- 1.1.4 Советы
- 1.2 Дом 10 на 10
- 1.3 Дом с мансардой
- 1.
3.1 Достоинства - 1.3.2 Недостатки
- 1.
- 1.4 Дом с гаражом и баней
- 1.1 Дом 5 на 5
- 2 Планировка участка: дом, гараж, баня
Планировки домов
Дом 5 на 5
Дом площадью 5 на 5 может использоваться как:
- дача,
- гостевой дом,
- магазинчик,
- для проживания небольшой семьи (до трех человек).
Преимуществами таких домов являются:
- быстрая постройка;
- небольшая стоимость самого дома;
- экономия в обслуживании дома;
- уборка малой площади.
Имеется возможность увеличить жилую площадь дома следующими способами:
Увеличение жилой площади за счет цоколя
Цокольный этаж можно переделать в жилое помещение, дополнительно утеплив его. Предусмотреть нужное количество света, в зависимости от предполагаемого назначения.
Увеличение жилой площади за счет пристройки мансарды
Строительство мансарды обойдется дешевле, чем строительство второго этажа.
При помощи вновь построенного помещения Вы значительно расширите свою площадь, ведь спальню и кабинет, возможно, будет перенести наверх, освободив пространство внизу, для расширения кухонной зоны и комнаты зала.
Увеличение жилой площади за счет теплой террасы
После утепления террасы в данное помещение можно будет перенести кухонную зону. Теперь никакая погода не помешает Вам пить горячий шоколад и смотреть на дождь за окном.
Все вышеперечисленные способы позволяют при небольших затратах увеличить площадь Вашего дома.
Советы
- При планировании дома необходимо рассчитать необходимую спальную зону, а остальное пространство распределить на другие помещения: санузел, кухня, кабинет.

- Для рационального использования пространства объедините ванную и туалет. Займет меньше места и обойдет дешевле при строительстве, ровно на одну стену.
- Не делайте изолированную кухню. Сделайте кухню-столовую.
- Выбирайте котел для подогрева воды, который можно повесить на стену. Он не потребует дополнительного помещения.
- При обустройстве используйте угловую мебель.
- При внутренней отделке дома используйте только светлые тона.
- Не выбирайте обои или плитку с огромными рисунками.
- При зонировании помещения используйте легкие перегородки, стеллажи, цветы, аквариум.
- Добавьте в помещение большие зеркала.
Используя все эти советы, казалось бы, из маленького домика, можно сделать уютное и комфортное гнездышко.
Дом 10 на 10
Планировка дома 10 на 10 является самой востребованной и обеспечивает:
- комфортное проживание большой семьи;
- при строительстве одноэтажного дома затраты на фундамент значительно меньше;
- нет лестницы, которая съедает место;
- минимальные потери тепла, дом обогревается быстро.

Способы увеличения полезной площади дома такие же, как и при планировании дома 5 на 5.
При составлении плана одноэтажного дома необходимо учитывать:
- Тип фундамента, стропильную конструкцию, материал стен дома и перекрытий.
- Расположение линий коммуникаций.
- Количество и назначение комнат, и их естественное освещение.
- Наличие подвального помещения.
- Монтаж кровли.
Имейте ввиду, что сметы расходов, количество необходимого строительного материала составляются и определяются на стадии планирования.
Дом с мансардой
Мансарда – это обустроенный чердак. Благодаря правильной выбранной форме крыши данное помещение вполне может быть использовано как жилое.
Достоинства
Плюсы домов с мансардой:
- площадь дома увеличивается в два раза;
- строительство мансарды недорогое;
- не требуется проводить дополнительные коммуникации, достаточно протянуть их с первого этажа;
- мансарда обустраивается как утепленное помещение, соответственно дом будет сохранять тепло;
- мансарда подходит для любого помещения.
Там можно сделать спальню, детскую, кабинет, тренажерный зал, ванную и т.д.
Недостатки
При плюсах существуют и минусы в планировки дома с мансардой:
- строительство мансарды должно проводиться по всем правилам, в соответствии с действующими нормами. Не стоит экономить на утеплении чердачного этажа;
- мансардные окна стоят намного дороже обычных окон, т.к. они имеют специфическое крепление и особенности установки;
- естественное освещение за счет мансардных окон пропадает в зимнее время из-за осадков.
При планировании одноэтажного дома с мансардой необходимо продумать, где будет находиться лестница. Она должна быть удобной и в то же время не должна быть громоздкой.
Дом с гаражом и баней
Для того, чтобы сэкономить место на участке можно совместить дом с гаражом и баней. На стадии планирования необходимо определиться с необходимыми материалами, грамотно подобрать для каждого помещения свое.
Баня
Для бани необходимо использовать натуральные и безопасные материалы.
При высоких температурах с искусственных поверхностей начнут испаряться вредные вещества. При обустройстве бани используйте деревянную мебель.
Мягкая мебель быстро придет в негодность из-за повышенной влажности. Лучше всего обшивать баню вагонкой. Это и экономичный вариант, и декоративный. Стену совмещенную с баней необходимо дополнительно обшить гидроизоляционным материалом, а также сделать теплоизоляционный слой.
Чтобы сэкономить место на участке, баню можно разместить на первом этаже дома, а жилые помещения поднять на второй и мансардные этажи.
Гараж
При строительстве и обустройстве гаража необходимо использовать долговечные материалы, легко моющиеся при уборке помещения. Например, пластиковая вагонка.
В гаражном помещении можно предусмотреть не только место для автомобиля, но и кладовую для хранения заготовок на зиму.
Жилые помещения
Жилые комнаты помимо укладки гидроизоляционного слоя должны быть из дышащих материалов.
При планировании их необходимо расположить так, чтобы пар и тепло из бани, а также машинные запахи не попадали внутрь.
Советы
Если Вы планируете дом с гаражом и баней из кирпича, то уделить особое внимание фундаменту здания и внутренней отделке помещений.
Чтобы от совмещения этих помещений не было вреда для здоровья и во избежание порчи имущества выбирайте для каждого помещения свой материал!
Планировка участка: дом, гараж, баня
Планировка участка – важный этап в строительстве. При полной информации из геодезического агентства, знаний нормативной документации, расположения коммуникационных линий, можно грамотно и практично расставить на участке дом, гараж и баню.
Необходимо знать и учитывать при обустройстве:
- расстояние между данными сооружениями не должно быть меньше 6 м;
- расстояние от красной линии не меньше 5 метров;
- от границы соседнего участка от 1,5 метров.
Дом, гараж и баня не должны быть построены в хаотичном порядке.
Каждое здание должно быть на своем месте.
Сначала в своем плане установите жилой дом. Его лучше устанавливать в передней части участка.
За домом, можно разбить огород, установить теплицу. Гараж тоже должен находиться в передней части, для удобства им пользования.
Прежде чем строить новый дом: 5 подготовительных шагов
По
Джеки Крейвен
Джеки Крейвен
Джеки Крейвен — эксперт по дизайну интерьеров для The Spruce, занимающийся архитектурой, декором и дизайном в течение 20 лет. Она написала две книги на эту тему: «Дом без стресса: красивые интерьеры для спокойствия и гармоничной жизни» и «Здоровый дом: красивые интерьеры, улучшающие окружающую среду и улучшающие ваше самочувствие».
Узнайте больше о The Spruce’s
Редакционный процесс
Обновлено 24.
03.22
Рассмотрено
Келли Бэкон
Рассмотрено
Келли Бэкон
Келли Бэкон является лицензированным генеральным подрядчиком с более чем 40-летним опытом работы в строительстве, строительстве и реконструкции жилых домов, а также в коммерческом строительстве. Он является членом Наблюдательного совета по благоустройству дома Spruce.
Узнайте больше о The Spruce’s
Наблюдательный совет
Факт проверен
Эмили Эстеп
Факт проверен
Эмили Эстеп
Эмили Эстеп — биолог растений и специалист по проверке фактов, специализирующийся на науках об окружающей среде. Она получила степень бакалавра журналистики и магистра наук в области биологии растений в Университете Огайо. Эмили работала корректором и редактором в различных онлайн-СМИ в течение последнего десятилетия.
Узнайте больше о The Spruce’s
Редакционный процесс
Эндрю Брет Уоллис / Выбор фотографа РФ / Getty Images
Процесс строительства нового дома начинается задолго до заливки фундамента.
Процесс строительства будет наиболее эффективным и увлекательным, если вы сначала разработаете хороший план и найдете честного, компетентного строителя. Чтобы избежать дорогостоящих ошибок в процессе строительства, начните с этих пяти важных шагов. Когда вы переходите от дома мечты к настоящему дому, обязательно задавайте вопросы и делитесь своим прогрессом с людьми, которые прошли через этот процесс.
Планируйте свой бюджет
Начните рассматривать бюджет с того самого момента, когда вы начинаете думать о строительстве своего дома. Разработайте реалистичное представление о том, сколько вы можете позволить себе потратить и сколько будет стоить строительство нового дома. Этап составления бюджета на самом деле заключается в балансировании ваших желаний с реалистичной оценкой того, что вы можете себе позволить.
Скорее всего, вам понадобится кредит на строительство и ипотечный кредит. Еще не слишком рано выяснить, на какой размер кредита вы можете претендовать, исходя из вашего дохода и других финансовых обязательств.
Сегодня большинство банков и других финансовых учреждений стремятся предварительно подготовить вас для получения кредита на строительство, что даст вам примерное представление о максимальной сумме денег, которую вы можете потратить. В то же время на этом раннем этапе нужно посмотреть, сколько будут стоить различные элементы вашего нового дома, включая саму землю, архитектора или дизайнера, генерального подрядчика, который будет управлять проектом, строительные материалы, бытовую технику и элементы интерьера.
Это сложный, трудоемкий процесс, который действительно должен начинаться за много месяцев до начала строительства. Нередко требуется целых два года, чтобы тщательно изучить вопросы, прежде чем подписать контракт на строительство со строителем.
Советы по составлению бюджета
- Остерегайтесь банков, которые хотят одолжить вам больше денег, чем вы можете себе позволить — это было одной из причин финансового кризиса 2008 года. Нет причин строить дом, который стоит максимальную сумму кредита, одобренную банком.
На самом деле, это очень хорошая идея, чтобы оставаться ниже этой суммы. Поговорить с независимым финансовым консультантом — отличный способ определить, сколько вы можете с комфортом потратить на строительство своего дома. - План перерасхода средств. Практически все строительные работы обойдутся дороже, чем планировалось изначально. Это часто происходит из-за изменения стоимости строительных материалов или из-за изменений, которые вы запрашиваете на этапе проектирования и строительства. Убедитесь, что вы встроили буфер в свой бюджет, чтобы неизбежные перерасходы не ударили по кошельку.
- Получите не менее трех предложений подрядчиков (и проверьте рекомендации). В большинстве случаев основная часть расходов на строительство дома — это деньги, которые вы платите генеральному подрядчику (ГП), который будет управлять всеми рабочими и субподрядчиками, работающими над строительством вашего дома. Существует тонкий баланс между выбором доступного подрядчика и тем, кто делает работу качественно, используя хорошие материалы.
Начните с получения рекомендаций от ваших знакомых, которые были довольны своим застройщиком, а затем тщательно опросите как минимум трех. Этот процесс даст вам довольно хорошее представление о том, сколько будет стоить строительство вашего дома. - Сравнительный магазин материалов. В то время как генеральный подрядчик обычно выбирает большую часть строительных материалов, техники и удобств, вы захотите принять участие в этом процессе. Например, если вы любите гранитные столешницы, обратите внимание на это сейчас, чтобы о таких предпочтениях можно было сообщить строителю, которого вы в конечном итоге выберете.
Скрытые затраты на строительство нового дома
Новые домовладельцы часто поражаются, когда начинают осознавать скрытые затраты на владение собственным домом. Есть много единовременных начальных затрат на строительство вашего первого дома, таких как мебель, оборудование для газонов и сада, обработка окон, а также подключение к Интернету и средствам массовой информации.
Кроме того, домовладение сопряжено с постоянными ежемесячными расходами, которые могут застать вас врасплох, если вы к ним не готовы, — такими расходами, как страхование домовладельца, налоги на имущество и услуги по уходу за газоном. Если вы до сих пор были арендатором, эти расходы могут стать шокирующим сюрпризом.
Выберите свой лот
Если вы еще не приобрели участок под застройку для своего нового дома, поговорите с риелторами, чтобы получить приблизительную оценку стоимости земли в районах, которые вы рассматриваете. Стоимость земли сильно различается в зависимости от местной стоимости земли.
Независимо от того, строите ли вы свой дом в пригороде или на участке с потрясающим видом на океан, вам почти всегда нужно будет выбрать землю, прежде чем выбирать планы этажей или другие детали. Вам (и любым профессионалам, которых вы нанимаете) необходимо будет изучить такие факторы, как состояние почвы, дренаж, зонирование и строительные нормы и правила в регионе.
Затраты будут выше, если ваш проект дома должен быть настроен в соответствии с участком. Если дом можно построить на участке по стандартным чертежам, это поможет вашему бюджету.
Выберите план дома
Многие новые дома строятся с использованием стандартных планов из печатного каталога или из онлайн-источника. Поиск правильного плана может занять некоторое время. Одним из мест для начала может быть выбор вашего любимого стиля дома. Получите идеи из множества доступных каталогов и, при необходимости, попросите строителя или другого специалиста по строительству — архитектора или дизайнера — помочь вам выбрать лучший план запасов для ваших нужд. Домашний дизайнер также может внести незначительные изменения в стандартные планы с точки зрения размера комнаты, стилей окон или других деталей. Некоторые строители могут внести небольшие изменения в готовые планы домов.
С другой стороны, дом, спроектированный по индивидуальному проекту, создается специально для семьи, которая будет в нем жить, и для участка, на котором он расположен.
В большинстве случаев дома, спроектированные по индивидуальному проекту, требуют услуг лицензированного архитектора. Они задают такие вопросы, как « Где находится солнце по отношению к участку? Откуда дуют преобладающие бризы? Как мы можем сэкономить деньги на долгосрочных расходах на отопление и охлаждение? » Архитектор также должен задать исчерпывающие вопросы о вашем образе жизни. и предпочтения.
Независимо от того, выбираете ли вы стандартный или индивидуальный дизайн, разумно выбрать план, который будет соответствовать вашим потребностям на долгие годы вперед. Например, молодая пара может захотеть запланировать больше членов семьи, в то время как пожилой домовладелец должен предвидеть потребности старения на месте.
Лучшие приложения для ремонта дома
Соберите свою команду
После того, как рабочий бюджет, строительная площадка и проект дома выбраны, вы можете начать собирать команду экспертов для проектирования и строительства вашего дома.
Ключевыми игроками могут быть строитель, экскаватор, геодезист и дизайнер дома или архитектор, если это необходимо. В большинстве случаев домовладельцы начинают с выбора застройщика (генподрядчика). Затем этот профессионал выбирает других членов команды. Однако вы также можете сначала нанять архитектора или дизайнера.
Главный вопрос заключается в следующем: насколько вы будете (можете ли вы) участвовать в этом процессе? В то время как большинство домовладельцев нанимают генерального подрядчика/строителя для координации большей части или всей работы, домовладелец, который хочет активно участвовать в процессе, также может выступать в качестве своего собственного генерального директора. В этом случае вы будете нанимать и контролировать всех субподрядчиков — экскаваторов, плотников, бетонщиков и т. д. — самостоятельно. Работа таким образом не для слабонервных, а для правильного человека, это может быть полезным способом построить дом, а также сэкономить деньги.
Как насчет нетрадиционного строительства?
То, как выглядит ваш дом, не обязательно определяет его конструкцию.
Традиционная каркасная конструкция – не единственный вариант. Многие люди заинтригованы домами из соломенных тюков, конструкциями из утрамбованной земли и даже глинобитными домами. Но нельзя ожидать, что традиционные строители — или даже все архитекторы — будут экспертами во всем. Для строительства традиционных домов нетрадиционным методом требуется команда, которая специализируется на этом типе строительства. Сделайте свою домашнюю работу и найдите подходящего архитектора и строителя, которые смогут реализовать ваше видение.
Переговоры по контракту
Не забудьте получить письменные, подписанные контракты для каждого строительного специалиста, участвующего в строительстве вашего дома. По крайней мере, это означает контракт с генеральным подрядчиком/застройщиком, а также с дизайнером дома или архитектором, если они участвуют в процессе.
Что входит в договор строительного подряда? Контракт на строительство нового дома будет подробно описывать проект и включать в себя список всех частей, которые должны быть включены в дом — «спецификации».
Без подробных спецификаций ваш дом, скорее всего, будет построен из строительных материалов, которые могут быть дешевле. Обязательно обсудите спецификации в ходе переговоров до того, как контракт будет написан, а затем убедитесь, что все четко указано. Не забудьте внести поправки в контракт позже, если вы или ваш подрядчик внесете какие-либо изменения в проект.
Итог
Время, потраченное на выполнение предварительных шагов по строительству нового дома, может быть захватывающим периодом, но это также время, чтобы оценить, является ли новое строительство правильным выбором. Этот процесс требует много тяжелой работы и приносит разрушения в вашу жизнь и жизнь окружающих вас людей. Вы вполне можете обнаружить, что покупка уже существующего дома менее утомительна — будь то уже существующий дом или недавно построенный дом, который был построен «в соответствии со спецификацией». Или вы можете обнаружить, что лучше остаться в существующем доме и перестроить его.
Решение построить собственный дом иногда принимается по неверным причинам.
Строительство нового дома редко «исправляет» проблемную жизнь или отношения. Важным первым шагом является анализ ваших мотивов. Вы строите дом, потому что кто-то другой этого хочет? Это отвлечение от какой-то другой жизненной проблемы? Можете ли вы справиться с дополнительным стрессом в вашей жизни? Почему вы хотите построить дом? Самоанализ может привести к самосознанию и избавить вас от многих головных болей.
Но если ваша самоанализ проходит эти тесты, то тщательное выполнение пяти ключевых подготовительных шагов гарантирует, что ваш проект создаст дом, которого заслуживаете вы и ваша семья.
Расширенные планы домов | Планы этажей
Вот уже почти 20 лет Advanced House Plans специализируется на разработке планов этажей,
покрытие
несколько архитектурных стилей. Мы не типичная компания по дизайну дома. Каждый план
перечислены
на нашем веб-сайте разработано нами, продается нами и доступно для вас на складе план дома
Цены.
Мы являемся одним из самых быстрорастущих проектировщиков домов в стране, и у нас есть свои планы.
построен
в каждом штате США. Мы будем работать с вами, чтобы изменить наши планы, чтобы они соответствовали местным
коды
где бы вы ни находились.
В наших планах есть художественные работы и визуализации, которые не имеют себе равных. Расширенные планы дома
маркетинг
команда гордится тем, что предоставляет клиентам самое лучшее визуальное представление
наши дома.
Мы всегда смотрим в будущее технологий и предлагаем несколько визуальных инструментов.
это может только
найти на нашем сайте.
Наши 360 туров дадут вам лучшее понимание того, как наша
Планировка этажей
выложены. Advanced Designer позволит вам изменить цвет и текстуру нашего
самый популярный
планы дома, соответствующие вашему собственному уникальному стилю. Абсолютно новый Планировщик мебели позволяет вам бросить
предметы в
планы этажей, чтобы увидеть, как ваша мебель будет вписываться в план.
Большинство продавцов продают планы других дизайнеров, а это означает, что ни один из проектов на самом деле не является
сделано ими.
Поскольку все наши планы разрабатываются внутри компании, изменения в планы очень просты.
как всегда. Когда
вы запрашиваете изменения, вы имеете дело непосредственно с дизайнерами, а не с посредником
человек.
Мы предлагаем бесплатную стоимость создания отчетов по всем нашим планам запасов. Мы разработали это
инструмент, чтобы дать
предполагаемые покупатели общее представление о бюджете, который им потребуется для создания плана. Этот
дает вам олл-ин
смета, которая покрывает сборы застройщика, сборы за недвижимость, стоимость участка и т. д.
Поскольку все наши планы разработаны нами, мы можем предложить гарантированно лучшую цену. Наш
планы можно найти на др.
веб-сайты поставщиков, такие как Menards, Architectural Designs, America’s Best и т. д. Если вы
найти один из наших планов на
веб-сайт другого поставщика, мы гарантируем соответствие цены.
В течение почти 20 лет у нас в Advanced House Plans была одна цель — помочь вам построить
дом вашей мечты. Если ты
не можем найти проект дома, который идеально подходит для вас, мы также предлагаем индивидуальные планы дома.
Мы будем работать с вами, чтобы
спроектировать дом от начала до конца.
Что мы предлагаем
Наши проекты представлены в различных архитектурных стилях, включая современный фермерский дом,
Модерн, Коттедж, Ремесленник,
Южный, викторианский и т. д. Мы являемся одним из самых продаваемых дизайнеров современного фермерского дома.
стиль дома в США.
Наши планы домов варьируются в квадратных футах и могут быть найдены как 1 этаж, 1,5 этажа и 2 этажа.
планы этажного дома. Большинство
наши планы ориентированы на семью, с широко открытыми планами этажей и потрясающими кухнями.
Если вы инвестор, который ищет многоквартирные дома, у нас есть отличная коллекция
многоквартирных домов для
ты. Эта коллекция включает в себя дуплексы, триплексы и квадроплексы.
Еще одна популярная коллекция — наша коллекция «Планы с фотографиями». Эта коллекция
включает в себя клиентские сборки
страна. Это всегда облегчает ум, когда вы знаете, что план был построен раньше.
Проверяйте эту коллекцию ежедневно,
потому что он растет каждый раз, когда один из наших клиентов присылает новые планы домов.
Мы разрабатываем не только планы домов. У нас также есть большая коллекция планов гаражей,
стоечно-каркасные здания, проекты
планы, планы палуб и многое другое.
Наша большая коллекция планов гаражей включает в себя удивительные планы отдельно стоящих гаражей. Мы ставим
упор на дизайн в этом
коллекция и иметь планы, которые будут соответствовать любому стилю дома. Наша коллекция планов гаражей
есть места для хранения,
мастерские, высокие потолки для лифтов и многое другое.
Многоквартирные гаражи, также известные как каретные дома, являются еще одной многообещающей коллекцией.
Квартирные гаражи являются отдельно стоящими
конструкции с гаражом на первом этаже и жилыми помещениями наверху.
Некоторые из
наши квартирные гаражи предлагают 1-2
спальни с кухнями и ванными комнатами, а также. Эти планы идеально подходят для
люкс для тещи или для ребенка, отправляющегося в
колледж.
Одна из наших самых популярных новых коллекций — это коллекция Project. Этот
коллекция включает в себя планы палуб,
беседки, навесы, домики у бассейна, курятники, собачьи будки и офисы на заднем дворе.
Независимо от того, ищете ли вы план дома или другую коллекцию, мы предлагаем варианты акций на
все наши планы. Некоторые из
варианты включают наружные стены 2×6, обратные планы с правым чтением, дополнительную печать
чертежи, файлы САПР, материал
списки, готовый цоколь, альтернативные типы фундамента.

Они снизят шум во время дождя и ветра.
Создание такой отопительной системы требует затрат, но она достаточно эффективна.
3.1 Достоинства

Там можно сделать спальню, детскую, кабинет, тренажерный зал, ванную и т.д.
На самом деле, это очень хорошая идея, чтобы оставаться ниже этой суммы. Поговорить с независимым финансовым консультантом — отличный способ определить, сколько вы можете с комфортом потратить на строительство своего дома.
Начните с получения рекомендаций от ваших знакомых, которые были довольны своим застройщиком, а затем тщательно опросите как минимум трех. Этот процесс даст вам довольно хорошее представление о том, сколько будет стоить строительство вашего дома.