Как сделать металлическую лестницу на второй этаж своими руками в частном доме. Как сделать металлическую лестницу на второй этаж своими руками
Металлическая лестница на второй этаж своими руками: фото, чертеж
Межэтажные лестницы изготавливают в основном из дерева, бетона и металла. Технологические свойства, которыми обладает металл, дают возможность изготовить лестницу любой конструкции, при этом надежную, эстетически привлекательную и нетяжеловесную.
Строительство простой одномаршевой металлической лестницы на второй этаж – задача посильная при наличии навыков в таком деле, как сварка металла. Сложнее сделать двухмаршевую конструкцию с площадкой, но ведь не боги горшки обжигали?
Общие требования
Конструктивные особенности лестниц из металла, дерева или бетона ничем не отличаются. Принципы проектирования и расчетов для межэтажных конструкций из различных материалов одинаковые, не отличаются и типовые требования к ним:
- В частных домовладениях минимальная ширина лестницы должна составлять 900 мм.
- Уклон одного лестничного марша должен быть постоянным. Оптимальные углы наклона показаны на схеме.
- Оптимальная высота ступеней – 160-180 мм.
- Минимально разрешенная глубина ступеней – 270 мм.
- Ограждение должно выдерживать боковую нагрузку в 100 кг.
- Максимально разрешенное расстояние между стойками ограждения – 150 мм (для семьи с детьми – 120 мм).
Типы металлических лестниц
По способу изготовления различают сварные и кованные лестницы.
Конструктивно металлические лестницы бывают:
Важно! Рассчитать и изготовить своими руками можно все названные типы металлической лестницы, однако наибольшую сложность будет представлять винтовой вариант как в отношении проектирования, так и изготовления элементов конструкции. Проектирование и строительство винтовой металлической лестницы целесообразно поручить профессионалам.
Различают маршевые металлические лестницы одно- и двухпролетные, прямые и с поворотом. При недостатке опыта лучше начинать с прямой одномаршевой конструкции.
Расчеты
В проектных организациях используются компьютерные программы, с помощью которых создается 3D модель конструкции. В такой модели легко изменить параметры отдельных элементов. После утверждения окончательного варианта, компьютер подготавливает рабочие чертежи и спецификацию металлической лестницы.
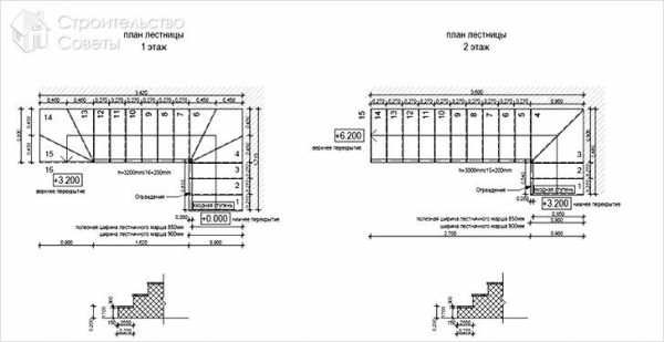
Нам придется сделать расчеты без помощи программы. Рассмотрим самый простой вариант конструкции – прямой одномаршевый. Типовые требования к глубине и высоте ступеней нам известны. Делаем замеры между двумя точками: от точки начала до точки конца лестницы на уровне «чистого» пола первого этажа (эту величину обозначим a) и высоту между «чистым» полом первого и второго этажей (b). У нас получилось, что a = 4000 мм, b = 2500 мм. Осталось определить длину лестницы. Помним, что оптимальный угол наклона составляет 30° — 45°.
В прямоугольном треугольнике квадрат гипотенузы (это длина лестницы) равен сумме квадратов двух катетов. У нас катеты равны 4000 мм и 2500 мм. Считаем, извлекаем корень квадратный и получаем длину, равную 4720 мм.
Подбираем оптимальное количество ступеней. С такой высотой их может быть 14 (высота ступени составит 179 мм) или 15 (167 мм). Оба варианта находятся в пределах разрешенных размеров. Выбираем вариант с 14 ступенями и проверяем, какой получится их глубина. Делим 4000 мм на 14 и получаем 286 мм. И этот размер нас устраивает (глубина не должна быть меньше 270 мм). Размер ступеней – 286 мм – будет увеличен еще на ширину так называемого свеса. Свесом называется часть верхней ступени, которая нависает над нижней. Оптимальный размер свеса составляет 30-40 мм.
Мы получили основные размеры, которые нужны нам для определения количества материалов. Для двух косоуров нам потребуется профильная квадратная труба 2 х 4720 мм. Из уголков, которые для надежности можем усилить арматурой, сварим опоры для ступеней (кобылки). Сами ступени и подступенки изготавливаем из 4-мм листовой сталью и обшиваем деревом.
Оборудование, инструменты и материалы
Для строительства межэтажной металлической конструкции нам потребуется:
- Ручной инвертор с электродами для постоянного тока диаметром 3,2 мм и 1,6 мм.
- Маска сварщика, защитные очки и рукавицы.
- Болгарку с отрезными дисками 125х1,6 мм.
- Шлифовальные диски диаметром 125 мм.
- Дрель и сверла по металлу.
- Устойчивый металлический стол.
- Струбцина с высотой регулировки 0-800 мм.
- Тиски.
- Грунтовка,
- Уайт-спирит.
- Краска по металлу.
- Рулетка и угольник.
- Карандаш.
Важно! Количество необходимого материала мы определили. Обратите внимание, что листовая сталь для ступеней должна обладать противоскользящими свойствами, например, можно использовать прессованный решетчатый настил.
Изготовление металлической лестницы с двумя косоурами
Соблюдаем такую последовательность в работе:
- Резка заготовок.
- Изготовление кобылок (узлов для крепления ступеней).
- Сварка опорных уголков.
- Монтаж косоуров.
- Приваривание ступеней и ограждения.
- Шлифовка.
- Грунтовка и покраска.
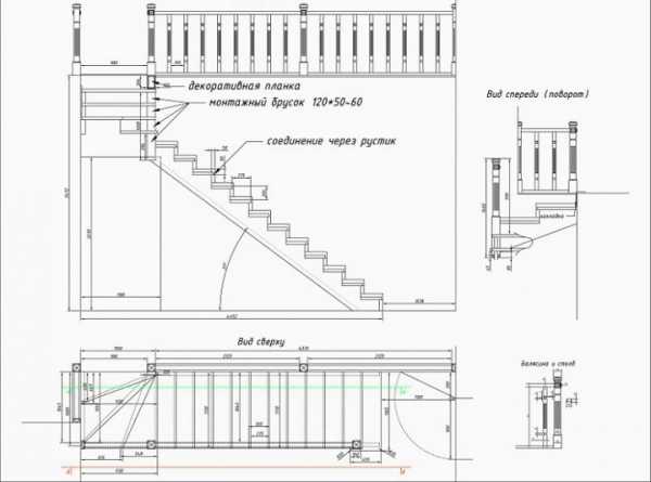
Сначала из уголков изготавливаем узлы для крепления ступеней (кобылки). Здесь важно не ошибиться, перекосы и неточности испортят лестницу. Кобылки должны быть одинаковыми и выполненными зеркально по отношению друг друга. Изготавливаем кобылки из стального уголка: вырезаем выборки, стыкуем уголки между собой. В итоге должны получиться Г-образные сварные узлы полками вниз и внутрь (полками вверх и внутрь сваривают кобылки для бетонных ступеней, а также для их декорирования керамической плиткой или керамогранитом). Для нашей конструкции потребуется 14 пар таких узлов – в каждой паре одна опора будет левой, вторая правой. Привариваем кронштейны для крепления ступени и поперечную перекладину между каждой парой уголков. Поперечную перекладину тоже делаем из уголка. Усилить прочность можно и с помощью небольших косынок, которые устанавливаются снизу ступени по направлении к каждому косоуру.
По ребру профильной квадратной трубы делаем разметку и по ней привариваем кобылки к ребру косоура. Приставляем к первому косоуру с приваренными кобылками второй, и точно переносим разметку. Так мы получим четкую геометрию всех элементов.
Совет. Для металлической лестницы на второй этаж с шириной более 1200 мм целесообразно установить посредине конструкции третий косоур.
У нас ширина составляет 900 мм, и двух косоуров нам вполне достаточно. Привариваем кобылки ко второму косоуру. Проверяем их по уровню. Затем привариваем косоуры нижним концом к опорной платформе. В домах с бетонным основанием опорная платформа может быть установлена в бетоне. Верхний конец крепим к опорной стойке, которая закреплена к перекрытию между этажами стальными анкерами. Еще раз проверяем кобылки по уровню.
Если металлическая лестница сделана в пристенном варианте, для придания конструкции дополнительной жесткости один косоур можно приварить к кронштейнам, закрепленным на стене.
Последний этап – приваривание ступеней к кобылкам. Можно также закрепить их болтами, их в этом случае надо обшивать деревом. Еще один вариант – установить деревянные ступени прямо на кобылки с помощью винтовых соединений.
Верхняя ступень устанавливается на минимальном расстоянии от стены. Необходимо, чтобы между стеной и ступенью проходил лист обоев – впереди отделочные работы. Ограждение приваривается сбоку металлической лестницы таким образом, чтобы не уменьшать ее ширину.
Все элементы конструкции в местах сварки шлифуются (швы, зазубрины, заусенцы), потом металлической щеткой сметаются частицы металла, металлическая лестница грунтуется (используем грунтовку по металлу) и окрашивается в выбранный цвет. Деревянные ступени устанавливаются после того, как краска высохнет.
Декорирование металлической лестницы на второй этаж, включая обшивку ступеней деревом, целесообразно проводить на этапе чистовых отделочных работ в доме.
При кажущейся простоте, работа по строительству межэтажной конструкции из металла требует внимательности и аккуратности. Качественно выполненные сварочные работы гарантируют длительный срок эксплуатации конструкции. Надолго сохранит металл всех элементов лестницы и антикоррозийное покрытие.
Построив прочный и надежный каркас, вы со временем сможете декорировать его деревом, керамической плиткой, деталями ограждения из нержавеющей стали и другими отделочными материалами по своему вкусу. И конструкция, которая на этапе строительства казалась громоздкой и непрезентабельной, приобретет замечательный внешний вид.
Главный аргумент в пользу строительства металлической лестницы на второй этаж своими руками – экономия очень значительных средств, которые пригодятся вам для проведения других работ в доме.
bouw.ru
Металлическая лестница на второй этаж своими руками в частном доме
Некоторые люди не хотят строить одноэтажный дом и строят многоэтажный, а передвигаться по дому без лестниц будет невозможно. Лестницы бывают разных форм и изготовленные из разных материалов. Лестницы, которые находятся между этажами, делают деревянными, металлическими и бетонными.
Металлическая лестница на второй этаж своими руками
В статье мы расскажем о лестнице из металла, которая будет расположена между этажами. Но свойства, которые имеет металл, дают возможность изготовления лестниц любых конструкций и при этом крепких, нетяжеловесных, красивых, даже воздушных лестниц.
Сооружение простой лестницы на другой этаж с одним маршем дело не сложное, при наличии некоторых навыков. А вот лестницу с несколькими маршами, изготовить сложнее, но можно же всему научиться, было бы желание.
Лестницы бывают деревянные, металлические или бетонные .
Проект и расчёты для лестниц находящихся между этажами из любых материалов, ни чем не отличаются.
Для них существуют обычные требования:
- В частном доме самая небольшая ширина лестницы составляет 900 сантиметров.
- Нормальная высота ступенек является 160 — 180 миллиметров.
- Минимально допустимая глубина ступеней составляет 270 миллиметров.
- Перила на лестнице боковой напор должны выдерживать примерно в сто килограмм.
- Расстояние между стойками перил должно составлять 150 миллиметров и, если в семье дети необходимо сделать это расстояние в 120 миллиметров.
- Лестницы изготавливают кованными и сварными.
Лестницы существуют следующих типов:
На косоурах. На одном косоуре, то есть на двутавре или швеллере. Они играют роль опоры, их размещают посередине конструкции и прикрепляют ступени. Данные лестницы выглядят воздушными, лёгкими, но нагрузку выдерживают с достоинством.- На тетиве.
- На больцах.
- Винтовые.
Существуют лестницы:
- одномаршевые и двухпролётные;
- прямые и с поворотом.

Если вы не обладаете особыми навыками по возведению лестниц, то начните с простого варианта, то есть с одномаршевой конструкции.
Необходимые расчёты
В организациях, которые занимаются разработкой проектов, используют специальные компьютерные программы, при помощи этих программ проектируют 3D модели конструкций. В 3D модели, очень легко изменить параметры разных деталей.
После утверждения финишного варианта, компьютерная программа подготавливает спецификацию и чертежи лестницы из металла.
Но в нашем случае, расчёты придётся делать без помощи компьютерной программы. Мы рассмотрим простой вариант прямой одномаршевой конструкции.
Основные требования к глубине и высоте ступеней уже известны. Необходимо сделать замеры между точками, то есть от начала до конца лестницы от пола первого этажа и высоту между полом первого и второго этажей. Теперь определяем длину лестницы, нужно помнить, что средний угол наклона является от тридцати до сорока пяти градусов.
Чтобы посчитать длину лестницы необходимо вспомнить геометрию, то есть про прямоугольный треугольник. Ведь в прямоугольном треугольнике квадрат гипотенузы равен сумме двух квадратов катетов.
Производим расчёт имеющихся параметров и извлекаем квадратный корень и получаем длину лестницы.
Дальше необходимо рассчитать подходящее количество ступеней.
Необходимые для работы материалы, инструменты
Для сооружения межэтажной металлической лестницы нам чтобы возвести межэтажную металлическую лестницу понадобятся следующие инструменты и материалы.
Инструменты:
сварочный аппарат;- лестница;
- болгарка;
- маска для сварки, рукавицы и специальные очки;
- дрель со свёрлами по металлу;
- шлифовальные диски;
- устойчивый стол из металла;
- тиски;
- струбцина;
- карандаш;
- рулетка и угольник;
Материалы:
Грунтовка;- Уайт — спирит;
- Краска по металлу
- Так же для двух косоуров используют квадратную трубу из профиля.
- Для того чтобы сварить опоры ступеней необходимы уголки, усиленные арматурой.
- Сами ступени и подступенки делают из четырёхмиллиметровой стали и отделывают деревом.
Проведение работ
Этапы работ:
Резка заготовок;- Изготовление кобылок, то есть узлов для присоединения ступеней;
- Сваривание опорных уголков;
- Монтаж косоуров;
- Приваривание ступеней и перил;
- Шлифовка;
- Грунтовка и покраска;
Первым делом из уголков изготавливают углы для крепления ступеней, то есть кобылки.
Нельзя допустить ошибку, чтобы не было различных перекосов и изъянов, которые испортят лестницу.
Так же кобылки должны быть одинаковыми и должны находиться точно друг напротив друга. Кобылки изготавливают из уголка, путём вырезания выборки и состыковки уголков между собой.
В итоге получаются Г- образные узлы полками вниз и внутрь. Для нашей конструкции необходимо четырнадцать пар этих узлов и в каждой из пар одна опора будет левой, а вторая правой. Затем кронштейны привариваем чтобы соединить ступени и горизонтальную перекладину между каждой из пар уголков.
Горизонтальную перекладину изготавливаем тоже из уголка. Усиливают конструкцию при помощи косынок, их привариваем снизу ступени по направлению к каждому из косоуров.
По ребру квадратной трубы из профиля производим разметку и по разметке привариваем кобылки к ребру косоура, второй косоур приставляют к первому косоуру с кобылками и переносим разметку.
Делаем проверку по уровню и затем привариваем косоуры нижним концом к платформе опоры. Если в домах бетонный фундамент, то опорная платформа устанавливается в бетоне. К опорной стойке крепим верхний конец, опорная стойка закреплена к перекрытию между этажами анкерами из стали. Затем ещё раз кобылки необходимо проверить по уровню.
В том случае, если лестница сделана возле стены, то для придания конструкции, жесткости один косоур приваривают к кронштейнам, которые закреплены на стене.
Финишные работы заключаются в приваривании ступеней к кобылкам, так же можно закрепить их болтами, но в этом случае необходимо ступени обшить деревом. Так же ступени можно установить деревянные, на кобылки при помощи винтовых соединений.
Советы по монтажу
Вроде возведение конструкции межэтажной лестницы не такое уж сложное занятие, но эта работа требует точности, аккуратности и внимательности.
Верхнюю ступень монтируют на небольшом расстоянии от стены, очень важно чтобы между стеной и ступенью был зазор, такой чтобы проходил лист обоев.- Перила всегда приваривают сбоку лестницы, так чтобы не изменить ее ширину.
- Все детали в местах сварки шлифуют, то есть все швы, зазубрины и заусенцы, затем металлической щёткой сметают металлические частицы. После этого лестницу из металла грунтуют и окрашивают.
- Ступени из дерева монтируют после того как краска окончательно высохнет.
Качественные сварочные работы — это гарант к долгому сроку эксплуатации лестницы. А антикоррозийное покрытие надолго защитит металл от порчи.- Со временем металлическую лестницу можно будет, отделать разными материалами и за счёт отделки она не будет смотреться громоздкой.
- Если вы вдруг не уверены в своих силах, или не умеете производить какие то работы, то лучше всего воспользоваться услугами профессиональных рабочих.
- Главным фактором выбора лестницы из металла является экономия средств.
- Лестница в первую очередь должна быть удобной, не сильно крутой и не сильно пологой.
В статье мы рассказали, как сделать металлическую лестницу на второй этаж.
Конечно, из какого материала делать лестницу решать только вам и никому больше, но лестница из металла получается визуально лёгкой, поэтому мы рекомендуем именно эту конструкцию.
Надеемся, что данная информация была вам полезной. Желаем вам удачи, терпения и вдохновения!
9 лучших строительных и мебельных магазинов!
- Parket-sale.ru- Огромный ассортимент ламината, паркета, линолеума, ковролина и сопутствующих материалов!
- Akson.ru- это интернет-гипермаркет строительных и отделочных материалов!
- homex.ru- HomeX.ru предлагает большой выбор качественных отделочных, материалов, света и сантехники от лучших производителей с быстрой доставкой по Москве и России.
- Instrumtorg.ru – это интернет – магазин строительного, автомобильного, крепежного, режущего и другого инструмента, необходимого каждому мастеру.
- Qpstol.ru - "Купистол" стремится предоставить лучший сервис своим клиентам. 5 звёзд на ЯндексМаркет.
- Lifemebel.ru- гипермаркет мебели с оборотом более 50 000 000 в месяц!
- Ezakaz.ru- Представленная на сайте мебель изготавливается на собственной фабрике в Москве, а так же проверенными производителями из Китая, Индонезии, Малайзии и Тайваня."
- Mebelion.ru- – крупнейший интернет-магазин по продаже мебели, светильников, интерьерного декора и других товаров для красивого и уютного дома.
domsdelat.ru
Металлическая лестница на второй этаж своими руками
Лестницу на второй этаж частного дома можно без особых проблем сделать и установить своими руками. Чаще всего ее изготавливают из металла. Такая конструкция отличается максимальной безопасностью и удобством в эксплуатации.
Требования к лестницам из металла
Уникальные технологические характеристики металлических изделий дают возможность производить лестничные конструкции почти любой конфигурации с различными размерами. Причем железные лестницы на второй этаж в доме вне зависимости от своей формы будут отличаться достаточной легковесностью и простотой изготовления. Вы без затруднений сделаете их своими руками, если имеете хотя бы минимальный опыт выполнения строительных мероприятий, умеете пользоваться сварочным агрегатом и работать с болгаркой.
Конструктивно лестничные сооружения из металла идентичны пролетам из бетона либо дерева. При возведении таких лестниц применяются одинаковые стандарты выполнения расчетов и проектирования. Вам нужно лишь грамотно составить чертеж, учитывая ряд требований, выдвигаемых к конструкциям, монтируемым своими руками в частном доме.

Лестничное сооружение из металла
Во-первых, металлическая лестница должна иметь ширину от 90 см. Во-вторых, высота ее ступеней выбирается в пределах 15–18 см. Глубина ступенек – около 35 см (можно немного меньше). Важное требование! Уклон конструкции, ведущей на второй этаж, обязан быть неизменным по всему лестничному маршу (угол наклона принимается на уровне 30–35°). Все чертежи железных лестниц, которые можно найти в интернете, отвечают описанным требованиям. Если вы сами создаете проект, вам также следует придерживаться их.
Кроме того, нужно учитывать и то, что дистанция между вертикальными ограждающими стойками лестничной конструкции берется не более 15 см. Это расстояние уменьшают до 12 см, когда в доме живут маленькие детки. Последнее обязательное требование к лестницам на второй этаж – они должны без проблем выдерживать нагрузку (боковую) в 100 и более килограммов.
Своими руками проще всего сделать лестницы из металла следующих видов:
- На одном косоуре. Такие конструкции предполагают установку швеллера либо двутавра и последующее крепление на него лестничных ступенек.
- На нескольких косоурах. В этом случае монтируются специальные опорные балки, которые выполняют функцию каркаса для конструкции.
- На больцах. Под больцами понимают особый тип болтов. Они используются для крепления лестничных ступенек к стеновой поверхности.
- Винтовые. Несущим элементом при установке этих конструкций является центральная мощная опора (столб).
- На тетивах. Такая металлическая лестница монтируется между опорными балками. Последние и называют тетивами.
Проектирование конструкций на второй этаж – схема и особенности
Как было сказано, чертежи лестницы нужного вам типа несложно найти в интернете. Если вы хотите получить прочное, простое и очень удобное изделие, советуем выбирать проекты с одномаршевыми прямыми лестницами. При наличии богатого опыта строительства можете попробовать сделать своими руками более сложные конструкции – с пролетами и несколькими поворотами.

Проект одномаршевой прямой лестницы
Мы опишем, как изготовить прямую лестницу с одним маршем. Проектируют ее так:
- Замеряем расстояния между «чистым» полом второго и первого этажей (получаем высоту марша).
- Определяем дистанцию между началом и концом проектируемой лестничной конструкции – замеры ведутся по уровню пола («чистого») на первом этаже (получаем длину марша).
- Полученные значения (допустим, они равняются 250 и 400 см соответственно) позволяют нам вычислить длину лестницы. Ее находим по теореме о катетах и гипотенузе прямоугольного треугольника. В нашем случае катеты имеют значения 250 и 400 см. Складываем их, из полученной суммы извлекаем корень и получаем показатель 472 см. Это и есть протяженность конструкции, которую мы хотим изготовить своими руками.
- Теперь высчитываем число ступенек, помня о рекомендуемой высоте. Для конструкции длиной 4,7 м их получится 14–15. Глубина ступеней у нас выходит 28,6 см (разделили 400 см на 14), что соответствует требованиям. Размер ступенек нужно будет дополнительно увеличить на 3–4 см. Эти сантиметры уйдут на организацию «свеса» – небольшого участка верхней ступени, которая будет нависать над нижней.
Нехитрые расчеты дали нам возможность получить ключевые геометрические параметры лестницы на второй этаж. Теперь ее можно сделать своими руками, не беспокоясь о том, что конструкция получится неправильной и не соответствующей стандартам эксплуатационной безопасности.
Изготавливаем лестницу с двумя косоурами – технология для домашних умельцев
Косоуры мы будем делать из квадратной профильной трубы, опоры для ступенек – из металлических уголков, а подступенки и непосредственно ступеньки – из стали в листах толщиной 4 мм (впоследствии их желательно обшить натуральной древесиной). Весь процесс возведения конструкции производится в несколько последовательных этапов:
- Нарезаем по требуемым параметрам железные заготовки.
- Делаем узлы для фиксации ступенек (их называют кобылками).
- Свариваем уголки.
- Устанавливаем косоуры.
- Крепим к каркасу ступеньки, а затем и ограждение.
- Доводим конструкцию до нормального вида – шлифуем, грунтуем, окрашиваем.

Возведения конструкции на металлическом каркасе
На первой стадии работ важно грамотно сделать кобылки. Их изготавливают своими руками очень аккуратно, одинаковыми по размеру, без перекосов и неточностей из металлических уголков. Схема выполнения работ простая: вырезаете выборки из уголка; стыкуете элементы друг с другом; получаете сварные Г-образные элементы, в которых полки должны «смотреть» внутрь и вниз. Для лестницы с 14 ступенями нужно сделать 14 пар кобылок.
Между ними следует установить кронштейны, к которым будут фиксироваться ступени, а также перекладину (поперечную). Последнюю изготавливают также из стального уголка. При необходимости можно добавочно «упрочнить» конструкцию, смонтировав по направлению к косоурам снизу ступеньки небольшие «косынки». После этого производим разметку квадратной трубы (по ее ребру) и крепим (используем сварку) к косоуру кобылки. Затем приставляем второй косоур к первому и «копируем» разметку. За счет этого все элементы лестницы на второй этаж, которую вы решили сделать, будут иметь по-настоящему четкую геометрию.
Нам осталось только сварить второй косоур с кобылками и обязательно проверить получившуюся конструкцию по уровню. Следующий шаг – крепление косоуров к опорной платформе и к опорной стойке (последняя крепится металлическими анкерами к межэтажному перекрытию). Чтобы увеличить жесткость лестницы, можно установить своими руками на стене кронштейны и приварить один из косоуров к ним (конечно, если конструкция монтируется возле стенки, а не посередине помещения). Теперь нужно приварить к кобылкам ступеньки.
Если вы планируете облицовывать лестницу древесиной, ступеньки допускается фиксировать строительными высокопрочными болтами подходящих размеров.
Также разрешается монтировать при помощи винтов ступеньки из дерева прямо на кобылки. Обратите внимание – последнюю ступень сверху нужно устанавливать на минимальной дистанции от стенки. Привариваем ограждение сбоку лестничной конструкции, ведущей на второй этаж. Выполнять эту работу необходимо так, чтобы ширина лестница осталась неизменной. Заметим – если ширина конструкции больше 120 см, лучше предусмотреть дополнительный косоур. Его устанавливают посередине лестницы.
Финал строительства своими руками лестничной конструкции на второй этаж – шлифование всех заусенцев и швов, обработка поверхности стальных элементов грунтовкой и их окраска. Обшивку лестницы на второй этаж древесиной либо другие варианты ее декорирования целесообразно осуществлять во время чистовых отделочных мероприятий.
Оцените статью: Поделитесь с друзьями!remoskop.ru
Лестницы на второй этаж на металлическом каркасе
ПОДЕЛИТЕСЬВ СОЦСЕТЯХ
Все большей популярностью у владельцев двухэтажных коттеджей пользуются лестницы на второй этаж на металлическом каркасе. Благодаря достижениям современных технологий и развитию дизайнерских решений, такие конструкции способны объединить различные материалы. В большинстве случаев — это комбинации из дерева и металла. Но все чаще в конфигурации лестниц на металлическом каркасе уживаются стекло и кафель, керамогранит и камень. Возможность сочетания разнообразных материалов в таких лестничных конструкциях безгранична. Лестницы выглядят креативно и в то же время обладают всеми качествами, необходимыми для безопасного подъема и спуска по ним.

Стильное сочетание металла, стекла и натурального дерева в конструкции лестницы
Лестницы на второй этаж на металлическом каркасе: преимущества конструкций
Актуальность лестниц на второй этаж на металлическом каркасе объясняется высокой прочностью и возможностью комбинировать самые разнообразные материалы. Конструкция на металлическом каркасе идет второй по рейтингу использования в частных домах и коттеджах после деревянных лестничных систем.

Лестницы из металла и закаленного стекла выглядят легкими и воздушными, но в эксплуатации надежны и удобны
К основным достоинствам лестниц на металлическом каркасе можно отнести:
- относительно несложный процесс изготовления;
- надежность и функциональность лестничной системы – правильно сконструированные лестницы могут выдерживать довольно весомые нагрузки;
- прочность узлов при сращивании сваркой несущих элементов;
- возможность применять различные виды металла: трубы, арматурная сталь, швеллеры, двутавры, уголки и другие;

Пристенная металлическая лестница ограждена декоративной завесой из металлического прута с полками для декора
- возможность комбинировать материалы и формировать самые различные конструкции лестниц;
- отсутствие скрипов при эксплуатации, долговечность систем;
- возможность изготовления несложных конструкций металлических лестниц на второй этаж своими руками.
Разнообразие форм и моделей убедительно демонстрирует фото лестниц на металлических каркасах.
Самостоятельное изготовление лестницы на металлическом каркасе возможно, если конструкция проста и имеются навыки работы со сварочным аппаратом и металлом.

Правильный расчет лестницы — гарантия удобной и безопасной ее эксплуатации
Виды металлических лестниц на второй этаж. Фото моделей различных конструкций
Лестницы на второй этаж из металла (фото различных моделей просто уникальны) могут быть прямыми и изогнутыми, спиральными и эллиптическими. В зависимости от покрытия, они бывают глянцевыми, матовыми, золочеными и пр. Многообразие форм и комбинаций материалов позволяют их использовать в различных стилях дизайна.
По способу применения, конфигурации и другим различным параметрам их делят на виды:
- Наружные (вспомогательные) — к таким конструкциям относят лестницы на чердак, пожарные лестницы, стремянки, лестницы для подвалов, бассейнов, а также системы лестниц, соединяющие два этажа с наружной стороны дома.
- Внутренние — лестничные конструкции, установленные стационарно внутри помещения и соединяющие разные уровни помещения. Такие лестницы по праву являются центральным элементом декора помещения.

Стильные лестницы из нержавеющей стали хорошо впишутся в современный интерьер
По способу изготовления различают сварные и кованные лестничные системы. Самостоятельное изготовление металлических лестниц на второй этаж в частном доме с помощью сварки является относительно легким способом. Недостатком такого способа является то, что сварка считается грубой работой, и получившееся изделие может иметь не совсем эстетичный вид. Однако многие умельцы обыгрывают места сварки, придавая им декоративность.
Кованные лестницы изготавливаются путем ковки металла. Сделать такие лестницы под силу не каждому. Но даже в случае, если конструкция имеет лишь кованные перила для лестницы (фото это подтверждает), этого вполне хватает, чтоб придать ей неповторимый элегантный вид.

Кованные перила придают лестнице красоту и неповторимость
По устройству лестницы из металла бывают цельные (фиксированные) и сборные. Цельные конструкции устанавливают стационарно из секций, соединенных между собой. Сборно-разборные лестницы имеют комплект наборных частей и элементов. Самостоятельный монтаж таких лестниц — вполне посильный процесс.
Виды конструкций металлического каркаса для лестниц
По конструктивному исполнению металлического каркаса лестницы классифицируют:
- маршевые конструкции — состоят из одного или нескольких маршей. В зависимости от расположения комнаты, марши могут быть прямыми и поворотными. В свою очередь, лестницы с поворотом бывают с соединением маршей через площадку или с использованием поворотных (забежных, радиусных) ступеней. Для самостоятельного изготовления более приемлемым вариантом является лестница с площадкой. Обустроить своими руками лестницу из металла на второй этаж с поворотом на 90 и 180 градусов довольно тяжело. Для этого потребуется точное конструирование и четкий расчет. Однако такие системы эффектно выглядят и существенно экономят место;

Винтовые лестницы из металла компактны и изящны
- винтовые (спиральные) системы лестниц. Эти лестницы отличаются тем, что ступени расположены по кругу, благодаря тому, что один конец ступени шире второго. Несущим элементом является столб или колонна, вокруг которой и монтируются ступени. Преимущество их в том, что при одинаковой длине ступени, они занимают гораздо меньше пространства, в сравнении с маршевыми аналогами. Изготовление винтовых лестниц из металла своими руками (чертежи и схемы их сложны) — процесс достаточно трудоемкий в техническом плане, требующий необходимого запаса знаний и опыта.
Несущий каркас из металла может быть исполнен в нескольких вариантах:
Косоурный несущий каркас. При таком способе обустройства каркас является своеобразной подпоркой для ступеней лестницы. Такая система лестниц отличается прочностью и надежностью. Количество опорных косоуров зависит от проекта лестницы и предполагаемой нагрузки.

Комбинированные лестницы на металлических косоурах выдерживают достаточно весомые нагрузки
Полезный совет! Если длина ступеней лестницы достаточно велика, применяются конструкции каркаса, содержащие две косоурные балки.
Тетивная несущая балка. В такой конструкции ступени вставляются в специальные пазы в балке и их торцы сбоку не просматриваются. Конструкции на тетивах выглядят массивнее, чем модели на косоурах.
Металлические лестницы на больцах. Здесь опорным элементом является сама стена. Ступени к ней крепятся с помощью металлических крепежных элементов. Такие конструкции выглядят, как будто подвешены в воздухе, они легки и изящны. Встречаются модели с опорой на стену и на косоур или тетиву.
Для ознакомления с видами конструкций в интернете найдется много фото лестниц на второй этаж из металла.

Металлическая лестница на тетивах из необработанного металла
Формы перил для лестницы из металла. Фото-примеры поручней и перил
С целью безопасного передвижения, конструкции лестниц на металлическом каркасе снабжаются перилами и поручнями.
Полезный совет! Если лестница имеет более трех ступеней, она обязательно комплектуется поручнями или перилами. Это соответствует техническим требованиям, выдвигаемым к эксплуатации лестниц.
Металлические поручни для лестниц могут быть различных форм и цветов. В этом смысле, производители предлагают широчайший ассортимент, позволяющий подобрать элементы для лестниц в помещениях любого дизайна. Помимо функции безопасности, они несут в себе и эстетическую составляющую, придавая завершенность лестничному ансамблю.

Для придания эстетичности и дополнительной безопасности конструкции лестницы, поручни можно декорировать шнуром
Широкую популярность получили поручни из нержавейки для лестниц на металлическом каркасе. Перила из нержавеющей стали универсальны в эксплуатации, не требуют особого ухода. Их необходимо время от времени протирать салфеткой, смоченной в специальном составе для придания блеска. В точках реализации и на сайтах производителей предлагается огромный выбор комплектующих для перил из нержавеющей стали.
Поручни и перила для лестниц из металла (фото и цены указаны в прейскурантах) можно заказать любого вида и формы, согласно индивидуальным предпочтениям. Цена изделий из нержавеющей стали будет выше, чем на поручни из дерева или пластика, но это с лихвой окупится надежностью и долговечностью стальных перил.

Лестница с каркасом из нержавеющей стали и каменными ступенями
Кованые перила для лестницы в доме (фото это иллюстрирует) отличаются изысканностью и в то же время сложностью в изготовлении. Процесс изготовления кованых изделий — художественная ковка. Возможны любые вариации и стили изготовления кованых перил от ажурных до плотных и массивных. Недостатком кованых ограждений является их относительно высокая цена.
Перила для лестниц из металла своими руками
Для самостоятельного изготовления металлических перил используют черный металл или сталь. Главными достоинствами таких перил являются надежность и долговечность. Если изделия подвергаются должной обработке, то они получаются довольно красивыми. Для получения стальных перил необходимой формы используют способ гибки металла, называемый холодным.

Металлические поручни изготовлены методом сварки
Для изготовления железных перил применяется два вида сварки: полуавтоматическая и аргонодуговая. В первом варианте при работе наблюдается много брызг. Второй вариант исключает этот момент и при аргонодуговой сварке стыковочный шов получается более ровным и аккуратным, он хорошо поддается зачистке и полировке. Сварные перила из железа уязвимы к коррозии и требуют обработки краской.
Статья по теме:
Имеющиеся фото перил из профильной трубы станут поддержкой при выборе подходящего для вас варианта.

Балюстрада и поручни лестницы обустроены с применением металлической трубы
Изготовление лестницы из профильной трубы на второй этаж своими руками
Для изготовления лестницы на металлическом каркасе используют трубы профильные с размерами сечения 40х60 мм, что обеспечит конструкции достаточную прочность.
Существует два метода сборки каркаса. Можно изготовить весь каркас вне места установки и потом перенести его непосредственно к месту, где будет располагаться лестница. Такой метод не всегда может подойти, так как конструкция довольно тяжела и придется прибегнуть к помощи специальных механизмов. Да и готовая конструкция может по габаритам не вписаться в существующие проемы.

Монтаж модульной лестницы заводского изготовления легко осуществить самостоятельно
Специалисты рекомендуют производить изготовление каркаса прямо на месте установки лестницы на второй этаж. В этом случае допущенные ошибки можно корректировать по мере выполнения работ на месте.
Нарезка заготовок
Работу начинают с выбора конструкции лестницы: в данном случае это будет косоурная конструкция. Разрабатывается схема лестницы со всеми необходимыми размерами и учетом расположения поворотных ступеней. Схема будет нужна на протяжении всего времени изготовления и монтажа лестницы.

Схема модульной лестницы на хребтовом косоуре
Профильные трубы предварительно очищаются от окалины. В соответствии со схемой, производятся работы по подготовке элементов необходимого размера и количества.
Полезный совет! Если вы сталкиваетесь с работой по изготовлению металлического каркаса лестницы впервые, попробуйте все нарезанные и готовые элементы пронумеровать, чтобы не ошибиться и не испортить материал.

Самостоятельное изготовление лестницы на металлическом каркасе возможно, если конструкция проста и имеются навыки работы со сварочным аппаратом и металлом
Для того, чтобы работа шла быстрее рекомендуется сначала подготовить и нарезать все элементы, а потом приступать к сварке. Но постепенная нарезка по ходу выполнения работы позволяет допустить меньше ошибок. Выбирать вам. Распил труб выполняется с выдерживанием всех углов.
Монтаж несущих опор
Как только все элементы нарезаны, устанавливаются несущие балки каркаса. Количество балок должно быть равным количеству косоуров. Несущий швеллер обрезают так, чтобы он упирался плоскостью среза в потолочную балку и в пол. В некоторых случаях подготавливают основу и к ней приваривают швеллер.

Просторная маршевая поворотная лестница с площадкой
На этом этапе важным условием является правильная и параллельная установка швеллеров (если их несколько). От их расположения будет зависеть правильность всей конструкции. Если планируется поворотная система, необходимо предварительно сделать необходимый поворот несущей балки согласно вашей схеме. Если на схеме предусмотрена конструкция с площадкой, то концы опор маршей должны упираться в площадку и быть надежно зафиксированы.
Заготовки для ступеней
Заготовки для ступеней делают в форме треугольника, в который впоследствии закладывают ступени. Для фиксации этих треугольников используют точечный шов в нескольких местах. Проверяют правильность крепления и лишь после этого надежно фиксируют сваркой к основному каркасу. Также применяют в качестве крепежа болты.

Маршевая поворотная лестница на металлическом косоуре
Когда первая заготовка для ступени готова, на нее укладывают временную ступень из доски, затем постепенно монтируются все следующие «косынки».
Изготовление каркаса для поворотной на 90 градусов лестницы значительно сложнее. Размеры треугольных заготовок будут различными. Здесь рекомендуется готовить каждый элемент только после того, как смонтирован предыдущий.

Винтовая лестница на металлическом каркасе
Иногда, при применении в качестве несущего элемента широкого швеллера, вместо треугольных заготовок для ступеней приваривают к основе металлические подставки для них.
Обработка металлического каркаса
После монтажа приступают к зачистке швов. Обрабатывается вся металлическая поверхность каркаса: обезжиривание, нанесение составов от ржавчины, грунтовка. Далее, металл покрывается краской. Если использовался профиль из нержавеющей стали, обработка не нужна.

Металлическая лестница в стиле «минимализм»
Ступени для лестницы могут быть выполнены из дерева или металла. Более экзотический вариант камень или стекло. Если в качестве ступеней выступает дерево — полки треугольных уголков должны быть снизу, если камень или бетон — полки направляются вверх.
Основным преимуществом лестниц на металлическом каркасе является возможность объединить различные материалы в самых разнообразных комбинациях. Вместе с тем лестницы на каркасе из металла прочны, долговечны и могут соответствовать любому стилю интерьера.
ОЦЕНИТЕМАТЕРИАЛ Загрузка... ПОДЕЛИТЕСЬВ СОЦСЕТЯХСМОТРИТЕ ТАКЖЕ
REMOO В ВАШЕЙ ПОЧТЕremoo.ru
Лестница из металла на второй этаж: строим своими руками
Любую строительную металлоконструкцию при наличии оборудованной мастерской можно соорудить самосто ятельно – был бы под рукой нужный стальной профиль. К таким конструкциям относится и лестница из металла на второй этаж. В домашних условиях вполне можно изготовить каркас – тетиву или косоуры, ступени и ограждения.
Все элементы достаточно просто вырезать из стандартного металлопроката. Чтобы соединить детали в единое изделие, необходимо обзавестись обычным сварочным инвертором. Существуют конструкции с разъемными – болтовыми соединениями. В СНиПах и ГОСТах подробно описаны требования, на основании которых можно рассчитать размеры и сделать чертежи. Установить лестницу при необходимости можно снаружи здания или внутри – технология работ одинакова.
Лестница на второй этаж из металла своими руками
Любая лестница состоит из элементов двух типов: маршей и площадок. Марш – это несущие наклонные балки со ступенями, перекинутые от одной горизонтальной площадки к другой. В каждом марше может быть от 3 до 18 ступеней.
Ступень состоит из двух плоскостей:
- горизонтальную часть называют проступь;
- вертикальная перегородка, закрывающая проем между перекладинами, – это подступёнок.
Классифицируют лестницы по различным признакам. Например, по количеству и типу маршей.
- Между этажами может быть один или несколько маршевых пролетов. Марши бывают прямые и изогнутые. В зависимости от выбора конструкции лестницы различают: прямые, круглые, одно- или многомаршевые.
По назначению.
- Если лестница переносная, она относится к классу приставных, специальных, крутых: угол наклона в ней более 60о. Такие лестницы могут быть использованы в качестве чердачных или пожарных.
- Для выхода на мансарду строят компактные лестницы: угол их наклона больше 45о, но меньше 60о. Такие лестницы часто монтируют снаружи здания.
- Главные лестницы имеют угол менее 45о. В основном такие лестницы выполняют функцию межэтажных: по ним наиболее удобно ходить.
В зависимости от формы балок и расположения ступеней по отношению к ним различают лестницы с косоурами и тетивами.
- Если балка прямая, натянута как струна, а перекладины закрыты боковым каркасом с обеих сторон – это лестница с тетивами.
- Если несущая балка похожа на пилу и находится под ступенями – это косоур, каркас ступенчатой формы.
Конструктивные особенности лестниц
- Лестницы с косоурами изготавливают на двух балках (привычный, самый распространенный вариант) и на одной. Во втором случае лестницу называют «на одном косоуре» – несущий профиль располагается по оси маршевого пролета. Лестница на одном косоуре создает ощущение невесомости и выглядит очень нарядно.
- Существуют лестницы с больцами (болтами по-немецки). Роль балки в такой конструкции выполняют перила ограждений. Снизу к ним жестко прикреплены балясины, к которым подвешены ступени. Дополнительную жесткость лестнице придают крепления проступей друг с другом, для этого используются массивные винты, иногда с втулками.
- Консольные – это лестницы, ступени которых вмонтированы в боковую стену.
- Популярны в частных домах винтовые конструкции: ее ступени имеют форму усеченного треугольника и называются забежными. Одним, узким концом перекладины опирается на центральную опорную колонну, второй, широкий смещен относительно нижнего на заданную величину. Внешне такая конструкция похожа на спираль.

Материал изготовления – еще один критерий классификации. Кроме стальных существуют еще железобетонные и деревянные лестницы.
- Однако конструкцию из цементно-песчаного массива – армированную стальной сеткой и отвибрированную – самому смастерить достаточно сложно. Еще сложнее ее установить: для этого дополнительно потребуется мощный подъемный механизм.
- Деревянные лестницы также сложны в изготовлении. Главное, материал не прощает ошибок: деревянную деталь невозможно срастить. К тому же за ними нужен тщательный уход в процессе эксплуатации.
Мнение эксперта
Сергей Юрьевич
Строительство домов, пристроек, террас и веранд.
Задать вопрос экспертуНаиболее конструктивными и технологичными остаются металлические лестницы: все работы по обработке стали можно сделать самому.
Как правильно сделать лестницу на второй этаж из металла
Лестница – объект повышенной опасности. Во-первых, всегда существует вероятность скатиться по ней нечаянно вниз. Во-вторых, это узкое место в доме: при возможной чрезвычайной ситуации здесь образуется скопление людей. Поэтому при проектировании лестницы руководствуются двумя критериями:
- безопасностью, в том числе противопожарной;
- удобством перемещения.
Условия достижения комфортных параметров приведены в технической нормативной документации. Общие технические нормы к лестницам заложены в СНиП 21-01-97.
Дополнительные требования описаны в ГОСТ 23120-78. Сначала остановимся на ограничениях, связанных с безопасностью:
согласно требованиям пожарной безопасности хотя бы одна лестница в доме должна иметь ширину 900 мм;
- площадки и ступени металлических лестниц изготавливаются либо из сплошного рифленого листа, либо из обрешеченных элементов. Это могут быть полосы, положенные на ребро или просечные листы. Требование особенно важно для наружных лестниц: зимой металл очень скользок.
- разрешенная нагрузка на ступени – 200 кг и выше;
- перила должны выдерживать поперечное усилие 100 кг;
- минимальная высота балясин допускается 800 мм;
- просвет между балясинами – до 150 мм;
- марш должен отстоять от боковой стены максимум на 6 см:
- ширина площадки не должна быть уже маршевого пролета:
- длина площадки – хотя бы 1 м
- максимальное количество ступеней в 1 марше – 18 штук.
Дополнительно следует учесть требования: лестница должна быть освобождена от шкафов, полочек и дверок от встроенных коробок.
При проектировании маршей дополнительно нужно учитывать:
- возраст пользователей и состояние их здоровья,
- эксплуатационную нагрузку,
- возможность перемещать крупногабаритные вещи.
Требования к удобству основаны на антропологических данных. Длина шага среднего человека составляет 600 – 640 мм. Значит соотношение высот и длин в элементах лестницы, также должно равняться 600 – 640 мм. Эта закономерность известна инженерам с XVII века. На ее основе сформулировано Золотое правило идеальной лестницы.
Мнение эксперта
Сергей Юрьевич
Строительство домов, пристроек, террас и веранд.
Задать вопрос экспертуВ идеальной лестнице сумма длин двух подступенков и одной проступи равна 600 мм. При этом сумма размеров плоскостей одной ступени равна 450 мм.
Результат в цифрах таков: оптимальная глубина ступеньки составляет 300 мм, а высота 150 мм.
Современный ГОСТ допускает значительные отклонения от этих парамтров. По мнению Ростандарта:
- высота подступенка может лежать в пределах 150 – 210 мм;
- длина проступей должна быть 250 – 330 мм;
- в отдельных случаях допускается минимальная глубина ступеней 100 мм.
При изготовлении лестницы нужно дополнительно следить и за такими соотношениями:
- предельная разница диагоналей марша составляет 4 мм;
- разница высот различных ступеней должна лежать в пределах 5 мм;
- максимальная длина выступа верхней ступеньки, нависающего над нижней, составляет 50 мм.
Рекомендуем к прочтению
Лестницы из металла на второй этаж: компоновка и схема расчета
Лестничные конструкции бывают самой разной компоновки: Т-образные, круглые, винтовые. Прежде, чем перейти к созданию сложных форм, следует разобраться с простейшей конфигурацией – с одномаршевой стальной лестницей. Общая схема построения выглядит следующим образом.
- В межэтажном проеме монтируют две двутавровые балки или ставят на ребро два швеллера № 8, 10 или 12.
- К каждому из них приваривают собранные из углового профиля кобылки – угольники, основания для ступеней.
- К горизонтальной плоскости угольников крепят перекладины, вырезанные из металлического листа либо деревянной доски.
- К торцу балок у самого их окончания приваривают вертикальные столбы – опоры для ограждений. Для их изготовления используют кованый квадрат сечением 12–16 мм.
- Верхние концы столбов соединяют полосой или уголком.
- Конструкцию зачищают от заусенцев, потеков, излишних выступов металла.
- Каркас грунтуют, окрашивают, при необходимости облицовывают деревом, пластиком или другим отделочным материалом.
Мнение эксперта
Сергей Юрьевич
Строительство домов, пристроек, террас и веранд.
Задать вопрос экспертуЧтобы лестница соответствовала техническим требованиям и ожиданиям пользователя, размеры всех деталей заблаговременно рассчитывают.
Примерная схема проектирования лестницы
На первом этапе расчетов следует решить следующие задачи:
- определить количество ступеней;
- вычислить их глубину и высоту;
- найти точку начала лестницы на полу нижнего этажа;
- рассчитать длину маршевых балок или косоуров.
Технология вычислений базируется на геометрических закономерностях треугольников. Приводим последовательность расчета для одномаршевой лестницы:
- Определяем разницу между уровнями чистого пола 2-го и 1-го этажей.
- Определяем возможное количество ступеней с учетом допусков по высоте приступенка: общую высоту (мм) делим на 15 – 21 мм.
- Полученную величину округляем в большую или меньшую сторону до целого значения.
- Определяем по месту длину горизонтальной проекции марша на плоскость пола нижнего этажа (мм).
- Вычисляем глубину ступени: длину проекции марша делим на количество ступеней.
- Дробное значение округляем до целого.
- Рассчитываем длину маршевых балок – тетив по теореме Пифагора:
- вычисляем квадраты высоты и длины горизонтальной проекции;
- суммируем эти значения;
- извлекаем корень второй степени.
Теперь нам осталось рассчитать уточненную высоту подступенка и уточненную глубину ступени – мы же округлили количество ступеней. Для этого производим обратные вычисления с высотой и длиной лестницы.
Если выполнить расчет для стандартных помещений, то получим результат: лестница для помещения, имеющего высоту потолков 2,7 м, будет состоять из 20 ступенек, а ее длина составит 6 метров.
Пояснение:
Высота лестницы: 2,7 м + 0,3 м (толщина перекрытия с утеплителем и чистовым полом), итого 3 метра. Потребуется 20 ступеней высотой 15 см.
Длина лестницы: 20 перекладин по 30 см – итого 6 м. Если глубину ступени уменьшить за счет выступа, и все ступени сдвинуть на 5 см, то протяженность конструкции можно сократить на 1 м.
Мало найдется частных домов, в которых безболезненно для планировки можно возвести наклонную 6-тиметровую балюстраду. По этой причине строят лестницы самых различных форм. Все они позволяют экономить пространство. Существует множество типов, мы выделим основные:
- круглая или изогнутая – позволяет на 20% эффективней использовать площадь помещения, направление движения меняется на 90о.
- Г-образная – аналогичная по эффективности конструкция;
- П-образная – экономит 30%, при подъеме осуществляется поворот на 180о;
- винтовая – высвобождает 80%, направление подъема изменяется на 360о.
Конструкции с поворотами маршей могут выполняться с горизонтальными площадками либо с забежными ступенями. Рассмотрим каждый из вариантов.
Круглые лестницы из металла на второй этаж
Эти лестницы еще называют поворотно-маршевыми, круговыми, изогнутыми. Их изготовить сложно, но по внешнему виду это самые стильные и красивые сооружения. Особенно шикарно выглядит комбинированная конструкция, в которой сочетаются марши с разным радиусом поворота.
Круглые модели получили распространение в эпоху появления архитектурного направления модерн. Их поначалу строили в дорогих роскошных особняках. Однако сталь – универсальный и распространенный материал, который открывает технологические возможности для создания бюджетных вариантов лестниц. Единственную сложность вызывает операция изгибания тетив и косоуров. Однако квалифицированные сварщики могут изготовить такой каркас собственноручно.
Округлую конструкцию можно сварить из отдельных элементов, каждый из которых состоит из одной ступени. Каркас – это ступенчатые усеченные треугольники или трапеции, которые соединяются под определенным углом. Рассчитать такую конструкцию, владея знаниями геометрии в пределах школьного курса, достаточно просто.
Мнение эксперта
Сергей Юрьевич
Строительство домов, пристроек, террас и веранд.
Задать вопрос экспертуЧтобы понять суть, достаточно представить, что каждый элемент является, по сути, внешней частью одного сектора окружности. То есть, изогнутая лестница – это винтовая, в которой отрезали внутренний круг. Винтовую конструкцию рассчитать проще, ее мы и разберем.
Винтовые лестницы из металла на второй этаж
Спиральные – второе популярное название таких лестниц. В архитектуре конструкция используется тысячи лет: это обязательный атрибут башен в замках и колоколен при церквях. Ее ступени расположены по спирали. Обычно марши располагают в углу здания, тогда каждая ступень одним – узким концом соединена с опорной колонной, а вторым, широким концом опирается на кладку стены. Возможен вариант с больцами: в этом случае консольная часть подвешивается к балясинам.
- Основное достоинство винтовой лестницы – компактность. Все сооружение, независимо от его протяженности, занимает до 3 м2.
- Основной недостаток – малый проем: по ступеням сложно поднять громоздкую мебель.
- Если конструкция грамотно спланирована, передвигаться по лестнице вполне удобно.
Такие лестницы обычно выполняют вспомогательную роль – соединяют основное помещение с мансардой, чердаком или подвалом. Зачастую спиральная конструкция – это самый оптимальный вариант для частного коттеджа на даче.
Требования к безопасности вспомогательных лестниц мягче, поэтому угол наклона винтовых маршей составляет 45о, а высота ступеней достигает 21–22 см.
Ширину маршей рекомендуется выбирать в пределах 70 – 100 см. При всех вариантах использования по лестнице вдвоем в одном направлении ходить сложно, а для одного человека такой ширины достаточно.
Проступи спиральных конструкций имеют треугольную форму, поэтому глубина ступеней в разных концах различается почти в 4 раза. Чтобы подъем и спуск были удобны, длина проступей у колонны должна составлять 100 мм, а с противоположной стороны – 400 мм. Тогда на серединной линии ступень будет иметь оптимальный параметр – около 200 мм.
Важный параметр в расчетах винтовой лестницы – направление входа и выхода. Вектор зависит от количества ступеней и периода вращения лестницы. Для каждой конструкции, расположенной в помещении с определенной высотой, эту величину нужно рассчитывать. Здесь мы приведем справочный параметр:
- при высоте ступеней 22 см лестница в помещении 3,10 м (2,8 м – комната и 0,3 м – перекрытие) сделает один полный оборот. То есть, вход и выход будут направлены в одну сторону.
Винтовые лестницы могут быть выполнены в различных конфигурациях. Основной элемент спиральной конструкции – забежная ступень, которая имеет треугольную форму, встречается во всех других типах лестниц, в том числе и в маршевых.
Забежная лестница на второй этаж
Забежная – от слова забегать: все ее проступи набегают друг на друга. Забежная лестница в чистом виде – это винтовая или круглая. Проступи этих конструкций выполнены в виде трапеции или треугольника. Гораздо чаще забежные элементы встречаются в многомаршевых типах лестниц. Поворотные ступени соединяют различные пролеты вместо горизонтальных площадок.
Отрезки с поворачивающимися ступеньками выглядят очень красиво. Такие лестницы строят в гостиных – изгиб придает помещению элегантность. К тому же забежные марши в значительной степени экономят площадь лестничного проема.
Мнение эксперта
Сергей Юрьевич
Строительство домов, пристроек, террас и веранд.
Задать вопрос экспертуК примеру, два марша метровой ширины, расположенных под углом в 180о, можно соединить не горизонтальной площадкой, а забежными ступенями. В этом случае только на повороте мы получим 7 ступеней общей высотой 105 –160 см.
Пояснение: встречные марши, каждый шириной 1 м, примыкают к площадке, глубина которой – 1 м. В этот прямоугольник вписывается полуокружность радиусом 1 м. Длина ее составляет 3,14 м. Таким образом, мы можем построить 7–8 ступеней, глубина проступи которых по периметру составит 39–42 см. Высота каждой ступени лежит в диапазоне 15–20 см.
При сооружении забежных отрезков лестниц следует придерживаться определенных правил:
- Высота забежных ступеней должна равняться высоте маршевых проступей. Допускается отклонение 5 мм.
- Глубина забежных ступеней по средней линии должна равняться глубине маршевых.
- Внутренний диаметр окружности должен быть 100 мм и более. То есть, чтобы построить забежный поворотный отрезок, следует предусмотреть минимальный зазор между встречными маршами в 100 мм.
Прямая лестница на второй этаж
В реальной обстановке прямую лестницу на второй этаж сооружают в двух случаях:
- Если помещение очень длинное, а территория, примыкающая к стене – это проезд. Такая ситуация может возникнуть в производственном корпусе: цеха размещены в сооружениях ангарного типа, длинная однопролетная лестница на антресоль – лучший способ компоновки. Подобные лестницы хороши, когда они расположены с внешней стороны зданий у глухой стены.
- Если помещение очень тесное, и угол наклона лестницы превышает 50о. Крутую лестницу можно установить для мансардных помещений. Главное условие: глубина ступени должна быть хотя бы 100 мм или более.
Мнение эксперта
Сергей Юрьевич
Строительство домов, пристроек, террас и веранд.
Задать вопрос экспертуВ большинстве случаев в частных домах создают поворотные конструкции.
Лестница из металла на второй этаж — расчет
Многомаршевую лестницу с поворотом рассчитывают по тому же алгоритму, что и одномаршевую.
- Отличие состоит в том, что в конструкцию добавляют еще одну горизонтальную площадку. Таким образом, получают два прямолинейных отрезка.
- Следом решают задачу – на какой высоте ее расположить. Для этого вычерчивают конструкцию на бумаге в двух проекциях. Сумма высот каждого пролета должна быть равна общей высоте каркаса.
- Далее рассчитывают количество ступеней для каждого отрезка. При этом руководствуются правилом, что глубина проступи и высота проступенника на всех интервалах должны быть одинаковыми.
Мнение эксперта
Сергей Юрьевич
Строительство домов, пристроек, террас и веранд.
Задать вопрос экспертуДопускается изменять высоту фризовых ступеней – первой и последней.
Отрезок с забежными ступенями обсчитывают так же, как спиральную конструкцию. Проектируемую глубину проступей закладывают по серединной линии. Добиваются при этом единства параметров для прямолинейных и для криволинейных пролетов.
Лестница на второй этаж из металла с поворотом на 90
Внутренние конструкции обычно устанавливаются в углах здания: марши примыкают к смежным простенкам. Наружный вариант более вариабелен. Место поворота выбирают так, чтобы лестница не ограничивала подходы к двери первого этажа. При этом учитывают расположение дождевых отливов.
Площадку устанавливают на опоры или крепят к стене. Лучшими опорами для металлических конструкций считаются стальные трубы диаметром 100 мм. Нижнюю часть труб опирают на фундамент, который закладывают достаточно глубоко – ниже точки промерзания грунта.
К стенам промежуточную площадку крепят с помощью анкерных болтов или кронштейнов. Зачастую закладные предусматривают еще на этапе проектирования дома.
Мнение эксперта
Сергей Юрьевич
Строительство домов, пристроек, террас и веранд.
Задать вопрос экспертуВажный элемент – конфигурация пола на площадке. Металлическая поверхность коварна: в дождь и снег она обеспечивает минимальное сопротивление между подошвой ботинка и железом. При выборе материала между штампованным листом и просечным железом преимущество отдают сетчатой перфорированной поверхности.
Лестница на второй этаж из металла с поворотом на 180
Встречные марши сходятся на одной промежуточной площадке, которая выполняет функцию отдельной, но очень широкой перекладины. Здесь лестница меняет направление движения на 180о. Применяется конструкция только для наружных лестниц или для строительства лестничных пролетов на отдельных клетках – вертикальных тамбурах.
Существуют комбинированные варианты: между прямыми маршами расположена не горизонтальная площадка, а отрезок с забежными ступенями. Такая лестница своей конструкцией напоминает винтовую.
Еще одна разновидность: встречные марши соединяются с площадкой посредством забежных ступеней. Такая конфигурация встречается достаточно редко: получается консольная конструкция, которая нуждается в дополнительной усиливающей опоре.
В любом случае площадка на лестнице из металла в двухэтажном доме – это лучшая конструкция: она максимально удобна, безопасна и функциональна.
Изготовление лестницы на второй этаж из металла
Технологический процесс начинается с изготовления площадки. После того как сварили раму, ее жестко фиксируют – либо крепят анкерами к стене, либо устанавливают на опорные столбы.
После закрепления площадки приступают к изготовлению и установке косоуров или тетив. Важный момент на этой стадии: все детали должны быть полностью конгруэнтны. Малейшее отступление от этого правила приведет к перекосу ступеней и возникновению других, более важных с точки зрения безопасности, явлений.
Следующая операция – монтаж ступеней. В вопросе – как сварить металлическую лестницу для двухэтажного дома, преимущество следует отдать тщательности. Важная деталь: кронштейны на обеих балках должны располагаться симметрично. Чтобы облегчить процесс примерки целесообразно изготовить шаблон: скорость и точность выполнения работ сразу возрастут.
Заключительный этап – очистка каркаса от окалины, ржавчины и заусенцев. Все соединения и торцы металлических деталей зачищают, грунтуют, красят.
На этом работы по монтажу и сварке завершаются. Оставшиеся технологические операции связаны с облицовкой. А это уже предмет нового увлекательного обзора.
Рекомендуем к прочтению
zbbr.ru
Как сделать лестницу на второй этаж своими руками (+фото)

Все чаще при строительстве собственного дома хозяева отдают предпочтение проектам, имеющим несколько этажей. Благодаря этому можно значительно увеличить жилую площадь на небольшом участке земли. Чтобы люди могли беспрепятственно подниматься на второй этаж, необходимо наличие лестницы.
Вы можете обратиться за помощью к профессионалам, однако учтите, что они могут не придать значение мелким дефектам при строительстве, которые в последствие могут привести к серьезным поломкам и последующему ремонту. Лестница на второй этаж сделанная самостоятельно, даст вам несколько преимуществ:
- результат будет соответствовать ожиданиям;
- поможет сэкономить финансовые средства и нервы;
- лестница, изготовленная самостоятельно, станет предметам вашей гордости.
Если вы ограничены в денежных средствах на приобретение материалов, можно купить более дешевые аналоги: вместо дерева использовать ДСП, который можно покрыть лаком или краской.
В погоне за экономией можно упустить из виду качество. Хотя дешевая деревянная лестница тоже может прослужить довольно долго, но очень скоро начнет скрипеть. Чтобы не столкнуться с этой неприятностью, лестницу нужно собирать с использованием силиконового герметика, что без предварительной покраски деталей невозможно сделать.
В данной статье мы поговорим о том, как сделать лестницу на второй этаж своими руками из дерева и из металла, а также покажем фото и видео инструкции.
Выбор материала

Для изготовления межэтажной лестницы может использоваться бетон с облицовкой из плитки или мрамора, металл (необходимо наличие сварочного аппарата), а также дерево. Последний вариант самый практичный и удобный. Деревянная конструкция отличается небольшой массой, простотой монтажа и красивым внешним видом.
Конструкция

При наличии помещения с высотой потолков 2,8 м стоит отдать предпочтение прямым конструкциям, либо с поворотом на 25% лестницы. Лестничный марш изготавливается с длиной в 80 см. такой вариант позволяет применять пространство под лестницей для хранения вещей. Нельзя не отметить и минус: на верхнем и нижнем этаже значительно сократиться свободное пространство.
Для экономии драгоценных квадратных метров идеально подойдет винтовой вариант лестницы, но он также не лишен недостатков:
- слишком крутой подъем;
- маленькая ширина лестниц.
Для монтажа винтовой лестницы потребуется 3 м² свободного пространства и много труда.
Возможен еще один вариант устройства лестницы, при котором она располагается вдоль поверхности стены. В этом случае стоит предусмотреть два марша и поворот. Таким образом, вы сделаете ее максимально компактной и комфортной для передвижения.
Монтаж

- Расчет габаритов лестницы. Измерьте расстояние между полами первого второго этажей вместе с перекрытием. Таким образом, вы определите высоту конструкции. Ступенька должна иметь высоту 18–20 см. Далее поделив высоту лестницы на высоту ступенек, вы получите общее число ступеней.
- Проекция размеров на поверхность пола. Чтобы спроектировать конструкцию необходимо определить ширину ступенек (примерно 30 см), после чего их количество надо умножить на их ширину. В итоге вы получите проекционный размер.
- Изготовление элементов лестницы. Чтобы сделать косоур вам потребуется брус размером 14×16, ступени – доски 4 см, подступенники – доски 2,5 см. Вы самостоятельно определите длину ступени, помните при этом, что чем она больше, тем лучше.
- Предварительная примерка. Если в ходе предварительной примерки деталей все подошло, обработайте каждый элемент шлифовальной машиной и соберите конструкцию. Чтобы зафиксировать детали лестницы между собой все места соприкосновения их друг с другом промажьте клеем (ПВА или столярный) и дополнительно закрепите шурупами.
- Морилка и лаковое покрытие. Сначала нанесите на поверхности морилку, а дождавшись ее высыхания, покройте несколькими слоями лака.
Дизайн межэтажной конструкции

В качестве дизайнерского решения можно рассмотреть врезные ступеньки, которые вставляются в вырезанные в косоуре пазы:
- Сделайте разметки на косоуре в местах установки ступенек. Используя ножовку и стамеску, вырежьте пазы.
- В центре паза сделай несколько отверстий размером 9 мм.
- Вкрутите в сделанные отверстия турбомуфты.
- Установите ступеньку в паз и закрутите болтами.
Критерии выбора древесины

При покупке струганной древесины необходимо учесть следующие требования:
- на поверхности не должно быть темных пятен;
- недопустимо наличие трещин, сколов, шероховатостей и иных дефектов.
Сучки (диаметр до 1 см) могут присутствовать лишь при условии того, что из материала будут изготовлены ступени или подступенники. Также обратите внимание на влажность, большая масса доски говорит о том, что от приобретения стоит отказаться.
При изготовлении конструкции без наличия опыта, вы можете столкнуться с определенными трудностями, но ваше желание и стремление поможет достичь желаемого результата.
Из дерева

Теперь предлагаем вам ознакомиться с технологией изготовления лестницы из дерева. В первую очередь необходимо сделать чертежи с отдельными деталями конструкции. Для этого возьмите хорошо просушенную древесину и перенесите на нее соответствующие размеры. При этом следует учесть несколько факторов:
- От правильности выпиливания косоуров, полностью будет зависеть прочность и надежность лестницы. Поэтому к их изготовлению необходимо подойти ответственно. Более того, для косоура необходимо подобрать цельную доску, которая не имеет крупных сучков в большом количестве. Толщина доски может быть 45–50 мм.
- Доска для подступеней может иметь толщину больше на 15–20 мм, чем для них отведено на косоуре, а также учитывается толщина подступенника. Сами проступи должны иметь идеально ровную поверхность с аккуратно закругленными краями. Толщина доски может быть в пределах 30–35 мм.
- Если вы хотите сделать закрытую лестницу с подступенниками, то их изготовление также должно быть предельно аккуратным. Ее толщина не должна быть большой, достаточно 15–20 мм. В этом случае основная нагрузка будет идти на косоуры. Сами же подступенники играют роль поддерживания.
- Что касается балясины и поручней, то их рекомендуется приобрести уже готовыми со стационарными креплениями.
Если у вас дома есть маленькие дети, то на каждую ступеньку, в целях безопасности, установите по 2 балясины. Во всех других случаях можно установить по одной.
Монтажные работы

Когда все заготовки конструкции готовы, можно приступать к самому ответственному этапу работ – монтажу лестницы. Вся последующая работа выглядит так:
- На выбранном месте монтируются косоуры. Для этого на полу закрепляете опорный брус, именно на него и будет крепиться косоур. Вверху крепление осуществляется в вырезанный паз в балке. В некоторых случаях для крепления применяется металлическая опора. В таком случае для крепежа используется анкерный болт. В процессе установки косоура обязательно проверяйте все по уровню или отвесу.
- Прежде чем класть полотно проступей, следует прикрутить подступенники.

- После этого на косоуры и сверху подступенников саморезами фиксируются проступи по направлению снизу-вверх.
- После этого осуществляется установка балясин.

Так, сверху лестницы и внизу монтируете опорные стоки. Они будут служить границей поручней, а также поддерживать перила.
Помимо этого, опорные стойки служат в качестве декоративности. Поэтому нередко их изготавливают с применением резки по дереву.

Балясины, в свою очередь, могут иметь разную форму, размеры и методы крепления. Некоторые, например, просто прикручиваются саморезами, другие монтируются в заранее высверленные отверстия. Но в любом случае место крепления необходимо закрыть декоративной заглушкой. Дальнейшая работа выглядит следующим образом:
- Сверху установленных балясин крепите перила на крайние опорные стойки. Дополнительно можно установить 1 или 2 дополнительные опорные стойки посередине.
- При использовании двух, трех или более опорных стоек, вместо балясин между стойками можно установить несколько досок параллельно наклону лестницы.
- На следующем этапе можно начинать производить шлифовку при помощи наждака или шлифмашинки. После этого наносится лакокрасочное покрытие.

Первый слой выступает в роли антисептика от гниения и появления плесени/грибка. Конструкция должна просохнуть, после чего можно приступать к основной покраске.
Лестница покрывается лаком на водной основе, горячим воском или краской. Также можно покрыть древесину морилкой, что слегка затемнит конструкцию. Все зависит от вашего желания.
Таким образом, деревянная лестница готова к эксплуатации.
Из металла

Лестница, изготовленная из металла, требует больших трудозатрат, плюс ко всему далеко не каждый владеет навыками работы со сварочным аппаратом. И все же если вы готовы выполнить работы такого плана, то вам необходимо подготовить такой набор инструмента:
- Сварочный аппарат и электроды для постоянного тока Ø3,2 и 1,6 мм.
- Защитная маска сварщика.
- Рукавицы.
- Болгарка и отрезные диски 125×1,6 мм.
- Шлифовальный диск 125 мм.
- Дрель и комплект сверл по металлу.
- Металлический стол.
- Струбцина, которую можно регулировать на высоте от 0 до 800 мм.
- Тиски.
- Карандаш.
- Угольник.
- Рулетка.
- Краска по металлу.
- Уайт-спирит.
- Грунтовка.
При наличии всего этого, а также подходящего материала можно приступать к монтажным работам. Что касается подборки материала, то это можно сделать согласно выполненному чертежу. Предлагаем вам ознакомиться с принципом изготовления металлической лестницы на двух косоурах.
Стоит сразу заметить, что весь процесс состоит из следующих поэтапных действий:
- Изготовление заготовок.
- Изготовление кобылок, т.е. узлов крепления ступенек.
- Сварка опорного уголка.
- Установка косоура.
- Приваривание ступенек и перил.
- Шлифовка и грунтовка/покраска.
Пошаговая инструкция

Вся работа должна выполняться не спеша, строго придерживаясь всех размеров чертежа. В противном случае любой небольшой перекос будет проблематично исправить, более того, он испортит внешний вид готовой конструкции. Итак, работы проводятся следующим образом:
- Из уголков необходимо сделать крепления для ступенек (кобылки). По соотношению друг к другу они должны быть зеркальными.
- Сделать кобылки можно из уголка. Для этого вырежьте выборки и состыкуйте уголки между собой. В результате должны получиться Г-образные заготовки с полками вниз и внутрь. В зависимости от количества ступеней изготавливаете парное количество кобылок. Одна из них будет левой, друга правой.
- Между каждой парой уголка привариваете кронштейны для крепления ступени и поперечины. Поперечина аналогично изготавливается из уголка.
- Для увеличения прочности можно установить снизу ступени небольшие косынки по направлению к косоуру.
- Теперь возьмите квадратную профильную трубу и выполните на ней разметку, вернее, на ее ребре. По ней вы сможете приварить кобылки к косоуру. Точно такую же разметку переносите на другой косоур. В результате получится достичь геометрии всей конструкции.
Если металлическая лестница имеет ширину больше 1,2 м, то потребуется установить дополнительный косоур.

Дальше необходимо произвести крепление косоура. Внизу он приваривается к опорной платформе, а вверху закрепляется к плите перекрытия или к стене анкерами. В каждом отдельном случае, метод крепления может отличаться. Поэтому ориентируйтесь от особенностей вашего проема. Во время этого процесса, важно придерживаться уровня. Более того, два косоура должны быть строго на одном уровне. В заключение остается приварить ступеньки к кобылкам. Как вариант можно установить деревянные ступеньки на кобылки. Но для этого необходимо использовать болты крепления.
Самая верхняя ступенька должна быть установлена максимально близко к стене (в том случае если косоуры закреплены анкерами к стене). Далее привариваете ограждение. При этом устанавливайте его сбоку, чтобы не уменьшать ширину ступенек.
При обустройстве перил можно использовать ковку или приобрести заготовленные элементы. Здесь опять же, все зависит от вашего личного вкуса и видения конечного результата.

Когда все сварочные работы завершены, пришло время шлифовки всех сварочных стыков. Также необходимо устранить все заусеницы и зазубрины. Используя металлическую щетку, сметите все частицы. После этого осуществляется грунтовка поверхности лестницы и окраска в нужный цвет.
Если ступеньки будут деревянные, то их установка выполняется после того, как краска высохла.
В завершение можно произвести декорирование лестницы. Например, выполнить обшивку ступеней с нижний стороны деревом. Также можно выполнить ограждения из нержавеющей стали. Ступеньки выложить керамической плиткой. За счет этого, небрежная, казалось бы, и громоздкая конструкция приобретет красивые очертания и будет отличным дополнением интерьера дома.
Хотя может показаться что весь этот процесс не представляет никаких сложностей, работа с металлом очень утомительна. В отличие от работы с деревом, когда исправить дефекты при недочетах легко, с металлом гораздо проблематичней. Однако срок эксплуатации всей конструкции значительно превышает ее аналог из дерева.
Винтовая

Если говорить за привлекательность и яркий элемент интерьера, то конкурентов винтовой лестнице вряд ли можно найти. При правильном сооружении она прослужит долгие годы. Изготавливать ее можно как из дерева, так и из металла с элементами ковки. Можно выделить 4 основных типа винтовых лестниц:
- Конструкция с клинообразными ступеньками, которые узкой стороной опираются на опорную центральную колонну, а широкой стороной на стену или изготовленный каркас. В таком случае сооружаются спиральные тетивы на косоурах.
- Отдельно стоящая конструкция, удаленная от стен с консольно укрепленными ступенями на монолитном столбе, размещенном по центру.
- Конструкция без центрального опорного столба. Опорой для ступенек служат изогнутые тетивы или косоуры, которые плавно переходят в перила. Этот вариант очень красивый и изысканный. Однако в изготовлении очень сложный.
- Конструкция с центральным опорным стержнем (в качестве опоры может выступать асбестоцементная или стальная труба Ø50 мм). Этот тип лестницы наиболее распространенный.
Проектирование и расчет

Как показывает практика, максимально удобные винтовые лестницы с пролетом шириной в 0,8–0,9 м. В результате диаметр всей лестничной конструкции будет доходить до 2 м, это с учетом центральной опорной стойки и перил. Если говорить за форму лестницы, то она может быть круглой, квадратной, прямоугольной или овальной.
Если интенсивность движения в вашем доме небольшая, то общий диаметр лестницы достаточно сделать до 1,5 м. В таком случае проступи будут иметь ширину до 0,6 м.
Также необходимо продумать и эргономичность винтовой лестницы. Принцип размера и высоты ступеней такой же, как и на обычных прямых лестницах, выше мы уже говорили о таких измерениях. Но есть некоторые особенности, а именно комфортная высота подъема для человека. Для примера, предлагаем вам рассмотреть вариант винтовой лестницы, высотой 3 м и шириной марша 0,8 м.

Расчеты представлены ниже:
- Общий диаметр лестницы при таких размерах равен двойной ширине марша, а толщина опорной стойки 20 см. В итоге получаем следующее – D = 0,8 × 2 + 0,20 = 1,8 м.
- Радиус подъема равняется половине ширины марша лестницы и опоры: Rn = 0,4 + 0,1 = 0,5 см.
- Теперь разделив длину траектории передвижения на глубину проступи, можно определить количество ступеней в одном витке: L = 2 π : 200 = 2 × 3,14 × 500 : 200 = 17,2. В результате в одном витке лестничного марша может быть 17 ступенек.
- Также необходимо рассчитать эргономичную высоту ступени. Делать это нужно из того учета, чтобы человек во весь рост мог свободно передвигаться. Возьмем для примера рост в 1,8 м, к этому значению добавляем оперативные 20 и делим на количество ступенек, находящихся в одном витке. В итоге получается так: h = 2000 : 17 = 120 мм.
Если винтовая лестница имеет высоту 3 м, то для определения количества ступеней выполняете следующие действия n = 3000 : 120 = 25. В результате получается 25 ступеней, высотой в 12 см.

Чтобы винтовая лестница было долговечной и удобной в эксплуатации, важно соблюдать следующие правила:
- На винтовой лестнице лучше не устанавливать подступенки. Это увеличит безопасность конструкции, а нога будет хорошо упираться на ступень и не соскальзывать со ступеньки в узком месте.
- Если высота прохода равна 2 м, то даже высокий человек сможет комфортно передвигаться по лестнице.
- Для установки опорной стойки выберите место, которое будет удерживать вес всей конструкции и 2–3 людей.
Изготовление ступенек

Для ступеней лучше всего выбрать прочную породу дерева, например, дуб или бук. Хотя намного проще купить ступеньки готовые. Например, приобретаете ступеньку прямоугольной формы, и вырезаете из нее необходимую конфигурацию. Толщина изделия может быть в 40 мм или 30 мм. Если одну ступеньку разделить по диагонали, то в результате получится сразу две ступеньки. Края заготовки необходимо закруглить и отшлифовать шлифмашинкой. Потом можно покрыть их лаком или покрасить. На ступеньку следует закрепить специальную втулку, которая будет удерживать ее на опорной стойке.
Что касается балясин, то их можно сделать из дерева или металла. Также можно дополнить конструкцию лестницы элементами ковки.
Сборка

В первую очередь на опорную стойку одеваете ступени. После этого стойка монтируется в выбранное вами место и закрепляется к полу и потолку.
Предварительно продумайте метод крепления стойки к полу и потолку.
При монтаже ступеней следите за тем, чтобы они перекрывали друг друга на 50–60 мм. Фиксировать их следует больцами. Широкая сторона ступени фиксируется балясинами, а к ним перила. Следуя такой технологии, вам получиться выполнить работу качественно.
Итак, изготовление винтовой лестницы требует особых навыков в строительстве. Здесь очень важно произвести все расчеты и следовать изготовленному чертежу.
Хотим предложить вам ознакомиться с рядом статей, посвященных изготовлению различных лестниц:
Фото














Схемы

















Видео
Предлагаем вашему вниманию видеофильм, главной героиней которого является деревянная лестница.
www.stroitelstvosovety.ru
Как сделать металлическую лестницу на второй этаж своими руками в частном доме
Некоторые люди не хотят строить одноэтажный дом и строят многоэтажный, а передвигаться по дому без лестниц будет невозможно. Лестницы бывают разных форм и изготовленные из разных материалов. Лестницы, которые находятся между этажами, делают деревянными, металлическими и бетонными.
Металлическая лестница на второй этаж своими руками
В статье мы расскажем о лестнице из металла, которая будет расположена между этажами. Но свойства, которые имеет металл, дают возможность изготовления лестниц любых конструкций и при этом крепких, нетяжеловесных, красивых, даже воздушных лестниц.
Сооружение простой лестницы на другой этаж с одним маршем дело не сложное, при наличии некоторых навыков. А вот лестницу с несколькими маршами, изготовить сложнее, но можно же всему научиться, было бы желание.
Лестницы бывают деревянные, металлические или бетонные .
Проект и расчёты для лестниц находящихся между этажами из любых материалов, ни чем не отличаются.
Для них существуют обычные требования:
- В частном доме самая небольшая ширина лестницы составляет 900 сантиметров.
- Нормальная высота ступенек является 160 — 180 миллиметров.
- Минимально допустимая глубина ступеней составляет 270 миллиметров.
- Перила на лестнице боковой напор должны выдерживать примерно в сто килограмм.
- Расстояние между стойками перил должно составлять 150 миллиметров и, если в семье дети необходимо сделать это расстояние в 120 миллиметров.
- Лестницы изготавливают кованными и сварными.
Лестницы существуют следующих типов:
- На косоурах. На одном косоуре, то есть на двутавре или швеллере. Они играют роль опоры, их размещают посередине конструкции и прикрепляют ступени. Данные лестницы выглядят воздушными, лёгкими, но нагрузку выдерживают с достоинством.
- На тетиве.
- На больцах.
- Винтовые.
Существуют лестницы:
- одномаршевые и двухпролётные;
- прямые и с поворотом.
Если вы не обладаете особыми навыками по возведению лестниц, то начните с простого варианта, то есть с одномаршевой конструкции.
Необходимые расчёты
В организациях, которые занимаются разработкой проектов, используют специальные компьютерные программы, при помощи этих программ проектируют 3D модели конструкций. В 3D модели, очень легко изменить параметры разных деталей.
После утверждения финишного варианта, компьютерная программа подготавливает спецификацию и чертежи лестницы из металла.
Но в нашем случае, расчёты придётся делать без помощи компьютерной программы. Мы рассмотрим простой вариант прямой одномаршевой конструкции.
Основные требования к глубине и высоте ступеней уже известны. Необходимо сделать замеры между точками, то есть от начала до конца лестницы от пола первого этажа и высоту между полом первого и второго этажей. Теперь определяем длину лестницы, нужно помнить, что средний угол наклона является от тридцати до сорока пяти градусов.
Чтобы посчитать длину лестницы необходимо вспомнить геометрию, то есть про прямоугольный треугольник. Ведь в прямоугольном треугольнике квадрат гипотенузы равен сумме двух квадратов катетов.
Производим расчёт имеющихся параметров и извлекаем квадратный корень и получаем длину лестницы.
Дальше необходимо рассчитать подходящее количество ступеней.
Необходимые для работы материалы, инструменты
Для сооружения межэтажной металлической лестницы нам чтобы возвести межэтажную металлическую лестницу понадобятся следующие инструменты и материалы.
Инструменты:
- сварочный аппарат;
- лестница;
- болгарка;
- маска для сварки, рукавицы и специальные очки;
- дрель со свёрлами по металлу;
- шлифовальные диски;
- устойчивый стол из металла;
- тиски;
- струбцина;
- карандаш;
- рулетка и угольник;
Материалы:
- Грунтовка;
- Уайт — спирит;
- Краска по металлу
- Так же для двух косоуров используют квадратную трубу из профиля.
- Для того чтобы сварить опоры ступеней необходимы уголки, усиленные арматурой.
- Сами ступени и подступенки делают из четырёхмиллиметровой стали и отделывают деревом.
Проведение работ
Этапы работ:
- Резка заготовок;
- Изготовление кобылок, то есть узлов для присоединения ступеней;
- Сваривание опорных уголков;
- Монтаж косоуров;
- Приваривание ступеней и перил;
- Шлифовка;
- Грунтовка и покраска;
Первым делом из уголков изготавливают углы для крепления ступеней, то есть кобылки.
Нельзя допустить ошибку, чтобы не было различных перекосов и изъянов, которые испортят лестницу.
Так же кобылки должны быть одинаковыми и должны находиться точно друг напротив друга. Кобылки изготавливают из уголка, путём вырезания выборки и состыковки уголков между собой.
В итоге получаются Г- образные узлы полками вниз и внутрь. Для нашей конструкции необходимо четырнадцать пар этих узлов и в каждой из пар одна опора будет левой, а вторая правой. Затем кронштейны привариваем чтобы соединить ступени и горизонтальную перекладину между каждой из пар уголков.
Горизонтальную перекладину изготавливаем тоже из уголка. Усиливают конструкцию при помощи косынок, их привариваем снизу ступени по направлению к каждому из косоуров.
По ребру квадратной трубы из профиля производим разметку и по разметке привариваем кобылки к ребру косоура, второй косоур приставляют к первому косоуру с кобылками и переносим разметку.
Делаем проверку по уровню и затем привариваем косоуры нижним концом к платформе опоры. Если в домах бетонный фундамент, то опорная платформа устанавливается в бетоне. К опорной стойке крепим верхний конец, опорная стойка закреплена к перекрытию между этажами анкерами из стали. Затем ещё раз кобылки необходимо проверить по уровню.
В том случае, если лестница сделана возле стены, то для придания конструкции, жесткости один косоур приваривают к кронштейнам, которые закреплены на стене.
Финишные работы заключаются в приваривании ступеней к кобылкам, так же можно закрепить их болтами, но в этом случае необходимо ступени обшить деревом. Так же ступени можно установить деревянные, на кобылки при помощи винтовых соединений.
Советы по монтажу
Вроде возведение конструкции межэтажной лестницы не такое уж сложное занятие, но эта работа требует точности, аккуратности и внимательности.
- Верхнюю ступень монтируют на небольшом расстоянии от стены, очень важно чтобы между стеной и ступенью был зазор, такой чтобы проходил лист обоев.
- Перила всегда приваривают сбоку лестницы, так чтобы не изменить ее ширину.
- Все детали в местах сварки шлифуют, то есть все швы, зазубрины и заусенцы, затем металлической щёткой сметают металлические частицы. После этого лестницу из металла грунтуют и окрашивают.
- Ступени из дерева монтируют после того как краска окончательно высохнет.
- Качественные сварочные работы — это гарант к долгому сроку эксплуатации лестницы. А антикоррозийное покрытие надолго защитит металл от порчи.
- Со временем металлическую лестницу можно будет, отделать разными материалами и за счёт отделки она не будет смотреться громоздкой.
- Если вы вдруг не уверены в своих силах, или не умеете производить какие то работы, то лучше всего воспользоваться услугами профессиональных рабочих.
- Главным фактором выбора лестницы из металла является экономия средств.
- Лестница в первую очередь должна быть удобной, не сильно крутой и не сильно пологой.
В статье мы рассказали, как сделать металлическую лестницу на второй этаж.
Конечно, из какого материала делать лестницу решать только вам и никому больше, но лестница из металла получается визуально лёгкой, поэтому мы рекомендуем именно эту конструкцию.
Надеемся, что данная информация была вам полезной. Желаем вам удачи, терпения и вдохновения!
Источник
remontidekor.ru













