Содержание
плюсы и минусы, особенности строительства
Содержание
- О пользе банных процедур
- Баня своими руками из блоков – особенности материала
- Особенности блочного стройматериала
- Достоинства блоков
- Слабые стороны блоков
- Разновидности материала для блочной бани
- Собираемся построить баню из блоков своими руками – технология работ
- Подготовительные работы
- Постройка фундамента
- Как построить из блоков баню – строительство стен
- Монтаж кровли и напольного покрытия
- Чистовая отделка блочной бани
- Подводим итоги
- Похожие статьи:
Владельцы дач и загородных домов не представляют отдых без банных процедур. Завершив возведение дома, хозяева приступают к оборудованию баньки. Баня традиционно строилась в виде сруба, однако повышенная цена на древесину заставляет искать альтернативные варианты. Используйте проверенное решение – баня из блоков! Ее несложно построить самостоятельно из недорогого, безвредного, легкого и простого в кладке материала.
Рассмотрим свойства, характеристики блочных изделий, технологию постройки из них.
Как построить баню из пеноблоков своими руками
О пользе банных процедур
Посещение бани – традиция, которой придерживается большинство людей. Оптимальное сочетание влаги и температуры, которое достигается только в правильно построенной и оборудованной бане, оказывает благотворное влияние на сердечно-сосудистую, дыхательную, нервную систему, а также опорно-двигательный аппарат. Доказано, что после водных процедур омолаживается кожа, приходит состояние бодрости, свежести, силы. Применение безопасных стройматериалов для постройки бани и правильное выполнение строительных работ обеспечит положительное воздействие на здоровье.
Баня своими руками из блоков – особенности материала
Стандартная планировка бани предусматривает предбанник, парную и моечную. Строение возводится на капитальном фундаменте, надежно теплоизолируется.
Для возведения стен используют различные стройматериалы:
- каркасные панели.
При внешней привлекательности, утепленные сэндвич панели плохо пропускают пар. В помещении концентрируется конденсат, вызывающий ускоренное гниение; - деревянный брус или бревна. Это традиционный материал, который обеспечивает комфортные условия. Однако он дорогой и подвержен разрушению при повышенной влажности;
- кирпич. Отличается прочностью и долговечностью. Расходы на постройку кирпичной бани довольно высокие, так как кирпичные стены нуждаются в массивном фундаменте;
- бетонные блоки. Имеют ячеистую структуру. Отличаются небольшой массой, увеличенным объемом, паропроницаемостью, повышенными теплоизолирующими характеристиками, а также доступной ценой.
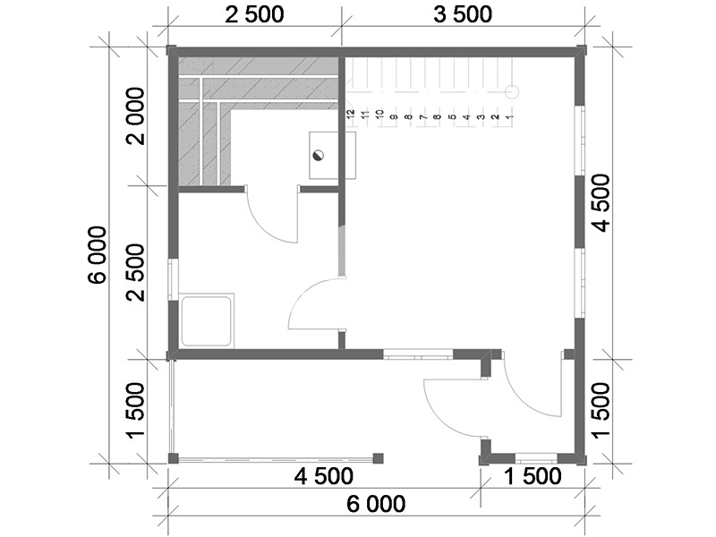
Чертеж бани из блоков
Рассмотрим строительство бани из блоков более детально.
Особенности блочного стройматериала
[adsense1]
Главная особенность материала – равномерно распределенные внутри бетонного массива воздушные ячейки.
Пористая структура влияет на характеристики:
- гигроскопичность.
Незащищенный материал, активно поглощая влагу, нуждается в эффективной внешней и внутренней гидроизоляции. При замерзании влага кристаллизуется, увеличивая объем. Это может вызвать появление трещин; - паропроницаемость. Благодаря повышенной концентрации воздушных ячеек и равномерному распределению их в массиве, стройматериал способен пропускать лишний пар, поддерживая комфортный уровень влажности в банном помещении;
- теплопроводность. Блочный материал обладает повышенными теплосберегающими характеристиками. При качественно выполненной теплоизоляции он поддерживает комфортную температуру;
- звукоизоляцию. Благодаря многочисленным воздушным порам, занимающим более половины объема изделия, блочный стройматериал препятствует проникновению внешнего шума внутрь помещения.
Остановимся подробно на преимуществах блочной бани.
Достоинства блоков
[adsense2]
Пенополистиролбетон блоки для бан
Построенная из пористого стройматериала, блочная баня имеет свои плюсы:
- не подвержена усадке в отличие от бревенчатых строений;
- может эксплуатироваться сразу после завершения строительных мероприятий;
- быстро строится, благодаря увеличенному размеру изделий;
- не требует мощного фундамента из-за небольшого веса стройматериала;
- может возводиться своими силами без посторонней помощи;
- требует небольших финансовых затрат по сравнению с брусом и кирпичом.

Поддержанию благоприятных условий также способствует:
- бактериологическая чистота. Состав и структура материала не позволяют развиваться бактериям, микроорганизмам и плесени;
- экологичность. Бетонные блоки не оказывают отрицательного влияния на здоровье окружающих, так как в стройматериале отсутствуют вредные примеси.
Блочный материал отличается:
- повышенными теплоизоляционными характеристиками;
- устойчивостью к влиянию отрицательной температуры;
- стойкостью к воздействию нагрева;
- длительным сроком эксплуатации;
- повышенным запасом прочности;
- хорошей обрабатываемостью.
Строительные блоки для бани
Увеличенные габариты блочного материала и небольшой вес позволяют выполнять работы без привлечения наемных рабочих. Благодаря перечисленным достоинствам, многие принимают решение построить баню из блоков своими руками.
Слабые стороны блоков
[adsense3]
Ячеистый материал имеет ряд недостатков:
- нуждается в надежной гидроизоляционной защите, препятствующей проникновению влаги в массив;
- отличается пониженной экологической чистотой в сравнении с натуральной древесиной.

Несмотря на слабые стороны блочного стройматериала, ему отдают предпочтение при недостатке средств и отсутствии возможности пользоваться услугами профессиональных строителей.
Разновидности материала для блочной бани
Построить баню из блоков своими руками можно, используя различные виды стройматериала:
Виды строительных блоков блоков
Принимая решение о выборе блоков для постройки бани, изучите их характеристики, проанализируйте эксплуатационные свойства. Ориентируясь на коэффициент теплопроводности, можно отдать предпочтение газобетону.
Собираемся построить баню из блоков своими руками – технология работ
[adsense4]
Процесс постройки предусматривает выполнение следующих работ:
- Подготовительных мероприятий.
- Возведение фундамента.
- Строительство коробки.
- Сооружение кровли.
- Осуществление облицовочных работ.

Рассмотрим детально особенности каждого этапа.
Подготовительные работы
Готовясь к предстоящему строительству и определившись с выбором стройматериалов, необходимо выполнить следующие мероприятия:
- Выбрать на участке удобное место для строительства.
- Определиться с размерами строения, а также разработать проект.
Проект бани из строительных блоков
- Согласовать проектную документацию в необходимых инстанциях.
- Рассчитать потребность в стройматериалах.
- Подготовить необходимые инструменты.
На подготовительной стадии важно продумать варианты отделки и определиться с типом фундамента.
Постройка фундамента
[adsense5]
Для легких газоблоков подойдет мелкозаглубленная ленточная основа.
При ее сооружении соблюдайте указанную последовательность действий:
- Подготовьте площадку.
- Произведите разметку.
- Выкопайте траншею на глубину 0,6 м.

- Смонтируйте опалубку.
- Засыпьте в приямок песчано-щебеночную подушку.
- Уплотните подсыпку, поливая водой.
- Установите в приямок арматурный каркас.
- Подготовьте бетонную смесь.
- Забетонируйте фундамент в один прием.
Не подвергайте фундамент нагрузкам до окончательного застывания бетона. Через 4 недели демонтируйте опалубку и гидроизолируйте поверхность основы.
Ленточный фундамент для бани из газосиликатных блоков
Как построить из блоков баню – строительство стен
[adsense6]
Постройка коробки – ответственная операция, с которой можно справиться самостоятельно:
- Проверьте горизонтальности основы.
- Уложите угловые блоки.
- Натяните шнур, выложите на цементный раствор первый ряд.
- Сделайте штроборезом канавку для арматуры.
- Удалите мусор, уложите стальные прутки.
- Подготовьте клеевой состав и нанесите на поверхность.
- Уложите следующий уровень кладки.

Осуществляйте укладку, производя армирование с промежутком в 4 ряда. Установите мауэрлат для крепления кровельной конструкции.
Монтаж кровли и напольного покрытия
[adsense6]
Последовательность действий по монтажу крыши:
- Уложите опорные балки.
- Закрепите стропильные брусья.
- Зафиксируйте обрешетку.
Крыша бани своими руками: поэтапное строительство
- Постелите пароизоляционное покрытие.
- Уложите утеплитель.
- Произведите монтаж кровельного покрытия.
Процесс обустройства пола:
- Спланируйте грунт внутри фундамента.
- Засыпьте подушку из песка, уплотните ее.
- Постелите гидроизоляционную прослойку.
- Насыпьте керамзит и залейте стяжку.
При выполнении стяжки обеспечьте уклон для стока воды.
Чистовая отделка блочной бани
[adsense7]
Работа по отделке банного помещения предусматривает:
- качественную внутреннюю облицовку;
- наружную отделку.

Отделочные мероприятия внутри помещения требуют крепления обрешетки, установки теплоизоляционного материала, а также защиты с помощью пароизоляционной мембраны.
Чистовая отделка бани из керамзитобетонных блоков
Возможны различные варианты внутренней отделки, которая крепится к утепленному и пароизолированному каркасу:
- деревянная вагонка. Она насытит помещение неповторимым ароматом во время банных процедур;
- соляные блоки. Это оригинальный вариант отделки, оказывающий благотворное влияние на органы дыхания.
Наружные отделочные мероприятия включают:
[adsense7]
- Установку внешней гидроизоляции.
- Крепление теплоизоляционных вентилируемых панелей.
- Монтаж финишной отделки.
Выбор отделочного материала производите индивидуально, с учетом финансовых возможностей и личных предпочтений.
youtube.com/embed/t2IqkfmFS2U?feature=oembed» frameborder=»0″ allow=»accelerometer; autoplay; clipboard-write; encrypted-media; gyroscope; picture-in-picture» allowfullscreen=»»>
Подводим итоги
Имея представление, как построить из блоков баню, окончательно определитесь с выбором материала, детально ознакомьтесь с технологией. Важно ответственно подойти к разработке проекта и своевременно приобрести стройматериалы в необходимом количестве. Нужно терпение, базовые навыки выполнения строительных работ, и самостоятельно построенное помещение неоднократно порадует во время отдыха.
Как вам статья?
Баня из газобетона своими руками. Как правильно построить баню.
Несмотря на то что сегодня баня из газобетона популярная постройка, у некоторых возникают спорные вопросы о ее качестве и надежности. Один из главных вопросов – почему брус и бревна сменили на блоки? Чем они лучше? Основные причины — удорожание древесины, сложность обработки, трудоемкость, недолговечность.
Решающими аргументами в пользу газоблока стали ценовая доступность, легкость монтажа, высокая скорость возведения.
Историческая заметка: В Древнем Риме одним из популярных строительных материалов был бетон. Из него зачастую возводили термы. Большинства из которых можно увидеть и в наши дни. Современный газобетонный блок максимально схож с бетоном того времени. Единственное отличие – в нем присутствуют добавки, улучшающие свойства материала. На вопрос «строят ли бани из газобетона»? Ответ очевиден, конечно же да.
Можно ли построить баню из газобетона
Построить баню из газобетона – отличное решение для тех, кто хочет сэкономить бюджет и время. Технический прогресс не стоит на месте, а вот документация к некоторым видам стенового блока требует пересмотра. Согласно ГОСТу, ячеистый бетон нельзя применять для строительства зданий с повышенной влажностью – например, бань, бассейнов, бойлерных.
Но, зная об отличных физических качествах газоблока, которые во многом схожи с показателями дерева, большинства специалистов этот пункт в ГОСТе опровергают.
В чем дело тогда? Почему использование древесины для помещений с повышенной влажностью не запрещают? Коэффициент ее водопоглощения на порядок выше чем у газоблоков. Так же она еще и не безопасна, поскольку поддерживает горение. Ее любят грызуны, на ней прекрасно растет и размножается плесень, бактерии, грибы. При намокании серьезно нарушается геометрия и т.д. Единственный плюс древесины перед газоблоком – эстетика, а также приятный запах.
Важно еще на начальном этапе строительства продумать качественную гидро- и пароизоляцию. И проблема с переувлажнением решена. При утеплении бани из газобетона важно следовать принципу: увеличение паропроницаемости материалов стены при рассмотрении ее изнутри наружу.
Как правильно построить баню из газобетонных блоков своими руками
До начала строительных работ bani составляется проект будущей постройки, согласовывается смета.
Строительство бани из газобетона своими руками – рассмотрим в виде таблицы допустимые и нежелательные места для возведения.
|
|
|
|
|
|
|
|
|
|
|
|
|
|
|
|
|
|
|
|
|
Далее рассмотрим, что из себя представляет баня из газобетона плюсы и минусы данного строительного материала.
Плюсы и минусы постройки бани из газобетона
Строительство бани из газобетона своими руками под силу каждому. Главное изучить все нюансы газоблока. Он хорошо удерживает тепло, обладает отличными эксплуатационными свойствами. Вanya прогревается значительно быстрее, по сравнению с той же кирпичной. Стоимость бани из газобетона заметно ниже цен на бревна, тот же брус стоит — в 2 раза дороже, кирпич – в 1,5 раза. Процент усадки здания минимальный. Данное преимущество особенно ценится при проведении внутренних отделочных работ. Газобетонные блоки являются не горючим материалом, отлично противостоят биологическому поражению.
Работать с ним легко и просто. Блоки имеют малый вес, поэтому к фундаменту не предъявляются жесткие требования. Строительство конструкции осуществляется в рекордно короткие сроки.
Основной, и, пожалуй, единственный недостаток — это гигроскопичность, то есть способность материала поглощать влагу. Данный минус обязательно следует брать во внимание и недопускать в будущем. Оптимальным вариантом для внутренней отделки бани служит вагонка, наружной – облицовочный кирпич. Недостатки можно найти абсолютно у любого строительного материала. В случае же с газобетонными блоками, их эксплуатационные и технические показатели полноценно перекрываются достоинствами. Все чаще можно встретить положительный отзыв о бане именно из газоблока, чем из древесины.
Этапы работ, от а до я
Посчитать проект вы можете самостоятельно у нас сайте в разделе: Калькулятор газобетонных блоков онлайн
-
Рассчитаем проект
Возведение любого здания должно всегда начинаться с грамотно составленного проекта.
Именно в нем отображаются данные о площадях, количестве комнат, высоте стен, материалах, их количестве и т.д. Если отсутствует проект, то как минимум должны быть эскизы с данными о будущем строении. Кроме этого:
- Важно продумать ввод и разводку электричества, воды, канализационной системы. Это позволит составить более точную смету на предстоящие расходы.
- Для выбора нужного типа фундамента и какая толщина стен бани из газобетона будет наиболее оптимальной можно воспользоваться готовыми проектными решениями на строительных сайтах. Даже если там вместо бани будут расчеты на гостевой домик с мансардой, эти данные можно будет взять за основу для расчетов.
- Толщина газобетона для бани, а именно, самих стен составляет 300-400 мм для жителей средней полосы РФ
- Предпочтение чаще всего отдается фундаменту из монолитной плиты. Это считается самый простой и менее трудозатратный вариант.
Популярный вариант бани – это постройка размером 3*4 м, с 3 комнатами (предбанник, моечная и парная) и двумя окнами.
Как рассчитать количество газоблоков на баню
А теперь приступим непосредственно к самим расчетам. После того как вы выбрали толщину стен, перегородок переходим к подсчету необходимого количества блоков. Рассмотрим пример: для внешних стен возьмем блок размерами 600*300*200 мм, а для внутренних стен 600*75*200 мм. Размеры блоков одинаковые, разница лишь в ширине, поэтому расчеты проводим отдельно.
- Возьмем размер бани 3*5 м. Получим периметр стен = 16 п.м. Высота стен – 2,5 м. Отсюда высчитаем площадь = 40 м2.
- Далее вычитаем площади проемов (у нас два окна и дверь). Размер окон 100*50 см и 50*50 см, дверей – 200*90 см. Рассчитываем площадь, суммируем и получаем итоговый результат – 2,55 м2, который далее вычитаем из общей квадратуры. Итого= 40м2-2,55м2=37,45м2
- Для нашего региона толщина стены составляет 30 см. Умножаем 37,45м2*0,3=11,235м3. Добавляем в смету 5% запаса материала. Итого= 11,835 м3 стенового материала.
- Теперь рассчитываем количество блоков для внутренних стен.
Алгоритм аналогичный, единственное в 3 пункте вместо 0,3 подставляем 0,075м.
В зависимости от выбранного решения по исполнению армопояса у вас есть два варианта: купить готовые U-блоки или же обычные.
Газоблоки: размеры и характеристики
Под размерами понимается высота и длина самих блоков. Эти данные стандартные 625*250, а вот ширина может отличаться и варьироваться от 100 до 600 мм. Чем шире стена и выше марка газобетона, тем можно выше построить дом, а также использовать монолитные бетонные перекрытия. Чем тоньше стена, тем она менее стабильная.
Плотность
Маркируется буквой и цифрой, например, D300. Чем выше плотность, тем выше показатели прочности и теплопроводности материала. Для строительства бани подойдут блоки с показателями плотности и прочности D400 и В2,5 соответственно.
Теплопроводность
Это свойство материала отдавать тепловую энергию.
Достоинство — низкий показатель теплопроводности. В среднем составляет 0,14 Вт/м*С. Сопротивление теплопередачи d500. Чем выше данный показатель, тем лучше слои газоблока сопротивляются отдаче тепла. Например, при толщине стены в 300 мм эта цифра составляет 2,67 м²*С/Вт, когда у кирпичной стены этот параметр находится всего лишь на уровне в 1,09 м²*С/Вт.
Теплоемкость
Этот параметр показывает насколько быстро возможно протопить баню. Поскольку мы рассматриваем какая баня из газобетона или дерева лучше, то сравним эти два показателя. Теплоемкость газоблока 0,84 кДж/кг*С, древесины — 2,4 кДж/кг*С. Отсюда следует, что баня из дерева прогревается заметно дольше. Сперва нагреваются стены, и только потом воздух в помещении.
Какой толщины нужны блоки для постройки бани
Рассмотрев характеристики, вернемся к вопросу как сделать баню из газобетона, а именно, какую толщину стен выбрать.
Поскольку баня не предназначена для круглогодичного проживания, и отапливается она лишь периодически, точных расчетов в данном случае не требуется. Ориентиром служит регион проживания. Например, для южной полосы достаточно толщины стены в 30 см. Либо можно сделать меньше, 20 см при условии, что теплоэффективность будет сохранена за счет увеличение толщины утеплителя. Нужно ли утеплять баню из газобетона? Ответ, да, независимо от региона проживания. Это необходимо для более быстрой и качественно протопки.
На заметку! Можно проводить облицовочные работы без утепления, но с соблюдением вентзазора. Если в качестве наружной отделки выбирается кирпич, то необходимо организовать продухи.
Для умеренного климата толщина стен из газобетона составляет 37,5-40 см, а для регионов с суровым климатом 50 см. Теплоизоляция наружных стен –обязательно. Альтернативой стандартным утеплителям может выступать сам газоблок. Как утеплить баню из газобетона в этом случае? Выбирается блок с более низкими показателями плотности.
Такой вариант утепления считается самым долговечным.
Фундамент для бани из газобетона
Поскольку газоблок имеет малый вес, то рекомендуется устанавливать ленточный вариант фундамента. Немаловажным определяющим критерием является тип почвы. Где она нестабильная, отдают предпочтение ленточному фундаменту на сваях. Какой именно фундамент для бани из газобетона подойдет для вашего участка сможет определить только специалист.
Вентиляция в бане из газобетона
Как правило, плотные холодные воздушные массы стремятся вниз (они достаточно тяжелые), теплые же вытесняются ими и стремятся вверх. Таким образом осуществляется движение воздуха в здании где имеется обогревательная установка. Если нет притока свежего воздуха, то обновление его не происходит. Воздушные массы попросту перемещаются по кругу. Наиболее простой вариант — это естественная вентиляция в бане из газобетона. Это когда делаются отверстия в нижней и верхней части стены. Через низ – поступает свежий воздух, через вверх — отводится.
Такого типа вентиляции, для бани небольших размеров, вполне достаточно. Главное правильно выбрать места для проделывания отверстий.
Технология и особенности кладки стен
Первым делом проводят внешнюю разметку и устанавливают ограничительную веревку. Не допускаются отклонения по высоте фундамента свыше 4 см. Возведение стен начинают с формирования углов. Укладка блоков проводится на специальный клей при помощи кильмы. Первый ряд укладывается на бетонный состав, а сами блоки между собой садят на клеевой раствор. После укладки 1-го ряда необходимо выждать 5 часов для того чтобы бетонный состав набрал силу и блоки стали неподвижны.
Кладка последующих рядов осуществляется на клеевой состав с оптимальным процентом смещения блока в 50%. Также, как и первый ряд кладка начинается с угла. Для выравнивания поверхности используют шлифовальную доску.
Гидроизоляция основания под кладку стен
Как только основание высохло проводится осмотр при помощи уровня.
Все недочеты ликвидируются кладочным составом. Гидроизоляция газобетона в бане очень важный этап. Потребуется битумная мастика и рубероид. Допускается нахлест рулонного материала до 15 см.
На заметку! Ранее фундамент и кладку разделяли керамическим кирпичом. По истечении времени выяснилось, что кирпич не создает защитную «оболочку» от растрескивания стен, а также не придает постройке прочности. Вывод: этот этап является не обязательным.
Перегородки
Какая должна быть перегородка в бане из газобетона, точнее ее толщина? Для возведения перегородок до 3 м в высоту рекомендуется выбирать блоки маркой не ниже D 400. Наиболее оптимальный вариант D 500-D 600. Чем выше марка, тем лучше несущая способность. Толщину внутренних стен выбирают исходя из: несущая она или нет. Если перегородка несущая, то по уму необходимо провести расчеты. Если же стена не несущая, то применяют другой показатель – высоту. При возведении перегородки высотой до 3 м достаточно использовать блоки шириной 10 см, свыше 3 м и до 5 м – ширина блока составит 20 см.
Потолок в бане из газобетона
Потолок в бане из газобетона может быть выполнен в нескольких вариантах. Все зависит от целевого назначения. Если чердак бани будет использоваться в качестве мансарды, хоз. помещения и т.д., то конструкция потолка должна выдерживать серьезные нагрузки. Проще говоря, отличаться высокой надежностью. Даже если чердачное помещение не планируется под дальнейшую эксплуатацию, конструкция потолка должна выдерживать свой вес и слой теплоизоляции. Чтобы не отапливать улицу, следует выбирать качественную теплоизоляцию, которая не боится влаги, высоких температур. Например, использование определенных пород деревьев совместно со специальными средствами для продления жизни древесины.
Крыша бани из газобетона
Зачастую крыша бани из газобетона – это двускатная. Наиболее популярный отделочный материал – металлочерепица. При расчете материала учитываются тип кровли, длина основания и ширина, длина свесов, а также высота крыши.
Высоту и угол наклона скатов образуют фронтоны, выложенные из газоблока. Но зачастую торец крыши бани закрывают доской. Утепление выполняется по перекрытию. Поверх стропил устанавливают мембрану. Стропильная система зависит от типа кровли и непосредственно самого кровельного материала.
Баня из газобетона или дерева
Если рассматривать из чего лучше строить баню дерево или газобетон, то преимуществ заметно больше именно у второго варианта материала, а именно газоблока. Это связано с тем, что дерево необходимо периодически обрабатывать специальными антисептическими средствами для защиты от плесени, грибков, грызунов. Также требуется обязательная герметизация стыков между бревнами/брусом. Данное мероприятие причем необходимо повторить несколько раз. А конопатить стыки – то еще развлечение. Еще один весомый аргумент почему стоит строить баню из газоблока, а не из дерева – деревянная баня это всегда повышенный источник пожароопасности.
Что лучше для бани газобетон или пенобетон
Что же все-таки лучше выбрать для постройки бани? Вес, коэффициенты твердости и удельной прочности у этих двух материалов примерно равны.
А вот что касается эксплуатационных показателей, то здесь имеются заметные отличие (см. таблицу ниже).
Как мы видим на вопрос «что лучше для бани газобетон или пенобетон»? – однозначно первый вариант. Что касается удобства в строительстве, геометрии материала, то газоблок изготавливается на заводе, а вот пеноблок в полукустарных условиях, поэтому геометрические параметры пеноблока могут заметно страдать.
Баня из пеноблока спустя 10 лет
Согласно многочисленным отзывам, можно встретить такие, где владельцы отмечают недостатки, с которыми столкнулись лично. Спустя некоторое время наблюдалось расслоение и растрескивание пеноблока. Это связано со скачками температур. Второй популярный негативный отзыв – образование плесени. Вероятнее всего причинами возникновения данных недостатков служит не соблюдение технологии строительства бани из пеноблока, неправильно выбранное время года для возведения конструкции, не продуманная система вентиляции и т.д.
Цена бани из газобетона
Во сколько обойдется баня из газобетона зависит от многих факторов, например, площадь, количество комнат, кровельный материал, вид отделки и т.
д. Будете ли составлять проект самостоятельно или строить по типовому решению.
Где купить продукцию Bonolit — Дилеры и партнеры Bonolit Club
Если же стоит выбор строить баню из дерева или газоблока, то выгоднее, проще и быстрее — это возвести конструкцию из газобетонных блоков.
Начало эксплуатации после постройки
Построил баню и можно париться – к сожалению, это не относится к постройкам, выполненным из дерева. Это связано с тем, что дереву нужно время чтобы выстоится, просохнуть и дать нужную усадку. Если пройти «мимо» данного этапа, то высока вероятность появления щелей. И, как следствие, разрушение отделки со всех сторон.
К примеру: радиальная усадка сосны – 6%. Это говорит о том, что сруб бани высотой 2,5 метра усядет порядка на 13-15 см. А если будет сделана еще и отделка, то готовьтесь заниматься герметизацией зазоров.
На заметку! Абсолютно любая порода деревьев способна усыхать.
По сравнению с древесиной газоблок имеет минимальный коэффициент усадки и составляет порядка 0,4%.
Таким образом приступать к отделочным работам можно практически сразу. А это значит, что как только будут завершены финишные работы, можно запускать баню в непосредственную эксплуатацию.
Вывод по статье
Можно ли построить баню из газобетона? Для возведения бани из газоблока требуется заметно меньше трат, по сравнению с тем же брусом или бревном. Баня прогревается гораздо быстрее и отлично сохраняет тепло. Постройку можно быстро возвести и эксплуатировать в ближайшее время. Отсутствие плесени, грибка, грызунов – гарантировано. Самое главное, баня из газоблока пожаробезопасна. Пожалуй, этих аргументов предостаточно, чтобы попрощаться с издавна сложенным стереотипом, что баня может быть возведена исключительно из древесины.
Развлекайтесь во время купания с банными блоками #Обзор #Giveaway
Отказ от ответственности: Продукты, указанные в этом посте, были предоставлены мне для обзора.
Мне не заплатили за написание этого отзыва.
Все мнения мои.
Нет ничего, что я люблю больше, чем принимать ванну. Кто не любит принимать ванну? Ну, на самом деле моим братьям это не очень нравится, маме обычно приходится говорить им, чтобы они взяли один. Я, с другой стороны, я просто люблю принимать ванны! Я люблю плескаться в воде с пузырьками. Там всегда должны быть игрушки для купания. Принимать ванну без игрушек, мягко говоря, очень скучно. Когда компания Just Think Toys решила прислать мне свои наборы для ванн из 20 плавающих замков, мне не терпелось попробовать их. Есть также крутые наборы для мальчиков, так что мальчики тоже могут строить прямо в ванне. Взгляните на их набор береговой охраны из 20 предметов!
Набор плавучих замков BathBlocks позволяет детям строить плавучие замки, башни и многое другое прямо в ванне. Принц, Принцесса, Рыцарь, Дракон, Пес и Парящий Трон добавляют творческую игру в каждую ванну.
BathBlocks переносят классическую игру с кубиками в забавную, новую, увлекательную водную среду.
Ванна — идеальное место для создания водных горок, бега с мячом, плавучих городов и многого другого. «Липкая» вязкость воды создает полезное сцепление между блоками, а движение, плавучесть и поток воды добавляют увлекательную изюминку в классическую игру с блоками.
BathBlocks позволяют детям создавать свое видение, экспериментируя с геометрией, сложением, вычитанием, умножением, делением, балансом, структурой и причинно-следственной связью.
$19,99 — рекомендуемый возраст 3–99 лет из-за наличия мелких деталей
Мои банные блоки пришли в многоразовом пакете, так что, когда время купания закончится, я смогу положить их обратно туда. Дно сумки сетчатое, так что они могут отлично высохнуть. Мне не нужно было хранить их в сумке, так как у меня есть ящик для хранения только моих игрушек для ванной, прикрепленный к моему душу. Просто знать, что есть еще один вариант, — это здорово, так как было несколько более мелких кусочков, а всего их было 20.
Вы же не хотите их потерять, иначе как бы вы смогли построить этот удивительный замок?
Они изготовлены из устойчивого к бактериям и плесени EVA и не содержат ПВХ или фталатов. На самом деле мне нравилось жевать их больше, чем пытаться построить свой замок в ванне. Было приятно знать, что они не причинят мне вреда. Цвета также очень яркие и выделялись среди пены в моей ванне. Пена на самом деле помогает им лучше прилипать к ванне. Принцесса, Принц, Рыцарь и маленькая собачка действительно были для меня. Мне нравилось играть со своим песиком и пытаться уговорить его остаться в плавучем замке.
Теперь конструкторы — это увлекательная игра для малышей и даже более взрослых детей. Это помогает нашему воображению, и мы все знаем, что лучший вид игры — это игра с открытым концом. Bath Blocks сочетает в себе все это и многое другое в вашей ванне. Дайте волю своему воображению и дайте волю своим творческим сокам. Банные блоки также можно использовать вне ванны, поэтому вам не нужно ограничивать себя ванной.
Я получаю столько удовольствия от своих банных блоков, что теперь купание стало намного веселее! Банные блоки были правы, говоря, что «иногда самые обучающие игрушки — это самые простые игрушки — игрушки с множеством неограниченных возможностей, которые побуждают молодые умы думать, творить и исследовать». My Bath Blocks получает два крошечных больших пальца вверх!
Вы можете связаться с создателями банных блоков Just Think Toys через их веб-сайт.
Компания Just Think Toys решила подарить одному из читателей Growing Up Madison собственный набор банных блоков. Теперь вы можете развлекаться во время купания так же, как и я. Победитель будет выбран случайным образом компанией PunchTab, и у него будет 48 часов, чтобы ответить на отправленное электронное письмо. Если вы не ответите на электронное письмо, ваш приз будет аннулирован, и будет выбран новый победитель. Удачи!
Раскрытие информации: Growing Up Madison получает продукты для проведения обзоров.
Никакая денежная компенсация не была предоставлена, если не указано иное. Все мнения на 100% мои собственные. Некоторые сообщения могут содержать партнерские ссылки, по которым я получаю комиссию за оплату в обмен на рефералов. В случае розыгрыша спонсор несет ответственность за доставку приза, если иное не указано в объявлении. Тем не менее, я рекомендую только те продукты или услуги, которые, по моему личному мнению, подойдут моим читателям. Я раскрываю это в соответствии с 16 CFR Федеральной торговой комиссии, часть 255: «Руководства по использованию одобрений и отзывов в рекламе».
Плюсы и минусы ванны из натурального камня|Как выбрать каменную ванну
Ни один другой материал не может предложить вам такую роскошь, как ванна из натурального камня. Этот универсальный материал придает неповторимый шарм и служит фокусом любой современной, современной или традиционной ванной комнаты.
№
Натуральный камень также служит основой для остальной части вашей ванной комнаты.
Независимо от того, стремитесь ли вы к совершенно современному виду или думаете о том, чтобы соответствовать естественному виду вашей каменной раковины, натуральный камень — идеальный выбор для роскошной ванны.
Вам может показаться, что ванна из натурального камня не очень распространена. Но благодаря своей гладкой поверхности эти каменные ванны доставят удовольствие вашей коже. Это означает, что вы можете с комфортом погрузиться в ванну и полностью погрузиться в теплое купание. №
Однако покупка новой ванны из натурального камня – непростой процесс. Это потому, что есть широкий выбор вариантов на выбор. Чтобы принять правильное решение при выборе подходящего природного камня для своей бани, необходимо взвесить все за и против этого материала.
Хороши ли каменные ванны?
Многие считают, что каменные ванны безопасны для кожи. Не только потому, что натуральный камень имеет естественную вибрацию для нашего тела, но и потому, что хорошо отполированная поверхность камня сохраняет одинаковую температуру воды в течение длительного периода времени, что очень хорошо для принятия ванны.
Что такое камень для ванны?
Каменная ванна — это ванна из камня. Он буквально вручную вырезается из природного каменного блока и после полировки поверхности превращается в каменную ванну из блоков с потрясающим видом. Обычные типы камня для ванны включают в себя знакомый нам материал, такой как мраморная ванна, гранитная ванна, ванна из травертина или даже ванна из оникса.
Какой материал лучше всего подходит для ванны?
Нет другого материала, который мог бы конкурировать даже с камнем. Натуральный камень – лучший материал для каменной ванны. 1. Камень прослужит сотни лет или тысячи лет. 2. Камень дольше сохраняет тепло воды. 3. Полированная каменная поверхность очень проста в уходе. 4. За ванной из натурального камня легко ухаживать. Если есть царапина или незначительное повреждение, вы можете использовать ручную полированную машину, чтобы снова сделать поверхность совершенно новой.
Сколько стоит мраморная ванна?
Мраморная ванна стоит от 4000 до 20 000 долларов.
В основном это зависит от выбранного вами материала. Некоторый мрамор может быть дорогим, а другой может быть очень экономичным. Но не дорогой мрамор намного красивее. Есть много красивых мраморных ванн , которые могут вписаться в бюджет в 5000 долларов.
Какую ванну легче всего мыть?
Чистота для ванны зависит от степени гладкости поверхности ванны. Чем более гладкой может быть поверхность ванны, тем легче ее чистить. Но почти все изнашивается. Даже самая блестящая чугунная или стеклянная ванна может прийти в негодность за несколько лет. Но ванна из натурального камня отличается. Когда вы впервые купили полированную каменную ванну, она могла оставаться сияющей и гладкой долгие годы. Даже если однажды он потеряет блеск, вы можете использовать ручную полированную машину, чтобы избавиться от старой поверхности, и нанести на нее воск, чтобы снова сделать ее новой. Каменная ванна всегда легко моется.
Как изготавливаются ванны из натурального камня?
Прежде чем мы подробнее и глубже поговорим о преимуществах и недостатках ванны из натурального камня, познакомим вас с процессом ее изготовления.
Процесс добычи природных камней и изготовления из них ванн претерпел незначительные изменения. Однако процесс одинаков для всех распространенных природных камней, будь то мрамор, гранит, песчаник или травертин.
Например, природный камень, такой как мрамор или гранит, обычно добывают в коммерческих горных районах в каком-нибудь отдаленном месте. Для сверления отверстий, через которые проходит канат с алмазным канатом, требуется специальное оборудование. Кроме того, необходимо моторизованное оборудование для протягивания режущих кабелей через природный камень. Это похоже на то, как бензопила будет пилить дерево, пока во время карьера не отделится огромный кусок камня весом в много тонн от соседнего камня.
Затем большой каменный блок разрезается на мелкие части, каждая из которых весит несколько тысяч фунтов. Его поднимают тяжелыми кранами на массивных грузовиках и далее эти блоки транспортируют на разделочную площадку. Во дворе многопильный станок с различными режущими дисками может распилить блок на отдельные плиты.
После этого плиты дополнительно лепят в виде ванн разной формы. В зависимости от интерьера вашей ванной комнаты и ваших индивидуальных предпочтений, вы можете решить, какую форму ванны вы хотите для своей туалетной комнаты.
Теперь, когда вы знаете, как добывают и изготавливают ванны из природного камня, давайте обсудим плюсы и минусы ванн из натурального камня. После этого вы сможете принять правильное решение о покупке лучшей ванны из натурального камня для своего дома.
Преимущества ванн из натурального камня
Вот некоторые заслуживающие внимания преимущества ванн из натурального камня:
1. Долговечность
Красота натурального камня долговечна. Он очень прочен и прочен, поэтому не расколется и не треснет, как дешевая акриловая ванна. Даже если вы случайно повредите его, небольшие повреждения на натуральном камне легко исправить. Тем не менее, цвет натурального камня может меняться со временем, но его можно замедлить, если вы будете правильно ухаживать за своей ванной.
2. Сохранение тепла
Вы можете подумать, что натуральный камень всегда холодный, но вы можете быть удивлены, узнав, что он действительно сохраняет тепло. Это означает, что теплая ванна прослужит дольше, чем ванны из других материалов, так как натуральный камень препятствует легкому выходу тепла.
3. Простой ремонт
Придет время, когда вы обнаружите царапину на своей ванне из натурального камня. Но не волнуйтесь, так как ремонт это легкий ветерок. Вы можете вызвать эксперта по ремонту натурального камня или производителя, чтобы помочь вам исправить незначительные повреждения, нанесенные вашей ванне из натурального камня.
Вы также можете найти машину для ручной полировки и, как полировать мраморную столешницу, самостоятельно полировать поверхность мраморной ванны. Когда дело доходит до очистки, ванны из натурального камня требуют немного большего ухода, чем обычные ванны. Но этапы очистки не потребуют слишком много времени и усилий для очистки.
Воспоминание. долговечность ванн из натурального камня сохраняется, если их регулярно чистить, чтобы каменная ванна оставалась в наилучшем состоянии.
4. Выбор дизайна
Что ж, это касается не только ванн из натурального камня, так как многие материалы для ванны доступны в самых разных дизайнах. Но ванны из натурального камня доступны только в стандартной форме.
Популярная форма каменной ванны – овальная, достаточно глубокая, позволяет легко поскользнуться и погрузиться в воду. Вы даже можете выбрать обычную квадратную форму, которая в конечном итоге будет выглядеть более современно. Тем не менее, есть некоторые уникальные конструкции, такие как ванны-лодочки и тапочки, и вы, безусловно, можете угадать их форму. Кроме того, эти великолепные ванны будут ослеплять вас долгие годы.
5. Прочность
Ванны из природного камня из мрамора, гранита или травертина очень долговечны и прочны. Ванна из натурального камня может прослужить долгие годы без образования трещин и сколов.
С фарфоровыми и стеклопластиковыми ваннами нужно быть осторожным, чтобы не поцарапать их краску. Но пятна и царапины не беспокоят, если у вас дома есть ванна из натурального камня.
6. Комфорт
Ванны из натурального камня очень гладкие, удобные и рассчитаны на долгую жизнь. Знаменитая ванна из натурального камня спроектирована так, чтобы быть очень глубокой с гладкой внутренней поверхностью, что обеспечивает максимальный комфорт во время пребывания в ней. Поверхность ванны из натурального камня расслабляет и успокаивает кожу. Таким образом, вам не нужно беспокоиться о какой-либо боли или дискомфорте, когда вы лежите в каменной ванне.
Минусы камня
На все плюсы ванны из натурального камня есть и минусы. Вот несколько недостатков, о которых вам нужно знать.
1. Высокая стоимость установки
Для многих домовладельцев высокая стоимость ванны из натурального камня делает ее плохим выбором. Поскольку каменная ванна весит около 900 кг, вам, возможно, придется заплатить за установку почти столько же, сколько и каменная ванна.
Поэтому рядовые домовладельцы стараются избегать установки ванн из натурального камня в своих ванных комнатах.
2. Натуральный камень холодный на улице
Если вы хотите каменную ванну на заднем дворе, снаружи дома может быть довольно холодно, особенно зимой. Это недостаток для многих людей, чувствительных к холоду. Или они должны приобрести лучистую систему обогрева пола в саду, чтобы поддерживать терпимую температуру окружающей среды зимой.
3. Натуральный камень пористый
В отличие от ванн из фарфора или керамики, ванны из натурального камня являются пористыми и могут легко изменить цвет при контакте с влагой. Камни с высоким содержанием железа могут легко ржаветь и обесцвечиваться во влажной среде. Пористость также означает, что его поверхность может легко испачкаться. Ванна из натурального камня может стать необратимо обесцвеченной краской для волос или пятнами от губной помады. Единственная профилактическая методика — ежегодно запечатывать натуральный камень, чтобы избежать таких проблем.
4. Натуральный камень требует особого ухода
Хорошую каменную ванну легко чистить, но за ней сложно ухаживать. Поскольку камень пористый, вам необходимо поддерживать поверхность каждый год. Способ заключается в том, чтобы раз в год наносить воск на поверхность мраморной столешницы на поверхность мраморной ванны.
Рекомендация
Ванны из натурального камня для ванной комнаты являются жизнеспособным вариантом, и все благодаря современным герметикам, которые сводят к минимуму восприимчивость природного камня к окрашиванию и повреждению водой. Ванна из натурального камня — хороший вариант для домовладельцев, которым нужен эффект «вау» в современной ванной комнате. Но для многих людей натуральный камень является дорогостоящим и требующим особого ухода продуктом. Если вы не знаете, стоит ли выбирать ванну из натурального камня для своего дома, взвесьте все за и против материала. После этого вы можете решить для себя, хотите ли вы ванну из натурального камня для своей ванной комнаты или предпочитаете выбрать какой-либо другой материал.
При внешней привлекательности, утепленные сэндвич панели плохо пропускают пар. В помещении концентрируется конденсат, вызывающий ускоренное гниение;
Незащищенный материал, активно поглощая влагу, нуждается в эффективной внешней и внутренней гидроизоляции. При замерзании влага кристаллизуется, увеличивая объем. Это может вызвать появление трещин;





Алгоритм аналогичный, единственное в 3 пункте вместо 0,3 подставляем 0,075м.
Ванна — идеальное место для создания водных горок, бега с мячом, плавучих городов и многого другого. «Липкая» вязкость воды создает полезное сцепление между блоками, а движение, плавучесть и поток воды добавляют увлекательную изюминку в классическую игру с блоками.