Оконные рамы из дерева своими руками. Как сделать форточку в деревянной раме своими руками
Деревянные окна своими руками
Несмотря на популярность пластиковых окон, обычные деревянные окна полностью они вытеснить не смогут. Дерево «дышит», и изделия из нее полностью безопасны. Натуральный цвет и фактура всегда привлекают внимание, поэтому ваш дом будет иметь оригинальный, а не казенный вид. Конечно, чтобы сделать деревянные окна для дачи своими руками нужно немножко постараться. Вам пригодятся навыки работы с такими столярными инструментами, как рубанок, фрезерный станок, шуруповерт, циркулярная пила. Если же с этим делом все в порядке, то немедленно приступим к работе.
Как сделать деревянное окно своими руками?
- Для работы можно использовать недорогую сосну. Дуб, конечно, прочнее, но если вы занялись производством окон впервые, то лучше покупать недорогой материал. Заготовки для нашего окна будут иметь размеры 140х40 мм.
- На форточки заготовки будут в виде брусков 40х50 м.
- Дальше нужно выбрать четверть под стекло 10х15 мм. На боковых стойках ее делают с одной стороны, а на поперечине, которая стоит посредине, четверть выбирается с обеих сторон. Лучше использовать для этого циркулярный станок.
- Четверти готовы, можно замерить заготовки, чтобы отрезать их по нужной длине.
- Деревянные окна своими руками лучше делать на специальном столярном оборудовании. Например, данную работу мы выполняем на циркулярном станке.
- На поперечине выполняем с обоих концов пропил – ширина 40 мм, а глубина - 10 мм.
- После нескольких операций получились аккуратные выборки, которые необходимы для качественной сборки.
- Производим разметку, чтобы сделать выборку в месте форточки.
- Ножовкой дважды выполняем пропил.
- Ручной машинкой фрезеруем отмеченную часть.
- Выполняем дрелью в отмеченных местах отверстия и шлифуем заготовки.
- Изготовление деревянных окон своими руками подошло к завершающей стадии. Собираем наше изделие с помощью саморезов.
- Нарезаем по длине заготовки для форточки и выполняем на них выборки под стекло.
- Форточка у нас будет собираться по принципу паз-шип.
- Проклеиваем заготовки, выставляем их по диагонали и собираем форточку. Не забываем оставлять технологические зазоры.
- Фрезеруем на форточке четверть.
- Ставим форточку на место и врезаем завесы.
- Ставим ручки, врезаем оконные замки и ответные планки.
- Окно готово. Осталось его покрасить, вставить стекла и можно изделие устанавливать на место.
womanadvice.ru
видео-инструкция по изготовлению, установка, ремонт, чертежи, арочные доборы, фото и цена
Все фото из статьи
Популярные на сегодняшний день пластиковые стеклопакеты имеют множество достоинств, однако не всегда имеет смысл их устанавливать. К примеру, если нужно остеклить деревянный домик на даче, то имея хотя бы небольшой опыт работы с деревом, гораздо дешевле и практичней будет сделать самодельные рамы или обновить имеющиеся. Ниже мы ознакомимся с технологией изготовления окон, а также рассмотрим как обновить старые деревянные окна своими руками.

Деревянное двухстворчатое окно
Изготовление окон
Чтобы от начала и до конца изготовить окно из дерева своими руками,необходимо произвести следующие действия:
- Составление проекта;
- Изготовление и монтаж коробки;
- Изготовление оконной рамы;
- Установка и остекление рамы.
Ниже подробней ознакомимся со всеми этими этапами работы.

Пример схемы деревянного окна
Составление проекта
Прежде всего необходимо выполнить чертежи как сделать деревянное окно своими руками. Для этого надо определиться с размерами будущего изделия и его конструкцией. Соответственно, предварительно следует измерить оконный проем.
Чтобы правильно составить чертежи деревянных окон своими руками, можно ознакомиться с существующими проектами, и подобать из них наиболее оптимальный. В таком случае останется лишь подогнать размеры конструкции под оконные проемы здания.
В итоге выполненные чертежи окон своими руками из дерева должны отображать все детали изделия, а также их размеры, указанные обязательно в миллиметрах. Наличие такого проекта значительно упростит рабочий процесс, так как все нюансы конструкции будут у вас перед глазами. Соответственно, уменьшается вероятность допущения ошибок.
Ниже в качестве примера рассмотрим, как выполнить наиболее простую конструкцию – глухое деревянное окно своими руками.

Схема оконного короба
Изготовление короба
Короб является хоть и самым простым элементам окна, к его изготовлению нужно подходить очень ответственно, так как именно он принимает на себя всю нагрузку от окна. Для изготовления короба можно использовать лишь хорошо просушенные доски, без каких либо дефектов. Отличным вариантом являются сосновые доски, так как достаточно устойчивы к воздействию влаги.
Инструкция по изготовлению короба выглядит так:
- Работа начинается с выполнения заготовок. Для этого от доски толщиной 5 см необходимо отпилить четыре детали – две равные ширине проема, и две равные его высоте.
- Затем в торцах досок, которые будут укладываться по ширине проема, нужно лобзиком выпилить шип. У вертикальных же заготовок с торцов выполняются соответствующие пазы.
- Далее на каждой доске при помощи рубанка выбирается паз глубиной в 4 мм и шириной 50 мм.
- После этого короб собирается. Места стыков обязательно проклеиваются столярным клеем. Дополнительно конструкцию можно упрочнить металлическими уголками.
- В завершение работы короб вставляется в стену. Зафиксировать в проеме его можно разными способами, в зависимости от материала стен. Обычно используют нагели или дюбель-гвозди.
Готовая оконная коробка
Пространство между стеной и коробом задувается монтажной пеной. Кроме того, устанавливаются наличники, которые обеспечивают дополнительную фиксацию короба.
Обратите внимание! При покупке готовой конструкции бывают случаи, когда короб не совпадает с толщиной стены. Решить эту проблему позволяет установка дополнительного профиля, который называется добором. Чаще всего прямые и арочные деревянные доборы на окна своими руками устанавливаются при помощи саморезов.

Варианты профиля рамы
Изготовление рамы
Перед тем как сделать окно из дерева своими руками,следует подготовить качественный, хорошо просушенный брус сечением 5х5 см.
Дальнейшая работа по изготовлению рамы выглядит так:
- Первым делом в брусе следует выполнить паз для установки в короб. Ширина паза должна составлять 20 мм, а глубина – 15.
- Затем выполняется паз с противоположной стороны для стекла и штапиков. Его глубина зависит от ширины стекла и размеров штапиков. Если планируется сделать раму двухстекольной, то паз выбирается с двух сторон бруса.
- Затем брус разрезается на четыре детали в соответствии с размерами, указанными в проекте. Углы деталей зарезаются под 45 градусов, в идеале желательно сделать соединение шип паз.
- Если окно достаточно большое, необходимо выполнить перемычку, чтобы разделить стекла.
- Далее места стыков деталей промазываются столярным клеем и собираются. Дополнительно рама укрепляется металлическими уголками, которые следует расположить на всех углах с двух сторон конструкции.

Металлический уголок для укрепления оконной рамы
Совет! Чтобы упростить и ускорить работу, для выполнения пазов можно обратиться в ближайшую столярную мастерскую, где есть фрезер.
На этом процесс изготовления рамы завершен.
Монтаж
Установка деревянного окна своими руками выполняется в таком порядке:
- Рама вставляется в короб и фиксируется саморезами, которые можно расположить под штапиками. Единственное, предварительно следует просверлить отверстие, чтобы рама не раскололась.
- Затем вырезаются стекла подходящего размера. Для этого используется стеклорез, которым нужно провести по линии реза, после чего аккуратно ее обстучать. В итоге окно должно отколоться по намеченной линии.
- После этого места прилегания стела к раме промазываются герметиком, после чего устанавливается стекло и закрепляется штапиками.
Теперь, можно считать, простое деревянное окно своими руками выполнено. Конечно, по желанию конструкция может быть усложнена. Но если вы подобной работой занимаетесь впервые, то лучше начать именно с такого окна.

Удаление старой краски
Ремонт
Если старые окна стали плохо закрываться и в них появились щели – это еще не повод от них избавляться.Ведь цена новых очень высокая, а на самостоятельное изготовление уйдет много времени. К тому же сделать сложное окно не каждому под силу.
Поэтому оптимальным вариантом является ремонт деревянного окна своими руками.
Выполняется он в таком порядке:
- Перед тем как отремонтировать деревянное окно, его нужно снять с навеса.
- Затем демонтируются штапики и вытаскиваются стекла.
- Далее необходимо очистить оконный короб и раму от краски строительным феном или специальным составом для удаления лакокрасочного покрытия.
- Очищенную конструкцию необходимо ошкурить и обработать антисептическим составом. При этом надо осмотреть состояние древесины. Если оказалось, что рама гнилая, то конечно придется отказаться от идеи ее восстановления, и купить новые окна, к примеру, алюминиево -профильные, которые не подвержены гниению.
- Для укрепления рамы следует установить на углах металлические уголки.
- По периметру окна с торца желательно выполнить паз глубиной около 10 мм и шириной 5 мм. Для этого можно обратиться в столярную мастерскую.
- Затем окно вскрывается лаком или красится.

На фото – монтаж силиконового утеплителя
- В подготовленный паз вставляется специальный силиконовый утеплитель.
- После этого окно устанавливается на место. Причем необходимо установить новую фурнитуру включая навесы.
- Далее устанавливаются стекла. Места стыков обязательно промазываются герметиком.
На этом ремонт деревянного окна завершен. Теперь это изделие сможет прослужить многие годы, единственное, необходимо следить за состоянием древесины и периодически обрабатывать ее защитными составами.
Вывод
Сделать окна из дерева своими руками в целом не сложно, если вы имеете навык работы с древесиной. Главное – набить руку и освоить принцип их изготовления, выполнив наиболее простую конструкцию, к примеру, для дачи. После этого можно обеспечить новыми окнами и постоянное жилье.
Из видео в этой статье вы можете ознакомиться с дополнительной полезной информацией по озвученной теме.
rubankom.com
| Очень много вопросов задают, как сделать форточку в раму где форточки не предусмотрены, и вместо форточки открывается одна из рам окна. Чаще всего это делают в окнах финского образца. Зачем это сделано честно, сказать не знаю. Но могу только предложить сделать опыт из школьной программы. Откройте окно, зажгите спичку, и поднесите ее к открытому окну поочередно - сначала снизу, а потом сверху, и посмотрите, куда будет тянуть пламя огня. Внизу открытого окна пламя будет тянуть в комнату, а вверху окна из комнаты. Второй аргумент в пользу форточки такой - нельзя поставить цветы на подоконник. Ведь открывается вся фрамуга. |
|
ПЕРВЫЙ ВАРИАНТ - когда узкая рамаделится на две части. |
ВТОРОЙ ВАРИАНТ - когда в широкуюраму вставляется форточный блок. |
В первую очередь я предлагаю Вам рассмотреть детали из которых, сделана сама рама 1-стекло, 2-фурнитура, 3-шипка. Что такое стекло все конечно знают. Кто не знаком с фурнитурой лучше не браться за работу и не портить раму. Оконный блок стоит дороже, чем Вы заплатите мастеру. А вот о шипке мы с вами поговорим отдельно.
ШИПКА - а по другому названию "рамный брус". Из этой детали собран каркас рамы. С этим рамным брусом мы и будем работать.
Сначала давайте рассмотрим первый вариант врезки форточки. Если честно сказать, то я всегда советую его всем заказчикам.
Снятую двойную раму, не разделяя мы должны разрезать ее на две части, на будущую форточку и будущую раму.В первую очередь мы снимаем фурнитуру (кроме меж рамных петель), снимаем стекло. Потом замеряем длину рамы, делим ее на 3. Получившее число отмеряем от верха рамы и аккуратно, под прямым углом распиливаем ее.
![]() | Далее начинаем работать с верхней половинкой оной из рам. |
| Вот что у вас должно получиться. |
Ну что ж начнем. За образец мы берем рамный брус вашей рамы (предупреждаю!)Нет одинаковых рам, хоть они и сделаны на одном деревообрабатывающем комбинате, и даже на оном станке) который нарисован на первом рисунке.
На втором рисунке нарисован брус из которого будет сделана шипка.
Красными линиями обозначены размеры которые должны совпадать с образцом нашего рамного бруска. Я специально не пишу параметры бруска. Еще раз повторю, на каждой раме он разный (в среднем это 4 х 5 см).
Третий рисунок показывает снятую четверть для стекла (желательно сделать эту операцию на станке. Но если у вас нет станка, то реально сделать четверть простой стамеской, хотя нужно иметь некоторый навык).
Что бы шипка была почти готова надо снять фазку, как показано на четвертом рисунке. А - почти - потому что доделывать будем уже на раме.
![]() | В красном кружке показано соединение в шип изготовленной вами шипки №-2 и рамного бруска №-1 на вашей раме. Я нарисовал, а вы делайте. Перефразирую одну фразу, которую сказал выше:- не знаете как сделать соединение в шип, позовите мастера, оконный блок стоит дороже чем вызов мастера!! На другой стороне шипки сделайте такое же соединение в шип. |
| Вот что у вас должно получиться. Так делаются и все четыре половинки рам. | |
| Я не художник, я только учусь:-) И, беря во внимание, что чертежи для вас будут скучны, я попытался показать на этой картинке как будет выглядеть творение ваших рук. |
| Просто посадить их правильно на межрамные петли. |
![]() | ![]() |
УДАЧИ ВАМ.
homemaster2.narod.ru
Оконные рамы из дерева своими руками
Изготовление деревянных окон своими руками
Деревянные окна можно изготовить своими руками, особенно, если они требуются для дачи, веранды, хозпостроек. Работу надо выполнять особенно тщательно, чтобы соблюсти герметичность и правильную геометрию конструкции. Общеизвестно, что окна из дерева обладают высоким теплосбережением, прочностью и экологической чистотой. Натуральный материал станет долговечным, если применить грамотную обработку поверхности специальными средствами.
Самостоятельно невозможно добиться такой точной сборки элементов, какую обеспечивают станки на производстве. Однако изготовление деревянных окон своими руками качественно возможно, если соблюдать технологию соединения деталей и основных элементов. Понадобятся следующие инструменты: дрель, молоток, стамеска, шуруповерт, стеклорез, станок фрезерный или электрорубанок. Сначала на бумаге вычерчивается в масштабе будущее окно и определяется количество расходных материалов.
Изготовление короба
Популярным сортом древесины является сосна. Это самый доступный, недорогой и практичный материал. Лучшей альтернативой является дуб, но впервые самостоятельно изготавливать окно лучше из менее дорогого сорта. Доска должна быть правильно просушена, не иметь, сучков, трещин, деформаций. Следует учесть, что короб будет закрепляться в оконном проеме и нести основную нагрузку.

Если материалом всех элементов выбрать клееный брус, то конструкция будет более прочной, так как он отличается хорошей прочностью, противостоит деформациям.
Размер доски достаточно взять 150х50 мм. В заготовках короба следует сделать паз в форме буквы Г глубиной 15 мм. Четыре детали блока соединяются между собой столярным клеем, затем просверливают отверстия, вставляют в них деревянный стержень длиной 3 см. Он обеспечивает жесткое и неподвижное соединение досок под углом 90º.
Короб монтируется в подготовленный проем неподвижно, то есть в стене сверлят отверстие, вбивают дюбели и закрепляют его при помощи саморезов. Щели между стеной и блоком герметизируют монтажной пеной. Особенности такого крепления: доска монтируется без учета ее подвижности от перепада температур.
Изготовление оконной рамы
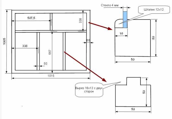
Для создания рамы понадобится брус 6х4 см или больше в зависимости от конструкции окна. Форма ее профиля определяется количеством стекол, их толщиной, размером штапиков. Одностекольный профиль имеет 2 прямоугольных паза (для стекла и установки в короб). К двухстекольному профилю добавляется еще один паз для второго стекла. Для изготовления формы профиля пользуются электрорубанком или фрезером. Достаточно выбрать стекло толщиной 4 мм, штапик — 10 мм.
Из подготовленных досок собирают раму. Для этого строго по размерам надо распилить их по краям наискось, то есть под углом 45º. Подготовленный профиль обеспечит соединение шип-паз, дополнительную неподвижность ему придают при помощи саморезов. При этом следует закручивать их так, чтобы шляпки утонули в древесине.
Подготовка и вставка стекол
Правильное определение размеров стекла обеспечивает его точное прилегание и отсутствие мостиков холода. Желательно снимать мерки с точностью до 1 мм. Резку осуществляют алмазным саморезом, края полируют наждачной бумагой с мелким зерном. Техника безопасности во время резки стекла :
- рабочие рукавицы для защиты ладоней от порезов;
- очки для защиты глаз от стеклянной крошки, пыли.
Движения стеклорезом проводят вдоль линейки, длина которой должна превышать длину стекла. Затем его сдвигают на край стола, надавливают рукой. С характерным звуком стекло должно отломиться по размеченной линии. Подготовленные таким способом стекла вкладывают в оконную раму для примерки, вытаскивают. Далее на пазы рамы наносят герметик и окончательно прикладывают стекло. Сверху оно закрепляется штапиком, который одновременно затрагивает и стекло, и раму. Он фиксируется тонкими гвоздями. Штапики можно сделать более широкие, тогда их крепят при помощи тонких саморезов.
Если окно состоит из 2-х частей, посередине к раме монтируется вертикальный брус с такими же пазами. Одна из половин окна изготавливается отдельно и имеет более тонкую раму. Она прикрепляется к основной раме с помощью навесных петель, образуя открывающуюся створку. К ней саморезами прикручивают закрывающую ручку, а в вертикальном брусе делают при помощи стамески паз для закрывания окна.
Окончательный монтаж
Готовое окно, созданное своими руками, вставляется в оконный блок и фиксируется в пазах. Прикрепляется саморезами, которые должны войти в стену сквозь короб. Для этого, как правило, используют монтажный пистолет, которым металлические дюбели пристреливают в стену. Все щели герметизируют монтажной пеной, после ее высыхания проводят штукатурку стен. Работы заканчивают монтажом отлива и подоконника.
Деревянное окно своими руками и пошаговая инструкция для чайников
Конечно пластиковые окна давно завоевали наши с вами сердца. Однако для бюджетного способа замены окон подойдет именно деревянная рама. А если вы решили проводить такие ремонтные работы у себя на даче или-же на веранде, то деревянные окна можно сделать своими руками. Когда я пристроил веранду к своему дому, то сразу решил ее застеклить и вариант с пластиковыми окнами мне не подходил. Конечно производственные станки собирают оконные рамы намного лучше и быстрее, но ведь всегда хочется сделать что-то своими руками. А вот если соблюдать все правила обработки деревянного материала и технологию соединения частей, то вполне можно добиться хороших результатов. Сегодня мы рассмотрим пошаговую инструкцию по изготовлению деревянных окон.

Изготавливаем деревянный короб

Когда я решил сделать деревянноеокно своими руками, то задумался какой вид дерева лучше использовать. От себя хочу посоветовать применить сосну – она вполне доступна благодаря своей стоимости. Если вы, как и я решили попробовать сделать деревянную раму для окон самостоятельно, то отдайте предпочтение именно этому материалу. Хорошей альтернативой можно считать дуб, но он дороже, чем сосна и я побоялся его использовать впервые.
Важно! Если вы решили экспериментировать, то не стоит сразу приобретать дорогие материалы. Вполне возможно, что у вас ничего не получится и древесные элементы будут испорчены.
Запасайтесь необходимыми инструментами заранее, хотя у многих домашних мастеров все эти предметы находятся в постоянном использовании:
- Дрель и шуруповерт – механизированный способ закручивания саморезов ускорит процесс сборки
- Стеклорез
- Электрорубанок
- Стамеска и молоток
Перед покупкой всегда следите за состоянием досок. Они не должны иметь трещин или сколов, торчащих сучков или каких-то деформаций. Также они должны быть полностью просушены. Пошаговая технология:
- Для своего окна я выбрал доску размером 150х50 мм
- Во всех деревянных заготовках сделал паз, напоминающий букву «Г». Глубина паза составляла 15 мм
- После этого 4 части я соединил между собой. Для стыков используется столярный клей, а углы должны быть по 90 градусов каждый. После того, как короб склеен, просверлите в нем отверстия для деревянного стержня, длина которого составляет 3 см. Это является дополнительным закреплением и обеспечивает наличие углов в 90 градусов
- Короб вставляется в уже подготовленный проем для окна. Тут все просто: вы сверлите дырки, в которые вставляете дюбеля, а затем закрепляете короб с помощью саморезов. Я таких действий не выполнял – моей целью было сделать окно своими руками
Важно! Все щели необходимо задуть монтажной пеной. При таком закреплении подвижность дерева при температурном перепаде не учитывается.
Деревянный короб стоит – делаем раму

Деревянные окна своими руками
Пошаговая инструкция по изготовлению рамы для окон своими руками зависит от того, какое окно вы ходите сделать. Я изготавливал одностекольный профиль с 2-умя пазами:
- Оконная рама делается из деревянного бруса, размер которого зависит от самой конструкции окон. Я использовал деревянный брус 6х4 см, но вы можете взять и большие размеры
- Если оконный профиль будет двухстекольный, то конструкция будет иметь на 1 паз больше – 2 пазика для стекол и 1 для закрепления в короб
- Профиль изготавливается при помощи фрезера или электрорубанка – стекло я выбрал 4 мм, а штапик – 10 мм
- Для того, чтоб собрать детали их нужно обрезать. Для получения 90 градусов, обрезаем края наискось, то есть по 45 градусов. Саморезы следует использовать для качественного закрепления и неподвижности
Мне как новичку в этом деле не сразу было понятно, как происходит весь процесс. Инструкции по изготовлению деревянных окон, для меня были написаны будто на непонятном языке, но купив все необходимые материалы и инструменты, я начал работу. Рассмотрев все чертежи и фото, которые без проблем можно найти на просторах интернета, оказалось, что изготовление деревянного окна своими руками, не такое уж и трудное занятие.
Важно! Еще совсем недавно обналичка использовалась для скрытия изъянов при монтаже деревянных окон или их теплоизоляции. Сейчас же обналичка играет не только практическую, но и декоративную роль. Обналичка подходит для деревянных домов и используется только для них. Она может быть резной или напоминать образы животных – все зависит от фантазии мастера.
Осталась самая малость – вставляем стекла

Делаем деревянные окна своими руками
Самое главное в этом процессе – точный выбор размеров стекла. Благодаря этому не создаются мостики холода, а стекла качественно прилегают к деревянной оконной раме. Отклонения в 1 мм, могут уже иметь негативные последствия – а нам это не нужно.
Важно! Не забывайте про технику безопасности во время нарезки стекла. У вас обязательно должны быть перчатки для защиты рук и очки – защита от стеклянной крошки просто необходима.
Резать стекло нужно алмазным стеклорезом, а для полировки краем подойдет мелкозернистая наждачная бумага. Техника нарезания очень проста. Достаточно запастись линейкой, которая будет длиннее стекла и вдоль нее вести стеклорезом. Перед тем, как промазать края герметиком нужно приложить стекло для примерки. Если все удачно, то на пазы наносится герметик, после чего стекло окончательно вставляется в раму. После этого используем штапик – он должен зацепить и раму, и стекло, после чего зафиксировать его при помощи тонких гвоздей. Если шпапики будут шире, то фиксируйте их саморезами – выбирайте тонки крепежи.
На этом изготовление деревянных окон своими руками полностью завершено и остается только одно: размещение деревянных окон в подготовленных коробах. Мне это действие не понадобилось, но если вы все-таки решили устанавливать, то:
- Вставляем конструкцию в блок и фиксируем в пазах
- С помощью саморезов закрепляем раму – элементы должны пройти сквозь него прямо в стену
- Все щели задуваются с использованием монтажной пены и ждут ее полного высыхания
- В дальнейшем вы можете оформлять откосы своими руками самым удобным для вас способом. Но для деревянных конструкций все привыкли использовать штукатурку, так как пластиковые откосы не будут смотреться гармонично
Обновление старой деревянной конструкции

Восстанавливаем старые окна своими руками
Хочется затронуть еще один немаловажный вопрос: как обновить старые окна из дерева своими руками? Несмотря на все дефекты, которые появляются на деревянных конструкциях спустя долгие годы, они остаются очень крепкими и прочными. Поэтому не всегда появляется желание менять старые оконные конструкции и тратить на это большие деньги.
Обычно реставрация деревянных окон своими руками подразумевает установку уплотнителей и покраску рам, однако в некоторых случаях требуется более трудоемкий процесс. При появлении щелей между деревянной рамой и коробом следует использовать уплотнители. Можно применить резиновые, поролоновые или из поливинилхлорида. А вот если образовался перекос, то закрыть или открыть створку на окнах, становится настоящей проблемой. Для того чтоб исправить ситуацию, можно попробовать 2 способа: для начала проверьте петли – возможно они осели и достаточно просто найти для них новое место или же состругать лишнее с помощью рубанка. Дело в том, что древесине свойственно набухать и поэтому могут существовать места, которые необходимо со временем корректировать.
Очень часто, окна не закрываются из-за банально толстого слоя нанесенной краски. Для этого необходимо с помощью наждачной бумаги убрать лишние слои ЛКМс деревянных конструкций. Однако самой страшной проблемой может показаться гниль на определенных участках. Как ни странно, этому есть обычное решение: с помощью стамески нужно вырезать испорченный участок, лучше будет если вы захватите еще и немного пригодного материала. Появившееся углубление промажьте эпоксидкой или столярным клеем, после чего вставьте новый материал и закрепите его. Когда клеящий раствор высыхает, вся поверхность обрабатывается с помощью шлифмашинки. Окончательным решением будет вскрытие рамы лаком или окрашивание с помощью ЛКМ.

Делаем деревянные окна самостоятельно
Как видите ничего страшного в изготовлении новых деревянных конструкций или обновлении старых деревянных окон нет. Для того чтоб произвести все работы самостоятельно, достаточно изучить технологию, а также запастись необходимыми инструментами и деревянными материалами. Выбрав подходящую древесину, у вас получится самим соорудить оконную конструкцию и в дальнейшем провести остекление своей дачи или веранды, а возможно и летней кухни.
Также рекомендуем к прочтению:
Нет похожих материалов.
Как самому сделать окна из дерева
Современные окна по большей части представляют собой стеклопакеты, состоящие из сборных панелей. Эти окна отличаются удобством использования, но имеют и некоторые недостатки. Так, например, если случайно будет разбито одно из стекол, заменить его будет совсем непросто, особенно, если оно имеет нестандартный размер. К тому же компании, выпускающие стеклопакеты, часто закрываются, а многие модели, когда приходит время замены стекла, оказываются снятыми с производства.
Тем, кого интересует, как самому сделать окна из дерева, фото и подробные инструкции, размещенные на этой странице, очень пригодятся. На фотографии, показанной ниже, изображен самый настоящий самодельный стеклопакет, для изготовления которого не требуется ни особых умений, ни существенных финансовых вложений. Если в таком стеклопакете разобьется стекло, замену ему можно будет легко найти в любом строительном магазине, а если между стеклами будет собираться конденсат, то достаточно будет сменить герметик и пополнить влагопоглотитель.
Стеклопакеты, имеющие воздушный зазор, не заполненный каким-либо благородным газом, за счет циркуляции воздушных потоков между стеклами несут существенные конвективные потери. Благородные газы имеют большую массу, что значительно замедляет диффузию. Но зато газ по мере старения стеклопакета имеет тенденцию теряться, а в пакете, заполненном воздухом, можно добавлять влагопоглотитель и менять герметик, не имея специальных приспособлений.
Изготовление короба из дерева
Наиболее распространенным материалом, из которого изготавливаются деревянные рамы для окон, является сосна, которая на сегодняшний день считается самой практичной, недорогой и доступной древесиной. Разумной заменой сосновой древесине является древесина дуба, но мастерам, первый раз в жизни изготавливающим деревянные окна, лучше все же выбирать менее дорогие породы деревьев. Деревянные брусы для деревянных окон обязательно должны быть высушены по всем правилам, а кроме того, на них не должно быть ни сучьев, ни трещин или других повреждений. Важно помнить, что короба, когда их закрепляют в проеме окна, берут на себя главную механическую нагрузку. Если для изготовления всех элементов будет использоваться клееный брус, то его прочности будет достаточно, чтобы противостоять деформирующим нагрузкам.

Инструменты для работы, которые будут необходимы
Если, например, для изготовления короба будет использоваться доска 150х50 мм, то в заготовках для него нужно будет проделать паз глубиной 15 мм в виде буквы Г. Для блока потребуется изготовить четыре заготовки, а затем соединить их при помощи клея (лучше всего, столярного), а дополнительно просверлить в нужных местах отверстия и вставить трехсантиметровый стержень из дерева, который будет обеспечивать соединению под прямым углом неподвижность и необходимую жесткость.
Готовый короб неподвижно закрепляют в подготовленном оконном проеме. Для этого в стене следует просверлить отверстия, вбить дюбели и саморезами закрепить готовую конструкцию. Если между готовым блоком и стенами останутся промежутки, их нужно загерметизировать строительной пеной. Следует помнить, что при монтаже короба не учитывается подвижность, которую он может приобретать при температурных перепадах.
Изготовление рамы из дерева.
Главной особенностью представленного здесь проекта является оконный переплет, распирающий стекла и обеспечивающий свободное место для уплотнителя и деревянных штапиков, удерживающих стекло.
Для тех, кто собирается изготавливать окна своими руками из дерева, чертежи, представленные на этой странице показывают, как сделать раму для десятимиллиметровых штапиков, которые будут надежно удерживать четырехмиллиметровое стекло. Зазор между стеклами составляет около 1 см, при этом металлических деталей, распирающих их, не использовано. Следует учитывать, что уплотнитель для деревянных окон, ширина которого равна ширине стекла, будет не самым лучшим вариантом для такой конструкции: лучше, если поперечное сечение уплотнителя будет равняться сечению паза.

Изготовление коробки для окна
Наилучшим уплотнителем будет материал, который не страдает от воздействия солнечных лучей. Часто для этого применяют уплотнитель из силикона, но нельзя не отметить, что он подходит для таких целей не лучшим образом, поскольку трудно удаляется с поверхности стекол. Можно изготовить раму из сосновой древесины, а можно использовать древесину белого дуба или другие заготовки. Перед порезкой материала для оконной рамы следует тщательно измерить периметр оконного проема и увеличить полученный результат еще на 10%.
Сборка деталей рамы.
Чтобы собрать изображенный здесь переплет, нужно будет распиливать материал под углом. Соединения, состоящие из пазов и шипов, держат конструкцию крепче, но для уплотнителя лучше подходят непрерывные пазы. Для соединений частей рамы между собой лучше всего использовать шурупы с плоской шляпкой и крупной резьбой. Винты с плоскими шляпками лучше всего утопить в специальные отверстия.

Сборка оконной рамы своими руками
Порезка стекол.
Процесс порезки стекла по сути не является сложным, но важно учитывать некоторые его нюансы. В первую очередь следует позаботиться о соблюдении техники безопасности: надежно защитить от возможных неожиданностей глаза и руки. Стекло должно быть прочным и совершенно целым. Перед резкой стекло тщательно очищают, а затем смазывают небольшим количеством жира.
Опытные мастера советуют всегда резать стекло за один рез. При нажатии на стекло раздается звук, после чего стекло сдвигают на самый край рабочей поверхности и нажимают на него. Чтобы изготовить такой стеклопакет, как здесь рассматривается, нужно производить замеры с точностью до миллиметра.
Края стекла после резки обрабатывают для полировки наждачной бумагой.
Сборка оконной конструкции.
Сначала стекло для примерки вставляют в раму, а затем вынимают и кладут на его место герметик. Стекло помещают назад в раму и устанавливают штапики деревянные для окон, а затем красят окно и оборудуют его ручками.
При присоединении штапиков винты нужно затягивать медленно, начиная от их середины. Это нужно для того, чтобы на хрупкие углы рамы не оказывалось чересчур сильного давления.
Исходя из того, что окно должно в случае надобности легко поддаваться ремонту, закрашивать шляпки использованных винтов не следует, но многие предпочитают, чтобы они не были видны. Идеального способа скрыть винты пока не найдено, поэтому каждый выбирает то, что ему больше всего подходит.

Устанавливаем оконную раму в дом из бруса
Между стеклами необходимо поместить осушитель. Для этого вверху оконной створки добавляют отверстие, которое позднее законопачивают деревянным штифтом. Если под рукой есть компрессор, можно заполнить промежуток между стеклами сухим воздухом. Штифты красят краской до монтажа окна и повторяют эту процедуру после него.
Окно, о котором здесь говорится, не запотевает даже через год, а если понадобится заменить стекло, то это не вызовет слишком больших сложностей. Такие окна можно устанавливать даже в помещениях с большой влажностью (то есть, в ванной или на кухне).
Дополнительные сведения.
Отверстия для винтов можно закрыть декоративными ручками. При использовании стандартных винтов можно также выскоблить краску из их канавок.
Для надежной герметизации опытные мастера вставляют стекло, нанеся предварительно на места его стыков с конструкцией герметик. Чтобы окно было более устойчивым к погодным условиям, можно после высыхания герметика нанести поверх него оконную шпатлевку. Важно знать, что некоторые современные шпатлевки могут трудно удаляться со стекло, поэтому гораздо легче работать с традиционными оконными шпатлевками.
Рекомендуем ткже ознакомиться с материалом — деревянные окна со стеклопакетами .
Красить окна лучше всего через несколько дней после того, как нанесена шпатлевка.

Варианты деревянных окон
Как изготовить ламинированные пластиковые окна
Для изготовления ламинированных оконных блоков применяют специализированные технологии. На профиль из пластика наносится специальная пленка, которая прикрепляется к поверхности при помощи клея. Пленка представляет собой несколько слоев с тиснением на ее поверхности, а чтобы нанести ее на пластиковую поверхность, необходимо воспользоваться ламинирующим оборудованием.
Ламинирование нужно не только для того, чтобы окна выглядели более эстетично: таким образом они становятся более устойчивыми ко всевозможным атмосферным явлениям и долговечными и остаются предельно простыми в уходе. Существует пленка, поверхность которой напоминает натуральную древесину. На такой декоративной пленке практически не видны пыль и грязь, поэтому пластиковые окна, ламинированные под дерево, фото которых можно увидеть ниже, отличаются невероятной практичностью.
У ламинированных оконных блоков существует довольно много достоинств. В первую очередь следует отметить, что они достаточно устойчивы к механическим воздействиям, поскольку поцарапать пленку ПВХ намного сложнее, чем краску. Кроме того, такая пленка достаточно долго сохраняет отличный внешний вид: с покрытием «под дерево» алюминиевые окна и любые другие оконные конструкции способны хорошо выглядеть даже после нескольких десятков лет эксплуатации. Более подробно об алюминиевых окнах .
Кроме этого, покрытые пленкой окна устойчивы к колебаниям температуры и к погодным условиям. Конструкция, покрытая пленкой ПВХ не чувствительна к атмосферным осадкам, а сама пленка сохраняет свой цвет даже под длительным воздействием солнечных лучей.
Еще одно неоспоримое преимущество ламинирования пленкой ПВХ — это широкий ассортимент ее цветов и текстур, среди которых найдется подходящий вариант для любого случая.
Оконные ставни из дерева
После установки ставен помещение становится дополнительно защищенным от холодов и атмосферных явлений. Деревянные ставни на окна, фото которых можно посмотреть в конце страницы, делают наружными или внутренними, а по структуре — одно- или двухсторчатыми, щитовыми или филенчатыми. Изготовить такие ставни самостоятельно может любой желающий.

Вариант дизайна ставен на окна
Что потребуется для изготовления ставен
Чтобы изготовить оконные ставни из дерева, понадобятся доски шириной 100-200 мм и толщиной более 20 мм. Наиболее подходящими считаются шпонированные доски из древесины твердолиственных деревьев, но гладкая фуга тоже вполне подойдет.
Кроме этого, нужно будет позаботиться о наличии инструментов для обработки дерева: ножовки, дрели, шуруповерта, рубанка, долота и т. п. Потребуются также измерительные инструменты: уровень, рулетка и плотницкий уголок. Для завершающей стадии работ нужно приобрести олифу, кисти и краску, а также антисептик.

Сборка ставен для окон
Изготовление простых ставен

Как сделать обыкновенные ставни из досок
- Замерить имеющийся проем по внешней и внутренней стороне, после чего составить схему раскроя досок и раскроить их.
- Для подготовки досок к торцевому соединению проводят их сплачивание. Гладкие фугованные доски можно посадить на клей, но дополнительно нужно укрепить ее рейкой так, чтобы она перекрывала получившиеся щели.
- Проще произвести сплачивание полотна для ставен замковым методом: выбрать паз в торцевой части, а с противоположной стороны предусмотреть шип. Опытные мастера рекомендуют покупать готовые шпунтованные доски, которые используются для настила пола.
- После сплачивания полотно необходимо дополнительно укрепить поперечными укосинами и накладными стяжками.
- Скрытое сплачивание щитов проводится при помощи резьбовых шпилек. Для этого тонким сверлом высверливают отверстия в торцевых боковинах досок, а затем рассверливают их до достижения диаметра шпильки. После этого доски нанизывают на шпильки и стягивают болтами, а их торцы обильно промазывают столярным клеем, чтобы не оставалось щелей.
Изготовление филенчатых ставен
- Филенкой называют тонкую доску, вставленную в каркасную раму. Такие ставни не только красиво смотрятся, но и имеют большую прочность. В строительных магазинах продаются готовые филенки и профилированные брусы с выборными пазовыми проточками, но можно заказать необходимые детали и непосредственно у столяров.
- Филенки делают гладкими или декорируют их по своему усмотрению. Они могут иметь раскладки из шпунтированных брусов или отобранные калевки. Также филенки бывают наплавными, фигарейными и могут иметь декорированную резьбой рамку. При желании можно изготовить также деревянные наличники на окна. Резные шаблоны, фото которых можно увидеть немного ниже, позволяют очень красиво задекорировать окно.
- Стягивающая рамка изготавливается из обвязных брусков, которые должны быть толще, чем филенки на 5 мм. Бруски отфуговывают и отшлифовывают, а затем соединяют при помощи шипов с проушинами.
- Когда рама собрана, филенки промазывают клеем и вставляют в нее. Створки следует до полного высыхания зафиксировать на плоскости.
- На боковинах ставен и наличниках необходимо выдолбить стамеской гнезда для монтажа петель. После врезки запорных элементов можно крепить ставни на откосах. Створки выставляют по уровню, а затем закрепляются в петельных гнездах при помощи шурупов.
- Окончательным этапом работ является пропитка деревянных конструкций олифой или другим средством, препятствующим гниению, а затем покрытие их лаком или краской.
Варианты деревянных окон Устанавливаем оконную раму в дом из бруса Сборка оконной рамы своими руками Изготовление коробки для окна Инструменты для работы, которые будут необходимы Крепление деревянных ставен на окна Деревянные окна в дом Сборка ставен для окон Вариант дизайна ставен на окна Как сделать обыкновенные ставни из досок
Интересное по теме
Источники: http://osnovam.ru/otdelochnye/derevyannye-okna-svoimi-rukami, http://pootdelke.ru/otdelka-okon/derevyannoe-svoimi-rukami-poshagovaya-instrukciya.html, http://zonabalkona.ru/okna/kak-samomu-sdelat-okna-iz-dereva.html
1oknn.ru
| В подавляющем большинстве наших квартир установлены оконные блоки со спаренными переплетами и с узкой створкой, которая призвана по замыслу проектировщиков выполнять функции форточки. Однако открывать эту створку для проветривания удобно далеко не всегда, и нужда в традиционной небольшой форточке, расположенной в верхней части окна, заставляет переделывать створку.
Нередко в узкой створке такого оконного переплета врезают дополнительную поперечину, получая еще одну открывающуюся, но уже нужного размера створку. Правда, здесь требуются довольно сложные столярные работы, которые не каждому по силам. Но, оказывается, достаточно просто установить форточку небольшого размера даже не будучи столяром. И для выполнения работы понадобится лишь место, чтобы уложить оконную створку, да еще инструмент для резки стекла. На рис. 1, а показана часть оконного блока из двух створок, типичного для окон наших домов. Для модернизации узкой створки снимаем ее с петель и разбираем на две части — наружный переплет и внутренний—для чего вывертываем болты-стяжки (обычно их два), расположенные на внутренней части переплета. Затем укладываем ту или иную часть переплета, удаляем штапики, которыми крепят стекла в раме (правильное название штапика — раскладка по стеклу) и вынимаем стекло. С помощью стеклореза укорачиваем стекло на 27 см, после чего вставляем обратно таким образом, чтобы в верхней части оконной створки образовался открытый проем (рис. 1, б). Аналогичным образом поступаем и со второй частью створки.
увеличить Да, совсем забыл! При установке стекла от длинных («вертикальных») штапиков, прижимающих боковые края стекла, отрезаем сверху куски длиной 55 см и стекло укрепляем этими укороченными штапиками, не забыв установить и «родной» короткий штапик по нижнему краю стекла. Таким образом, получилось, что теперь боковые штапики по высоте не перекрывают обрезанное стекло (см. рис. 1, б). Теперь из оконного стекла такой же толщины, что и стекла в раме, вырезаем два прямоугольника, длина которых составляет 30 см, а ширина — на 1...2 мм уже проема под стекло в створке окна. Боковые кромки и углы вырезанных прямоугольников заоваливаем наждачной бумагой, бруском или мелким напильником.В створках на сторонах выборок (четвертей) для стекол, но не занятых стеклом, укрепляем полоски из пластика (рис. 1, в), по которым будут скользить при перемещении сдвижные стекла, то есть наши прямоугольники. Лучший материал для таких полосок — тонкий безосновный линолеум, толщина которого должна соответствовать толщине стекла. Понятно, что ширина полосок соответствует размерам выборки под стекло в оконной раме и нежелательно, чтобы край полоски выступал в проем створки. Кстати, полоски из пластика не только служат «подстилкой» для сдвижных стекол, но и играют роль своеобразных прижимов, удерживая стекла от самопроизвольного сползания вниз. Итак, мы вставили в рамы обрезанные стекла, укрепили их с трех сторон штапиками (причем боковые штапики предварительно укоротили на 55 см), вырезали стекла для форточек и укрепили в свободных от стекол выборках полоски линолеума. Теперь возьмемся за оставшиеся штапики (отрезки боковых и верхний), которые придется сделать тоньше на толщину стекла. Проще всего это сделать рубанком, но можно стамеской или ножом. Далее прямоугольные сдвижные стекла устанавливают на свои места в оконные переплеты, при этом во внутреннюю створку сдвижное стекло укладывают изнутри, а в наружную — снаружи. Вставленные стекла проверяют на легкость перемещения вверх-вниз (при скольжении по полоскам из линолеума и нижнему стеклу они не должны заклинивать и утыкаться углами в переплет).Удостоверившись, что все в порядке, крепим на свое место обрезанные штапики. Последние к стеклу прижимают так, чтобы они позволяли сдвижному стеклу перемещаться при небольшом усилии (рис. 2). В верхней части сдвижных стекол устанавливают ручки (рис. 3). Крепят ручку на стекло-форточку следующим образом. В щель, образовавшуюся в ручке при ее изгибе из металлической полоски, подкладывают тонкую резинку и с усилием надвигают ручку на верхний край стекла. Размер «М» щели зависит как от толщины стекла, так и от толщины используемой резины, но резину выбирают не толще 1 мм. Соответственно под ручку в верхнем штапике и в верхнем бруске створки делают выборку, что позволяет полностью поднять сдвижные стекла вверх. Повторяем, требуется, чтобы сдвижные стекла перемещались от нижнего («открыто») до верхнего («закрыто») положения с небольшим усилием. В верхнем крайнем положении край сдвижного стекла должен заходить под верхний штапик, надежно изолируя тем самым внутреннее помещение от внешней среды. Описанная конструкция форточки позволяет регулировать не только расход воздуха, но и направление его потока, что осуществляется установкой верхних срезов наружного и внутреннего сдвижных стекол на различной высоте. Автор М. Вевиоровский Журнал "Сделай сам" №2-98г. |
villavsele.ru



















