Содержание
Из чего сделать дымоход для твердотопливного котла
Содержание
- Дымоходы для твердотопливных котлов своими руками: как правильно рассчитать
- Содержание
- Как сделать дымоход для твердотопливного котла эффективным
- Как рассчитать дымоход для котла
- Дымоход из кирпича для твердотопливного котла своими руками
- Что выгоднее: сделать самому или заказать
- Конструкция дымохода для твердотопливного котла
- Правила монтажа дымохода
- Требования к дымоходу
- Кирпичный дымоход для твердотопливного котла
- Стальной дымоход
- Дымоход из сэндвич-панелей
- Керамический дымоход
- Дымоход из стекла
- Устройство дымохода твердотопливного котла
- Особенности конструкции
- Материалы изготовления
- Самостоятельное изготовление и монтаж
Дымоходы для твердотопливных котлов своими руками: как правильно рассчитать
План строительства частного дома или дачи всегда содержит в себе необходимость монтажа отопительной системы.
В настоящее время популярными являются твердотопливные котлы. Одной из составляющих, обеспечивающих безопасность и удобство их эксплуатации, является дымоход. Разобравшись в том, как в соответствии со всеми правилами сделать дымоход для твердотопливного котла, можно приступить к выполнению этой работы самостоятельно.
Содержание
- Как сделать дымоход для твердотопливного котла эффективным
- Как рассчитать дымоход для котла
- Дымоход из кирпича для твердотопливного котла своими руками
Подключенный к котлу дымоход: его основание
Основу конструкции могут составлять различные материалы, отличающиеся огнеупорностью, такие как:
- Кирпич. Огнеупорные виды материала выдерживают температуру до 900 градусов, но, поскольку прогрев стенок при этом происходит в течение продолжительного времени, формировать дымоход для твердотопливного котла с малым КПД не рекомендуется.
Дымоход из кирпича придется время от времени восстанавливать, поскольку образуемый в процессе пар может способствовать появлению трещин в конструкции.
- Металл. Часто встречаются дымоходы для котла отопления из нержавеющей и черной стали. По сравнению с предыдущим вариантом такие дымоходы могут работать при чуть меньшей температуре — до 800 градусов, однако они более устойчивы к конденсату.
Металлический дымоход для твёрдотопливного котла
Совет: При выборе марки стали для дымохода для котла на твердом топливе стоит обратить внимание на марки 316 и 316L, а также 321.
- Керамика. Является наиболее предпочтительным вариантом, поскольку такой материал не деформируется и не меняет свои свойства при очень большой температуре, образовании конденсата и при воздействии погодных явлений. Кроме того, температурная устойчивость керамики выше, чем температура горения сажи, что делает подобный дымоход для твердотопливного котла наиболее безопасным.
- Стекло. Из-за достаточно высокой стоимости монтажа и трудоемкой установки является не слишком популярным. Однако такой дымоход для котла способен привлечь внимание необычным дизайном и позволить забыть о коррозии.

Рекомендуем изучить материал о дымоходе для газового котла в частном доме или квартире.
Кирпич является наиболее подходящим вариантом возведения дымохода для твердотопливного котла своими руками
Как сделать дымоход для твердотопливного котла эффективным
Соблюдение основных правил должно быть учтено еще на стадии составления плана работ и чертежей. Это позволит выделить основные правила установки:
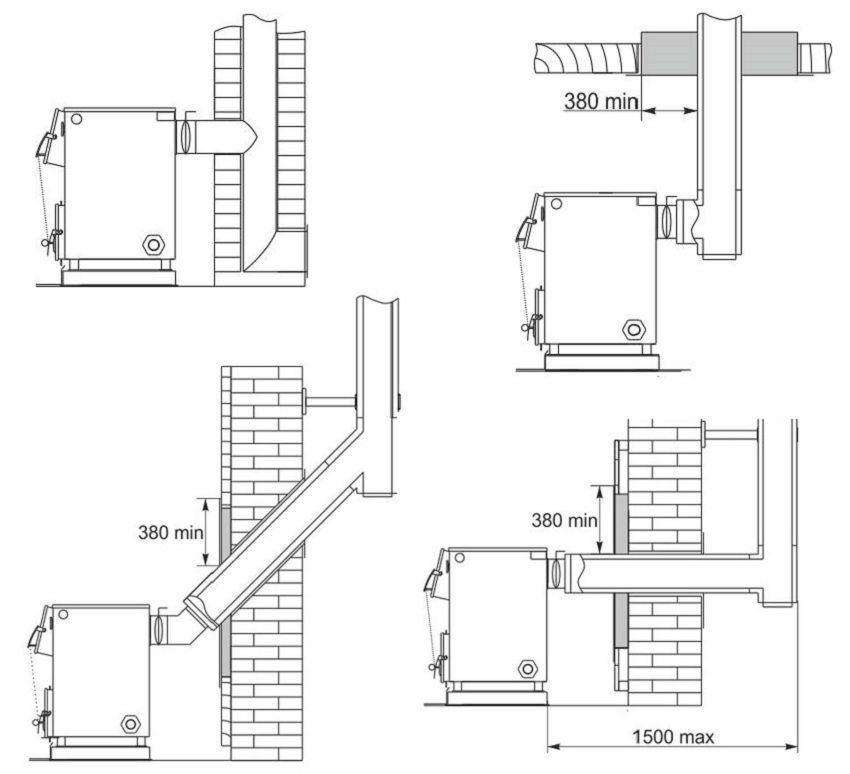
- Необходимо учесть все противопожарные требования. Так, расположение дымохода для котла стоит выбирать исходя из оптимального расстояния от поверхности до легковоспламеняющихся материалов — 38 см. А все перекрытия нужно обложить изоляцией.
- Важно обеспечить должный уровень тяги, которая будет выводить продукты горения. Обеспечить это можно только создав возвышающуюся над уровнем крыши трубу.
Совет: Для плоской крыши выступающая наружу часть дымохода делается высотой в 1 м. А для неровной — 0,5 м над уровнем конька.
- Нужно создать достаточно толстые стенки дымохода для твердотопливного котла.

Толщина каждой стены дымохода из кирпича должна быть равна не менее 10 см
- При возведении стоит контролировать не только плотность прилегания материалов, но и правильность их расположения. Так важным параметром является площадь внутреннего сечения, которая должна оставаться одинаковой. В ином случае продукты горения будут проходить плохо, и дымоход для котла будет работать неправильно.
- Нужно обеспечить вертикальность конструкции. Горизонтальные участки допускаются, но их длина не должна превышать 1 м, а наклон — 30 градусов.
- При работе дымохода из любого материала будут образовываться конденсат, а также продукты горения — мусор и сажа, поэтому в чертеже должна быть предусмотрена возможность без труда удалять лишние материалы из трубы.
Прочитайте так же про недостатки дымохода из асбестовой трубы и найдите ответы на интересующие вопросы.
Как рассчитать дымоход для котла
Поскольку уже было выяснено, что высота дымохода является одним из важнейших параметров, стоит обратить особое внимание на то, чтобы были соблюдены рекомендации по выбору этого параметра :
Если высота дымохода котла все же была выбрана неправильно, и тяга не производится должным образом, можно обеспечить конструкцию специальным дымососом.
Дымоход из кирпича для твердотопливного котла своими руками
Само по себе возведение трубы не представляет сложности, особенно для тех, кто уже имел опыт работы с подобным материалом. Однако при строительстве важно учесть некоторые особенности, которые позволят создать надежную и долговечную конструкцию. Она максимально эффективно будет справляться с воздействием конденсата и осадков.
Важно: Кирпичный дымоход для котла может быть установлен только в процессе строительства дома, так как такая труба будет иметь немалый вес и потребует в своей основе прочный фундамент.
- Высота фундамента должна составлять показатель от 30 см, а ширина выбираться исходя из ширины самой конструкции: фундамент должен превышать ее на 15-50 см с каждой стороны.
Если дымоход для котла станет частью внешней стены, фундамент также должен выходить и являться нижним уровнем фундамента стены.
- Для выкладки необходимо использовать огнеупорный кирпич М75 или М50. Для их закрепления подойдет цементный раствор или смесь цемента и известки.
Качественный дымоход можно получить, выполняя кладку с перевязкой: обеспечивая перекрытие швов предыдущего ряда следующим. - При возведении нужно обрабатывать внутреннюю поверхность и избавлять ее от шероховатостей.
- Закончить верхнюю часть дымохода для котла лучше оголовком, выступающим на 10 см за пределы кирпичной основы.
Под оголовок можно добавить вентиляционные отверстия, которые предотвратят задувание воздуха. Их необходимо расположить на двух противоположных стенках или с каждой стороны.
Соблюдение этих принципов позволит создать дымоход для твердотопливного котла самостоятельно, будь это прямая труба через крышу или уходящая в стену. Каждый из способов оформления имеет свои плюсы:
- Дымоход, проходящий через чердак или кровлю, будет отдавать тепло всем помещениям, через которые проходит, поэтому подходит для двух и более этажных строений. Помимо этого, он прост в возведении.
- Дымоход, проходящий через стену, компактен и более безопасен по сравнению с обычным.

Совет: Во внутреннюю часть кирпичного дымохода для котла можно добавить металлическую трубу, которая будет защищать стены от сажи.
Таким образом, кирпичные дымоходы для котлов являются самыми оптимальными, если сравниваются сложность, стоимость и надежность возведения. Поэтому, изучив всю необходимую информацию, можно приобретать материалы и начинать возводить дымоход своими руками.
Закончили установку твердотопливного котла? Значит, самое время приступать к сооружению системы дымоудаления. И как всегда, у прекрасных мастеров на все руки есть выбор: заказать полностью в сторонней фирме или приложить к этому свои руки. Если вы выбираете второй вариант, то наша статья станет отличным помощником в вашем начинании.
Что выгоднее: сделать самому или заказать
Монтаж дымохода своими руками
И тут подкрадывается дилемма: с одной стороны твердотопливный (ТТ) котел очень похож на обычную печку. И уж дымоход для него получится сделать. Именно так думают многие владельцы котлов.
Однако будет заблуждением считать, что это дело будет простым: тут важны грамотные расчеты, продуманная конструкция и качественный монтаж, ведь от этого зависят жизни и здоровье всех членов вашей семьи. Ошибки в конструкции, неплотная стыковка – все это может привести к попаданию угарного газа внутрь помещения. А это уже очень опасно!
Поэтому, если у вас нет профессиональных навыков печника, то за работу лучше не браться. А если вы уверены в своих силах, или конструкция дымохода не очень сложная, то смело беритесь за дело.
Расчеты дымохода лучше заказать в строительной фирме, где вам все сделают правильно!
Конструкция дымохода для твердотопливного котла
Неважно какой материал вы предпочтете для обустройства системы дымоудаления. Все дымоходы для ТТ котлов имеют схожу. Конструкцию, которая включает в себя следующие части:
- Труба или дымоход – это участи круглой или прямоугольной формы, по которым и происходит движение продуктов горения от котла во внешнюю среду.
Материал трубы должен быть прочным и термостойким, чтобы выдерживать высокую температуру отходящих газов. - Узел для сбора конденсата – необходимый элемент дымохода. Всем известный закон физики: когда горячий воздух контактирует с холодным предметом, образуются мелкие частички влаги – конденсат. Они оседают на стенках поверхности. Сборник конденсата, как вы поняли, и служит для удаления излишков влаги из системы. Образуется он в верхней части системы дымоудаления и может стекать низ, рискуя попасть внутрь котла. Поэтому сборник и монтируют в нижней части дымохода. Таким образом котел и дымоход не контактируют напрямую, а подключаются друг к другу через специальный тройник.
- Шибер – это специальная заслонка, которой можно перекрыть доступ воздуха из котла в систему. Она закрывается, когда котел не работает, чтобы тепло не улетучилось в трубу.
- Отверстие для ревизии – оно расположено сразу поверх сборника для конденсата.
Именно через него и происходит удаление влаги из системы.
Это общая конструкция дымохода. Конечно она может изменяться в зависимости от материала. Например, у дымохода из стали предусмотрен компенсатор линейнойдеформации – это узел, сохраняющий прочность конструкции и ее герметичность. Дело в том, что при регулярном нагревании/охлаждении дымоход из стали может «гулять», нарушая плотность стыковки.
Правила монтажа дымохода
- Пожаробезопасность. Это первое и главное, что нужно обеспечить при строительстве системы. Обязательна минимальная дистанция 38 см между стенками дымохода и всеми поверхностями. Если вы выбрали внутренний тип дымохода, то позаботьтесь о качественной изоляции при прохождении частей дымохода через внутренние перекрытия.
- Толщина стенок. Она должна быть от 10 см и более вместе с изоляцией.
- Высота. Очень важный параметр, от которого напрямую зависит тяга в системе, эффективность удаления газов.
Поэтому длина должна быть такова, чтобы высшая точка дымохода возвышалась над крышей на 1 метр.
Рассчитать высоту вам поможет эта таблица :
Таблица расчета диаметра дымохода
- Строгий расчет площади внутреннего сечения. Значение этой характеристики должно быть постоянным по всей длине дымохода. В противном случае это снижает КПД работы дымохода.
- Запрещается наличие горизонтальных участков длиной более 1 метра.
- Обязательно наличие сборника конденсата, дверок для техобслуживания конструкции в дымоходе из любого материала.
Требования к дымоходу
Рекомендуем вам перед тем, как приступать к сооружению дымохода, внимательно ознакомиться с инструкцией по эксплуатации вашего котла. В ней должны быть указаны четкие требования к дымоходу, который подходит для конкретной модели. Если вы не нашли такой информации, то можете сделать дымоход из того материала, который вам пришелся больше по душе.
Но обязательно соблюдение следующих требований:
Конструкция должна быть вертикальна – это способствует эффективному удалению газа.
Площадь поперечного сечения трубы обязательно должна быть больше или равной площади поперечного сечения отводящего патрубка котла. Меньше – ни в коем случае!
Монтаж оголовка (дефлектора) – обязателен. Если ваша крыша изготовлена из легковоспламеняющегося материала, то обязательна и установка искрогасителя.
Тщательно выбирайте место для монтажа оголовника. Устанавливается он в зоне ветрового подпора. Как ее найти? Зрительно поищите самую близкую к вершине дымохода точку (конек крыши, дерево и т.д.). Мысленно проведите от этой точки к горизонту линию под углом 45º. Оголовок следует разместить выше этой линии.
Сборка дымохода довольна проста: один элемент просто вставляется в другой. Однако различают 2 способа такого монтажа:
— по конденсату – при таком способе детали вставляются друг в друга, исходя из направления стекания конденсата по трубе.
Этот вариант используется в том случае, если в конструкции дымохода нет сборник конденсата. Если же он есть, то часть дымохода от котла до сборника конструируется «по конденсату», а остальная – «по дыму».
— по дыму – как вы уже наверное поняли, при таком варианте элементы монтируются по направлению движения продуктов горения.
Не секрет, что именно от силы тяги зависит скорость отвода и выброса горячих газов в окружающую среду. Сила тяги является технической характеристикой самого дымохода, которая показывает КПД его работы.
На силу тяги влияют такие параметры дымохода как его диаметр, высота, размер поперечного сечения.
— если самую верхнюю часть дымохода сделать Уже, тогда дым будет быстрее выходить из трубы, что является плюсом.
— Максимальная вертикальность, то есть малое количество ответвлений и горизонтальных, наклонных участков, это усилит тягу.
Как определить эффективность работы дымохода?
Низкий КПД – он возможен из-за неграмотной конструкции системы, а также из-за неплотной стыковки элементов.
Обычно такое замечается уже на этапе сборки, так что все можно вовремя исправить. В противном случае вам придется разбирать уже собранный дымоход и монтировать заново.
Высокий КПД – в таком случае во время работы котла наблюдается слышное гудение в трубах. Вы можете использовать шибер, который может частично перекрыть трубу, отрегулировав таким образом интенсивность удаления газов.
Кирпичный дымоход для твердотопливного котла
Кладка кирпичного дымохода по частям
Дымоход из этого материала – классика жанра. Именно из кирпича издревле сооружали систему удаления газов, поэтому нет ничего удивительного в том, что она до сих пор актуальна. Конечно дымоход твердотопливного котла имеет более сложную конструкцию с разным количеством каналов внутри. Если вы хотите соорудить не только дымоход для котла, но самостоятельно сделать твердотопливный котел. то вам поможет наша статья.
Кирпичный дымоход подходит только для высокоэффективных котлов с большим КПД.
Дело в том, что стенки его нагреваются очень медленно из-за своей толщины и свойств, а значит, отвод газа у котла с низким КПД будет очень слабым.
высокая термоустойчивость – дымоходы из кирпича способны выдерживать даже движение газов с температурой до 900ºС.
Довольно быстрое разрушение – на внутренней поверхности стенок образуется сажа и конденсат, что приводит к образованию сколов и трещин в материале. Решается это проблема таким способом: внутри кирпичной трубы прокладывается стальная.
- Вы должны четко понимать суть всех процессов, а также отлично знать схему укладки кирпича. Насадная труба сооружается вперевязку, при этом обязательно соблюдать схему кладки. Высота этой части – не доходить до потолка 5-7 рядов кирпича.
- После этого приступаем к сооружению распушки. Она представляет собой увеличение внешнего периметра трубы при таком же внутреннем периметре. Эта часть неотъемлема, так как именно она является теплоизоляцией системы.
- На количество рядов кирпича в части распушки влияет толщина перекрытия между этажами.
Но после того как вы пробились на верхний этаж, распушка должна возвышаться над полом минимум на 1-2 ряда кирпича. - Теперь приступаем к сооружению стояка. Он идет через верхний этаж и расширяется при приближении к внутренней части крыши на 0,5 кирпича. Эта более широкая часть – «выдра», которая комплектуется из 8-9 рядов.
- «Выдра» не только термоизолирует канал удаления дыма, идущий от стропил. Также она не позволяет погодным осадкам и мусору проникать внутрь помещения.
- Финальный штрих сооружения «выдры» — пологий цементный скат, который переходит в шейку трубы. Габариты стояка и шейки идентичны.
- На шейку затрачивается около 6-7 рядов кирпичной кладки. После этого приступайте к сооружению оголовка – на него уйдет около 2-3 рядов.
- Не забудьте про установку защитного колпака – от мусора, дождя.
Стальной дымоход
Вам на выбор предоставляется дымоход из обычной или нержавеющей стали. Как вы понимаете, последняя пользуется все большей популярностью, так как срок службы дымохода из обычной стали – не более 3-5 лет.
- высокая термоустойчивость – они могут выдерживать температуру от 500ºС до 700ºС.
- стойкость к образованию конденсата – а это, в свою очередь, обеспечивает надежность и долговечность самой системы. 316, 316L, 321 – марки нержавеющей стали, которая подходит в качестве материала для дымохода твердотопливного котла.
- доступная цена – еще один немаловажный плюс, который привлекает к себе внимание.
- возможность корректировки конструкции дымохода – в отличие от стеклянного или кирпичного, в устройство этого вы вполне можете добавить нужные детали, например, шибер, если забыли про него при первоначальном варианте.
Дымоход из сэндвич-панелей
Неплохой вариант для сооружения дымохода. В последние года начал получать все большую популярность, особенно для дымохода, который проходит снаружи.
Однако, как и все, имеет свои преимущества и недостатки.
- Не нуждается в теплоизоляции – конструкция таких панелей уже предусматривает наличие утепляющего материала, а также жаропрочной прослойки.
- Простая сборка и компактные габариты .
- Конденсат не образуется при использовании этих труб .
- Высокий КПД – благодаря очень гладкой внутренней поверхности образуется турбулентность, что позволяет быстро выводить продукты горения. Кроме того, гладкая поверхность не позволяет оседать на ней саже.
- Высокая пожарная безопасность .
- Высокая цена.
- Недолгий срок службы – в среднем он составляет 10-15 лет.
- С течением времени плотность соединения теряется.
Однако преимущества все-таки перевешивают недостатки, поэтому сэндвич-панели заняли свое место в этой нише.
Керамический дымоход
Керамический дымоход: внутреннее устройство
Благодаря особенностям конструкции он является идеальным вариантом для котлов длительного горения.
Состоит из 3 слоев:
— внутренний – это непосредственно сама труба из керамики;
— средний – утеплитель (минеральная вата). Этот слой отличается стойкостью к возгоранию.
— внешний – это облицовочный каркас, который выкладывается з огнестойкого кирпича.
- Устойчив к высоким температурам до 850-900 ˚С.
- Сажа не оседает на внутренней поверхности дымохода из-за зеркальной гладкости.
- Конденсат не будет образовываться и оседать на стенках.
- Невосприимчив к воздействию влаги – значит никакой ржавчины не будет образовываться.
- Подойдет для котла на любом топливе .
- Простой монтаж .
- Хорошая герметичность – это обусловлено тем, что составные детали имеют мало швов.
- Высокая прочность материала – газ не сможет проникнуть за пределы трубы.
- Долгий срок службы – он составляет порядка 30 с лишним лет.

Дымоход из стекла
Об этом материале стоит упомянуть отдельно. Стеклянные дымоходы только начали выходить на российский рынок.
К плюсам можно отнести высокую жаростойкость, надежность и долгий срок службы, а также оригинальный внешний вид такого изделия.
Минус один, но очень существенный – материал, как и монтаж такого дымохода влетит вам в копеечку.
Устройство дымохода твердотопливного котла
Дымоход для твердотопливного котла требуется для отвода газообразных продуктов сгорания. Он же отвечает за приток к горелке кислорода, без которого горение невозможно (коаксиальные).
Существуют разные конструкции этой системы. Выбор зависит и от типа котла, и от планировки дома. Каким должен быть дымоход для твердотопливного котла?
Особенности конструкции
Главный параметр труб для котлов на твердом топливе – тяга. Характеризуется скоростью перемещения газов: СО2 и водяные пары наружу, свежий воздух – внутрь.
Движение происходит за счет перепада температур и давлений на разных концах отводящего канала.
На скорость влияют геометрия трубы дымовой для твердотопливного котла, длина дымохода для твердотопливного котла, сечение трубы. Число перегибов должно быть минимальным, большая часть канала ориентирована по вертикали, протяженность горизонтальных и диагональных участков – до метра, угол наклона – 30 градусов.
Оптимальный вариант устройства отопительной системы. под сам агрегат выделено отдельное помещение, из него дымоход для котла на твердом топливе выходит прямо наружу, через чердак на крышу.
Внутрь трубы перпендикулярно ее оси помещают заслонку, которой можно регулировать силу тяги. Признаки плохой вытяжки – газы и воздух по трубе перемещаются шумно, угарный газ проникает в дом.
Оптимальная высота дымохода для твердотопливного котла – 5 метров. Если этажей больше одного, труба длиннее. Короче – ни при каких обстоятельствах. Наружная часть должна выступать над коньком минимум на полметра, над плоской кровлей – на метр.
Важное требование к дымоходам для твердотопливных котлов: сечение трубы для дымохода для твердотопливного котла – круглое или овальное, размер одинаков по всей длине. Стенки гладкие, иначе будут возникать дополнительные препятствия для перемещения газов.
При наличии углов в потоке образуются завихрения, внутри скапливается нагар. Это не только ухудшает тягу, но и способствует засорам.
Размер сечения должен соответствовать диаметру отводящего патрубка самого котла.
Материалы изготовления
Какой лучше дымоход для твердотопливного котла? Температура эксплуатации – 180-500 градусов, есть непосредственный контакт с пламенем. Материал трубы должен быть огнестойким, термоустойчивым.
Читайте также: Как сделать обвязку котла на твердом топливе
Из чего сделать дымоход для твердотопливного котла:
Асбоцементная труба – не лучший вариант: материал не горючий, но были случаи, когда асбоцементные дымоходы лопались вследствие перегрева.
Труба не гнется, выполнить ей криволинейные участки нельзя. Практически невозможно сделать герметичные стыки.
Стенки впитывают конденсат, что приводит к их быстрому износу. Большая масса. Плюс только один – дешевизна.
Кирпичный дымоход для твердотопливного котла выкладывается из шамотного кирпича. Огнестойкость, термостойкость, можно не опасаться разрывов и потери герметичности.
Минус: большой вес, устройство дымохода для котла на твердом топливе требует монтажа дополнительного фундамента. Второе: кирпичом невозможно выложить гладкую округлую внутреннюю стенку. Тяга в кирпичной трубе неидеальна, скапливается сажа. Конденсат не может стекать свободно, часть остается на кирпичах и разрушает их.
Металлические трубы дороже других, менее долговечны. Еще один их минус – металл проводит тепло. Дымоход для твердотопливного котла из нержавеющей стали требует продуманной теплоизоляции: она будет предотвращать теплопотери и защитит от возгорания материалы, окружающие трубу.
Для изготовления используется жаростойкая (до 450 градусов) сталь от миллиметра и больше, устойчивая к воздействию сернистого конденсата. Весят эти трубы мало по сравнению с аналогами. Материал пластичный, схема дымохода для твердотопливных котлов может быть любой. Марки сплавов для изготовления печных труб – 316L и 321.
Есть три основных подвида труб из металла: одностенные, двухстенные-сэндвичи (с прослойкой из жаропрочного теплоизолятора), коаксиальные – труба в трубе: по внутренней подводится воздух снаружи, по внешней отводится дым. Коаксиальными дымоходами комплектуются котлы с закрытой топкой.
Комбинированная конструкция кирпич-металл. Внутренняя труба металлическая одностенная, круглая и гладкая, снаружи кирпичная рубашка. Так получается избавиться от основных недостатков двух предыдущих типов: у внутренней трубы идеальная тяга, рубашка служит теплоизолятором.
Минусы – большой вес, сложный монтаж, дороговизна. Кирпичный или комбинированный дымоход для котла на твердом топливе своими руками выкладывают полнотелым кирпичом, фиксация – цементно-песчаным раствором.
Толщина стенки – от 12 сантиметров.
Читайте также: О котлах отопления для частного дома на твердом топливе
Керамика – самый долговечный, но дорогой вариант. Внутренняя поверхность гладкая. Термостойкость до 650°, химическая устойчивость самая высокая. Во избежание впитывания конденсата нужна качественная вентиляция внешней стенки. Дымоход модульный, собирается из отрезков в пределах метра.
Отрезки соединяют фасонными деталями, склеивают термостойкой мастикой. Керамическую внутреннюю трубу убирают в рубашку из бетона с вентканалами. Керамическим трубам необходимо армирование как минимум на отрезке, выступающем над крышей. Утепление и изоляция трубы от горючих материалов выполняются негорючим теплоизолятором – базальтовой ватой.
Огнеупорное стекло. Недавнее изобретение, пока еще малораспространенное. По техническим качествам превосходит аналоги. Минусы – самая высокая цена и самый сложный монтаж.
Самостоятельное изготовление и монтаж
Устройство дымохода твердотопливного котла обойдется дорого.
Однако во многих случаях установку трубы (а иногда и изготовление) можно осуществить самостоятельно. Как сделать дымоход для твердотопливного котла своими руками?
При составлении схемы дымохода для твердотопливного котла следует исключить соприкосновение с коммуникациями – электропроводкой. газовыми трубами и т.д.
При проходке через перекрытия или кровлю расстояние от трубы до материалов перекрытия – 15 см при наличии изоляции, 30 – если ее нет. Расстояние от дымохода до легковоспламеняющихся материалов по всей протяженности трубы – 0,4 метра.
- дымоход монтируют снизу вверх;
- фасонные элементы – отводы, тройники – нужно крепить металлическими хомутами. Расположение соединительных деталей – вне перекрытий;
- тройники крепят кронштейнами;
- фиксация трубы к стенам – с шагом 2 метра;
- т.к. многие материалы деформируются под действием температур, переходник от котла к дымоходу должен быть из гибкого материала, а соединение трубы и кронштейна – не слишком жестким;
- верхний обрез трубы необходимо закрыть от осадков защитным козырьком;
- если кровельные материалы горючие, непосредственно под козырьком монтируют искрогаситель (обносят трубу по периметру сеткой с ячейкой 5 на 5 мм).

Видео о расчете дымохода для твердотопливного котла.
Как вам статья?
Как сделать дымоход для твердотопливного котла своими руками?
Если в многоквартирных домах отопление осуществляется централизовано, то в частном доме хозяину самому приходится заботиться о том, чтобы в нем было тепло. Возникает вопрос, как правильно подключить твердотопливный котел и как самостоятельно сделать дымоход.
Кладка дымохода из кирпича.
Чаще всего для отопления частного дома в качестве топлива используют дрова или уголь, поэтому многие люди принимают решение установить угольный котел своими руками.
Для твердотопливного котла дымоотвод может быть выполнен из разных материалов: кирпич, металл или керамика. Делать выбор материала для изготовления дымохода в каждом случае надо индивидуально, многое зависит от типа используемого котла, а также от предпочтений и финансовых возможностей хозяев.
Содержание
- Дымопровод из кирпича для твердотопливного котла своими руками
- Керамический дымоход
- Особенности дымохода из стали
- Особенности установки дымохода
Дымопровод из кирпича для твердотопливного котла своими руками
Наиболее распространенным и привычным является дымоход из кирпича.
Такая конструкция имеет отличную стойкость к высоким температурам и может использовать для отвода газов как в печах, так и от твердотопливного котла.
Данная конструкция имеет большой вес, поэтому ее необходимо устанавливать только на надежный фундамент. Выполнять кладку необходимо герметично и если у вас нет таких навыков, то лучше всего для выполнения указанного этапа работ пригласить специалиста.
Подключение твердотопливного котла своими руками к дымоходу несложная задача и ее может выполнить любой домашний мастер.
Устройство дымохода.
Особенности строительства дымоотвода из кирпича заключаются в том, что его внутренняя поверхность получается шероховатой и на ней со временем накапливается сажа.
То, что конструкция имеет прямоугольную форму и негладкую внутреннюю поверхность, значительно затрудняет проводить ее чистку.
Если у вас твердотопливный котел, то дымоход из кирпича будет служить долго, так как температура газов будет высокой, а это не дает возможности для образования конденсата и кирпич не разрушается.
Если у вас автоматический угольный котел или пиролизный котел, то они работают длительное время при медленном горении топлива, поэтому температура отходящих газов невысокая, а это приводит к быстрому разрушению кирпичной кладки.
В газах, что выделяются в процессе горения, есть большое количество серы, она соединяется с конденсатом, в результате чего получается серная кислота, которая и разрушает конструкцию. Признаками того, что идет активное разрушение кирпичной кладки, являются темные пятна, которые проявляются на ее внешней поверхности.
Вернуться к оглавлению
Керамический дымоход
Если возникает вопрос, как правильно подключить котел своими руками к дымоотводу, то оптимальным решением будет использование керамического дымоотвода.
Керамика устойчива к действию различных химических элементов, поэтому срок службы такого дымопровода самый большой. Чтобы понять, как правильно подключить такую конструкцию, необходимо знать, что есть разные керамические трубы, они используются в зависимости от температуры отходящих газов:
Схема установки сендвич дымохода.
- Если установлен твердотопливное оборудование, то необходимо использовать трубы, которые не повреждается при кратковременном возгорании сажи и могут работать в диапазоне 600-650°С. Такие дымоотводы должны работать без конденсата, то есть в сухом состоянии.
- Для котлов, которые функционируют на жидком топливе, конструкция из керамики будет работать в мокром состоянии, поэтому в ней должен быть конденсатоотводчик. Температура газов будет не более 400-450°С.
То, что дымоходы из керамики имеют цилиндрическую гладкую поверхность, значительно облегчает процесс их чистки. Такие трубы обычно помещают внутри канала, выполненного из кирпича или блоков.
Для того чтобы защитить окружающие предметы от действия высокой температуры, конструкцию необходимо покрыть утеплителем, обычно это минеральная вата. Это также позволяет уменьшить образование конденсата и значительно снизить естественную тягу в трубе.
Существуют керамические трубы, что находятся в специальной металлической оболочке. Для них не надо строить дополнительные конструкции, а можно сразу приступать к монтажу.
Вернуться к оглавлению
Особенности дымохода из стали
Для котлов, работающих на твердом топливе, используют металлические трубы, сделанные из стали, выдерживающей высокие температуры. Их толщина не менее 1 мм. Если используется котел, работающий на газе, то труба может быть сделана из нержавеющей стали. При этом толщина ее стенки может быть всего 0,5 мм.
Преимуществом стального дымоотвода является простота его установки, небольшой вес и простота ремонта, но он довольно дорого стоит.
Часто такой вариант применяют для реконструкции кирпичного дымохода, в таком случае стальная труба вставляется в уже существующую конструкцию.
https://1popechi.ru/youtu.be/5qLrAhOehf4
Дымоход из металлической трубы выполнен в виде сэндвич-конструкции. Внутри находится труба для отвода газов, а снаружи защитный корпус, между ними — теплоизоляция.
Вернуться к оглавлению
Особенности установки дымохода
Как правильно подключить дымопровод для твердотопливного котла своими руками? Параметры для выбора трубы:
- ориентируются на температуру отходящих газов;
- давление газов, так как котлы могут работать при естественной тяге или с наддувом;
- от присутствия конденсата будет зависеть наличие или отсутствие в трубе конденсатосборника и конденсатоотводчика;
- по стойкости к коррозии;
- по стойкости к возгоранию сажи, так как в этот момент температура может достигать до 1000°С.
Если у вас обычное твердотопливное оборудование, то вполне достаточно кирпичной трубы. Если будет возможность перейти на газ, то внутрь вставляют стальную трубу.
Для современных котлов на газе или твердом топливе, которые работают длительное время в медленном режиме горения, больше всего подойдет керамический дымоход.
https://1popechi.ru/youtu.be/rep3bmz6z0M
Стальная конструкция лучше всего подходит для реконструкции существующего дымохода.
Твердотопливный котел своими руками
Безусловно, вопрос выбора вида отопления для частного дома будет актуален всегда. Один из хорошо зарекомендовавших себя способов – отопление с помощью твердотопливного котла. По сути, котел представляет собой теплогенератор из чугуна или стали. Тепловая энергия для отопления получается за счет сжигания топлива. В качестве него могут использоваться дрова, уголь, торф или пеллеты. Последние представляют собой топливные капсулы. Мы расскажем обо всех тонкостях и нюансах, как сделать твердотопливный котел своими руками.
Типы твердотопливных котлов
В зависимости от используемого топлива агрегаты различают:
- Зависит от энергии.
- Энергонезависимый.
Топливом для энергозависимых котлов являются пеллеты. При этом такие теплогенераторы оснащаются электрическим поддоменом, благодаря которому происходит нагрев воздуха.
Энергонезависимыми считаются чугунные котлы, топливом для которых является уголь, дрова и торф.
Котлы могут устанавливаться как в горизонтальном, так и в вертикальном положении. Иногда их используют как плиту, а не только для отопления. При этом теплообменник следует располагать только вертикально.
Котлы допускается монтировать на стену горизонтально, но это рекомендуется делать только в том случае, если помещение имеет небольшие размеры. В таком виде он применим только как отопительный прибор.
По принципу работы различают:
- традиционный
- установки длительного горения,
- теплогенераторы.
Последняя функция на топливных гранулах.
Твердотопливные котлы чугун:
Схема твердотопливного котла:
Для увеличения КПД котла есть три пути:
- Использование энергии дымовых газов для дополнительного обогрева помещения.
- Установка насоса, позволяющего переключать с естественной на принудительную циркуляцию теплоносителя.

- Использование энергии газов для нагрева воды.
Технические характеристики
Дровяные котлы
Агрегаты, топливом для которых являются дрова, чаще всего кладут в баню. Эти преимущества включают следующее:
- Простота обслуживания.
- Это одно из самых доступных видов топлива для котла. Ведь дрова можно найти практически везде.
Из недостатков стоит отметить следующие:
- Теплопроводность дров менее 5 тыс. ккал/кг, что относительно немного.
- Они довольно быстро горят и при этом выделяют большое количество компонентов догорания.
- Этот вид топлива имеет небольшой КПД.
- Высокие затраты на доставку импортного топлива в отдаленные регионы.
Этот тип котла также подходит для установки на даче или для обогрева сезонного сельскохозяйственного помещения. Так как зимой эти строения обычно не отапливаются, удельная мощность и КПД котла не имеют значения.
Уголь
Сегодня для изготовления таких котлов используются самые современные технологии и материалы. Их конструкция обычно представляет собой комбинацию рубашечного агрегата с водотрубным. К преимуществам угля как топлива можно отнести:
- Высокая теплопроводность.
- Уголь можно доставить куда угодно. Нужна только дорога.
- Высокая эффективность. При улавливании и воспламенении летучих веществ, выделяющихся в процессе горения, этот показатель может достигать 85 %.
- Относительно низкая цена, которая со временем все же снижается.
- Качественные угольные котлы с одной загрузки обычно обеспечивают отвод тепла до двадцати суток. За сезон может хватить одного розжига. Разрешается лишь периодически сливать топливо.
- Такой котел не требует постоянного присмотра. Хозяин может даже отсутствовать достаточно долго.
- Автоматика угольных агрегатов не требует электропитания.
Гранулы
Преимущества:
- Пеллеты разрешено сжигать в печи в качестве дров.

- Низкая стоимость. Цена 1 ккал отопления таким способом будет ниже газового.
- Высокая эффективность при использовании специальной горелки.
- Power легко и гибко, ведь топливо можно подавать на горелку по одной грануле.
Недостатки:
- При сжигании в печи образуется много золы.
- Низкая теплопроводность.
- Это топливо можно хранить только в сухом помещении, т.к. Пеллеты обладают свойством не впитывать влагу воздуха.
- Продажа и доставка этого вида топлива пока находятся в зачаточном состоянии.
- РАСПРЕДЕЛЕНИЕ ПЕЛЛЕТНОГО ФИЛЬТА Шланг в горелке. Иногда приходится менять два раза за сезон.
- Такой котел не может работать без электричества, что обычно приводит к размораживанию системы.
Очевидно, что у пеллетных котлов больше недостатков, чем достоинств. Но с развитием промышленности не исключено, что такие агрегаты будут активно использоваться и в дальнейшем.
Твердотопливный котел своими руками (Способ 1)
Котел можно приобрести в магазине или сделать самому.
Второй способ считается более выгодным. Чтобы агрегат был качественным и производительным, необходимо четко следовать инструкции. Для корпуса можно взять старый газовый котел или даже металлическую бочку. В нем необходимо проделать отверстия, через которые будут проходить трубы с нагретой водой, возвращающейся обратно к теплогенератору.
В данном примере будет рассмотрено, как собрать вертикальный твердотопливный агрегат с металлическим корпусом и кирпичным основанием. Его размеры рассчитаны на обогрев сооружения общей площадью 95-100 кв. метров. Теплогенератор представляет собой стандартную систему, состоящую из семи чугунных радиаторов и двухтрубной разводки.
Инструменты и материалы
Для работы потребуются следующие инструменты:
- Болгарская малая мощность.
- Щипцы или Passatia.
- Газорез (сварочный).
- Металлический квадрат.
- Электродрель малой мощности и набор необходимых сверл.
- Строительный уровень.

- Рулетка.
- Маска для защиты лица.
Для изготовления металлического корпуса потребуются следующие материалы:
- Наборы колонов.
- Песок речной (очищенный).
- Кирпич огнеупорный или огнеупорный.
- Двери для двух отделений (варочная и пепельная).
- Требуются также термостойкие листы толщиной 4-5 миллиметров. В противном случае генератор понадобится в будущем.
Для изготовления внутренней части теплообменника необходимо:
- 8 труб круглого профиля 780-800 миллиметров и диаметром 50 миллиметров.
- 4 штуки труб одного профиля длиной 300 миллиметров и диаметром 40 миллиметров.
- 5 штук труб прямоугольного профиля, длиной 300 миллиметров и диаметром 50 миллиметров.
- Одна труба одинакового диаметра 500 миллиметров.
- 2 отрезка труб диаметром 50 миллиметров и длиной 100-150 миллиметров.
- Мелкие металлические детали 60 на 40 миллиметров.
Они нужны для закрытия стыков.
Порядок работы
Твердотопливный котел своими руками: чертежи (пример):
- Для изготовления агрегата сначала нужно взять 4 прямоугольные трубы длиной 30-35 сантиметров. Они станут вертикальной основой теплообменника.
- В трубах, которые будут располагаться сбоку от топки, нужно будет вырезать газовой горелкой четыре отверстия диаметром 50 миллиметров. В итоге должно получиться восемь отверстий.
- Дефекты, которые образовались после проделанной работы, должны быть устранены. Это можно сделать с помощью болгарки.
- В вертикальных основаниях, расположенных в задней части котла, необходимо сделать четыре отверстия диаметром 380-400 миллиметров и четыре более 500 миллиметров со стороны соединения с передними вертикальными опорами. Каждая труба в конечном итоге будет работать на восемь отверстий.
- После этого из прямоугольного стояка длиной 500 миллиметров вырезаются отверстия под трубы.
Через них будет течь использованная вода. - Затем в верхней части задней вертикальной опоры делается отверстие для труб, которые будут служить источником подачи жидкости в систему отопления.
- Для сборки передней части теплообменника необходимо сделать следующее:
- поставить вертикальные основания под углом 90 градусов к поверхности;
- наденьте на них остатки неиспользованной трубы прямоугольного профиля. После этого кипятить;
- соедините конструкцию снизу самой длинной трубкой, имеющей отверстия для вывода воды.
Теперь нужно закрепить заднюю часть теплогенератора.
Далее необходимо соединить переднюю и заднюю части агрегата, поставив в отверстия продольные трубы. Для этой работы вам понадобится помощник, который будет держать трубы, пока вы будете их соединять.
Теперь следует подключить трубы, необходимые для передачи воды в обе стороны, т.е. в систему и обратно. Для этого нужно биться с сегментами круглого профиля.
Стыки прямоугольных труб следует закрыть заранее подготовленными отрезками металла 60 на 40 миллиметров.
Для проверки теплогенератора на прочность можно провести следующее испытание:
- Закройте заглушку на трубе, чтобы перекачать воду.
- Налейте воду в отверстие, которое ведет к системе отопления.
- Если при этом тесте протечек нет, значит, котел можно устанавливать в металлический корпус.
Осталось установить корпус. Для этого выполните следующие действия:
- Из листа жаропрочной стали с помощью болгарки вырезать четыре боковые, две задние и две передние стенки размером 840 на 300 миллиметров.
- Для верхней плиты и нижней вырежьте две плиты размером 450 на 450 миллиметров.
- В передней стенке проделайте два отверстия.
- Вырежьте стальные пластины длиной 800 миллиметров, которые будут играть роль жесткости.
- Перед тем, как произвести монтаж наружных стенок конструкции, между ними и внутренним корпусом необходимо сделать слой в виде песка, который необходимо предварительно прокалить на огне для удаления из него органики.

- Соединение снаружи путем сварки жестких ребер.
- Установить в дверные проемы.
Котел можно считать готовым к эксплуатации.
Изготовление твердотопливного котла своими руками (способ 2)
Твердотопливный котел своими руками: фото
Материалы
Основой теплообменника такого агрегата будет металлический лист толщиной 4-5 миллиметров. Еще в конструкции котла присутствуют следующие позиции:
- Петли для труб диаметром 50 миллиметров.
- Профильная труба размерами 60 на 40 миллиметров.
- Выходной патрубок диаметром 50 миллиметров.
- Труба размером 60 на 40 миллиметров.
- Труба диаметром 35-40 миллиметров.
- Стойки из листового металла толщиной 4-5 миллиметров.
- Перемычка из трубы 60 на 40 миллиметров.
В зависимости от требований к мощности теплообменника его размеры могут быть другими.
Заказ работ
В зависимости от площади дома размеры как теплообменника, так и всей конструкции могут различаться.
Размеры этого котла подходят для дома 90-100 квадратных метров. метров.
Готовый теплообменник устанавливается на кирпичное основание. Размеры агрегата рассчитываются так, чтобы между кирпичом и теплообменником оставался зазор не менее 1-2 сантиметров.
Эта система отопления имеет:
- Шесть чугунных радиаторов стандартного размера.
- Двухтрубная компоновка, выполненная с небольшим уклоном, наружный диаметр которой составляет 25-50 миллиметров.
Правила монтажа:
- Кладка стен котла возводится на бетонном основании, которое должно соответствовать размерам агрегата.
- Установка должна быть размещена так, чтобы все точки теплообменника находились ниже зон выхода воды. Для этого лучше использовать строительный уровень. Разница между этими точками должна быть не менее 10 миллиметров. Благодаря чему можно предотвратить образование воздушной пробки при заполнении всей системы водой. Кроме того, улучшается циркуляция воды.

- Кирпичная кладка должна выполняться по всем правилам, с соблюдением технологии перевязки швов. Стенка такого агрегата должна быть на 3-4 сантиметра выше труб теплообменника. Верхняя часть конструкции закрыта листом чугуна стандартных размеров. Важно, чтобы его можно было легко снять во время работы.
- Дымоход можно сделать кирпичным или металлическим. Монтируется в уже существующий дымовой канал или размещается отдельно.
Твердотопливный котел своими руками (Способ 3)
- В данном агрегате теплообменник монтируется в основном в вертикальной плоскости. Такой котел больше всего подходит для сезонного отопления.
- Дымовая труба может быть установлена непосредственно на блоке или сбоку. Если установлена одна комка, то подходит только второе размещение трубы.
- Основой для теплообменника в данном случае служит пластина толщиной 5-6 миллиметров. Чем толще металл, тем больше времени необходимо топить котел.
- Для увеличения скорости циркуляции воды и повышения эффективности отопления ввод обратки можно сделать перед устройством.
В этом случае к обеим боковым полкам приваривается труба квадратного или прямоугольного профиля. Делать это следует предельно аккуратно. - Для увеличения теплоотдачи котла его боковые полки рекомендуется делать из труб. При этом сверху и снизу к задней пластине следует горизонтально, чтобы быстро отрезать отрезок размером 60 на 40 миллиметров. Между ними нужно вертикально вварить трубу диаметром около 32-40 миллиметров.
- Теплообменник должен быть установлен на прочном бетонном основании. Для него выложена камера кирпичной конфигурации, а над ней расположена специальная решетка.
- Когда теплообменник смонтирован, вокруг него из огнеупорного кирпича нужно сделать кладку стен топливной.
- Далее установите дверку для очистки топлива от образовавшихся отходов и поджогов топлива, а также углубление для загрузки дров или угля.
- Высота дымохода должна быть не менее 5-6 метров от уровня установленной решетки. Его можно установить непосредственно на котле или разместить на фундаменте рядом с агрегатом.
Монтировать трубу следует за один раз с кладкой стен. Это может быть не только кирпич, но и металл или керамика.
Твердотопливные пиролизные котлы своими руками (схематическое изображение):
Твердотопливный котел своими руками: видео
Установка твердотопливного котла в частном доме
- Общие правила установки:
- Как установить твердотопливный котел в частном доме? Процедура
- Стоковая видеозапись
Итак, вы остановили свой выбор на твердотопливном котле. Теперь предстоит ответственный и серьезный этап – установка твердотопливного котла в частном доме. Работа достаточно трудоемкая, но не настолько сложная, чтобы не справиться с ней самостоятельно. Важно лишь правильно выбрать обвязку и способ подключения, в соответствии с конкретными условиями.
к оглавлению ↑
Общие правила установки:
- Прежде чем приобрести отопительный агрегат, необходимо определиться, где он будет установлен.
Оптимальный вариант – отдельное помещение (печь), но может быть и другой отопительный агрегат, например, газовый. В этом случае твердотопливный котел устанавливается в пристройке, за стенкой топки. Установить металлический каркас, обшить его сэндвич-панелями или профнастилом с теплоизоляционным слоем. Преимущество такого варианта в том, что отопительное оборудование будет располагаться снаружи дома, грязи будет меньше. - Допускается установка маломощных твердотопливных котлов непосредственно на бетонную черновую стяжку. Масса этих устройств небольшая, вибрационная нагрузка на поверхность пола минимальна.
- Что касается твердотопливных агрегатов, мощность которых превышает 50 кВт, специалисты рекомендуют оборудовать бетонную площадку подушкой из утрамбованного щебня.
- Высота площадки над уровнем стяжки 80-100 мм. При этом стяжка и фундамент не должны быть соединены между собой. Это же требование действует при установке котлов длительного горения.
- Проектом частного дома предусмотрена шахта дымохода в стене с последующим выносом трубы через крышу.

- При отсутствии шахты (как вариант ее занимает газовый котел) необходимо установить дымоход под твердотопливный котел. Оптимальный вариант установки твердотопливного котла в частном доме – двустенный дымоход с каменкой из металла. Это легкая сборная конструкция, которую легко собрать до необходимой длины и закрепить на стене дома.
- Естественно вытяжная вентиляция должна быть в топке. Вытяжной колпак представляет собой шахту в стене. Она параллельна шахте дымохода, но меньшего сечения.
Важно! Вытяжка предназначена для решения таких задач:
- Создание вакуума в печи. За счет этого всасывается всасываемый воздух, что создает благоприятные условия для горения.
- Если мощность котла превышает 50 кВт, необходимо создать отдельную приточную вентиляцию.
- Удаление продуктов горения из помещения.
- Часто котельные в загородных или загородных домах не подключены к канализации. Это неверно, потому что иногда необходимо опорожнить котельную систему или водяную рубашку.
Выброс предохранительного клапана также направляется в канализацию.
к оглавлению ↑
Как установить твердотопливный котел в частном доме? Процедура
Твердотопливный котел монтируется в следующем порядке:
- Распакуйте продукт.
Важно! Если помещение не слишком просторное, то котел собирают на улице. Установите дверцы, зольник и другие элементы. Автоматику и вентилятор пока не нужно устанавливать. Они монтируются после установки устройства.
- Переместите котел в комнату. Установите его на фундамент так, чтобы оси газоотводной трубы и дымохода совпадали.
Важно! Монтажные работы желательно проводить с помощником, так как масса агрегата чаще всего превышает 50 кг.
- Агрегат закрепляется на стяжке или фундаменте таким образом, чтобы избежать перекосов.
- Соединяют дымоход, монтируют группу безопасности и вентилятор с блоком управления.

- Подключить котел по выбранной схеме.
Самотечная система
Это самый простой вариант установки твердотопливного котла в частном доме:
- Подающий и обратный трубопроводы подключаются к выходным патрубкам системы.
- Группа безопасности устанавливается на выходе из котла. Он состоит из предохранительного клапана, манометра и воздухоотводчика.
- Не устанавливайте запорную арматуру между выходом устройства и коллектором группы безопасности.
- Расширительный бак устанавливается над системой отопления, в топке или на чердаке.
Важно! Такая система работает эффективнее, если котел расположен ниже отопительных батарей. Для этого иногда в стяжке устраивают углубление для размещения отопительного оборудования. Основным преимуществом самотечной системы является энергонезависимость.
Оптимальным вариантом такой системы являются обычные твердотопливные отопители с нижним горением, не оснащенные нагнетателем и автоматикой.


Качественный дымоход можно получить, выполняя кладку с перевязкой: обеспечивая перекрытие швов предыдущего ряда следующим.
Материал трубы должен быть прочным и термостойким, чтобы выдерживать высокую температуру отходящих газов.
Именно через него и происходит удаление влаги из системы.
Поэтому длина должна быть такова, чтобы высшая точка дымохода возвышалась над крышей на 1 метр.
Но после того как вы пробились на верхний этаж, распушка должна возвышаться над полом минимум на 1-2 ряда кирпича.


Они нужны для закрытия стыков.
Через них будет течь использованная вода.

В этом случае к обеим боковым полкам приваривается труба квадратного или прямоугольного профиля. Делать это следует предельно аккуратно.
Монтировать трубу следует за один раз с кладкой стен. Это может быть не только кирпич, но и металл или керамика.
Оптимальный вариант – отдельное помещение (печь), но может быть и другой отопительный агрегат, например, газовый. В этом случае твердотопливный котел устанавливается в пристройке, за стенкой топки. Установить металлический каркас, обшить его сэндвич-панелями или профнастилом с теплоизоляционным слоем. Преимущество такого варианта в том, что отопительное оборудование будет располагаться снаружи дома, грязи будет меньше.
Выброс предохранительного клапана также направляется в канализацию.