Содержание
Декоративная мельница для сада своими руками — технология (+фото, чертежи)
Каждый владелец приусадебного участка имеет желание сделать свои владения более привлекательными. Одним по душе функциональные постройки, такие как бани, беседки, спортивные площадки и т. д. Другие предпочитают декоративные изделия наряду с массой зеленой растительности. Есть и такие, которые умудряются гармонично сочетать функциональные и декоративные строения с зеленой растительностью. Элементов декора, которые можно вписать в ландшафт довольно много. В этой статье речь пойдет о том, как изготавливается декоративная мельница для сада своими руками.
Содержание
- Особенности конструкции
- Определение размера
- Материалы и инструменты
- Строительство каменной фальшь-мельницы
- Фундамент
- Возведение домика
- Декорирование
- Изготовление пропеллера
- Изготовление деревянной конструкции
- Фундамент. Нужен ли
- Опорная платформа
- Изготовление корпуса
- Обустройство крыши и сборка лопастей
- Декоративная отделка
- Видео
- Фото
- Чертежи
Особенности конструкции
Те времена, когда на участке возле дома были лишь ровные грядки, газоны и фруктовые сады уже остались далеко позади.
Сегодня, как правило, дачи используются для дружеских посиделок, в качестве творческих мастерских и для семейного отдыха.
Деревянная декоративная мельница может стать дополнением простого ландшафта, выполненного в деревенском стиле. Такую конструкцию можно сочетать с декоративным колодцем под старину и забавными фигурками животных или сказочных персонажей, например, гномов.
Фальшь-мельница призвана стать украшением территории возле дома, но некоторые умельцы строят функциональное сооружение. Например, можно сделать дачный туалет в виде мельницы, небольшой сарай или вход в погреб. Еще вариант – детский домик для игр в форме мельницы или будка для сторожевой собаки.
Также с помощью простой конструкции можно скрыть неприглядные элементы ландшафта, такие как кран для полива огорода, люк от септика, трубу вентиляции из погреба.
Сделать небольшую декоративную мельницу можно практически без вложений, если у вас остались некоторые материалы от строительства – брус, фанера, крепеж, лак и краска.
Определение размера
При выборе размера важно учитывать размеры участка, финансовые возможности и личные предпочтения. Мельницы больших размеров отлично смотрятся на габаритных холмистых и разноуровневых участках с красиво оформленным ландшафтом. На возвышенности удачно смотрятся небольшие конструкции.
Если сделать фальшь-мельницу побольше, то внутри нее можно организовать столовую, беседку либо летнюю кухню. Но воплотить в жизнь эту идею можно только на участке больших масштабов. На маленькой территории такая большая постройка будет смотреться нелепо.
Если продумать строительство маленькой мельницы, то она тоже может приносить пользу. К примеру, оснастив ее выдвижными ящиками, вы сможете высадить в них цветники с разными сортами растений. Планируете обустроить водоем? В таком случае сделайте на нем мельницу, которая по совместительству может служить местом для хранения инвентаря по уходу за водоемом, а также удочек.
Материалы и инструменты
По сути, фальшь-мельница может быть сделана с любого материала, который есть на вашем приусадебном участке. Современные технологии позволяют задекорировать любой строительный материал. Для строительства этого малогабаритного сооружения подойдет даже битый кирпич, который по завершении строительного процесса просто декорируется декоративным камнем.
Традиционно мельницы изготавливают из дерева. Это недорогой, простой в обработке и презентабельный материал. Единственный его недостаток – неустойчивость к погодным условиям. Ввиду этого конструкцию из дерева нужно будет регулярно красить, а на зимний период прятать в сарай, что подразумевает изготовление мобильной мельницы. В этой статье будут рассмотрены две технологии изготовления фальшь-мельницы: из дерева и камня.
Итак, перед тем как сделать классическую деревянную декоративную мельницу вам нужно приобрести:
- Деревянный брус сечением 20×20 мм.
- Деревянная рейка для изготовления лопастей.

- Саморезы по дереву длиной 25 мм.
- Краска (цвет зависит только от ваших предпочтений).
- Влагостойкая фанера, которой будет обшит каркас.
Из инструментов вам понадобится:
- Электрический лобзик.
- Шуруповерт.
- Кисточки.
- Биты для закручивания саморезов.
- Рулетка и уровень.
Для строительства мельницы из камня, вам понадобится:
- Кирпич или другой блочный материал, из которого будет сформирована фальшь-мельница.
- Песок и цемент для замеса раствора.
- Резанный природный камень или плитка для облицовки.
- Листовое железо/пластик для изготовления ветровых лопастей.
Из инструментов вам понадобится:
- Шпатель.
- Мастерок.
- Миксер для замешивания раствора.
- Ведро и лопата.
- Болгарка для подрезки облицовочного материала и вырезания лопастей.
- Рулетка и уровень.
Строительство каменной фальшь-мельницы
Стоит сразу отметить, что построить декоративную мельницу гораздо проще, чем ее аналог из дерева.
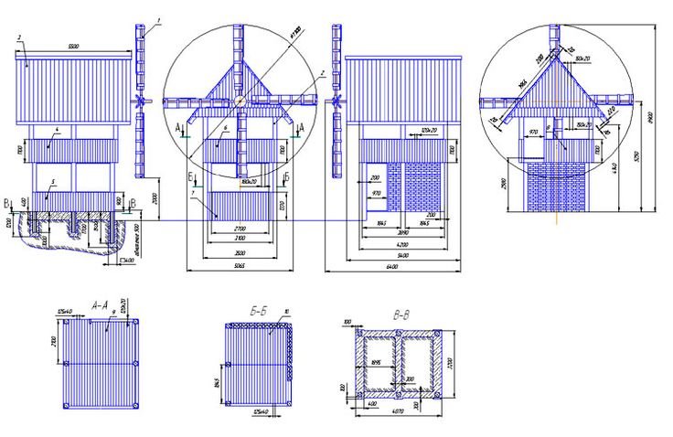
Для сборки последней, вам, вероятнее всего, придется использовать чертежи. Весь строительный процесс состоит из нескольких этапов.
Фундамент
Неразумно было бы построить каменную конструкцию без основания, ведь в таком случае вскоре она попросту рухнет. Итак, вам нужно отлить в почве мелкозаглубленное основание, примерно 40×40 см. Глубина фундамента 1–2 штыка лопаты.
Вначале выкопайте ямку, заложите в нее арматуру и залейте бетоном. Затем фундамент должен высохнуть, на это потребуется несколько дней.
Возведение домика
Размеры, пропорции и форма домика зависят полностью от вашей фантазии и пожеланий. Главное, чтобы размер фундамента соответствовал основанию мельницы. Конструкция должна быть ровной относительно уровня. Перевязка камешков должна быть по максимуму приближенной к реальным размерам.
В верхней части домика нужно вмуровать резьбовую шпильку, на которую впоследствии будут установлены лопасти. На шпильку приварите пластину, которой она будет зацеплена за каменную кладку.
Установить шпильку можно и по завершении строительного процесса, но в таком случае вам придется бурить под нее отверстие в домике. А эти мероприятия могут привести к нарушению кладки.
Декорирование
Чтобы строение выглядело максимально реалистично, нужно вырезать плитку по форме кирпичиков. Плитка в этом случае укладывается обычным образом.
При укладке плитки важно, чтобы в клее не образовывались пустоты.
Что касается выбора клея, то лучше приобрести морозостойкий состав. Это может быть Cerezit CM 17 и CM 117.
Изготовление пропеллера
Для изготовления пропеллера нужно вырезать круг из фанеры, в котором проделывается отверстие, равное диаметру шпильки. Потом к этому диску прикрепите предварительно подготовленные лопасти из рейки. Установите их на шпильку и зажмите гайками с шайбами с обеих сторон.
Перед установкой пропеллер из деревянных реек следует обработать специальными пропитками и антисептиками, а затем покрасить.
Изготовление деревянной конструкции
Мельница из дерева состоит из 4 основных составляющих:
- облегченный фундамент;
- опорная платформа;
- корпус;
- лопасти.
Для начала важно продумать фундамент конструкции. Затем можно приступать к изготовлению остальных элементов мельницы, которые нужно изготовить по отдельности, а потом соединить.
Фундамент. Нужен ли
Наиболее простой вариант – планка из металла, залитая в бетон под землей на глубину двух штыков лопаты. Впоследствии на эту планку и будет установлено декоративное сооружение.
Мельницу, установленную на такое основание невозможно украсть. Но если беспокоиться о безопасности нет предпосылок, то в качестве основания могут служить деревянные ножки с пластиковыми наконечниками. То есть, в заливке фундамента необходимости нет и вовсе.
В качестве наконечников мельницы на ножках могут выступать трубы ПВХ соответствующего диаметра. Скрепить пластик и дерево проще простого – для этого используйте саморезы.
Опорная платформа
Первоначально изготавливается нижняя часть мельницы – платформа. Она должна обладать достаточной устойчивостью, чтобы выдержать нагрузку всей конструкции.
Чем выше мельница, тем шире должно быть ее основание.
Для этих целей вы можете использовать доски, имеющие ширину 15 см, а толщину 20 мм. В качестве материала для платформы лучше всего использовать вагонку. Если речь идет о строительстве беседки в форме мельницы, то вам следует залить облегченный вариант ленточного, столбчатого или монолитного фундамента.
Рассмотрим изготовление деревянной мельницы на примере конструкции, украшающей сад высотой до 2 м. Для ее возведения вам понадобится платформа размером 60×60 см. Важно, чтобы она в процессе изготовления не перекосилась.
Готовую платформу можно уложить на предварительно подготовленный фундамент, специальные ножки или песчаную подушку, покрытую рубероидом. Как бы там ни было, перед тем как установить платформу мельницы, обработайте ее антисептиками во избежание загнивания материала.
Кроме того, ее следует покрыть атмосферостойкой краской или лаком.
Просверлите в платформе небольшие отверстия, чтобы во время дождя на ней не задерживалась вода.
Изготовление корпуса
Чтобы сделать корпус мельницы, вам нужно взять 4 бруса с сечением 40×40 мм и 4 бруса с сечением 25×25 мм. Сначала следует собрать пирамиду из более толстых брусьев, скрепив их саморезами. То же самое нужно сделать и с тонкими элементами. Так, у вас получится тело мельницы. Оно должно быть строго вертикальным, что можно проконтролировать при помощи строительного уровня.
Обустройство крыши и сборка лопастей
Ни одно сооружение не будет завершенным, если не сделать для него крышу. Декоративная мельница не исключение. Для нее нужно сделать двускатную крышу, состоящую из двух деталей в форме равнобедренного треугольника. Размер скатов 30×30 см, а основания – 35 см.
Скаты можно сделать из ДСП или фанеры. Размер сторон может и не соответствовать указанным выше параметрам, главное, чтобы крыша гармонично сочеталась с каркасом.
Скаты следует соединить рейками по бокам и сверху. В результате у вас должен получиться объемный треугольник. Теперь самое время закрепить крышу к каркасу, прикручивая рейки саморезами.
На следующем этапе необходимо сделать отверстие в лицевом скате крыши. Затем соберите лопасти. Для этого 2 рейки выложите крест-накрест. В центре креста проделайте сквозное отверстие, оно должно быть равным диаметру отверстия в крыше.
Пропустите болт через отверстие креста и отверстие в крыше. После закрепите его шайбами с двух сторон.
Теперь возьмите заготовленные рейки для лопастей и небольшие гвозди и аккуратно прибейте их на 4 стороны установленных на крыше лопастей.
Форма лопастей может быть произвольной. Традиционно используется трапециевидная и прямоугольная фигура.
Обшейте бока крыши вагонкой. Это можно сделать по вертикали и горизонтали. Принципиальной разницы нет, тут все зависит от ваших предпочтений. Обшить бока крыши можно и более долговечным материалом, например, листами оцинковки.
Декоративная отделка
После фиксации каркаса, отделайте стены вагонкой по вертикали. Чтобы мельница была более интересной сделайте в ней окошки, дверцу и небольшой балкончик, в котором можно будет высадить цветы.
Чтобы провести декоративную отделку следует использовать краску, тонированные/прозрачные лаки и т. д. Для сохранения природной структуры дерева, поверхность можно вскрыть прозрачным лаком.
Лучше всего использовать атмосферостойкий лак на алкидной основе. Это может быть ПФ-170 либо Яхтенный лак.
Для того чтобы сделать древесину темнее, имитируя таким образом благородные породы, можно использовать морилку. Таким нехитрым образом, из доступной по цене сосны у вас получится мельница под вишню, орех, ясень или дуб. С каждым слоем поверхность будет выглядеть темнее.
Для улучшения эстетических характеристик мельницы, прикрепите на нее наличники или обычные молдинги. Покрасив их в контрастный с основанием цвет, вы сделаете конструкцию более эффектной.
Очень красиво сочетается темный коричневый корпус с желтыми молдингами.
Еще одним вариантом декорации мельницы является установка подсветки. Например, можно поместить вовнутрь светодиодные фонарики, чтобы в вечернее время суток обеспечить дополнительное освещение. Наиболее гармонично освещение смотрится в декоративных мельницах с небольшими окошками. Нет окон? Не беда. Установите светодиодную подсветку по периметру крыши.
Желаете выгодно обозначить мельницу на территории около дома? Тогда сделайте вокруг нее цветник. Чтобы сооружение не потерялось в зарослях растений, высаживайте только стелющиеся почвопокровные культуры.
Какой бы вид мельницы вы ни выбрали, то ли деревянную, то ли каменную, если вы будете следовать изложенным в статье инструкциям, то вам действительно удастся красиво декорировать территорию около дома. Остались вопросы по теме? В таком случае пишите комментарии к статье.
Видео
О том, как сделать декоративную деревянную мельницу на практике, применив знания, вы можете увидеть в видеоматериале:
youtube.com/embed/01VKM0WM1f4″ frameborder=»0″ allowfullscreen=»allowfullscreen»>
Фото
В фотогалерее предоставлены разные идеи для реализации, которые помогут вам определиться с видом и особенностями этого декоративного элемента сада:
Чертежи
Нижеприведенные чертежи помогут вам определиться с размером и функциональностью декоративной мельницы:
Декоративная мельница сделать самому своими руками: чертеж, инструкция по изготовлению
Создавая ландшафтный дизайн и украшая участок, необходимо помнить, что каждая деталь, даже самая маленькая очень важна. Конечно же, без кустарников, деревьев и цветов не обойтись, поскольку это основа ландшафтного дизайна, но особое внимание стоит уделить элементам декора. В качестве декора часто используют статуэтки из глины или деревянные поделки. Именно такой, интересной поделкой, сделанной своими руками, является декоративная мельница для сада.
Это привлекательный элемент декора, который прекрасно впишется в общую картину.
Зачем нужна декоративная мельница?
Всем известно, что декоративная мельница – это просто маленькая копия своих прототипов. Большие конструкции используют в качестве генераторов, а маленькие как элемент декора приусадебного участка. Многие отдают предпочтение обычным садовым мельницам, но если вблизи участка есть речка или пруд, можно установить декоративную водную мельницу, которая дополнит общую картину и украсит сад.
Группа Мельница — сказка рядом с вами!
Группа «Мельница» — музыкальный проводник в мир сказок и волшебства. Эта команда не…
Существует множество разнообразных видов мельниц, но, тем не менее, строение у них одинаковое. Конструкция состоит из таких частей, как:
- Основание или платформа сооружения.
- Каркас.
- Крыша.
- Оси, установленные между крышей и каркасом.
- Лопасти.
- Ветрило.
Выбор места для установки
Для установки декоративной мельницы для сада необходимо выбрать лучшее место на территории.
Не стоит ставить конструкцию вблизи деревьев, кустарников и построек, нужно подобрать проветриваемую часть сада, где конструкция будет хорошо видна.
Место должно быть ровным – это обеспечит беспрепятственную функциональность конструкции. На выделенном участке необходимо убрать мусор, растения и сорняки. Лучше поставить мельницу на основу, сделанную из бетона или камня. Это обезопасит деревянное сооружение от грунтовой влаги и других негативных воздействий.
Декоративный колодец на даче сделать самому своими руками
Наверное, каждый читатель не раз видел на просторах интернета оригинальные декоративные колодцы и…
Создание плана установки
Сделанная своими руками декоративная мельница должна быть правильно построена. Для этого необходимо сделать следующее:
- нарисовать эскиз будущей постройки;
- рассчитать размеры всех деталей и элементов;
- сделать чертеж будущего изделия;
- выбрать хороший материал для создания составляющих конструкции.

Когда чертежи и подсчеты готовы, приступайте к непосредственной сборке мельницы. Готовая модель, сделанная по всем параметрам и требованиям, будет долгие годы украшать приусадебный участок.
Материалы и инструменты для изготовления декоративной мельницы
Чтобы быстрее сконструировать данную поделку для сада, подготовьте материалы. Для корпуса мельницы понадобится:
- лист древесно-стружечной плиты или фанеры;
- четыре бруска из дерева;
- две деревянных рейки;
- вагонка для обшивки;
- вагонка для лопастей;
- деревянные уголки.
Для изготовления крыши возьмите следующие инструменты и материалы:
- древесно-стружечную плиту;
- саморезы;
- рейки — 3 штуки.
Помимо материалов для монтажа также понадобятся специальные инструменты, такие как:
- шуруповерт;
- рулетка и карандаш;
- гвозди;
- дрель;
- стержень из металла;
- болты и шайбы;
- наждачка;
- электролобзик.

После подготовки всех необходимых инструментов и материалов самое время заняться строительными работами, которые оказываются не настолько сложными, как кажется на первый взгляд.
Рокарии сделать самому своими руками требуют много сил
Изготовить рокарии своими руками совсем не трудно. Сначала надо обозначить на земле под него место….
Функции декоративной мельницы
Фруктовыми деревьями и грядками на садовом участке давно никого не удивить, а желание как можно лучше украсить территорию приводит к самым неожиданным и интересным идеям. Сегодня даже на самом маленьком участке владельцы выращивают интересные цветочные композиции, формируя сказочные пейзажи. В качестве декора используют расписные колодцы, статуэтки гномиков, грибы, декоративные мельницы из дерева и другие интересные поделки ручной работы.
Мельницы устанавливают не только как элемент декора, но и используют как игрушечный домик для ребенка, если конструкционно декоративный элемент занимает большую площадь, а внутри него можно играть.
Также в декоративных мельницах хранят садовые инструменты и разнообразные приспособления.
Кроме того, с помощью постройки легко прикрыть инженерные коммуникации, такие как:
- кран для полива;
- вентиляционные трубы;
- люки септиков.
Подобные конструкции прекрасно вписываются в любую обстановку, к тому же не требуют больших затрат.
Изготовление деталей
Перед тем как сделать мельницу, необходимо предварительно изготовить все детали. Для начала стоит заняться нарезкой блок хауса. Конструкция состоит из составленной из четырех частей основы, это:
- фасад;
- тыльная сторона;
- пара боковых сторон.
Каждая деталь, в свою очередь, сложена из шести отрезков, размещенных по мере возрастания, это помогает создать трапециевидную форму. Когда блок хаус готов, из рейки нужно сделать бруски, нарезать вагонку для отделки крыши.
Также понадобится подготовить следующие конструктивные элементы:
- раскладку;
- два круга из фанеры.

Обработка деталей
Соорудив все составляющие конструкции, сборку мельницы нужно отложить, поскольку все детали нуждаются в предварительной обработке и подготовке. Необходимо обязательно зашкурить наждачной бумагой составные конструкции, уделив особое внимание срезам и торцам.
Поскольку поделка для сада будет находиться на свежем воздухе, ее необходимо защитить от негативного влияния влаги и резких температурных перепадов. С этой задачей справятся антисептические средства, которые обезопасят конструкцию и защитят ее от грибка.
Сборка декоративной мельницы
После того как детали высушены и обработаны, пора приступать к сборке конструкции. Монтажные работы предусматривают несколько этапов:
- Боковые части. Стенки необходимо соединить к рейкам саморезами, чтобы получилась целостная конструкция, а затем сложить все части воедино. Это не только укрепит стенки, но и сделает конструкцию устойчивой.
- Основание. Берем два квадрата с отверстиями посредине и прикручиваем саморезами к корпусу.

- Крыша. При изготовлении декоративной мельницы своими руками сначала по лекалу делаем два треугольника, к которым крепим вагонку с двух сторон. Для декора крыши можно использовать конек.
- Вертушка. Для создания вертушки понадобятся рейки из дерева или металлические трубы. В конце каждой лопасти нужно привинтить короткие рейки. В центре вертушки с обеих сторон крепим с помощью саморезов два круга. Затем необходимо сделать отверстия для шпилек и подшипников и молотком вогнать их в пазы.
- Заключительный этап – установка крыши.
Прочитав все рекомендации, каждый желающий узнает, как сделать мельницу своими руками правильно. Эта информация поможет не только качественно смастерить изделие, но и надежно укрепить его.
Декоративная отделка
Недостаточно просто изготовить декоративную мельницу своими руками. Чтобы сделать ее еще привлекательней и интересней, необходимо заняться декоративной отделкой. Декорирование – это важный этап, поскольку от этого зависит общая картина ландшафта.
Декоративная водяная мельница или ветряная конструкция прекрасно дополнит общую картину участка.
Для сохранения естественной структуры материала лучше покрыть поверхности конструкции бесцветным лаком или использовать краску. Чтобы сделать древесину темнее и сымитировать дорогостоящие породы дерева (дуб или ясень), стоит воспользоваться красителем для древесины, предназначенным для сохранения текстуры дерева. Они придают поверхности выраженный яркий рисунок. Это специальная жидкость, которая называется морилкой. С каждым нанесенным слоем цвет дерева будет меняться, становиться темнее.
С эстетической точки зрения на конструкции будут хорошо смотреться молдинги, они придадут ей эффектности и привлекательности.
Красиво смотрятся светодиодные фонарики внутри конструкции. Если в мельнице присутствуют окошки, то подсветка будет выглядеть еще гармоничней. Даже отсутствие окошек не помеха для установки огоньков, ведь их можно разместить по периметру конструкции.
Рекомендуется возле декоративной мельницы убрать все растения, хотя маленький цветник со стелящимися почвопокровными представителями флоры не помешает.
Какой бы декор ни использовался для украшения декоративной мельницы, если соблюдать все вышесказанные советы и инструкции, то вы сможете создать гармоничную и интересную конструкцию, которая прекрасно впишется в общий стиль ландшафтного обустройства территории.
Полезные советы
Конструирование согласно пошаговой инструкции декоративной мельницы не гарантирует точное выполнение монтажных работ. Именно поэтому полезные советы, представленные ниже, раскроют все вопросы, возникшие в процессе постройки и установки сооружения.
Важно правильно выбрать материал для изготовления конструкции, чтобы он хорошо поддавался обработке. Нужна такая порода дерева, которая будет обладать наилучшими качествами. Лучше всего для строительства подходит сосна, кроме того, что она обладает достоинствами, прекрасно проявляющимися в строительстве и конструировании, дерево отлично пахнет. Помимо выбора качественного материала, особое внимание стоит уделить массе лопастей. Если они будут слишком тяжелыми, вся конструкция обрушится.
В ходе сборки понадобится чертеж декоративной мельницы. С его помощью легко упорядочить проведенные работы.
Размеры конструкции
Размер самодельной мельницы зависит от предпочтений хозяина и размеров приусадебной территории. Это может быть большая конструкция или маленькое декоративное сооружение. Чаще всего хозяева участка выбирают скромные декоративные мельницы. Все стороны основания данной конструкции составляют полтора метра, а размеры верхнего каркаса около одного метра. Высота мельницы от земли до крыши – меньше двух метров.
В зависимости от параметров сооружения подбирается тип крыши и ее размеры. В процессе разработки и постройки декоративной мельницы все детали, материалы и отделка могут меняться.
Рассчитать параметры конструкции и соорудить ее просто, но для этого необходимо иметь определенные навыки и умения, чтобы постройка была надежной и внешне выглядела привлекательно.
Сделанная своими руками декоративная мельница будет отлично смотреться на садовом участке.
Придерживаясь всех рекомендаций и правил, вы сможете без особых усилий соорудить настоящее произведение искусства. Независимо от того, лето за окном или осень, декоративная мельница прекрасно будет смотреться среди пожелтевших, опавших листьев и свежей зелени.
мельниц | Своими руками
Своими руками
0
ИГРУШЕЧНАЯ МЕЛЬНИЦА ДЛЯ ОТДЕЛКИ УЧАСТКА СВОИМИ РУКАМИ На днях навела порядок в сарае, собралось много бросового материала: бруски и доски. Он распорядился ею с пользой, осуществив свою давнюю мечту – построил декоративную мельницу. Делюсь с вами своим вариантом украшения сада. Размеры подбираются индивидуально. Четыре бруска сечением 30×30 мм соединяются между собой малярным скотчем. Подать заявку на…
Своими руками — читать далее… Декоративный ветряк с подсветкой своими руками
Сделай сам
0
МЕЛЬНИЦА ИЗ БОЛГАРКИ СВОИМИ РУКАМИ Не спешите выбрасывать старую кастрюлю, которая наверняка залежалась у вас в кладовке или в куче ненужного хлама, в металлолом. Из этой емкости можно сделать насадку для мясорубки и перемолоть кукурузу и другие крупы в муку. Поддон тщательно вымыл и зачистил от ржавчины конвертером и наждачной бумагой. Измерено …
Своими руками — читать далее… Насадка для болгарки своими руками
Сделай сам
0
КАК СДЕЛАТЬ ДОМАШНЮЮ ФРЕЗУ ИЗ БОЛГАРКИ Не перестаю удивляться, насколько универсален этот инструмент — болгарка. На его основе многие умельцы собирают различные устройства и машины. Я тоже решил не отставать и из своего «малыша» сделал мельницу для помола кукурузы, проса, овса, проса и других круп. 1. В качестве корпуса использовал стальной «черпак», он идеально подошёл на…
Своими руками — читать далее… Фреза своими руками из болгарки (УШМ)
Сделай сам
0
КАК СДЕЛАТЬ ДЕКОРАТИВНЫЕ МЕЛЬНИЦЫ В ПОДАРОК Подруга пригласила ее отпраздновать свою льняную свадьбу (4-й год совместной жизни). Я решила, что декоративные мельницы для бутылок отлично подойдут в качестве подарка. Понадобилось: две виниловые пластинки, льняной картон, шпагат, деревянные шпажки, кофейные зерна, кусок мешковины, упаковка с выкройкой от цветочного букета, клей «Момент», столярные бутылки. СТОЙКИ ДЛЯ ФРЕЗ По краю…
Своими руками — читать далее… Подарочные мельницы своими руками — мастер класс
Рубрика Поделки простые и сложные Tags класс, мастер, мельница, подарок, своими руками, сделать, фото
Сделай сам
0
Как сделать мельницу с автоматическим дозатором Решил поделиться с читателями принципом работы своей мельницы, которой пользуюсь уже много лет. В конструкции есть особенность — автоматический дозатор. Все мельницы имеют демпфер. Мало зерна — мельница работает не на полную мощность, зерна много — оно «перевалено» и однофазный двигатель останавливается. Поэтому я снабдил агрегат автоматическим …
Своими руками — читать далее… Мельница с дозатором своими руками (+чертеж)
Научитесь литью металла [Типы и процессы]
перейти к содержанию
MetalworkingMetal
Кристин Арзт
Что такое литье металлов?
Литье металла — это процесс, которому уже 7000 лет, и который используется как в производстве, так и в изобразительном искусстве. Во время литья металла расплавленный металл переносится из тигля в форму для создания положительного металлического литого объекта.
Металл и форма охлаждаются, а металлический предмет извлекается и обрабатывается. Традиционные методы литья металлов включают литье по выплавляемым моделям, литье в гипсовые формы, литье под давлением и литье в песчаные формы, и это лишь некоторые из них. Эти процессы литья металла могут выполняться в литейном цехе или в ювелирной мастерской.
Процессы литья металлов известны уже тысячи лет и широко используются для создания скульптур, украшений, транспорта, оружия и инструментов. Первый известный литой предмет — медная лягушка, датируемая 3200 г. до н. э., найденная на территории современного Ирака. В эпоху бронзы популярность металлического литья резко возросла. Бронза была гораздо более легким и прочным сплавом для работы по сравнению с золотом, и из нее отливали инструменты и оружие с использованием каменных форм. Во времена династии Шан в Китае одноразовые песчаные формы впервые использовались для литья металлов. Около 1000 г. до н.э. Индия была одной из первых древних цивилизаций, отливавших серебряные и медные монеты в качестве валюты.
Позже, около 500 г. до н.э., династия Чжоу ввела чугунное литье. На протяжении всей истории Ближний Восток и Западная Африка обычно использовали литье по выплавляемым моделям. Много лет спустя в 20 веке произошел бум технологии литья металлов, разработав процессы, на которых основано большинство современных методов.
Для чего используется литье металлов?
На протяжении всей истории металлическое литье использовалось для изготовления инструментов, оружия и религиозных предметов. Литье — это недорогой способ создания сложных форм и рисунков, а также легкое создание нескольких одинаковых объектов. Процесс литья металлов широко используется в производстве, особенно в развитии технологий и транспорта. Отливки могут иметь размер от нескольких граммов, как отлитое кольцо, до тысяч фунтов, как дизельный двигатель. Формы литья различаются по сложности от чего-то совсем простого до невероятно замысловатого.
В то время как транспорт и тяжелое оборудование составляют большую часть отливок, производимых во всем мире, литье металлов является невероятно универсальным процессом.
Скорее всего, вы найдете компоненты литья металла в следующих объектах:
-
Домохозяйственные приборы
-
Строительное оборудование
-
Электрические компоненты
- . и оборудование
-
Транспорт: автомобильная, аэрокосмическая, железнодорожная, и доставка
-
Обработчивые инструменты
-
Артистические и скульптурные объекты
Каст. процессы с многоразовыми формами и процессы с одноразовыми формами. В обоих процессах литейщик плавит металлический материал в тигле, заливает его в форму, а затем удаляет материал формы или отливку после того, как металл остынет и затвердеет.
Литье в одноразовые формы
Литье в одноразовые формы — это метод, в котором используются одноразовые или временные формы.
Эти формы обычно изготавливаются из связанного смолой песка, керамической оболочки, гипсовой паковочной массы или пенопласта. Изготовление собственной одноразовой формы — недорогой и относительно быстрый процесс. Лучше всего подходит для мелкосерийного производства.
Многоразовые формы для литья
Многоразовые формы — это многоразовые и постоянные формы для литья металлов. Они прочнее и лучше других выдерживают высокие температуры расплавленного металла. Постоянные формы часто изготавливаются из металлов, таких как сталь или чугун, из-за их высокой прочности, низкой пористости и термостойкости. Многоразовые формы идеально подходят для создания нескольких одинаковых литых металлических объектов.
Основной процесс литья металла
Основной процесс литья металла включает создание шаблона и формы, а затем заливку расплавленного металла в форму. Затем вы извлечете твердую металлическую отливку и закончите свою деталь. Этот процесс настраивается для различных типов литья металлов, а также для форм, размеров и многого другого.
Шаг 1. Создание шаблона
Перед изготовлением формы необходимо создать шаблон для определения формы формы. Выкройка может быть трехмерной моделью вашего окончательного слепка. Он может быть сделан из воска, песка, пластика или даже дерева. Некоторые литейщики используют формы из гипса или силикона, которые представляют собой материалы, которые не выдерживают отливки из расплавленного металла, но позволяют литейщику массово создавать кратные воски для использования в литье одноразовых форм. Когда вы формируете свой шаблон, убедитесь, что вы учитываете любую ожидаемую усадку, когда металл остывает. Шаблоны также могут быть закрыты литниками, чтобы расплавленный металл мог затекать в форму.
Шаг 2: Изготовление формы
После того, как вы создали выкройку, пришло время сделать форму. Как мы упоминали выше, вы можете сделать многоразовую форму, которая обычно изготавливается из металла, или одноразовую форму, которая может быть сделана из песка, гипса или керамической оболочки.
Каждый из этих методов изготовления форм оптимизирован для различных литейных металлов и различных уровней сложности модели. Если вы работаете с восковым или пластиковым узором, вы можете выжечь узор в печи.
Шаг 3: Выберите металлический сплав
Все металлические отливки изготавливаются из сплавов черных или цветных металлов. Сплавы представляют собой смесь элементов, обеспечивающих наилучшие механические свойства для окончательного использования в отливке. Черные сплавы включают сталь, ковкий чугун и серый чугун. Цветные сплавы, которые чаще всего используются в литье, это алюминий, бронза и медь. Если вы работаете с драгоценными металлами в ювелирной мастерской, вы можете работать с серебром, медью, золотом и платиной.
Этап 4: Расплавление сплава
Процессы плавления различаются для разных сплавов, поскольку каждый сплав имеет разную температуру плавления. По сути, плавка состоит из помещения твердого сплава в тигель и нагревания его над открытым пламенем или внутри печи.
Шаг 5: Залить в форму
Залить расплавленный металл в полость формы. Если это небольшая отливка, то можно просто лить из тигля, в котором нагревался металл, прямо в форму. Для более крупного литья может потребоваться небольшая команда для поддержки нагревания металла внутри печи и переноса металла в больший тигель или ковш перед заливкой в форму.
Обязательно соблюдайте все рекомендации по технике безопасности при заливке расплавленного металла. Убедитесь, что вы носите защитную одежду, в том числе одежду из натуральных волокон, длинные брюки и рукава, утепленные перчатки и защитные очки. Работайте в хорошо проветриваемом помещении, чтобы избежать рисков, связанных с опасными парами. Убедитесь, что у вас есть поблизости химический огнетушитель, и следите за тем, чтобы проход между печью и плесенью был чистым. Дайте форме затвердеть, прежде чем переходить к следующему шагу.
Шаг 6: Извлеките отливку из формы.
Когда металл остынет и затвердеет, его можно вынуть из формы.
Если вы отливаете в одноразовую форму, вы можете отделить форму от отливки. Если вы использовали гипсовую паковочную массу, вам нужно будет охладить гипс водой после того, как металл затвердеет. Вода поможет избавиться от плесени. Для многоразовых форм вы можете использовать выталкивающие штифты для извлечения отливки.
Шаг 7: Финишная обработка
Напилите и отполируйте цельнометаллическую отливку! Это может включать в себя очистку отлитого металлического предмета, например, удаление лишнего материала формы в воде, отламывание литейных литников с помощью кусачек для мелких предметов или даже угловой шлифовальной машины для крупных деталей.
Обучение литью металла
Если вы хотите отлить маленькое кольцо или сложный кусок металла для автомобильного двигателя, возможности литья металла безграничны. Тип металлического литья, который вы выберете, будет зависеть от вашего видения конечного продукта. Если вы заинтересованы в ювелирных изделиях, вы захотите работать с драгоценными металлами, такими как золото, серебро и платина.
Если вас заинтересуют другие промышленные проекты, ваша отливка может варьироваться от небольших алюминиевых плиток до чугунной сковороды. После того, как вы определились со своими целями, вы можете изучить варианты самообразования. Местная гильдия художников по металлу предоставляет своим членам сообщество, образовательные ресурсы и многое другое. Мы всегда рекомендуем новичкам начинать с очного занятия, чтобы охватить требования безопасности, получить доступ в студию и научиться литью металла у профессионала.
Обучение литью металлов в The Crucible
The Crucible предлагает занятия по литью металлов как в литейном, так и в ювелирном отделах. Наш литейный цех предлагает студентам возможность создавать свои собственные формы для песка и керамических оболочек. Мы предлагаем полностью оборудованную восковую комнату, где вы можете формировать и детализировать свои модели для литья по выплавляемым моделям. На наших литейных занятиях можно лить алюминий, бронзу и даже железо.
На наших ювелирных уроках вы можете сделать свои собственные уникальные маленькие подвески, кольца и многое другое, чтобы отлить их из серебра и бронзы. Наши уроки ювелирного дела позволяют вам изучить весь процесс литья металла от создания восковой модели до заливки расплавленного металла, а затем отделки вашего изделия.
Часто задаваемые вопросы по литью металла
Можно ли лить металл дома?
Вы можете создать свой собственный литейный цех и литейный цех, уделяя первостепенное внимание безопасности. Убедитесь, что вы носите защитную одежду, в том числе одежду из натуральных волокон, длинные брюки и рукава, утепленные перчатки и защитные очки. Работайте в хорошо проветриваемом помещении, чтобы избежать рисков, связанных с опасными парами. Убедитесь, что у вас есть поблизости химический огнетушитель, и следите за тем, чтобы проход между печью и плесенью был чистым.
Какие бывают виды литья металлов?
В основных видах литья металлов используются одноразовые или многоразовые формы.
При литье одноразовых форм используется одноразовая форма, изготовленная из связанного смолой песка, керамической оболочки, гипсовой паковочной массы или пенопласта. Распространенными типами литья металлов, в которых используются одноразовые формы, являются литье по выплавляемым моделям, литье по выплавляемым моделям и литье в песчаные формы. Многоразовые формы — это многоразовые и постоянные формы, изготовленные из чугуна или стали. Многоразовые формы используются для литья под давлением и литья под давлением.
Какие инструменты нужны для литья металла?
Для литья металла вам потребуются защитное оборудование, хорошо проветриваемое рабочее место, форма, тигель, щипцы и печь, горелка или печь для обжига.
Какие металлы легче всего отливать?
Алюминий — удобный материал для литья металлов, поскольку он недорогой, широко доступный и быстро плавится в пропановой горелке или в электрической печи.
Как сделать форму для литья металла?
Это разные типы пресс-форм для разных проектов.
Во-первых, определите, будете ли вы делать одноразовую или многоразовую форму. Формы для керамических оболочек изготавливаются путем погружения восковой модели в несколько слоев суспензии керамических оболочек перед выжиганием воска и заливкой металла внутрь. Формы для литья из песка встраиваются в деревянную раму и формируются с помощью оттиска или модели, либо рисунок вырезается прямо в песке. В гипсовых формах для выплавки также используется какая-то рама, сделанная из дерева или металла. Восковая модель помещается внутрь рамы, поверх модели заливается паковочная масса, и форма оставляется для застывания.
Продолжить изучение руководств по металлу
Узнайте, как работать с механическими молотами и как они работают, из этого вводного руководства по кузнечному делу с помощью силового молота….
Подробнее →
Задумывались ли вы, чем занимается литейный цех? Узнайте о разнице между черными и цветными металлами и о том, как начать литейную карьеру….
Подробнее →
Узнайте о различных способах литья бронзы в литейном и ювелирном производстве, а также о том, как начать работу, из этого руководства для начинающих.
к бронзовому литью….
Подробнее →
Узнайте о различных типах литья по выплавляемым моделям, от металлов до стекла, и о том, как начать работу, в этом руководстве для начинающих по литью по выплавляемым моделям….
Подробнее →
Узнайте, как построить свой Собственный кузнечный горн и станьте кузнецом с помощью этого пошагового руководства….
Читать далее →
Узнайте все, что вы хотели знать о литье металлов, от типов форм до различных методов литья….
Читать Подробнее →
You Can Learn to Cast Metal
В Горниле еженедельно проводятся новые занятия по литью металлов.
Ювелирные изделия и металлы I
Изучите основы ювелирного дела. Мы сосредоточимся на распиловке, опиловке, шлифовке, пайке, текстурировании, отжиге, штамповке, полировке и дизайне. Учащиеся узнают о свойствах…
Узнать больше и зарегистрироваться →
Подвески и серьги из металлической глины
Создавайте подвески, серьги и переносные скульптуры из медной и серебряной металлической глины, практикуя и совершенствуя различные виды прокатки, текстуры, техника аппликации и резьбы.
…
Узнать больше и зарегистрироваться →
Литье воска в серебро
Изучите древний процесс литья скульптурных украшений по выплавляемым моделям. Экспериментируя с различными видами воска, вы вырежете, отлиете и закончите как минимум один маленький фетиш, подвеску или…
Узнать больше и зарегистрироваться →
Ювелирная лаборатория
Посещение лаборатории — отличный способ попрактиковаться и совершенствовать навыки, которые вы изучаете в классе. В лабораториях вы можете работать над заданиями класса или над своими собственными проектами. Лабораторное время контролируется, но…
Узнать больше и зарегистрироваться →
Foundry Lab
Занятия в лаборатории — это большое преимущество, исключительно для участников Crucible! Практикуйте навыки, которые вы изучаете в классе, и открывайте новые возможности в своем ремесле. Инструкции не предоставляются…
Узнать больше и зарегистрироваться →
Элегантные кольца для штабелирования
Изучите основные методы пайки и металлообработки, чтобы сделать набор штабелируемых колец из стерлингового серебра, меди, латуни и золотого наполнителя.
Вы уйдете с несколькими стильными кольцами для…
Узнать больше и зарегистрироваться →
Пайка серебром
Изучите основы пайки серебром! Мы расскажем о различных типах соединений, припоях и флюсах, а также о том, как решить проблемы при работе с кольцами, переходными кольцами,… -Hour Tasters — отличный способ изучить новую форму искусства без более глубокой приверженности полному курсу. После базового ознакомления с созданием песчаных форм создайте собственную форму для…
Узнать больше и зарегистрироваться →
Основы литейного производства
Начните знакомство с металлическим литьем с этого практического обзора литейных процессов, включая восковую скульптуру, литье по выплавляемым моделям, керамическую оболочку, изготовление песчаных форм, литье и…
Узнать больше и зарегистрироваться →
Молодежные украшения и металлы I
Заявите о себе! Используя медь, серебро и другие цветные металлы, вы научитесь ювелирному делу и искусству работы с металлом, чтобы создавать модные украшения собственного дизайна.




Очень красиво сочетается темный коричневый корпус с желтыми молдингами.


