Содержание
Буржуйка из трубы своими руками: пошаговая инструкция, чертеж, фото
Буржуйка из трубы горизонтальная – это одна из самых простых, но производительных конструкций самодельных печей, работающих на твердом топливе. Простота конструкции и небольшая себестоимость позволяют сделать такую печь даже начинающим домашним мастерам.
Свернуть
- Принцип работы
- Этапы работ
- Чертеж и схема
- Какая труба нужна?
- Материалы и их количество org/ListItem»>Инструменты и оборудование
- Пошаговая инструкция по изготовлению
- Установка
- Подключение дымохода
- Особенности эксплуатации
- Вывод
Сначала новичкам необходимо понимать, как работает печь, из каких деталей она состоит.
Принцип работы
Принцип работы такой печи прост:
- в топку закладываются дрова;
- для растопки, ближе к дверке укладывают тонкие щепки;
- дверка в зольнике и шиберная заслонка должны быть обязательно открыты;
- дрова поджигают и обязательно закрывают дверь;
- пламя разогревает все плоскости печи.
Металл, отдавая тепло, постепенно обогревает помещение; - для второй закладки можно использовать уголь или отходы столярного цеха.
к содержанию ↑
Этапы работ
Перед началом работ необходимо определится с размерами печи, и подготовить необходимые материалы, инструмент и сварочное оборудование.
к содержанию ↑
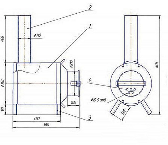
Чертеж и схема
Чертеж буржуйки из горизонтальной трубы
Еще один вариант чертежа
Самая простая печка из трубы работает на твердом топливе и состоит из нескольких основных частей:
- корпус – его делают различным по форме, в зависимости от материалов используемых для его производства. Он может быть прямоугольным при использовании листового металла или цилиндрическим, в этом случае корпус делается из газовых баллонной или тру большого диаметра;
- колосниковой решетки. Она служит для защиты дна от прогорания и удаления золы в специальное отделение;
- зольника – в этой части собирается древесная зола, эта полость служит как поддувало для улучшения тяги при разгорании дров;
- топочной камеры.
Сюда закладываются дрова или уголь; - для вывода угарного газа печи оснащаются выводом трубы дымохода. В некоторых случаях она выводится вертикально с верхней части печи или с отводом, выходящим с тыльной плоскости. Но в любом случае, выход дымохода располагается вверху конструкции;
- над дверкой, устанавливают отражающий экран. Его располагают по всей плоскости печи, оставляя проход воздуха в задней полости. В этом случае тепло не сразу выходит в дымоход, а проходит по печи, нагревает стенки и только потом поступает в трубу;
- дверцы топочной камеры. Здесь используют готовые чугунные или стальные дверки или самодельные из отрезка толстого металла;
- самая эффективная буржуйка оснащается дополнительными трубами конвекции, чертежи такой самодельной печи можно найти на форумах в интернете или ознакомьтесь с промышленными печами профессора Бутакова или модели «Буллериан».
Буржуйка из трубы с внутренним диаметром 500 мм изготавливается по чертежу, с учетом основных размеров конструкции:
| Общая высота | 900 мм.![]() |
| Длина отрезка трубы | 650 мм. |
| Наружный диаметр | 550 мм. |
| Размер верхней части с конфоркой и выходом дымохода | 700/360 мм. |
Размеры остальных деталей и мест их установки будем брать с чертежа.
Разберем процесс изготовления самодельной печки.
к содержанию ↑
Какая труба нужна?
Труба может использоваться любая. Самое главное, чтобы она не использовалась ранее на трубопроводах подачи газа и для канализации. Такие печи совместно с теплом будут распространять по помещению неприятные запахи долгое время. По размерам – здесь все зависит от потребностей и возможностей мастера.
Для обогрева небольшого гаража достаточно будет сделать печку, диаметром 400-500 мм. Для большого помещения можно сделать буржуйку большего диаметра или установить несколько маленьких. Главное перед работой очистить стенки от известкового налета, грязи или масла и только затем приступать к работе.
к содержанию ↑
Материалы и их количество
Для производства буржуйки нам потребуется подготовить:
- стальную трубу сечением 550 мм, с толщиной стенки 10 мм – длина 650 мм;
- для верха печи из стали 4-5 мм вырезаем заготовку 700/420 мм и загибаем по длине полочки, разметив от края каждой стороны по 40 мм;
- передняя и задняя стенки буржуйки – 2 детали, размером 560/560 мм;
- для отражающего экрана вырезаем заготовку из листа размером 500/420 мм;
- для колосниковой решетки потребуется подготовить арматуру, сечением 10 мм – 2 детали по 600 мм и 32 шт по 380 мм;
- для вывода дымохода готовим отрезок трубы сечением 100 мм, длиной 260 мм;
- наверху предусмотрена установка конфорки для приготовления пищи. Можно использовать готовую чугунную или сделать из стального листа толщиной 12-14 мм, вырезав плазморезом круг, диаметром 220 мм и обточив заготовку на наждаке или болгаркой;
- из профиля 40 мм готовим 4 ножки длиной 400 мм;
- петли приобретаем готовые или можно сделать самим из профиля и прутка;
- для дверки из листа вырезаем заготовку 340/340 мм;
- 6 отрезков уголка для укладки колосника.

Это список основных материалов, мелкие детали будем изготавливать в процессе работы.
к содержанию ↑
Инструменты и оборудование
Нам понадобятся:
- набор слесарных инструментов;
- сварочный аппарат с одеждой и защитой глаз и рук»
- болгарка с зачистным и запасом отрезных дисков;
- верстак с тисками;
- песок для засыпки дна печи.
к содержанию ↑
Пошаговая инструкция по изготовлению
Приготовив для работы весь набор инструментов и материалов, приступаем к процессу изготовления буржуйки из трубы своими руками:
- Готовый отрезок трубы помещаем на ровную поверхность, выставляем защитный экран на расстоянии 5 мм от лицевой стороны и прихватываем его к трубе. Здесь важно иметь опыт выполнения потолочных прихваток, хотя на экран нагрузка практически отсутствует. Прихватки ставим через 60-80 мм.
- Внизу печи отступаем на 50 мм, размечаем продольные линии по всей длине трубы и прихватываем уголки для укладки колосниковой решетки.
Для ее изготовления размещаем длинные детали из арматуры, вставляем по краям перемычки и прихватываем их. Теперь, отступая от перемычки 10 мм, стыкуем следующую перемычку. Таким образом, набираем решетку из арматуры, размером 600/400 мм. После этого перевернув решетку, ставим прихватки с обратной стороны. - Укладываем решетку колосника на место и стыкуем листы металла с лицевой и задней стороны. Нельзя допускать перекос и большие зазоры между листом и трубой. Если труба отрезана криво, придется выравнивать заготовку, обтачивая стенки болгаркой. Проверив правильность сборки, приступаем к обварке стыков. Шов должен быть герметичным, поэтому после сварки оббейте шлак и проварите места прожига, раковины и непровар.
- Существует еще один вариант установки колосниковой решетки более практичен. Внизу трубы вырезается прямоугольник с небольшими отступами по краям, снизу трубы приваривается заготовка из профильной трубы (для сбора золы). Сверху кладется колосник. Вот как это выглядит:
- Обтачиваем выступающие углы и место соединения деталей зачистным камнем.
Затем переворачиваем заготовку лицом вверх и размечаем проем для закладки дров. Ставим на болгарку отрезной диск и вырезаем паз по разметке. - Напильником убираем заусеницы, выкладываем дверцу с приваренной ручкой и шпингалетом и устанавливаем ее на готовые петельки. На листе выставляем и прихватываем ответную часть замка, а на дверце выставляем самодельный замочек – шпингалет.
- Переворачиваем и располагаем буржуйку донышком вверх, размечаем и привариваем ножки из профильной трубы, предварительно зарезав углы для лучшей стыковки к корпусу. Внизу ножки зарезаем под небольшой угол и привариваем пятаки из листа, для лучшей устойчивости буржуйки.
- Устанавливаем печь на ножки и накладываем сверху печи заготовку с отверстиями для трубы дымохода и конфорки. Разместив ее загнутыми кромками вниз и проверив правильность установки, прихватываем пластину.
- Электросваркой прожигаем отверстия в трубе и устанавливаем трубу, диаметром 120 мм для вытяжки и блина для кастрюль.

- Детали обвариваются по кругу, стыки должны быть герметичными. На конце трубы вентиляции привариваем шиберную заслонку для регулирования тяги.
- Открыв дверку, установив колосник на место, засыпаем низ печи слоем песка.
Печь – буржуйка из трубы готова.
Посмотри еще несколько вариантов изготовления, для закрепления понимания:
Фото 1
Фото 2
Фото 3
к содержанию ↑
Установка
Устанавливаем ее на место, при этом учитывая правила пожарной безопасности:
- расстояние до деревянных стен и потолка должно быть не менее 1 м;
- расстояние до пола из дерева – минимум 400 мм;
- при установке буржуйки на деревянный пол, его следует обязательно закрыть листом металла или другим материалом.
После выполнения этих простых правил остается подключить буржуйку к дымоходу.
к содержанию ↑
Подключение дымохода
Для труб дымохода лучше использовать сэндвич – трубы, наружная и внутренняя поверхности которых сделана из тонкого гофрированного металла, а внутри слой теплоизоляции.
В нашем случае ставим трубы диаметром 120 мм. При проходе дымохода через перекрытия делать дополнительный слой теплоизоляции не требуется. Перед выходом на крышу соединяем трубу со стальной и выводим дымоход наружу.
На конце трубы закреплен защитный грибок. Она должна стоять выше конька крыши на 1000 мм, крепиться с помощью распорок. Место прохода сквозь конструкцию крыши потребуется надежно заизолировать против потерь тепла и попадания влаги в помещение.
Более подробно в статье чиайте в статье про установку дымохода для буржуйки своими руками.
к содержанию ↑
Особенности эксплуатации
При пробном запуске буржуйки лучше открыть все двери и окна. Убеждаемся в наличии тяги и открытой заслонки. Затем заложив через дверку дрова, зажигаем пламя. Закрываем дверку и выходим на улицу. Буржуйка будет изрядно дымить, но не следует этого пугаться, это выгорает масло и другой мусор.
Процесс топки
После первого использования печи может потребоваться устранить дефекты сварки.
И затем наслаждайтесь теплом в гараже или другом помещении. Главное помнить правила пожарной безопасности, периодически прочищать дымоход и убирать золу, периодически заменяя песок в буржуйке.
к содержанию ↑
Вывод
Сделать самостоятельно такую конструкцию вполне по силам даже начинающему мастеру. Главное хотеть сделать надежную буржуйку и внимательно и ответственно выполнять все работы, учитывая пошаговую инструкцию, приведенную в статье.
Буржуйка своими руками с увеличенным КПД (55 фото пошагового изготовления)
Всем привет! Вот решил сделать самодельную печь буржуйку с увеличенным КПД своими руками, предлагаю посмотреть пошаговые фото изготовления буржуйки.
Итак, боковые стенки сделаю из профильной трубы 60 х 30 х 3 мм. По сути это будет воздушный теплообменник, через него будет принудительно подаваться воздух. Нагретый воздух хочу распределить при помощи гофрированной трубы, вдоль стен гаража и равномерно его отапливать.
Изготовление буржуйки.
Купил 12 метров профильной трубы, чтобы влезла в машину, попросил распилить на 6 кусков по 2 метра.
Сразу прикупил чугунные колосники 270 х 270 мм.
Нарезал трубы на куски длиной по 50 см и начал варить боковые стенки.
Заднюю стенку решил изогнуть.
Вот примерные размеры топки:
- высота 50 см,
- длина 55-60 см,
- ширина 40 см.
Боковые стенки выставил параллельно, измерил диагонали, напилил 4 прутка одинаковых и вварил. Они будут держать горизонтальные перегородки
Затем вырезал из 4 мм листовой стали нижнюю перегородку. Она сдвинута вперед, сзади печки имеется проход газов 33 х 12 см.
Верхняя вторая перегородка имеет тот же размер для прохода газов, но она уже смещена назад. Сзади имеется небольшая щель для снижения аэродинамического сопротивления.
Перегородки эти съемные, будут усилены уголком немного.
Вынимаются легко через топку.
Следующий этап это изготовление верхней крышки. Форму сделал такую чтобы увеличить проход газов, и снизить аэродинамическое сопротивление на входе в трубу.
В камере над топкой будет расположена трубка с отверстиями, через которые будет подаваться теплый вторичный воздух для дожигания.
Нашёл в гараже кусок квадратной профильной трубы 100 х 100 мм, газоход на выходе из печи будет в начале квадратным.
Так даже проще изготовить заслонку. Нам потребуется ось (я использовал длинный болт), пружина для фиксации заслонки, сама заслонка и ручка с противовесом.
Заслонка толщиной 4 мм.
Затем приварил трубу к верху буржуйки, сделал плавный переход для газов.
Изготовил трубку для вторичного воздуха.
Суть такая, что подается горячий воздух в зону за топкой, и происходит дожиг дымовых газов. Теоретически это дает увеличение температуры во второй камере.
Чтобы трубка не перегорела защитил уголком.
Само сопло сплющил и обварил сваркой для большей прочности.
Ну, и вварил трубку.
Так же распилил арматуру и сделал вставку из толстостенной трубы. С одной стороны приварил трубу, второй конец свободный. Это сделано для температурного расширения арматуры.
Сделал плотный лючек для удаления золы, Стенки зольника усилил уголком. Вставляется крышка очень легко, зазор выставлял при помощи толстой бумаги.
В лючке сделал 4 отверстия и закрепил нижнюю часть от карбюратора с заслонками. Ими буду очень точно регулировать поачу воздуха.
Чтобы предотвратить прогорание печки, и сохранить больше тепла в зоне активного горения использую кирпичи огнеупорные. Размеры 23 х 11.5 х 3 см.
Сделал переднюю стенку, вырезал окно под дверцу топки и усилил каркасом.
Далее, сделал дверку из вырезанного куска передней стенки, уголков и листа металла. Снаружи имеются отверстия в нижней части, изнутри тоже, но уже сверху.
Так дверка охлаждается! Конечно конструкция не очень удачная, нужно внутренний лист закрепить на шпильках, а не обваривать по периметру. Он сильнее греется, расширяется и выгибает дверку наружу. Исправлю!
Изготовил 4 ножки. 3 из них регулируемые по высоте.
Приварил ножки на место, сделал механизм запирания дверцы. Кусок пластины ГУРа, арматура, шаровая.
Так же сделал упоры для дверцы, она на шарнире.
Делаю воздушный контур чтобы сделать принудительный обдув. Купил лист жести 0.5 мм, крепил саморезами и заклепками.
Забор будет снизу, и подаваться по гофре вдоль гаража.
В гараже лежали начатые баллончики термокраски, решил использовать.
Растопил печь. Сразу скажу с краской я погорячился, на баллончике написано 400 градусов, но фаренгейта. Краска выгорала, воняла.
Мои выводы:
- 1. Горит долго, очень долго! Охапка сухих щепок и досок в старой буржуйке сгорала за минут 15, в новой горит а потом тлеет час-полтора.
Если забить полную топку, положив дрова на тлеющие угли, то хватает на часа 4. При этом поддув полностью закрыт, и закрыта заслонка на 50% на трубе. - 2. Без обдува вентилятором воздух на выходе нереально горячий. Рука не терпит, пирометр показал 330 градусов.
- 3. Краска уже обгорела но не отлетает.
- 4.Очень не хватает гляделки. Не понятно горит или тлеет топливо. Сделаю позже.
- 5. Вторичный воздух похоже работает. Температура во второй камере почти как и в первой.
- 6. Кирпичи внутри топки очень улучшают горение за счет того что температура очень высокая в топке, и тепло не уходит в стенки.
- 8. По затратам: если не учитывать запасы железок в гараже и прочей ерунды из которой сделана печь, а посчитать что покупал в магазине она мне вышла 2120 р профиль, 500 р колосники, 500 р жесть, 70 р заклепки. Итого: 3190 р. Округлю до 4000 р на проволоку и газ для сварки.
Провел эксперимент. На улице -20, сильный ветер. Растопил печь, в гараже было -6 градусов.
Через 30 минут можно ходить в майке, через 2 часа в гараже было уже +40 градусов. На все ушло 8 небольших поленьев и мелочь на растопку. Площадь гаража 20 квадратов. Ну и несколько фото замеров температуры:
Температура воздуха на выходе при максимальном наддуве.
В планах доделать забор воздуха с улицы, сделать плавную регулировку скорости вентиляторов и пустить короб с горячим воздухом по полу гаража.
Автор самоделки: artemii303 г. Владивосток. Также рекомендуем ознакомиться с конструкцией самодельной печи буржуйки с водяным контуром.
Набор для буржуйки в масштабе 1:48, неокрашенная смола
Etsy больше не поддерживает старые версии вашего веб-браузера, чтобы обеспечить безопасность пользовательских данных. Пожалуйста, обновите до последней версии.
Воспользуйтесь всеми преимуществами нашего сайта, включив JavaScript.
Нажмите, чтобы увеличить
6 140 продаж
|
5 из 5 звезд
В 9 тележках
€4,54
Загрузка
Включая НДС (где применимо), плюс стоимость доставки
Количество
12345678910111213141516
Исследуйте другие похожие поисковые запросы
Внесен в список 14 января 2023 г.
128 избранных
Сообщить об этом элементе в Etsy
Выберите причину… С моим заказом возникла проблемаОн использует мою интеллектуальную собственность без разрешенияЯ не думаю, что это соответствует политике EtsyВыберите причину…
Первое, что вы должны сделать, это связаться с продавцом напрямую.
Если вы уже это сделали, ваш товар не прибыл или не соответствует описанию, вы можете сообщить об этом Etsy, открыв кейс.
Сообщить о проблеме с заказом
Мы очень серьезно относимся к вопросам интеллектуальной собственности, но многие из этих проблем могут быть решены непосредственно заинтересованными сторонами. Мы рекомендуем связаться с продавцом напрямую, чтобы уважительно поделиться своими проблемами.
Если вы хотите подать заявление о нарушении авторских прав, вам необходимо выполнить процедуру, описанную в нашей Политике в отношении авторских прав и интеллектуальной собственности.
Посмотрите, как мы определяем ручную работу, винтаж и расходные материалы
Посмотреть список запрещенных предметов и материалов
Ознакомьтесь с нашей политикой в отношении контента для взрослых
Товар на продажу…
не ручной работы
не винтаж (20+ лет)
не ремесленные принадлежности
запрещены или используют запрещенные материалы
неправильно помечен как содержимое для взрослых
Пожалуйста, выберите причину
Расскажите нам больше о том, как этот элемент нарушает наши правила. Расскажите нам больше о том, как этот элемент нарушает наши правила.
Все категории
Товары для рукоделия и инструменты
Некоммерческая служба в поддержку ответственного отопления дома дровами
Подсказка: не обращайте внимания на цифры, чтобы упростить ваше решение
Когда вы пойдете покупать дровяную печь, у вас будет два основных источника информации, которые помогут вам принять решение. Во-первых, это литература производителя, в которой приводятся технические характеристики, а во-вторых, это советы, которые вы получаете от различных продавцов печей, которых вы посещаете.
Говоря о дилерах, вы можете подумать, что дилер просто хочет получить как можно больше ваших денег, и в этом, конечно, есть доля правды, но реальность сложнее. Опытный дилер хочет, чтобы вы были настолько довольны своей покупкой, что рассказали своим друзьям, чтобы они тоже купили.
Это означает, что хороший дилер приложит все усилия для достижения ваших целей с помощью правильной печи, потому что ни один дилер не хочет, чтобы вы возвращались с жалобами на то, что печь слишком большая, слишком маленькая или неподходящая по другим причинам. Хороший дилер может быть вашим самым ценным ресурсом.
Остерегайтесь дилеров, которые не отапливают свои дома дровами и не имеют в своих салонах работающих дровяных печей – их советы мало чего стоят и могут быть хуже, чем ничего. Подсказка: сотрудники крупных магазинов обычно мало что знают о дровяных обогревателях, поэтому скептически относитесь к любым советам, которые вы получаете от них.
После того, как вы соберете несколько брошюр о печах, вы заметите стандартную информацию, которая предоставляется, и некоторые из них могут помочь вам принять решение о покупке.
Материал
Два основных материала: чугун или сварная сталь. Между ними нет разницы в теплопроизводительности, поэтому решение зависит от эстетики и цены.
Изящные изгибы и художественные рельефные узоры делают чугунные печи радующими глаз, скорее, изысканной мебелью для обогрева дома. Тем не менее, вы заплатите премиальную цену, и литые печи необходимо перестраивать после многих лет использования, чтобы герметизировать стыки между панелями, чтобы утечка воздуха не позволила огню выйти из-под контроля. Сварные стальные печи проще, но стоят дешевле. Обратите внимание, что некоторые новые печи на самом деле представляют собой стальные печи с установленными на них декоративными чугунными панелями. Очевидно, что на этом типе печи не требуется никакого восстановления чугуна.
Стальная дровяная печь. Чугунная печь; этот эмалированный
С точки зрения долговечности в наши дни нет большой разницы. Раньше литые печи имели преимущество, потому что любую деталь, вышедшую из строя из-за теплового удара, можно было заменить. Но теперь, усвоив уроки, солидные производители стальных печей сконструировали свои изделия так, чтобы внутренние детали, подвергающиеся высоким нагрузкам, были заменяемыми.
Это одна из областей, на которую следует обратить внимание при совершении покупок. Иногда дешевые печи не рассчитаны на долгие годы непрерывного зимнего использования, а ключевые детали могут быть приварены, поэтому имеет смысл попросить продавца показать вам, какие детали подлежат замене.
Некоторые печи премиум-класса изготовлены из стеатита по бокам, сзади и сверху. Производители печей из мыльного камня продвигают их на том основании, что они сохраняют тепло в течение многих часов, таким образом, они нивелируют неизбежные взлеты и падения производительности дровяной печи. Конечно, в этом есть доля правды, но эти печи также медленно нагреваются, поэтому за тепло, которое они сохраняют, приходится платить. Примерно такой же эффект можно создать, встроив массу в инсталляцию в виде каменной или кирпичной облицовки стен и подушки для очага. Тот факт, что печь изготовлена из мыльного камня, не обязательно является веской причиной для ее покупки, если только она не обладает другими характеристиками, которые вам нужны, и вам действительно не нравится, как она выглядит.
Технология сжигания
Споры о каталитическом и некаталитическом сжигании ведутся уже много лет. Оба подхода доказали свою эффективность, но есть различия в производительности. Каталитическое сжигание, при котором дымные выхлопные газы проходят через покрытые катализатором керамические соты, расположенные глубоко внутри печи, где они воспламеняются и сгорают, может производить длительное стабильное тепловыделение. Почти все каталитические печи имеют рычажную перепускную заслонку катализатора, которая открывается для запуска и загрузки, и это, в сочетании с необходимостью разогрева печи перед включением катализатора, делает работу этих печей немного более сложной. сложный. Однако эта модель может измениться, поскольку один производитель разработал каталитическую печь без перепускной заслонки.
Каталитический элемент со временем изнашивается и подлежит замене, но его долговечность во многом зависит от пользователя печи. При бережном использовании катализатор может прослужить более шести сезонов, но если печь перегревается, мусор сжигается, а техническое обслуживание отсутствует, катализатор может выйти из строя всего за два года.
Внутри некаталитической дровяной печиВнутри каталитической дровяной печи.
Как следует из названия, некаталитическое горение не использует катализатор, а вместо этого создает благоприятную среду для горения прямо в топке. Эту среду создают три ключевых элемента: изоляция топки, перегородка для отвода потока газа и предварительно нагретый воздух для горения, подаваемый через небольшие отверстия по всей верхней части топки. «Не-кошки», как правило, производят несколько более пиковую кривую теплоотдачи, но их пользователи ценят их за потрясающе красивый огонь, который они создают. Хорошие условия для горения включают высокие температуры, поэтому перегородка и некоторые другие внутренние детали время от времени нуждаются в замене, так как они изнашиваются под воздействием тепла.
Так какая печь лучше, кот или не кот? До недавнего времени казалось, что рынок медленно поворачивается в пользу не-кошки, поскольку некоторые основные производители фактически переключились в этом направлении.
Но кошки возвращаются, в основном из-за более строгих правил выбросов Агентства по охране окружающей среды, а некоторые из самых популярных высококачественных печей используют каталитическое сжигание. Оба варианта имеют свои преимущества и ограничения, а также легионы лояльных пользователей, которые клянутся, что их (кошки или не кошки) намного лучше, чем эти глупые (кошки или не кошки). И оба горят примерно 9На 0 процентов чище, чем старые обычные печи.
Выбросы
Еще в конце 1980-х годов Агентство по охране окружающей среды США установило обязательный предел выбросов дыма для каталитических дровяных печей в размере 4,1 грамма дыма в час и для печей без каталитического нейтрализатора в размере 7,5 г/ч.* Новые правила Агентства по охране окружающей среды требуют, чтобы все новые печи, как каталитические, так и некаталитические, должны соответствовать предельному уровню выбросов 4,5 г/ч к весне 2015 г. и 2 г/ч к весне 2020 г. некоторые производители.
В частности, у разработчиков печей возникают проблемы с доведением больших не-котов до уровня 2 г/ч, из-за чего некоторые производители переключаются на каталитическое сжигание, а другие добавляют к своим не-котам катализатор.
В результате появилось несколько печей с очень чистым горением, хотя эти изменения привели к значительному повышению цен. Тем не менее, чем ниже выбросы, тем более эффективной может быть печь, а это означает, что в течение срока службы печи повышенные затраты окупаются за счет необходимости покупать и обрабатывать меньше дров. Уровень выбросов, сертифицированный EPA, является надежным числом, которое можно сравнивать от одной модели к другой. Имейте в виду, что небольшая разница в выбросах дыма не имеет значения для пользователя в реальном мире повседневного отопления дома.
* Некоторые из самых дешевых дровяных печей на рынке США не сертифицированы EPA, но попадают на рынок через лазейку, предназначенную для освобождения каминов от правил выбросов. Исключение для камина гласит, что если прибор достаточно негерметичен, чтобы сжигать не менее 11 фунтов дров в час (5 кг / ч), когда его регулятор воздуха установлен на минимум, его не нужно тестировать или соответствовать требованиям по выбросам.
пределы. Некоторые производители печей пользуются лазейкой в освобождении от требований к каминам, создавая негерметичные (негерметичные, без уплотнений) печи и продавая их по дешевке. Проблема в том, что они не греют ни гроша, потому что они неуправляемы и сжигают много дров. Это печи, которые работают так же, как те, которые продавались 50-100 лет назад.
В старину люди ставили в дымоходе клапаны с ключом, чтобы замедлить горение, и теперь покупатели этих дешевых освобожденных печей вынуждены делать то же самое. Это, конечно, подрывает цели регулирования EPA и вызывает много шума. Обратите внимание, что по крайней мере один производитель предлагает эти печи грязного горения И клапаны дымохода для продажи на одной и той же веб-странице! Не совершайте ошибку, купив один из них. Ты получаешь то, за что платишь.
Эффективность
Гораздо более высокая эффективность, обеспечиваемая современными сертифицированными печами, безусловно, актуальна для повседневного использования.
В среднем новые печи как минимум на треть эффективнее старых коробчатых, буржуйских или ступенчатых печей прошлых лет. Это на одну треть меньше затрат, если вы покупаете дрова, или на одну треть меньше затрат на распил, перевозку и укладку, если вы сами рубите дрова. Хотя эта более высокая эффективность является побочным продуктом обязательных ограничений выбросов, она сделала правила EPA выигрышными как для окружающей среды, так и для пользователей печей.
Наряду с нормативными изменениями в ограничениях выбросов, EPA также стало требовать, чтобы печи проверялись на эффективность. В результате производители теперь начинают конкурировать за заявленную более высокую эффективность, и эта тенденция может иметь свои недостатки. Общий КПД намного выше 80 процентов нежелателен, если печь должна быть подключена к неизолированному каменному дымоходу, который выходит за пределы дома, вариант вентиляции, который по-прежнему совершенно законен в соответствии со строительными нормами. Очень высокий КПД обязательно означает более низкие температуры дымовых газов, что может привести к конденсации влаги в холодном дымоходе и/или срыву тяги и обратному выбросу горячего дыма в дом.
Если вы планируете купить печь с КПД выше 80%, вам нужно будет подобрать к ней систему вентиляции, которая выходит прямо в изолированный заводской дымоход.
Тепловая мощность
Большинство производителей указывают максимальную тепловую мощность в британских тепловых единицах (БТЕ), а для популярных печей она находится в диапазоне от 25 000 до 80 000 БТЕ. Но эта цифра обманчива. Во-первых, не следует часто использовать полную мощность печи, потому что непрерывный сильный огонь может нанести серьезный ущерб внутренностям печи. Во-вторых, среднему дому среднего размера требуется всего от 5000 до 20 000 БТЕ в час непрерывного нагрева, даже в холодную погоду. Некоторые производители используют показатель тепловыделения из испытаний EPA, в котором используется топливо из хвойной древесины, а другие используют результаты своих собственных испытаний с использованием топлива из твердой древесины, которое может дать гораздо более высокую пиковую мощность. Еще одна причина, по которой эти цифры могут ввести в заблуждение, заключается в том, что не-кошки, как правило, производят более высокую пиковую теплоотдачу, но это не означает, что они будут производить больше тепла в течение восьмичасового цикла горения, что является более важным показателем производительности.
В результате вы не можете легко сравнить тепловую мощность печей, потому что рейтинги могут вводить в заблуждение.
Теплопроизводительность
Производители печей обычно указывают, сколько квадратных футов площади обогревает устройство. Некоторые из них мудро дают большие диапазоны, такие как от 1000 до 2000 кв. Футов, или предлагают максимальную площадь, которую блок будет обогревать. Причина большого диапазона и расплывчатых цифр заключается в том, что конкретная печь может обогревать 2000 квадратных футов в центральной части США, но только дом площадью 1000 квадратных футов в центральной Канаде из-за разницы в климате. Мало того, старый дом может иметь в два раза больше теплопотерь, чем новый дом того же размера в той же климатической зоне. Кроме того, если ваш дом разделен на множество небольших комнат, вы, вероятно, не сможете отводить тепло по остальной части дома, поэтому оценка площади в квадратных футах для вас бесполезна. И, наконец, печь, сжигающая мягкую древесину, такую как ель, будет выделять гораздо меньше тепла на одну загрузку топки, чем твердая древесина, такая как клен.
Очевидно, что оценки теплопроизводительности, основанные на квадратных футах, ненадежны.
С практической точки зрения, учитывая все переменные, дровяные печи бывают только трех размеров; малый, средний и большой. Форма топки влияет на ее полезный объем, поэтому могут быть некоторые исключения из этого очень грубого правила.
- небольшие печи имеют объем топки менее 2 кубических футов и могут подойти для обогрева большого помещения или небольшого сезонного домика;
- средние печи имеют объем топки от 2 до 3 кубических футов и подходят для обогрева небольших и средних домов;
- большие печи имеют объем топки более 3 кубических футов и подходят для обогрева несколько больших домов открытой планировки или домов с протечками.
Конечно, все размеры должны учитывать тип вашего дома, климатическую зону и стандартное топливо. Правильный выбор размеров печей для конкретных целей и условий — это одна из областей, где совет опытного продавца дровяных печей особенно полезен.
Время горения
Как долго данная печь будет гореть на одной загрузке дров? Единственный разумный ответ: это зависит. Время горения зависит от породы древесины и влажности, а также от того, сколько тепла необходимо при горении. Мой опыт показывает, что средняя или большая печь, правильно подобранная с учетом всех обсуждаемых здесь вопросов, обеспечит надежное ночное горение с достаточным количеством оставшихся углей, чтобы разжечь огонь утром. Печи в небольшой категории могут давать или не давать ночное горение, но они, как правило, не подходят для первичного отопления всего дома.
Одно из преимуществ каталитических печей заключается в том, что хорошие из них могут обеспечивать меньшую скорость горения в течение более длительного периода времени, чем обычные печи, и при этом сгорать чисто. Но недостатком такого длительного времени горения является то, что стекло дверцы имеет тенденцию загрязняться при очень низкой скорости горения. Другими словами, печь, заявленное время горения которой составляет десять часов, может быть не лучше или удобнее в использовании, чем та, которая обеспечивает восьмичасовое горение.
Длина полена
Не думайте, что печь, которая может работать с 20-дюймовыми дровами, действительно больше или лучше, чем та, которая может использовать до 18-дюймовых поленьев. Стандартная длина дров для печей составляет 16 дюймов, в основном потому, что это наиболее практичная длина для обращения. Любой парень, который утверждает, что легко поднимать, складывать и загружать 20-дюймовые дрова, больше и сильнее меня. Я также знаю, что женщины в Северной Америке серьезно пользуются дровяными печами, и я подозреваю, что в среднем сила их запястий и предплечий ближе к моей, чем к силе здоровенного лесоруба. С другой стороны, знать максимальную длину полена полезно, потому что для удобной загрузки топка должна быть примерно на три дюйма больше, чем ваш средний кусок дров.
Существует множество других функций, которые вы, возможно, захотите рассмотреть. К ним относятся, есть ли у печи зольник, варочная поверхность, может ли она работать в открытом виде с установленным противопожарным экраном, а также эстетические вопросы, такие как покрытые металлом двери и отделка, пьедестал по сравнению с ножками и варианты цвета.
Ничто из этого не влияет на эффективность нагрева, но может повлиять на ваше удовольствие от печи.
Ориентация топки
То, как лежат поленья в топке, сильно влияет на то, как они горят, и на то, сколько тепла печь может выделить при длительном горении. Глядя на печи, обратите внимание на то, как должны быть ориентированы бревна.
Печь, ориентированная с востока на запад, имеет топку, ширина которой превышает глубину. Через стеклянную дверь вы смотрите на бока бревен. Можно использовать только половину объема топки восточно-западной печи, потому что, если вы загрузите ее слишком полностью, поленья могут упасть на стеклянную дверцу.
Печь, ориентированная с севера на юг, имеет топку, глубина которой превышает ширину. Через стеклянную дверь вы смотрите на концы бревен. Можно использовать полный объем топки северно-южной печи, потому что бревна не могут упасть вперед. В результате печь север-юг имеет большую теплотворную способность, чем печь того же объема восточно-западная.
Металл, отдавая тепло, постепенно обогревает помещение;
Сюда закладываются дрова или уголь;

Для ее изготовления размещаем длинные детали из арматуры, вставляем по краям перемычки и прихватываем их. Теперь, отступая от перемычки 10 мм, стыкуем следующую перемычку. Таким образом, набираем решетку из арматуры, размером 600/400 мм. После этого перевернув решетку, ставим прихватки с обратной стороны.
Затем переворачиваем заготовку лицом вверх и размечаем проем для закладки дров. Ставим на болгарку отрезной диск и вырезаем паз по разметке.